Terrain à vendre - BOURAY SUR JUINE (91) - 628m2
Images
Description
Madelyne Chaudron vous propose ce terrain non viabilisé avec permis de construire validé, sur la commune de Bouray-sur-juine.
Situé dans le secteur très calme et verdoyant du petit Mesnil, ce terrain possède une surface total de 628 m2.
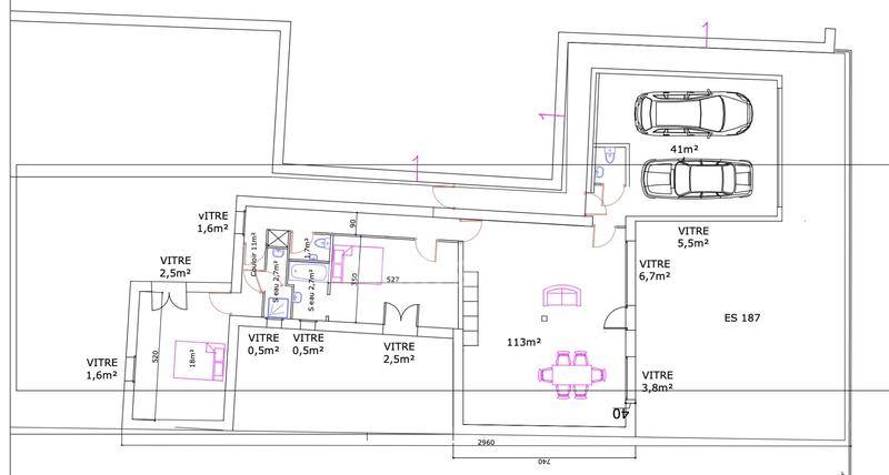
Le permis prévoit une maison de plain pied de 123m2 avec un double garage de 41m2
Pour plus d'information n'hésitez pas à me contacter ! Les honoraires sont à la charge du vendeur.
Les informations sur les risques auxquels ce bien est exposé sont disponibles sur le site Géorisques : www. georisques. gouv. fr.
Réseau Immobilier CAPIFRANCE - Votre agent commercial (RSAC N(Numéro supprimé) - Greffe de EVRY) Madelyne CHAUDRON Entrepreneur Individuel à Responsabilité Limitée (Numéro supprimé) - Réf.924151
Logement susceptibles de vous intéresser
Nous vous proposons de découvrir aussi cette sélection de logements situés à moins de 10km de Bouray-sur-Juine et qui seraient susceptibles de vous intéresser.
Itteville
TERRAINTerrain à vendre : emplacement idéal pour votre prochain projet. Description : A la recherche du lieu parfait pour concrétiser votre vision ? Ne chercher plus, il est là ! Ce terrain spacieux, situé dans un quartier très rechercher, offre une belle opportunité unique pour réaliser le projet d’une vie Caractéristiques : – Emplacement stratégique offrant un accès facile aux commodités locales et aux axes de transport. – Environnement calme et paisible, idéal pour ceux qui recherchent la tranquillité tout en restant connectés à la vie urbaine. – Proximité des écoles, commerces et autres services essentiels, garantissant une vie pratique et confortable. Ne manquez pas cette opportunité unique d’investir dans l’avenir et de réaliser vos aspirations. N’hésitez pas à me contacter dès maintenant pour plus d’informations et pour planifier une visite sur place !Prix : 90000 €.Sur ce terrain, réalisez votre projet de construction de maison RE 2020 avec PAVILLONS D'ÎLE-DE-FRANCE (constructeur de maisons de gamme et sur-mesure depuis plus de 50 ans) :- Plan sur-mesure et personnalisé de 2 à 5 chambres- Mode de chauffage au choix- Grands choix d'équipements et de prestations- Matériaux de qualité selon les normes en vigueur- Accompagnement dans le choix et l’acquisition du terrainDemandez une étude gratuite et personnalisée de votre projet de construction sur ce terrain !Contactez Jason GUEVEL au (Numéro supprimé) ou au (Numéro supprimé) (Pavillons d'Île-de-France – Agence de Cauffry).Prix hors frais de notaire. Terrain sélectionné et vu pour vous sous réserve de disponibilité et au prix indiqué par notre partenaire foncier. Visuels non contractuels.Cette annonce a été créée et diffusée avec le logiciel VITAHOME.
Itteville
TERRAIN ET MAISONRéalisez votre projet de construction de maison RE 2020 avec PAVILLONS D'ÎLE-DE-FRANCE (constructeur de maisons de gamme et sur-mesure depuis plus de 50 ans) :- Plan sur-mesure et personnalisé de 2 à 5 chambres- Mode de chauffage au choix- Grands choix d'équipements et de prestations- Matériaux de qualité selon les normes en vigueur- Accompagnement dans le choix et l’acquisition du terrainInformations du terrain : Terrain à vendre : emplacement idéal pour votre prochain projet. Description : A la recherche du lieu parfait pour concrétiser votre vision ? Ne chercher plus, il est là ! Ce terrain spacieux, situé dans un quartier très rechercher, offre une belle opportunité unique pour réaliser le projet d’une vie Caractéristiques : – Emplacement stratégique offrant un accès facile aux commodités locales et aux axes de transport. – Environnement calme et paisible, idéal pour ceux qui recherchent la tranquillité tout en restant connectés à la vie urbaine. – Proximité des écoles, commerces et autres services essentiels, garantissant une vie pratique et confortable. Ne manquez pas cette opportunité unique d’investir dans l’avenir et de réaliser vos aspirations. N’hésitez pas à me contacter dès maintenant pour plus d’informations et pour planifier une visite sur place !Demandez une étude gratuite et personnalisée de votre projet de construction !Contactez Jason GUEVEL au (Numéro supprimé) ou au (Numéro supprimé) (Pavillons d'Île-de-France – Agence de Cauffry).Prix avec assurance dommages-ouvrage comprise, hors VRD, terrain non viabilisé, assainissement non compris, frais de notaire non compris, taxes non comprises, frais divers non compris. Terrain sélectionné et vu pour vous sous réserve de disponibilité et au prix indiqué par notre partenaire foncier. Visuels non contractuels.Cette annonce a été créée et diffusée avec le logiciel VITAHOME.
Itteville
TERRAIN ET MAISONRéalisez votre projet de construction de maison RE 2020 avec PAVILLONS D'ÎLE-DE-FRANCE (constructeur de maisons de gamme et sur-mesure depuis plus de 50 ans) :- Plan sur-mesure et personnalisé de 2 à 5 chambres- Mode de chauffage au choix- Grands choix d'équipements et de prestations- Matériaux de qualité selon les normes en vigueur- Accompagnement dans le choix et l’acquisition du terrainInformations du terrain : Terrain à vendre : emplacement idéal pour votre prochain projet. Description : A la recherche du lieu parfait pour concrétiser votre vision ? Ne chercher plus, il est là ! Ce terrain spacieux, situé dans un quartier très rechercher, offre une belle opportunité unique pour réaliser le projet d’une vie Caractéristiques : – Emplacement stratégique offrant un accès facile aux commodités locales et aux axes de transport. – Environnement calme et paisible, idéal pour ceux qui recherchent la tranquillité tout en restant connectés à la vie urbaine. – Proximité des écoles, commerces et autres services essentiels, garantissant une vie pratique et confortable. Ne manquez pas cette opportunité unique d’investir dans l’avenir et de réaliser vos aspirations. N’hésitez pas à me contacter dès maintenant pour plus d’informations et pour planifier une visite sur place !Demandez une étude gratuite et personnalisée de votre projet de construction !Contactez Jason GUEVEL au (Numéro supprimé) ou au (Numéro supprimé) (Pavillons d'Île-de-France – Agence de Cauffry).Prix avec assurance dommages-ouvrage comprise, hors VRD, terrain non viabilisé, assainissement non compris, frais de notaire non compris, taxes non comprises, frais divers non compris. Terrain sélectionné et vu pour vous sous réserve de disponibilité et au prix indiqué par notre partenaire foncier. Visuels non contractuels.Cette annonce a été créée et diffusée avec le logiciel VITAHOME.
Itteville
TERRAIN ET MAISONRéalisez votre projet de construction de maison RE 2020 avec PAVILLONS D'ÎLE-DE-FRANCE (constructeur de maisons de gamme et sur-mesure depuis plus de 50 ans) :- Plan sur-mesure et personnalisé de 2 à 5 chambres- Mode de chauffage au choix- Grands choix d'équipements et de prestations- Matériaux de qualité selon les normes en vigueur- Accompagnement dans le choix et l’acquisition du terrainInformations du terrain : Terrain à vendre : emplacement idéal pour votre prochain projet. Description : A la recherche du lieu parfait pour concrétiser votre vision ? Ne chercher plus, il est là ! Ce terrain spacieux, situé dans un quartier très rechercher, offre une belle opportunité unique pour réaliser le projet d’une vie Caractéristiques : – Emplacement stratégique offrant un accès facile aux commodités locales et aux axes de transport. – Environnement calme et paisible, idéal pour ceux qui recherchent la tranquillité tout en restant connectés à la vie urbaine. – Proximité des écoles, commerces et autres services essentiels, garantissant une vie pratique et confortable. Ne manquez pas cette opportunité unique d’investir dans l’avenir et de réaliser vos aspirations. N’hésitez pas à me contacter dès maintenant pour plus d’informations et pour planifier une visite sur place !Demandez une étude gratuite et personnalisée de votre projet de construction !Contactez Jason GUEVEL au (Numéro supprimé) ou au (Numéro supprimé) (Pavillons d'Île-de-France – Agence de Cauffry).Prix avec assurance dommages-ouvrage comprise, hors VRD, terrain non viabilisé, assainissement non compris, frais de notaire non compris, taxes non comprises, frais divers non compris. Terrain sélectionné et vu pour vous sous réserve de disponibilité et au prix indiqué par notre partenaire foncier. Visuels non contractuels.Cette annonce a été créée et diffusée avec le logiciel VITAHOME.
Mauchamps
TERRAINTerrain de 560 m² à vendre à MauchampsPROCHE D’ANTONYGrand terrain à quelques minutes de la station Étréchy (Paris à 40 min par le RER C). De 560 m², ce terrain se situe dans Mauchamps (91730). Ce terrain est proche des écoles et des commerces. Niveau transports, il y a la ligne de RER C (Chamarande) ainsi que 12 gares à moins de 10 minutes en voiture. On trouve trois supermarchés à quelques minutes à peine.Son prix de vente est de 160 000 €. N’hésitez pas à prendre contact avec notre agence (AUGUSTINE Sabrina : (Numéro supprimé)) pour toute information sur le terrain.
Mauchamps
TERRAIN ET MAISONMauchamps : maison de 7 pièces (120 m²) à vendrePROCHE D’ANTONY – MAISON 7 PIÈCES NEUVEÀ vendre : proche de la station Étréchy du RER C (40 min de Paris), votre agence Maisons France Confort Ris-Orangis est ravie de vous présenter cette maison de 7 pièces de 120 m² et de 560 m² de terrain à Mauchamps (91730). Son intérieur inclut cinq chambres, une cuisine et deux salles de bains.C’est une maison de 2 niveaux. Elle est neuve.Côté transports, on trouve la ligne de RER C (Chamarande) ainsi que 12 gares à moins de 10 minutes en voiture. Il y a trois supermarchés dans les environs.Elle est proposée à l’achat pour 395 600 €.N’hésitez pas à prendre contact avec Sabrina AUGUSTINE (tél : (Numéro supprimé)) pour obtenir de plus amples informations sur cette maison. Maisons France Confort Ris-Orangis est là pour vous accompagner à toutes les étapes de votre projet.
Mauchamps
TERRAIN ET MAISONVENTE d’une maison de 6 pièces (109 m²) à MauchampsPROCHE D’ANTONY – MAISON 6 PIÈCES NEUVEEn vente : à proximité du RER C (station Étréchy, 40 min de Paris), à Mauchamps (91730), Maisons France Confort Ris-Orangis vous présente cette maison de 6 pièces de 109 m². Elle compte quatre chambres, une cuisine et deux salles de bains.Le terrain du bien est de 560 m².C’est une maison de 2 niveaux. Elle est neuve.Côté transports, il y a la ligne de RER C (Chamarande) ainsi que 12 gares à moins de 10 minutes en voiture. On trouve trois supermarchés à quelques minutes à peine.Son prix de vente est de 360 900 €.Contactez notre agence (Sabrina AUGUSTINE : (Numéro supprimé)) pour plus de renseignements sur cette maison ou sur les démarches à suivre. Maisons France Confort Ris-Orangis vous accompagne à toutes les étapes de l’achat et dans tous vos projets immobiliers.
Mauchamps
TERRAIN ET MAISONMauchamps : maison T6 (125 m²) en venteMAISON 6 PIÈCES NEUVE – PROCHE D’ANTONYProche de la station Étréchy (Paris à 40 min avec le RER C), nous sommes heureux de vous proposer à vendre à Mauchamps (91730), cette maison de 6 pièces de 125 m² et de 560 m² de terrain.Il s’agit d’une maison de 2 niveaux. Son intérieur compte quatre chambres, une cuisine et deux salles de bains. Cette maison est neuve.Niveau transports en commun, il y a la ligne de RER C (Chamarande) ainsi que 12 gares à moins de 10 minutes en voiture. On trouve trois supermarchés à quelques minutes à peine.Elle est à vendre pour la somme de 400 000 €.Contactez Sabrina AUGUSTINE ((Numéro supprimé)) pour tout renseignement sur la maison ou sur les démarches à suivre. Maisons France Confort Ris-Orangis est là pour vous accompagner à toutes les étapes de votre projet.
La Ferté-Alais
TERRAIN ET MAISONEric Mouthon Conseiller Commercial (Numéro supprimé) Étude gratuite et personnalisée sur rendez-vous.Maison Neuve RE 2020 à 5 min de la ferté alais.Découvrez ce terrain viabilisé de 300 m² dans un village qui a su conserver son authenticité et sa tranquillité. Cadre de Vie Idéal : Écoles sur place et environnement calme. Proche gare.Agencement Flexible : 4 chambres lumineuses et des plans entièrement personnalisables pour un espace de vie qui vous ressemble. Performance RE 2020 : Une solution thermique et acoustique de pointe, garantissant un confort d’été supérieur (idéal contre la chaleur) et des économies d’énergie. Plancher Chauffant pour une chaleur douce et uniforme, sans radiateur encombrant. Volets Roulants (VR) motorisés et centralisé. Saisissez cette opportunité de bâtir une maison intelligente, éco-performante et sur mesure, dans un environnement paisible.
L’actualité immobilière à Bouray-sur-Juine
27/11/2023
02/11/2023
30/10/2023
20/10/2023
16/10/2023
16/10/2023