Terrain à bâtir à Arveyres (33500)
Images
Description
David LOPES des maisons MCA, vous propose de découvrir ce beau terrain de 600m², sur la commune de Arveyres.
Idéalement situé, à moins de 10 minutes de Libourne, et de toutes ses commodités. Vous pourrez y construire le projet de vos rêves, dans un cadre de vie privilégié.
N''''''''''''''''attendez plus, contactez vite votre conseiller David LOPES au (Numéro supprimé) à l''''''''''''''''agence MCA de Libourne, afin qu''''''''''''''''il vous guide dans les démarches et vous accompagne dans ce projet de construction personnalisé.
Logement susceptibles de vous intéresser
Nous vous proposons de découvrir aussi cette sélection de logements situés à moins de 10km de Arveyres et qui seraient susceptibles de vous intéresser.
Libourne
TERRAINLibourne : terrain de 636 m² à vendreIDÉALEMENT SITUÉ – VUE DÉGAGÉEÀ Libourne (33500), grand terrain. Ce terrain, avec vue dégagée, bénéficie d’une exposition sud-est. Dans un secteur convoité, le terrain idéalement situé est proche des écoles et des commerces. Il y a des écoles du primaire et du secondaire à moins de 10 minutes à pied, tout comme trois crèches. Côté transports en commun, on trouve la gare Libourne juste à côté. L’autoroute A89 et la nationale N89 sont accessibles à moins de 7 km. Il y a une bibliothèque, des commerces, des boulangeries, deux supermarchés, un bureau de poste et des épiceries dans les environs. Le marché Place Surchamp anime les environs.Son prix de vente est de 99 000 €. Prenez contact avec notre agence (CAZAUBON David : (Numéro supprimé)) pour obtenir de plus amples renseignements sur le terrain ou sur les démarches à suivre. Concrétisez vos projets immobiliers avec Batisoft Bordeaux.
Lugon-et-l'Île-du-Carnay
TERRAIN ET MAISONOpportunités exceptionnelle à saisir ! Vous rêvez de construire la maison de vos rêves dans un cadre idyllique ? Je vous propose ce magnifique terrain constructible de 4OO m2, situé dans un environnement paisible et verdoyant. Les atouts de ce terrain : superficie idéale pour une maison avec jardin Déjà viabiliséProche des commodités Cette annonce comprend une estimation globale du projet de construction, dont une estimation des frais annexes.Contactez dès a présent Léonie au (Numéro supprimé) pour créer, ensemble votre projet totalement sur-mesure.Instagram : leoniebeaujon_
Libourne
TERRAIN ET MAISONIGC construction vous propose cette opportunités exceptionnelle à saisir ! Vous rêvez de construire votre cocon ? Je vous propose ce beau terrain constructible de 300 m2, situé dans un environnement paisible et agréable. Les atouts de ce terrain : superficie idéale pour une maison avec jardin sans entretienProche des commodités Contactez dès a présent Léonie au (Numéro supprimé) pour créer, ensemble votre projet totalement sur-mesure.
Lugon-et-l'Île-du-Carnay
TERRAINOpportunités exceptionnelle à saisir ! Vous rêvez de construire la maison de vos rêves dans un cadre idyllique ? Je vous propose ce magnifique terrain constructible de 400 m2, situé dans un environnement paisible et verdoyant. Les atouts de ce terrain : superficie idéale pour une maison avec jardin Déjà viabiliséProche des commodités Contactez dès a présent Léonie au (Numéro supprimé) pour créer, ensemble votre projet totalement sur-mesure.Instagram : leoniebeaujon_
Saint-Sulpice-et-Cameyrac
TERRAIN ET MAISONVENTE : maison F4 (100 m²) à Saint-Sulpice-et-CameyracIDÉALEMENT SITUÉE – MAISON 4 PIÈCES NEUVEEn vente : localisée à quelques kilomètres de Bordeaux, notre agence Maisons de la Côte Atlantique Cadillac est heureuse de vous proposer cette maison de 4 pièces de plain-pied de 100 m² idéalement située dans Saint-Sulpice-et-Cameyrac (33450). Elle propose trois chambres, une cuisine et deux salles de bains.Le terrain de la propriété est de 899 m².La maison est neuve.Cette maison est située dans un quartier convoité. L’École Élementaire le Cedre Bleu et l’École Maternelle les Ecureuils sont implantées à moins de 10 minutes à pied. Niveau transports, on trouve la gare Saint-Sulpice-Izon à proximité. Les autoroutes A10 et A630 et les nationales N89 et N230 sont accessibles à moins de 10 km. Il y a un tennis, des commerces, deux boulangeries, un bureau de poste, une boucherie-charcuterie et deux épiceries à quelques minutes.Elle est proposée à l’achat pour 260 000 €.Prenez contact avec Tony JAMIN (Numéro supprimé) pour toute information sur la maison et sur les démarches à suivre.
Libourne
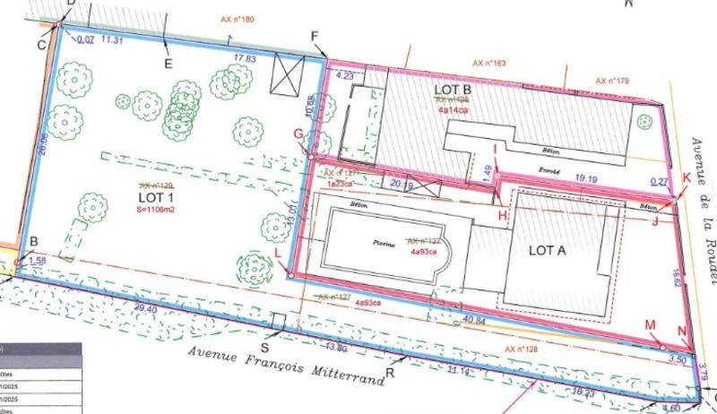
TERRAINTerrain à Libourne (33500)Beau terrain de 1 106 m², situé proche du quartier de la Ballastière, à deux pas du Point P et à quelques minutes du centre-ville avec commerces, écoles et transports.Terrain à Libourne (33500)Beau terrain de 1 106 m², situé proche du quartier de la Ballastière, à deux pas du Point P et à quelques minutes du centre-ville avec commerces, écoles et transports.Localisation idéale : zone commerciale et industriel à proximité, arrêts de bus vers le centre et la gare, branchement d’autoroute à 500 m, accès lac des Dagueys 100 m et services immédiats sur l’avenue.Classé en zone UC du PLU, le terrain offre environ 270 m² au rez-de-chaussée et 180 m² au 1er étage, avec possibilité de bâtiment commercial en bas et habitations à l’étage, tout en conservant un grand espace extérieur.Caractéristiques principales :Superficie : 1 106 m²Zone UC (PLU) – 270 m² RDC + 180 m² étageTerrain plat, viabilisable et bien exposéUsage mixte possible : commercial + logementsPrix : 150 000 €Un emplacement rare pour un projet ambitieux dans un secteur stratégique de Libourne. Les honoraires sont à la charge du vendeur.Les informations sur les risques auxquels ce bien est exposé sont disponibles sur le site Géorisques : www. georisques. gouv. fr.Contactez Djemel BELAGOUNE Entrepreneur Individuel à Responsabilité Limitée, Agent commercial OptimHome (RSAC N(Numéro supprimé) Greffe de LIBOURNE) (Numéro supprimé) (réf. 598384 )
Saint-Sulpice-et-Cameyrac
TERRAIN ET MAISONVotre futur chez-vous vous attend ! Découvrez ce charmant terrain à bâtir, l’endroit idéal pour créer la maison qui vous ressemble et profitez ce chaleureux repas dans son jardin.Situé dans un quartier agréable et bien desservi, il offre un cadre de vie paisible tout en restant proche des commodités. Ce que vous allez aimer : une surface idéale pour une maison familiale avec jardin Environnement calme et verdoyant Proximité des écoles, commerces Contactez Léonie au (Numéro supprimé) pour plus d’information sur votre projet de construction, c’est peu être le terrain de vos rêves !
Libourne
TERRAIN ET MAISONLibourne : maison F4 (90 m²) en venteIDÉALEMENT SITUÉE – MAISON 4 PIÈCES NEUVE Ayez le coup de coeur pour à vendre, idéalement située dans Libourne (33500), cette maison de 4 pièces de plain-pied de 90 m². Elle comporte trois chambres, une cuisine et une salle de bains.Le terrain du bien est de 636 m².La maison est neuve.Cette maison se trouve dans un quartier recherché. Il y a des écoles (de la maternelle au lycée) à moins de 10 minutes à pied, tout comme trois crèches. Niveau transports, on trouve la gare Libourne dans les environs. L’autoroute A89 et la nationale N89 sont accessibles à moins de 7 km. Il y a une bibliothèque, des commerces, des boulangeries, deux supermarchés, une supérette et des boucheries-charcuteries à quelques minutes de la maison. Le marché Place Surchamp anime le quartier.Elle est proposée à l’achat pour 234 690 €.Contactez notre agence (David CAZAUBON : (Numéro supprimé)) pour tout renseignement sur la maison ou sur les démarches à suivre. Donnez vie à vos projets immobiliers avec Batisoft Bordeaux.
Saint-Sulpice-et-Cameyrac
TERRAINTerrain de 899 m² à vendre à Saint-Sulpice-et-CameyracIDÉALEMENT SITUÉ – PROCHE DE BORDEAUXEn vente à quelques kilomètres de Bordeaux à Saint-Sulpice-et-Cameyrac (33450), grand terrain. Il donne sur un jardin et bénéficie d’une exposition sud. Dans un secteur attractif, le terrain idéalement situé est proche des commerces et des écoles. Il y a l’École Élementaire le Cedre Bleu et l’École Maternelle les Ecureuils à moins de 10 minutes à pied. Niveau transports en commun, on trouve la gare Saint-Sulpice-Izon juste à côté. Les autoroutes A10 et A630 et les nationales N89 et N230 sont accessibles à moins de 10 km. Il y a un tennis, des commerces, deux boulangeries, une poissonnerie, deux épiceries et un bureau de poste dans les environs.Ce terrain est à vendre pour la somme de 110 000 €. Contactez Tony JAMIN (Numéro supprimé) pour obtenir de plus amples informations sur le terrain.
L’actualité immobilière à Arveyres
27/11/2023
02/11/2023
30/10/2023
20/10/2023
16/10/2023
16/10/2023