Terrain constructible
Images
Description
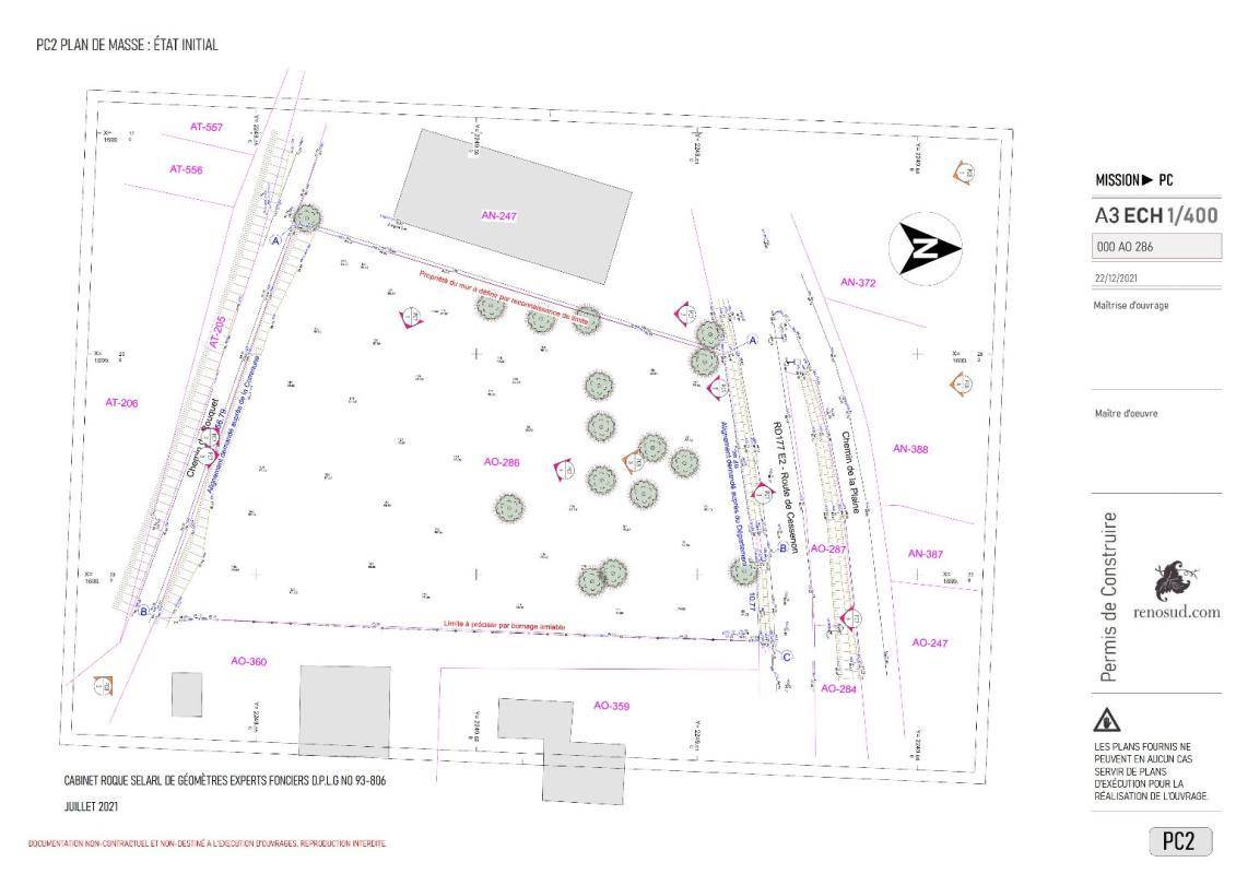
Saisissez la rare occasion d'acquérir 3105 m² de terrain constructible situé dans le charmant village viticole de Pradez-Sur-Vernazobre, à proximité de la dynamique ville de marché de Saint Chinian. Cette parcelle presque plate présente un aspect légèrement inclinée et dispose de raccordements essentiels à l'eau, aux égouts et à l'électricité, en faisant une toile de fond idéale pour votre future maison.
Un permis de construire a été accordé pour une villa contemporaine exceptionnelle de 195 m², conçue avec soin par un architecte britannique. Le projet comprend des équipements modernes tels qu'une piscine privée et de magnifiques jardins paysagers. Bien que des circonstances personnelles aient interrompu la progression du projet, cela vous ouvre la porte pour créer immédiatement votre résidence de rêve.
Dans un marché comportant des parcelles plus petites, ce vaste site offre une opportunité exceptionnelle de développement substantiel, s'adressant à ceux qui souhaitent construire une maison privée significative avec de grands jardins. De plus, reconnaissant que la parcelle entière peut dépasser certains budgets, nous sommes ravis de proposer une option pour acheter la moitié du terrain (Voir Ref ).
Bien que vous ne souhaitiez peut-être jamais quitter votre nouvelle maison sereine, vous vous trouverez à seulement quelques minutes de vélo de la magnifique rivière Orb et de tous les commerces. Cessenon-sur-Orb et ses belles plages fluviales ne sont qu'à 5 km, tandis que le village pittoresque de Roquebrun se trouve à 10 km. La ville animée de Béziers est accessible en environ 30 minutes en voiture, et 15 minutes de plus vous mèneront vers les plages de sable méditerranéennes.
Ne manquez pas cette incroyable opportunité de créer votre sanctuaire parfait dans un emplacement idyllique !
Logement susceptibles de vous intéresser
Nous vous proposons de découvrir aussi cette sélection de logements situés à moins de 10km de Prades-sur-Vernazobre et qui seraient susceptibles de vous intéresser.
Prades-sur-Vernazobre
TERRAINSaisissez la rare occasion d’acquérir 3105 m² de terrain constructible situé dans le charmant village viticole de Pradez-Sur-Vernazobre, à proximité de la dynamique ville de marché de Saint Chinian. Cette parcelle presque plate présente un aspect légèrement inclinée et dispose de raccordements essentiels à l’eau, aux égouts et à l’électricité, en faisant une toile de fond idéale pour votre future maison.Un permis de construire a été accordé pour une villa contemporaine exceptionnelle de 195 m², conçue avec soin par un architecte britannique. Le projet comprend des équipements modernes tels qu’une piscine privée et de magnifiques jardins paysagers. Bien que des circonstances personnelles aient interrompu la progression du projet, cela vous ouvre la porte pour créer immédiatement votre résidence de rêve.Dans un marché comportant des parcelles plus petites, ce vaste site offre une opportunité exceptionnelle de développement substantiel, s’adressant à ceux qui souhaitent construire une maison privée significative avec de grands jardins. De plus, reconnaissant que la parcelle entière peut dépasser certains budgets, nous sommes ravis de proposer une option pour acheter la moitié du terrain (Voir Ref ).Bien que vous ne souhaitiez peut-être jamais quitter votre nouvelle maison sereine, vous vous trouverez à seulement quelques minutes de vélo de la magnifique rivière Orb et de tous les commerces. Cessenon-sur-Orb et ses belles plages fluviales ne sont qu’à 5 km, tandis que le village pittoresque de Roquebrun se trouve à 10 km. La ville animée de Béziers est accessible en environ 30 minutes en voiture, et 15 minutes de plus vous mèneront vers les plages de sable méditerranéennes.Ne manquez pas cette incroyable opportunité de créer votre sanctuaire parfait dans un emplacement idyllique !
Cessenon-sur-Orb
TERRAINVENTE : terrain de 480 m² à Cessenon-sur-OrbEMPLACEMENT PRIVILÉGIÉ – PROCHE DE BÉZIERSÀ 34 km de la mer Méditerranée et à deux pas de Béziers à Cessenon-sur-Orb (34460), terrain de 480 m². Il est prêt à accueillir votre résidence principale ou secondaire pour toute la famille. Il donne sur un espace vert. Dans un secteur convoité, ce terrain bénéficiant d’un emplacement d’exception est proche des écoles et des commerces. Il y a trois établissements scolaires à moins de 10 minutes à pied et dont le Collège Basile Rouaix, Unité Pédagogique de Proximité Collège Jean Jaurès Saint-Chinian et l’École Élémentaire les Oliviers. L’autoroute A75 est accessible à 20 km. On trouve un tennis, un supermarché, trois boulangeries, une boucherie-charcuterie et un bureau de poste dans les environs.Il est proposé à l’achat pour 75 000 €. Prenez contact avec Léo RENARD (tél : (Numéro supprimé)) pour plus de renseignements sur le terrain, sur les modalités de vente ou sur les démarches à suivre. Maisons France Confort Béziers vous accompagne à toutes les étapes de l’achat et dans tous vos projets immobiliers.
Cessenon-sur-Orb
TERRAIN ET MAISONVENTE : maison T5 (110 m²) à Cessenon-sur-OrbEMPLACEMENT PRIVILÉGIÉ – MAISON 5 PIÈCES NEUVEÀ 34 km de la mer Méditerranée et à deux pas de Béziers, à vendre bénéficiant d’un emplacement privilégié dans Cessenon-sur-Orb (34460), Maisons France Confort Béziers vous présente cette maison de 5 pièces de plain-pied de 110 m². Elle compte quatre chambres, une cuisine et deux salles de bains.Le terrain du bien s’étend sur 480 m².La maison est neuve.La maison se trouve dans un quartier convoité. Il y a trois établissements scolaires à moins de 10 minutes à pied et dont le Collège Basile Rouaix, Unité Pédagogique de Proximité Collège Jean Jaurès Saint-Chinian et l’École Élémentaire les Oliviers. Il y a un accès à l’autoroute A75 à 20 km. On trouve un tennis, un supermarché, trois boulangeries, une boucherie-charcuterie et un bureau de poste dans les environs.Elle est proposée à l’achat pour 270 000 €.Contactez Léo RENARD ((Numéro supprimé)) pour tout renseignement sur la maison ou sur les modalités de vente.
Cessenon-sur-Orb
TERRAIN ET MAISONVENTE : maison F4 (100 m²) à Cessenon-sur-OrbEMPLACEMENT PRIVILÉGIÉ – MAISON 4 PIÈCES NEUVEEn vente : située à 34 km de la côte méditerranéenne et à quelques kilomètres de Béziers, nous sommes ravis de vous présenter, bénéficiant d’un emplacement d’exception dans Cessenon-sur-Orb (34460), cette maison de 4 pièces de plain-pied de 100 m² et de 480 m² de terrain. Conçue de plain-pied, elle inclut trois chambres, une cuisine et deux salles de bains.La maison est neuve.Cette maison se trouve dans un quartier convoité. Trois établissements scolaires sont implantés à moins de 10 minutes à pied, tout comme, comme le Collège Basile Rouaix, Unité Pédagogique de Proximité Collège Jean Jaurès Saint-Chinian ou l’École Élémentaire les Oliviers. L’autoroute A75 est accessible à 20 km. Il y a un tennis, un supermarché, trois boulangeries, une boucherie-charcuterie et un bureau de poste dans les environs.Elle est à vendre pour la somme de 272 000 €.Contactez Léo RENARD (tél : (Numéro supprimé)) pour toute information sur la maison. Maisons France Confort Béziers vous accompagne dans tous vos projets immobiliers et à toutes les étapes de l’achat.
Cessenon-sur-Orb
TERRAIN ET MAISONCessenon-sur-Orb : maison T4 (78 m²) en venteIDÉALEMENT SITUÉE – MAISON 4 PIÈCES NEUVEEn vente : à 34 km de la mer Méditerranée et à 20 km de Béziers, découvrez cette maison de 4 pièces de 78 m² et de 575 m² de terrain idéalement située dans Cessenon-sur-Orb (34460).Cette maison comporte 2 niveaux. Son intérieur comporte trois chambres, une cuisine et une salle de bains. Cette maison est neuve.La maison se trouve dans un quartier attractif. Trois établissements scolaires sont implantés à moins de 10 minutes à pied, tout comme, comme le Collège Basile Rouaix, Unité Pédagogique de Proximité Collège Jean Jaurès Saint-Chinian ou l’École Élémentaire les Oliviers. L’autoroute A75 est accessible à 20 km. Il y a un tennis, un supermarché, trois boulangeries, une boucherie-charcuterie et un bureau de poste dans les environs.Elle est proposée à l’achat pour 238 000 €.Contactez notre agence (Léo RENARD : (Numéro supprimé)) pour obtenir de plus amples informations sur la maison. Donnez vie à vos projets immobiliers avec Maisons de Manon Béziers.
Cessenon-sur-Orb
TERRAIN ET MAISONCessenon-sur-Orb : maison F5 (98 m²) en venteIDÉALEMENT SITUÉE – MAISON 5 PIÈCES NEUVEEn vente à 34 km de la mer Méditerranée et à deux pas de Béziers, idéalement située dans Cessenon-sur-Orb (34460), laissez vous charmer par cette maison de 5 pièces de 98 m² et de 575 m² de terrain. Elle propose quatre chambres, une cuisine et une salle de bains.Cette maison possède 2 niveaux. Elle est neuve.Cette maison est située dans un quartier convoité. On trouve trois établissements scolaires à moins de 10 minutes à pied et dont le Collège Basile Rouaix, Unité Pédagogique de Proximité Collège Jean Jaurès Saint-Chinian et l’École Élémentaire les Oliviers. Il y a un accès à l’autoroute A75 à 20 km. Il y a un tennis, un supermarché, trois boulangeries, un bureau de poste et une boucherie-charcuterie dans les environs.Son prix de vente est de 268 000 €.Contactez Léo RENARD (tél : (Numéro supprimé)) pour obtenir de plus amples informations sur la maison. Maisons de Manon Béziers est là pour vous accompagner à toutes les étapes de l’achat.
Cessenon-sur-Orb
TERRAINTerrain de 575 m² à vendre à Cessenon-sur-OrbIDÉALEMENT SITUÉ – PROCHE DE BÉZIERSÀ Cessenon-sur-Orb (34460) à 34 km de la côte méditerranéenne et à 20 km de Béziers, donnez vie à votre résidence principale ou secondaire sur ce terrain de 575 m². Il donne sur un espace vert. Dans un secteur convoité, ce terrain idéalement situé est proche des commerces et des écoles. Trois établissements scolaires sont implantés à moins de 10 minutes à pied, tout comme, comme le Collège Basile Rouaix, Unité Pédagogique de Proximité Collège Jean Jaurès Saint-Chinian ou l’École Élémentaire les Oliviers. On trouve un accès à l’autoroute A75 à 20 km. On trouve un tennis, un supermarché, trois boulangeries, une boucherie-charcuterie et un bureau de poste à proximité.Ce terrain est proposé à l’achat pour 83 000 €. Prenez contact avec Léo RENARD ((Numéro supprimé)) pour toute question sur le terrain, sur les démarches à suivre et sur les modalités de vente.
Cessenon-sur-Orb
TERRAIN ET MAISONMaison de 3 pièces (71 m²) en vente à Cessenon-sur-OrbEMPLACEMENT PRIVILÉGIÉ – MAISON 3 PIÈCES NEUVEEn vente : localisée à 34 km de la mer Méditerranée et à 20 km de Béziers, nous sommes heureux de vous présenter cette maison de 3 pièces de plain-pied de 71 m², bénéficiant d’un emplacement d’exception dans Cessenon-sur-Orb (34460). Son intérieur comporte deux chambres, une cuisine et une salle de bains.Le terrain de cette maison est de 480 m².Cette maison est neuve.La maison se situe dans un quartier recherché. On trouve trois établissements scolaires à moins de 10 minutes à pied et, comme le Collège Basile Rouaix, Unité Pédagogique de Proximité Collège Jean Jaurès Saint-Chinian ou l’École Élémentaire les Oliviers. L’autoroute A75 est accessible à 20 km. Il y a un tennis, un supermarché, trois boulangeries, un bureau de poste et une boucherie-charcuterie à quelques minutes du logement.Elle est proposée à l’achat pour 205 000 €.Prenez contact avec notre agence (Léo RENARD : (Numéro supprimé)) pour obtenir de plus amples renseignements sur le bien et sur les démarches à suivre.
Cessenon-sur-Orb
TERRAIN ET MAISONVENTE : maison de 4 pièces (85 m²) à Cessenon-sur-OrbIDÉALEMENT SITUÉE – MAISON 4 PIÈCES NEUVEEn vente à 34 km de la côte méditerranéenne et à deux pas de Béziers, votre agence Maisons de Manon Béziers est heureuse de vous présenter cette maison de 4 pièces de plain-pied de 85 m² et de 575 m² de terrain, idéalement située dans Cessenon-sur-Orb (34460).Conçue de plain-pied, elle est composée de trois chambres, d’une cuisine et d’une salle de bains. Cette maison est neuve.La maison se trouve dans un quartier convoité. Il y a trois établissements scolaires à moins de 10 minutes à pied et, parmi lesquels le Collège Basile Rouaix, Unité Pédagogique de Proximité Collège Jean Jaurès Saint-Chinian et l’École Élémentaire les Oliviers. Il y a un accès à l’autoroute A75 à 20 km. On trouve un tennis, un supermarché, trois boulangeries, un bureau de poste et une boucherie-charcuterie à proximité.Elle est proposée à l’achat pour 228 000 €.N’hésitez pas à prendre contact avec Léo RENARD (tél : (Numéro supprimé)) pour obtenir de plus amples renseignements sur le bien, sur les démarches à suivre ou sur les modalités de vente. Maisons de Manon Béziers est là pour vous accompagner dans tous vos projets immobiliers.
L’actualité immobilière à Prades-sur-Vernazobre
27/11/2023
02/11/2023
30/10/2023
20/10/2023
16/10/2023
16/10/2023