Terrains libres de constructeur Chavagne - sud du centre bourg
Images
Description
10 TERRAINS LIBRE DE CONSTRUCTEUR DISPONIBLES DANS LE SECTEUR DE LA TOUCHE À CHAVAGNE
Située à 12 km au sud-ouest de Rennes, sur l'axe Rennes-Lorient, Chavagne est une commune de Rennes Métropole de plus de 4 200 habitants. Connectée aux réseaux de bus STAR et inscrite dans une démarche de développement durable, la commune profite d'une véritable attractivité et d'un patrimoine naturel riche : étangs, bois, rivières, allées boisées ...
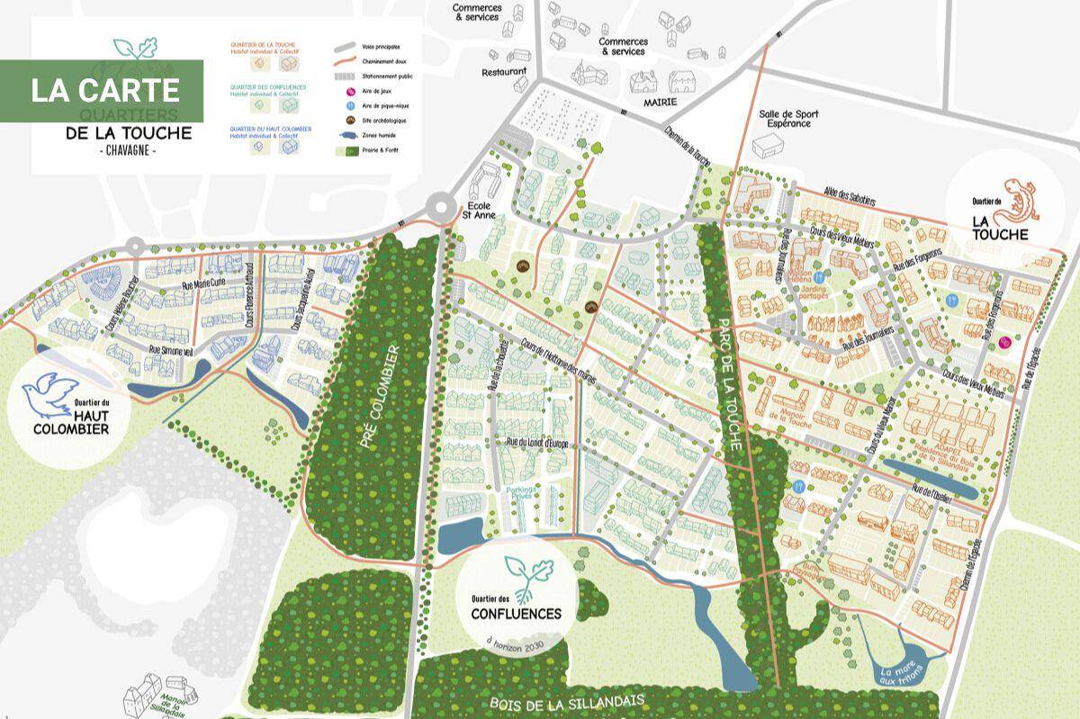
Bordé par le bois de la Sillandais et de nombreux points d'eau, le projet des quartiers de la Touche dessine un nouveau secteur à dominante résidentielle structuré par les espaces naturels du site.
Le secteur Confluences en cours de commercialisation est bordé par deux grands espaces naturels : le parc de La Touche, le Pré-Colombier et le Bois de la Sillandais. A proximité de grands espaces naturels, le cadre de vie proposé est aussi à proximité des services du centre-bourg, juste au sud de l'école Sainte-Anne de Chavagne.
Sur toutes nos offres, bénéficiez de frais de notaire réduits, grâce à une réduction directement appliquée sur les droits de mutation à titre onéreux applicables aux ventes de biens immobiliers.
Toutes les informations sont à retrouver sur le site de Territoires Rennes, dans la rubrique terrains à vendre.
Logement susceptibles de vous intéresser
Nous vous proposons de découvrir aussi cette sélection de logements situés à moins de 10km de Chavagne et qui seraient susceptibles de vous intéresser.
Goven
TERRAINÀ vendre, terrain à bâtir viabilisé de 352 m² situé dans la commune de Goven, au calme et dans un environnement agréable. Proche des commerces, des écoles et des transports, ce terrain offre un cadre idéal pour votre futur projet de construction. // Réf. : T210484. Prix terrain : 69 900 €, hors frais d'agence et de notaire à la charge de l'acquéreur. Ce terrain vous est proposé, par nos partenaires fonciers, dans le cadre d'un projet de construction avec nous. Les informations sur les risques auxquels ce bien est exposé sont disponibles sur le site Géorisques (www.georisques.gouv.fr).
Goven
TERRAIN ET MAISONÀ vendre, terrain à bâtir viabilisé de 352 m² situé dans la commune de Goven, au calme et dans un environnement agréable. Proche des commerces, des écoles et des transports, ce terrain offre un cadre idéal pour votre futur projet de construction. Lignes contemporaines & espaces optimisés ! Offrez-vous une maison personnalisable, conçue pour le confort et la convivialité. Avec 4 chambres, dont une suite parentale avec dressing et salle d’eau au rez-de-chaussée, cette maison allie fonctionnalité et élégance. Son vaste espace de vie lumineux est l’endroit idéal pour partager des moments en famille. À l’étage, trois chambres bien agencées, une salle de bain moderne et un WC séparé offrent un espace nuit parfait. Un garage et un cellier viennent compléter ce projet pensé pour s’adapter à votre style de vie. Pour un confort optimal et conforme à la RE2025, cette maison dispose d’une PAC avec plancher chauffant, radiateurs à l’étage et volets roulants électriques. À noter : Le prix indiqué exclut les revêtements de sol des chambres, la cuisine aménagée, la peinture, la décoration, les raccordements, les frais de notaire et l’assurance dommages-ouvrage. N’attendez plus pour concrétiser votre projet de vie ! Contactez-nous pour plus d’informations et une étude personnalisée. // Réf. : 593-210484-ALT. Prix terrain : 69 900 €, hors frais d'agence à la charge de l'acquéreur. Ce terrain vous est proposé, par nos partenaires fonciers, dans le cadre d'un projet de construction avec nous. Les informations sur les risques auxquels ce bien est exposé sont disponibles sur le site Géorisques (www.georisques.gouv.fr). Prix maison : 287 712 €.
Goven
TERRAIN ET MAISONÀ vendre, terrain à bâtir viabilisé de 352 m² situé dans la commune de Goven, au calme et dans un environnement agréable. Proche des commerces, des écoles et des transports, ce terrain offre un cadre idéal pour votre futur projet de construction. Une maison spacieuse et élégante, conçue pour vous !. Découvrez ce modèle moderne de plus de 140 m², pensé pour allier confort et luminosité. Son vaste salon-séjour de 45 m², baigné de lumière, s’ouvre sur une cuisine conviviale. Une suite parentale au rez-de-chaussée avec dressing et salle d’eau privative, deux chambres et un bureau à l’étage, parfait pour le télétravail ou une chambre d’appoint. Garage et cellier attenant, pour un quotidien pratique et organisé. Pour un confort optimal et conforme à la RE2025, cette maison dispose d’une PAC avec plancher chauffant au rez-de-chaussée, radiateurs à l’étage et volets roulants électriques. À noter : Le prix indiqué exclut les revêtements de sol des chambres, la cuisine aménagée, la peinture, la décoration, les raccordements, les frais de notaire et l’assurance dommages-ouvrage. // Réf. : 538-210484-ALT. Prix terrain : 69 900 €, hors frais d'agence à la charge de l'acquéreur. Ce terrain vous est proposé, par nos partenaires fonciers, dans le cadre d'un projet de construction avec nous. Les informations sur les risques auxquels ce bien est exposé sont disponibles sur le site Géorisques (www.georisques.gouv.fr). Prix maison : 324 945 €.
Goven
TERRAIN ET MAISONÀ vendre, terrain à bâtir viabilisé de 352 m² situé dans la commune de Goven, au calme et dans un environnement agréable. Proche des commerces, des écoles et des transports, ce terrain offre un cadre idéal pour votre futur projet de construction. Offrez-vous une maison où chaque espace est conçu pour répondre aux exigences du quotidien, tout en alliant modernité et fonctionnalité. Son agencement optimisé propose une pièce de vie lumineuse et spacieuse, véritable cœur de la maison, idéale pour partager des moments inoubliables. Avec trois chambres accueillantes, un bureau polyvalent, une salle de bain élégante et un cellier astucieux, tout a été pensé pour une organisation fluide et harmonieuse. Son garage intégré facilite votre quotidien en offrant praticité et sécurité. Dotée d’une architecture contemporaine et d’un système de chauffage performant, cette maison assure un confort optimal toute l’année. Un cadre de vie idéal pour une famille en quête d’espace et de bien-être. Pour vous assurer un confort de vie et conformément à la RE2025, nous avons choisi un mode de chauffage par PAC + plancher chauffant, volets roulants électriques. Prix hors peinture, décoration, revêtements de sol dans les chambres, cuisine équipée, frais de notaire, raccordements, dommage ouvrage. // Réf. : 2648-210484-ALT. Prix terrain : 69 900 €, hors frais d'agence à la charge de l'acquéreur. Ce terrain vous est proposé, par nos partenaires fonciers, dans le cadre d'un projet de construction avec nous. Les informations sur les risques auxquels ce bien est exposé sont disponibles sur le site Géorisques (www.georisques.gouv.fr). Prix maison : 173 929 €.
Goven
TERRAINÀ vendre, terrain à bâtir viabilisé de 352 m² situé dans la commune de Goven, au calme et dans un environnement agréable. Proche des commerces, des écoles et des transports, ce terrain offre un cadre idéal pour votre futur projet de construction. // Réf. : T210484. Prix terrain : 69 900 €, hors frais d'agence et de notaire à la charge de l'acquéreur. Ce terrain vous est proposé, par nos partenaires fonciers, dans le cadre d'un projet de construction avec nous. Les informations sur les risques auxquels ce bien est exposé sont disponibles sur le site Géorisques (www.georisques.gouv.fr).
Bréal-sous-Montfort
TERRAIN ET MAISONBRÉAL-SOUS-MONTFORT — UN CADRE DE VIE PRIVILÉGIÉ, PROCHE DE RENNES. Des réalisations modernes, pensées pour votre confort, dans un environnement verdoyant et recherché. Situé à seulement 15 minutes de Rennes, Bréal-sous-Montfort vous offre le parfait équilibre entre nature et accessibilité. • Emplacement stratégique aux portes de Rennes• Environnement paisible et familial• Proximité immédiate des commerces et écoles• Architecture sur-mesure et prestations soignées. Ici, votre projet de construction devient une réalité dans un cadre qui allie qualité de vie et praticité. Bréal-sous-Montfort, une adresse idéale pour bâtir votre avenir. Contactez-nous pour découvrir nos réalisations et concrétiser vos envies !. Un espace de vie idéal pour toute la famille ! Cette maison moderne et fonctionnelle a été conçue pour s’adapter à votre quotidien tout en offrant confort et convivialité. Dès l’entrée, une grande pièce de vie ouverte vous invite à la détente avec son séjour lumineux et sa cuisine spacieuse, parfaite pour partager des moments en famille ou entre amis. Un cellier attenant vient compléter cet espace en apportant une solution de rangement astucieuse. Au rez-de-chaussée, une suite parentale intime et confortable vous offre un espace privé avec sa propre salle d’eau, garantissant tranquillité et bien-être. À l’étage, trois belles chambres lumineuses permettent à chacun de disposer de son propre cocon. Une grande salle de bain familiale et un palier bien agencé viennent compléter cet étage, offrant un confort optimal pour toute la famille. Avec son architecture contemporaine, ses espaces bien répartis et ses finitions soignées, cette maison est le cadre parfait pour construire votre avenir. Pour vous assurer un confort de vie optimal et en conformité avec la RE2025, nous avons opté pour un système de chauffage par pompe à chaleur (PAC) avec plancher chauffant au rez-de-chaussée et radiateurs à l’étage. Le logement est également équipé de volets roulants électriques. Prix hors fourniture et pose : des appareils sanitaires (sauf système de chauffage et d'eau chaude sanitaire), du carrelage et de la faïence, des revêtements de sol dans les chambres. Hors décoration et aménagement intérieur et peinture. Hors raccordements, frais de notaire et dommage ouvrage. // Réf. : 2469-210285-CLM. Prix terrain : 81 500 €, hors frais d'agence à la charge de l'acquéreur. Ce terrain vous est proposé, par nos partenaires fonciers, dans le cadre d'un projet de construction avec nous. Les informations sur les risques auxquels ce bien est exposé sont disponibles sur le site Géorisques (www.georisques.gouv.fr). Prix maison : 167 942 €.
Bréal-sous-Montfort
TERRAIN ET MAISONBRÉAL-SOUS-MONTFORT — UN CADRE DE VIE PRIVILÉGIÉ, PROCHE DE RENNES. Des réalisations modernes, pensées pour votre confort, dans un environnement verdoyant et recherché. Situé à seulement 15 minutes de Rennes, Bréal-sous-Montfort vous offre le parfait équilibre entre nature et accessibilité. • Emplacement stratégique aux portes de Rennes• Environnement paisible et familial• Proximité immédiate des commerces et écoles• Architecture sur-mesure et prestations soignées. Ici, votre projet de construction devient une réalité dans un cadre qui allie qualité de vie et praticité. Bréal-sous-Montfort, une adresse idéale pour bâtir votre avenir. Contactez-nous pour découvrir nos réalisations et concrétiser vos envies !. Agréable et lumineuse, cette maison de plain-pied vous propose une cuisine ouverte sur un vaste séjour traversant de 47 m² environ. L'accès direct cuisine, cellier et garage facilite l'habitabilité de cette maison. L'espace nuit est composé de deux belles chambres avec rangement, d'une salle de bains et des wc séparés. Ses jeux d'enduits personnalisables sauront vous séduirePour vous assurer un confort de vie et conformément à la RE2025, nous avons choisi un mode de chauffage par PAC + plancher chauffant, volets roulants électriques. Prix hors fourniture et pose : des appareils sanitaires (sauf système de chauffage et d'eau chaude sanitaire), du carrelage et de la faïence, des revêtements de sol dans les chambres. Hors décoration et aménagement intérieur et peinture. Hors raccordements, frais de notaire et dommage ouvrage. Préau en option. // Réf. : 1069-210285-CLM. Prix terrain : 81 500 €, hors frais d'agence à la charge de l'acquéreur. Ce terrain vous est proposé, par nos partenaires fonciers, dans le cadre d'un projet de construction avec nous. Les informations sur les risques auxquels ce bien est exposé sont disponibles sur le site Géorisques (www.georisques.gouv.fr). Prix maison : 134 317 €.
Bréal-sous-Montfort
TERRAIN ET MAISONBRÉAL-SOUS-MONTFORT — UN CADRE DE VIE PRIVILÉGIÉ, PROCHE DE RENNES. Des réalisations modernes, pensées pour votre confort, dans un environnement verdoyant et recherché. Situé à seulement 15 minutes de Rennes, Bréal-sous-Montfort vous offre le parfait équilibre entre nature et accessibilité. • Emplacement stratégique aux portes de Rennes• Environnement paisible et familial• Proximité immédiate des commerces et écoles• Architecture sur-mesure et prestations soignées. Ici, votre projet de construction devient une réalité dans un cadre qui allie qualité de vie et praticité. Bréal-sous-Montfort, une adresse idéale pour bâtir votre avenir. Contactez-nous pour découvrir nos réalisations et concrétiser vos envies !. Une maison spacieuse et astucieuse, idéale pour les terrains optimisés ! Grâce à son conception intelligente, cette maison s’intègre parfaitement sur des terrains plus restreints sans compromettre l’espace et le confort. Au rez-de-chaussée, une grande pièce de vie lumineuse vous accueille, offrant une harmonie parfaite entre salon, salle à manger et cuisine ouverte. Un cellier pratique vient compléter cet espace, facilitant le rangement au quotidien. Une salle d’eau et un WC indépendant apportent un confort supplémentaire. L’étage est dédié au repos avec quatre chambres bien agencées, permettant à chaque membre de la famille de disposer de son propre espace. Une salle de bain fonctionnelle et un second WC garantissent une organisation fluide pour toute la famille. Une maison moderne, compacte et optimisée, idéale pour profiter pleinement de votre terrain !. Pour vous assurer un confort de vie optimal et en conformité avec la RE2025, nous avons opté pour un système de chauffage par pompe à chaleur (PAC) avec plancher chauffant au rez-de-chaussée et radiateurs à l’étage. Le logement est également équipé de volets roulants électriques. Prix hors fourniture et pose : des appareils sanitaires (sauf système de chauffage et d'eau chaude sanitaire), du carrelage et de la faïence, des revêtements de sol dans les chambres. Hors décoration et aménagement intérieur et peinture. Hors raccordements, frais de notaire et dommage ouvrage. // Réf. : 1555-210285-CLM. Prix terrain : 81 500 €, hors frais d'agence à la charge de l'acquéreur. Ce terrain vous est proposé, par nos partenaires fonciers, dans le cadre d'un projet de construction avec nous. Les informations sur les risques auxquels ce bien est exposé sont disponibles sur le site Géorisques (www.georisques.gouv.fr). Prix maison : 166 015 €.
Bréal-sous-Montfort
TERRAINBRÉAL-SOUS-MONTFORT — UN CADRE DE VIE PRIVILÉGIÉ, PROCHE DE RENNES. Des réalisations modernes, pensées pour votre confort, dans un environnement verdoyant et recherché. Situé à seulement 15 minutes de Rennes, Bréal-sous-Montfort vous offre le parfait équilibre entre nature et accessibilité. • Emplacement stratégique aux portes de Rennes• Environnement paisible et familial• Proximité immédiate des commerces et écoles• Architecture sur-mesure et prestations soignées. Ici, votre projet de construction devient une réalité dans un cadre qui allie qualité de vie et praticité. Bréal-sous-Montfort, une adresse idéale pour bâtir votre avenir. Contactez-nous pour découvrir nos réalisations et concrétiser vos envies !. // Réf. : T210285. Prix terrain : 81 500 €, hors frais d'agence et de notaire à la charge de l'acquéreur. Ce terrain vous est proposé, par nos partenaires fonciers, dans le cadre d'un projet de construction avec nous. Les informations sur les risques auxquels ce bien est exposé sont disponibles sur le site Géorisques (www.georisques.gouv.fr).
L’actualité immobilière à Chavagne
27/11/2023
02/11/2023
30/10/2023
20/10/2023
16/10/2023
16/10/2023