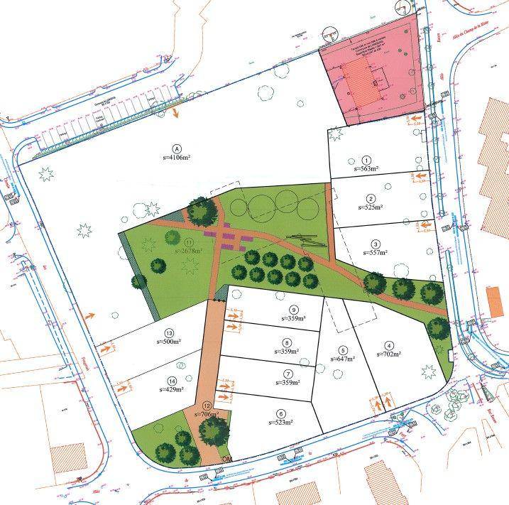
LANGEAIS - Terrains à bâtir prêts à construire !
Images
Description
EXCLUSIVITE Val Touraine Habitat !
Venez découvrir le lotissement " Les Mistrais" à LANGEAIS.
Les terrains à bâtir, vendus bornés et viabilisés (branchements : eau potable, électricité, télécoms et réseaux d'assainissement eaux usées et eaux pluviales), sont prêts à construire avec le libre choix de votre constructeur.
Secteur à fort potentiel de valorisation, parfait pour une résidence principale ou un investissement locatif, grâce à l'attractivité résidentielle et une demande locative soutenue pour un investissement rentable
Les terrains sont éligibles au Prêt à Taux Zéro (PTZ) : profitez-en pour devenir propriétaire dès maintenant ! (*)
Je suis à votre écoute pour étudier votre projet de construction, répondre à toutes vos questions et vous offrir un accompagnement personnalisé et confidentiel, pour donner vie à votre future maison en toute sérénité.
=> Contactez-moi dès aujourd'hui pour recevoir le dossier complet du lotissement, les plans des lots et la grille des prix.
Je serai ravi de vous rencontrer et de vous accompagner dans votre projet :
o Miguel De FARIA : (Numéro supprimé).
(*) voir conditions auprès de votre conseiller
Logement susceptibles de vous intéresser
Nous vous proposons de découvrir aussi cette sélection de logements situés à moins de 10km de Langeais et qui seraient susceptibles de vous intéresser.
Vallères
TERRAINBeau terrain dans un petit lotissement. Belle orientation. Belle façade. // Réf. : T213461. Prix terrain : 81 000 €, hors frais d'agence et de notaire à la charge de l'acquéreur. Ce terrain vous est proposé, par nos partenaires fonciers, dans le cadre d'un projet de construction avec nous. Les informations sur les risques auxquels ce bien est exposé sont disponibles sur le site Géorisques (www.georisques.gouv.fr).
Bréhémont
TERRAINNous avons le plaisir de vous présenter un terrain spacieux de 570 m², situé dans la charmante commune de Bréhémont, en Indre-et-Loire. Ce terrain non viabilisé constitue une toile blanche idéale pour réaliser votre projet de construction de maison. Son orientation et sa surface généreuse en font un espace privilégié pour profiter de la nature tout en étant à proximité des commodités nécessaires à un cadre de vie agréable. Bréhémont, lovée au cœur du département d’Indre-et-Loire, offre un cadre de vie paisible, agrémenté par sa proximité des principaux axes de circulation. La commune se distingue par ses paysages pittoresques et ses nombreuses activités de plein air, dont l’accès à la Loire et ses pistes cyclables. Les habitants bénéficient également de commerces de proximité et d’infrastructures scolaires, ce qui en fait un lieu rêvé pour les familles souhaitant s’installer dans un environnement sûr et accueillant. En outre, vous serez à quelques minutes des richesses culturelles que regorge la région, notamment les célèbres châteaux de la Loire. Ce terrain représente une opportunité unique pour concrétiser vos rêves d’architecture et d’aménagement, au sein d’une commune qui allie tranquillité et dynamisme. N’hésitez pas à nous contacter pour davantage d’informations et envisager de faire de ce terrain le lieu de votre futur chez-vous.
Vallères
TERRAIN ET MAISONSur ce terrain, nous vous proposons cette maison neuve : la Conception, un modèle exclusif signé Maisons Concept, constructeur reconnu pour offrir le meilleur rapport qualité/prix du marché.Cette maison contemporaine à étage, d’une superficie de 110 m², allie lignes traditionnelles et touches de design moderne pour une esthétique épurée et captivante. La Conception se distingue par son architecture compacte et son garage accolé à toit plat, garantissant une intégration harmonieuse dans son environnement.À l’intérieur, la Conception est pensée pour le confort et la fonctionnalité. Elle offre 4 chambres spacieuses dont une suite parentale, ainsi qu’une vaste pièce de vie ouverte, idéale pour partager des moments conviviaux en famille ou entre amis. La dalle béton à l’étage assure une isolation phonique et thermique optimale, renforçant le confort au quotidien.Cette maison neuve est conforme à la norme RE2020, gage de basse consommation énergétique et de respect des exigences environnementales les plus récentes. Les options les plus plébiscitées, telles que la domotique ou les menuiseries aluminium, sont disponibles afin de personnaliser votre future maison selon vos envies.Optez pour la Conception et découvrez une maison où chaque détail est pensé pour offrir une expérience de vie harmonieuse et moderne. Ne manquez pas cette opportunité unique de devenir propriétaire d’un modèle alliant élégance, praticité et performance énergétique.
Vallères
TERRAIN ET MAISONNous vous proposons cette maison neuve, baptisée « »Mobilité » », conçue pour répondre aux besoins des familles souhaitant devenir propriétaires à un prix abordable. Avec une surface habitable de 86 m², cette maison à étage, issue de notre gamme Primaciel dédiée aux primo-accédants, est l’option idéale pour ceux qui cherchent à s’installer confortablement en zone urbaine sans sacrifier la qualité de vie.La Mobilité se distingue par son agencement bien pensé, offrant un espace de vie généreux de près de 40 m² au rez-de-chaussée, comprenant une cuisine ouverte pour plus de convivialité. Ce niveau accueille également une chambre de 11 m², parfaite pour une suite parentale, grâce à sa salle d’eau attenante de 4.8 m² et des WC séparés.L’étage est conçu pour le repos et la détente, avec deux chambres mansardées pleines de charme, une seconde salle d’eau et des WC séparés, garantissant ainsi confort et intimité à chaque membre de la famille. Les combles aménagés offrent un potentiel supplémentaire d’espace de vie ou de rangement.Un grand garage intégré de 12 m² assure un espace sécurisé pour votre véhicule ou peut servir d’espace de stockage supplémentaire. La Mobilité ne lésine pas sur les équipements et les options de personnalisation. Les menuiseries en aluminium et la possibilité d’ajouter une pergola sont parmi les options les plus prisées, alliant esthétique et fonctionnalité. Cette maison est également conforme à la norme RE2020, garantissant une basse consommation énergétique grâce à une isolation optimale et la possibilité d’opter pour une pompe à chaleur, alternative moderne à la chaudière à condensation.En choisissant la Mobilité, vous optez pour une maison familiale à prix abordable, sans compromis sur le confort et la modernité. Une maison où chaque détail a été pensé pour répondre aux attentes des familles d’aujourd’hui. Faites le premier pas vers la maison de vos rêves, une maison qui grandit avec vous.
Vallères
TERRAINNous avons le plaisir de vous présenter un terrain à vendre d’une surface généreuse de 611 m², idéalement situé dans la charmante commune de Vallères, en Indre-et-Loire, au cœur de la région Centre-Val de Loire. Ce terrain non viabilisé offre une opportunité exceptionnelle pour la construction de votre future maison, vous permettant de personnaliser chaque détail selon vos souhaits. Profitez de l’espace de vie que vous méritez, dans un environnement paisible et naturel, parfait pour établir votre projet de vie. Vallères est une ville dynamique, riche en patrimoine et offrant de nombreuses commodités locales, telles que des commerces de proximité, des établissements scolaires et des services essentiels. Vous serez également à proximité des attractions touristiques qui font la renommée de l’Indre-et-Loire, comme les châteaux de la Loire et les paysages pittoresques qui entourent la région. La proximité des grands axes routiers facilite vos déplacements vers Tours et les villes environnantes, faisant de ce terrain un emplacement privilégié pour allier tranquillité et accessibilité. Ce terrain représente une opportunité unique pour concrétiser votre projet immobilier dans un cadre agréable et enrichissant. Ne manquez pas cette chance de devenir propriétaire dans un environnement à la fois serein et dynamique. À noter qu’en tant que constructeur, nous ne sommes pas mandatés pour réaliser la vente de ce terrain.
Vallères
TERRAIN ET MAISONDans un cadre calme et agréable, à proximité de l'accès A85, terrain entièrement viabilisé exposé plein sud. Avec ses lignes épurées et son architecture lumineuse, cette maison contemporaine conjugue design et confort. Dès l’entrée, un vaste salon-séjour baigné de lumière s’ouvre sur une cuisine spacieuse, idéale pour les moments de partage. Au rez-de-chaussée, profitez du calme et de l’intimité d’une suite parentale avec dressing et salle d’eau privative. À l’étage, deux belles chambres, un bureau fonctionnel et une salle de bain élégante offrent à chacun son propre espace. Un garage attenant et un cellier bien pensé viennent compléter cet ensemble harmonieux, où chaque mètre carré est optimisé pour répondre à vos besoins. Pour un confort optimal et conforme à la RE2025, cette maison dispose d’une PAC avec plancher chauffant, radiateurs à l’étage et volets roulants électriques. À noter : Le prix indiqué exclut les revêtements de sol des chambres, la cuisine aménagée, la peinture, la décoration, les raccordements, les frais de notaire et l’assurance dommages-ouvrage. Laissez-vous séduire par cette maison moderne et personnalisable – imaginez-la, nous la construisons pour vous !. // Réf. : 1737-213575-JFB. Prix terrain : 69 500 €, hors frais d'agence à la charge de l'acquéreur. Ce terrain vous est proposé, par nos partenaires fonciers, dans le cadre d'un projet de construction avec nous. Les informations sur les risques auxquels ce bien est exposé sont disponibles sur le site Géorisques (www.georisques.gouv.fr). Prix maison : 324 552 €.
Vallères
TERRAINDans un cadre calme et agréable, à proximité de l'accès A85, terrain entièrement viabilisé exposé plein sud. // Réf. : T213575. Prix terrain : 69 500 €, hors frais d'agence et de notaire à la charge de l'acquéreur. Ce terrain vous est proposé, par nos partenaires fonciers, dans le cadre d'un projet de construction avec nous. Les informations sur les risques auxquels ce bien est exposé sont disponibles sur le site Géorisques (www.georisques.gouv.fr).
Langeais
TERRAINEXCLUSIVITE Val Touraine Habitat !Venez découvrir le lotissement » Les Mistrais » à LANGEAIS.Les terrains à bâtir, vendus bornés et viabilisés (branchements : eau potable, électricité, télécoms et réseaux d’assainissement eaux usées et eaux pluviales), sont prêts à construire avec le libre choix de votre constructeur.Secteur à fort potentiel de valorisation, parfait pour une résidence principale ou un investissement locatif, grâce à l’attractivité résidentielle et une demande locative soutenue pour un investissement rentable.Les terrains sont éligibles au Prêt à Taux Zéro (PTZ) : profitez-en pour devenir propriétaire dès maintenant ! (*)Je suis à votre écoute pour étudier votre projet de construction, répondre à toutes vos questions et vous offrir un accompagnement personnalisé et confidentiel, pour donner vie à votre future maison en toute sérénité.=>Contactez-moi dès aujourd’hui pour recevoir le dossier complet du lotissement, les plans des lots et la grille des prix.Je serai ravi de vous rencontrer et de vous accompagner dans votre projet 😮 Miguel De FARIA : (Numéro supprimé).(*) voir conditions auprès de votre conseiller
Vallères
TERRAINÀ vendre, charmant terrain constructible de 500 m² situé dans le lotissement de Vallères, en plein cœur de l’Indre-et-Loire. Ce terrain viabilisé est parfait pour la réalisation de votre projet de maison. Profitez d’un espace généreux au sein d’un cadre paisible, idéal pour bâtir votre havre de paix. La ville de Vallères offre un cadre de vie agréable et serein, propice à la vie de famille. Situé dans le département de l’Indre-et-Loire, Vallères se distingue par ses commodités locales, ses écoles de qualité et la convivialité de ses habitants. Vous bénéficierez d’une accessibilité rapide aux principales voies routières, facilitant ainsi vos déplacements vers Tours, célèbre pour son riche patrimoine culturel et historique. La proximité des espaces verts et des activités de plein air, ainsi que des services pratiques tels que commerces, transports et infrastructures de loisirs, fait de cette localisation un choix privilégié pour les familles cherchant à s’installer dans un environnement accueillant. Ce terrain présente une opportunité rare pour ceux qui souhaitent réaliser leur rêve de construction dans une commune dynamique. N’attendez plus, laissez libre cours à vos projets et envisagez de faire de ce terrain votre futur chez-vous !
L’actualité immobilière à Langeais
27/11/2023
02/11/2023
30/10/2023
20/10/2023
16/10/2023
16/10/2023