Magnifique terrain constructible de 418 m² sur la commune de Saint Martin d'Uriage
Images
Description
Situé au sein de la commune prisée de Saint-Martin-d'Uriage, ce terrain de 418 m² représente une opportunité rare dans un environnement privilégié. Bénéficiant d'une vue dégagée et d'un cadre naturel apaisant, il offre une emprise au sol de 80 m², permettant la réalisation d'une habitation spacieuse et harmonieusement intégrée à son environnement.
Un projet architectural, élaboré par un professionnel qualifié, accompagne ce terrain, avec des plans conçus pour optimiser l'implantation, l'exposition et la qualité de vie. Le coût total du projet, comprenant le terrain et la construction, est d'environ 450 000 euros. Ce projet demeure entièrement modulable afin de répondre aux besoins et préférences du futur acquéreur.
Ce terrain constitue une occasion exceptionnelle d'investir dans un secteur calme, verdoyant, et très recherché, tout en étant à proximité immédiate des commodités et de l'agglomération grenobloise.
Ce terrain représente une excellente opportunité pour ceux qui souhaitent concrétiser un projet de construction dans un secteur recherché, avec l'avantage d'un projet déjà préparé. N'hésitez pas à nous contacter pour plus d'informations ou pour organiser une visite.
Cette annonce référence 273031 vous est présentée par votre agent commercial BSK Immobilier PATRICIA ACQUAVIVA (EI) immatriculé au RSAC de GRENOBLE (38000) sous le numéro 79178938100039.
Prix du bien : 185 000,00 €
Les honoraires d'agence sont à la charge du vendeur.
Les informations sur les risques auxquels ce bien est exposé sont disponibles sur le site Géorisques : www.georisques.gouv.fr
Logement susceptibles de vous intéresser
Nous vous proposons de découvrir aussi cette sélection de logements situés à moins de 10km de Saint-Martin-d'Uriage et qui seraient susceptibles de vous intéresser.
Herbeys
TERRAINVous voulez faire construire sur Herbeys ? Venez découvrir l’emplacement de votre future maison !Située dans un environnement calme et recherché, cette belle parcelle de 1344 m², libre de tout constructeur, offre une vue dégagée ainsi qu’une exposition idéale Sud/Ouest. Informations d’urbanisme (zone UD3d du PLUi) :Emprise au sol : 20 %Hauteur maximale : 9 m au faîtage, 6m à l’égoutPerméabilité des sols : 60 %Dénivelé de 3m entre le chemin d’accès et le point bas du terrainLa parcelle comprend un chemin d’accès privatif ainsi qu’un petit parking partagé (servitude avec deux maisons voisines). La surface réellement exploitable pour la construction est d’environ 1050 m2. Raccordements disponibles : tout-à-l’égout et fibre optique. Le coût des viabilisations est actuellement en cours de chiffrage.Un cadre idéal pour donner vie à votre projet de construction dans un village apprécié pour sa tranquillité et sa proximité de l’agglomération grenobloise. Je reste à votre disposition pour vous présenter ce beau terrain et convenir d’une visite.Cette annonce référence 301320 vous est présentée par votre agent commercial BSK Immobilier ROMAIN ROYANEZ (EI) immatriculé au RSAC de GRENOBLE (38000) sous le numéro 84121263200035.Prix du bien : 259 000,00 €Les honoraires d’agence sont à la charge du vendeur.Les informations sur les risques auxquels ce bien est exposé sont disponibles sur le site Géorisques : www.georisques.gouv.fr
Montbonnot-Saint-Martin
TERRAIN38330 Montbonnot-Saint-Martin – Terrain à bâtir 811 m² -Une adresse rare dans un écrin privilégié au cœur de la vallée du Grésivaudan.Situé à Montbonnot-Saint-Martin, commune très prisée de l’agglomération grenobloise, ce terrain constructible de 811 m² offre une opportunité unique pour réaliser un projet de vie dans un environnement paisible, tout en restant connecté aux commodités urbaines.Les atouts majeurs :oUn cadre de vie recherché : Montbonnot-Saint-Martin séduit pour sa qualité de vie, son dynamisme, ses écoles, ses commerces de proximité, son esprit village tout en étant aux portes de Grenoble.oUne grande parcelle : Avec ses 811 m², cette parcelle offre un beau potentiel de construction – jusqu’à 117 m² de surface de plancher et 128 m² d’emprise au sol – laissant de l’espace pour concevoir une maison confortable et un agréable jardin.oVue dégagée sur Belledonne : Un panorama inspirant au quotidien, dans un quartier paisible à l’environnement verdoyant.oAccès facilité : Proche de l’A41, du site d’Innovallée, et de toutes les infrastructures utiles à une vie active et moderne.Informations complémentaires :oTerrain viabilisé, prêt à bâtir.oSitué dans un petit lotissement de 3 lots, en libre choix de constructeur.oEnvironnement résidentiel, en limite d’équipements sportifs et à proximité de l’autoroute : parfait pour ceux qui recherchent la commodité des accès et une vraie connexion au bassin d’emplois grenoblois.Vous cherchez un terrain bien situé, dans une commune prisée, avec du potentiel ?Ce bien mérite toute votre attention. Contactez Dominique Campion – efficity(Numéro supprimé)(Email supprimé) Les informations sur les risques auxquels ce bien est exposé sont disponibles sur le site Georisque : georisques. gouv. fr Dominique Campion – EI – est Agent Commercial mandataire en immobilier, immatriculé au Registre Spécial des Agents Commerciaux du Tribunal de Commerce de Grenoble sous le n(Numéro supprimé).Siège social du mandant : effiCity, 48 avenue de Villiers – 75017 PARIS – Société par Actions Simplifiée, société au capital de 132 373,05 euros, immatriculée au RCS Paris 497 617 746 et titulaire de la Carte professionnelle CPI 7501 2015 000 002 025 – CCI Paris IDF – Caisse de Garantie : GALIAN Assurances 89 rue de la Boétie 75008 Paris
Brié-et-Angonnes
TERRAINCarole & Romain ROYANEZ vous proposent en exclusivité, sur le plateau de Brié-et-Angonnes (Replat), ce terrain de 510 m² entièrement plat offre une belle opportunité pour construire votre future maison dans un cadre verdoyant avec vue sur les massifs grenoblois.Le terrain sera viabilisé pour la vente (eau, électricité, tout à l’égout).Exposition Est / Ouest / Sud : un ensoleillement optimal toute la journée.Proximité des commodités et des écoles tout en restant à 15 minutes de Grenoble.Certificat opérationnel validé en mairie pour le projet de division.Points clés réglementaires (zone UD3):Emprise au sol maximale : 25 % de la parcelle (soit environ 127 m² constructibles au sol).Hauteur des constructions : jusqu’à 7 m à l’égout / 10 m au faîtage.Espaces verts : 60 % minimum de pleine terre à préserver (jardin, végétation).Ce terrain est idéal pour une construction familiale, offrant le confort d’une maison avec jardin et piscine dans un environnement recherché.Cette annonce référence 305596 vous est présentée par votre agent commercial BSK Immobilier CAROLE ROYANEZ (EI) immatriculé au RSAC de GRENOBLE (38000) sous le numéro 84158362800034.Prix du bien : 210 000,00 €Les honoraires d’agence sont à la charge du vendeur.Les informations sur les risques auxquels ce bien est exposé sont disponibles sur le site Géorisques : www.georisques.gouv.fr
Saint-Martin-d'Uriage
TERRAINSitué au sein de la commune prisée de Saint-Martin-d’Uriage, ce terrain de 435 m² représente une opportunité rare dans un environnement privilégié. Bénéficiant d’une vue dégagée et d’un cadre naturel apaisant, il offre une emprise au sol de 80 m², permettant la réalisation d’une habitation spacieuse et harmonieusement intégrée à son environnement.Un projet architectural, élaboré par un professionnel qualifié, accompagne ce terrain, avec des plans conçus pour optimiser l’implantation, l’exposition et la qualité de vie. Le coût total du projet, comprenant le terrain et la construction, est d’environ 380 000 euros. Ce projet demeure entièrement modulable afin de répondre aux besoins et préférences du futur acquéreur.Ce terrain constitue une occasion exceptionnelle d’investir dans un secteur calme, verdoyant, et très recherché, tout en étant à proximité immédiate des commodités et de l’agglomération grenobloise.Ce terrain représente une excellente opportunité pour ceux qui souhaitent concrétiser un projet de construction dans un secteur recherché, avec l’avantage d’un projet déjà préparé. N’hésitez pas à nous contacter pour plus d’informations ou pour organiser une visite.Cette annonce référence 273028 vous est présentée par votre agent commercial BSK Immobilier PATRICIA ACQUAVIVA (EI) immatriculé au RSAC de GRENOBLE (38000) sous le numéro 79178938100039.Prix du bien : 209 000,00 €Les honoraires d’agence sont à la charge du vendeur.Les informations sur les risques auxquels ce bien est exposé sont disponibles sur le site Géorisques : www.georisques.gouv.fr
Saint-Martin-d'Uriage
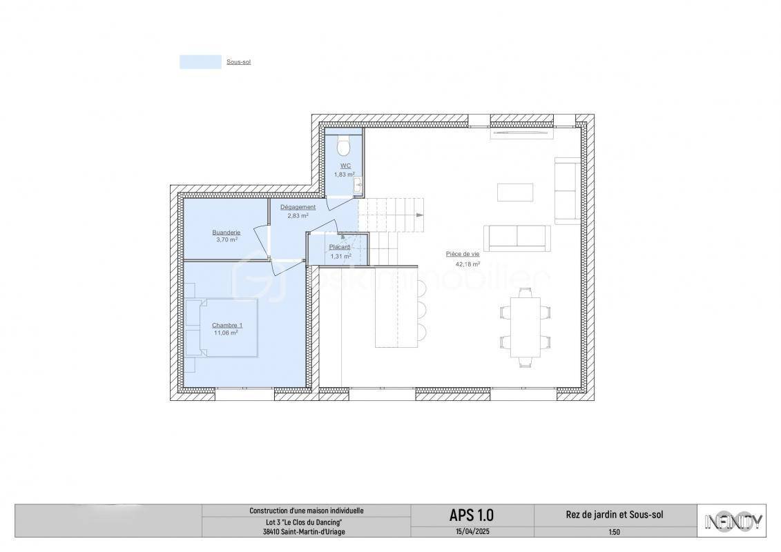
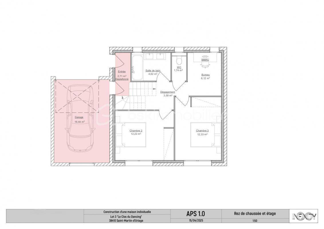
TERRAINSitué au sein de la commune prisée de Saint-Martin-d’Uriage, ce terrain de 418 m² représente une opportunité rare dans un environnement privilégié. Bénéficiant d’une vue dégagée et d’un cadre naturel apaisant, il offre une emprise au sol de 80 m², permettant la réalisation d’une habitation spacieuse et harmonieusement intégrée à son environnement.Un projet architectural, élaboré par un professionnel qualifié, accompagne ce terrain, avec des plans conçus pour optimiser l’implantation, l’exposition et la qualité de vie. Le coût total du projet, comprenant le terrain et la construction, est d’environ 450 000 euros. Ce projet demeure entièrement modulable afin de répondre aux besoins et préférences du futur acquéreur.Ce terrain constitue une occasion exceptionnelle d’investir dans un secteur calme, verdoyant, et très recherché, tout en étant à proximité immédiate des commodités et de l’agglomération grenobloise.Ce terrain représente une excellente opportunité pour ceux qui souhaitent concrétiser un projet de construction dans un secteur recherché, avec l’avantage d’un projet déjà préparé. N’hésitez pas à nous contacter pour plus d’informations ou pour organiser une visite.Cette annonce référence 273031 vous est présentée par votre agent commercial BSK Immobilier PATRICIA ACQUAVIVA (EI) immatriculé au RSAC de GRENOBLE (38000) sous le numéro 79178938100039.Prix du bien : 185 000,00 €Les honoraires d’agence sont à la charge du vendeur.Les informations sur les risques auxquels ce bien est exposé sont disponibles sur le site Géorisques : www.georisques.gouv.fr
Saint-Martin-d'Uriage
TERRAINSitué au sein de la commune prisée de Saint-Martin-d’Uriage, ce terrain de 996 m² représente une opportunité rare dans un environnement privilégié. Bénéficiant d’une vue dégagée et d’un cadre naturel apaisant, il offre une emprise au sol de 110 m², permettant la réalisation d’une habitation spacieuse et harmonieusement intégrée à son environnement.Un projet architectural, élaboré par un professionnel qualifié, accompagne ce terrain, avec des plans conçus pour optimiser l’implantation, l’exposition et la qualité de vie. Ce projet demeure entièrement modulable afin de répondre aux besoins et préférences du futur acquéreur.Ce terrain constitue une occasion exceptionnelle d’investir dans un secteur calme, verdoyant, et très recherché, tout en étant à proximité immédiate des commodités et de l’agglomération grenobloise.Ce terrain représente une excellente opportunité pour ceux qui souhaitent concrétiser un projet de construction dans un secteur recherché, avec l’avantage d’un projet déjà préparé. N’hésitez pas à nous contacter pour plus d’informations ou pour organiser une visite.Cette annonce référence 273034 vous est présentée par votre agent commercial BSK Immobilier PATRICIA ACQUAVIVA (EI) immatriculé au RSAC de GRENOBLE (38000) sous le numéro 79178938100039.Prix du bien : 310 000,00 €Les honoraires d’agence sont à la charge du vendeur.Les informations sur les risques auxquels ce bien est exposé sont disponibles sur le site Géorisques : www.georisques.gouv.fr
Saint-Martin-d'Uriage
TERRAINSitué au sein de la commune prisée de Saint-Martin-d’Uriage, ce terrain de 1515 m² représente une opportunité rare dans un environnement privilégié. Bénéficiant d’une vue dégagée et d’un cadre naturel apaisant, il offre une emprise au sol de 110 m², permettant la réalisation d’une habitation spacieuse et harmonieusement intégrée à son environnement.Un projet architectural, élaboré par un professionnel qualifié, accompagne ce terrain, avec des plans conçus pour optimiser l’implantation, l’exposition et la qualité de vie. Ce projet demeure entièrement modulable afin de répondre aux besoins et préférences du futur acquéreur. Le coût total du projet, comprenant le terrain et la construction, est d’environ 490 000 euros.Ce terrain constitue une occasion exceptionnelle d’investir dans un secteur calme, verdoyant, et très recherché, tout en étant à proximité immédiate des commodités et de l’agglomération grenobloise.Ce terrain représente une excellente opportunité pour ceux qui souhaitent concrétiser un projet de construction dans un secteur recherché, avec l’avantage d’un projet déjà préparé. N’hésitez pas à nous contacter pour plus d’informations ou pour organiser une visite.Cette annonce référence 273037 vous est présentée par votre agent commercial BSK Immobilier PATRICIA ACQUAVIVA (EI) immatriculé au RSAC de GRENOBLE (38000) sous le numéro 79178938100039.Prix du bien : 268 000,00 €Les honoraires d’agence sont à la charge du vendeur.Les informations sur les risques auxquels ce bien est exposé sont disponibles sur le site Géorisques : www.georisques.gouv.fr
Brié-et-Angonnes
TERRAINVirginie TOURNOUD et Carole ROYANEZ vous proposent, en exclusivité, une parcelle de terrain de 522 m² située sur la commune prisée de Brié-et-Angonnes. L’opportunité idéale pour vous, de concrétiser votre projet immobilier dans un cadre privilégié, entre nature et proximité urbaine, offrant un excellent rapport qualité/emplacement.Le projet proposé :Une maison moderne et lumineuse de 116 m², pensée pour allier confort et fonctionnalité, avec des prestations de standing et de hautes performances énergétiques. Le tout pour un budget global d’environ 450 000 € (terrain + maison). Projet personnalisable selon vos envies.Situé sur les hauts de Tavernolles, proche des commodités (crèches, commerces …) et à 10 minutes des principaux axes routiers, il offre une vue dégagée sur Chamrousse, et une exposition « Est » idéale.La parcelle permet la construction d’une maison individuelle en R+1+combles avec une emprise au sol de 25 %, soit environ 130 m² (terrasses comprises) – zone UD3 du PLUi. Le dénivelé modéré du terrain offre un panel de possibilités.Le terrain est vendu non viabilisé, mais le devis de viabilisation est disponible. Par ailleurs, une étude des sols à d’ores et déjà été réalisée par le propriétaire, ce qui est un véritable atout pour faciliter votre projet et accélérer le dépôt de permis de construire.Contactez-nous dès maintenant pour plus d’informations et organiser une visite sur site !Cette annonce référence 273016 vous est présentée par votre agent commercial BSK Immobilier VIRGINIE TOURNOUD (EI) immatriculé au RSAC de GRENOBLE (38000) sous le numéro 91(Numéro supprimé)13.Prix du bien : 179 000,00 €Les honoraires d’agence sont à la charge du vendeur.Les informations sur les risques auxquels ce bien est exposé sont disponibles sur le site Géorisques : www.georisques.gouv.fr
Jarrie
TERRAINHaute Jarrie Vous serez seulement à 20 minutes de GrenobleCette commune très convoitée met à votre disposition terrain et salle de sport. Mais également maternelle et primaireAu niveau commerce de proximité, on n’y retrouve boulangerie bureau de poste et une pharmacie.Pour les ballades, l’accès à la nature est très procheNous avons sélectionné ce terrain d’une surface de 640 m² m2 pour concevoir votre maison sur mesure. Le terrain sera tout viabilisé avec une Orientation principale vers le sud. Ce qui est un véritable atout en matière de chauffage. L’environnement est calme et propice à une vie tranquille.Et vous pourrez également profiter de la vue Afin de discuter votre projet de maison, contacter votre conseiller en construction Maisons France Confort
L’actualité immobilière à Saint-Martin-d'Uriage
27/11/2023
02/11/2023
30/10/2023
20/10/2023
16/10/2023
16/10/2023