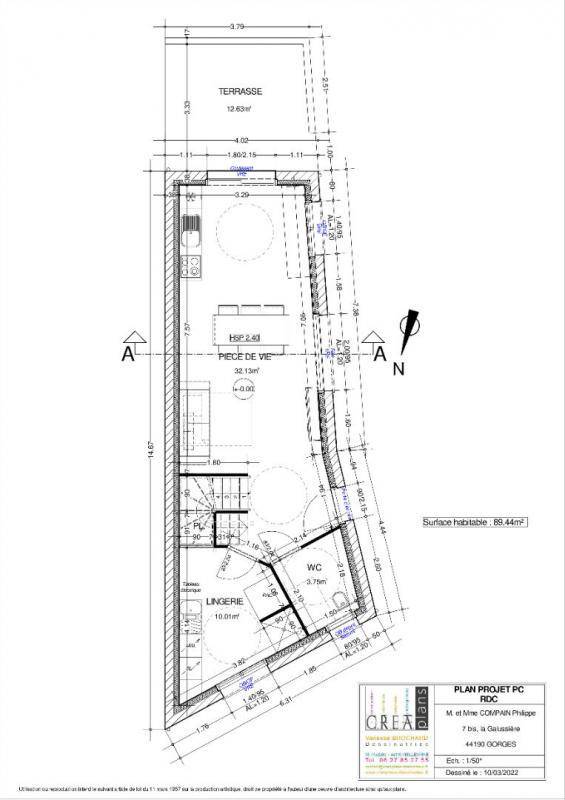
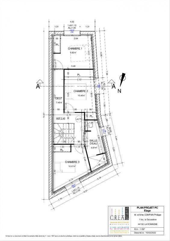
Terrain Gorges 188 M² avec suggestion de plan pour maison de type T4 (3 chambres) de 89.44 M²
Images
Description
44190 Gorges, Dominique CHARRON vous présente ce projet de construction sur un terrain constructible (libre de constructeurs) de 188 M² à viabiliser : exemple de plans de maison de type T4 (3 chambres) avec au rez de chaussée 1 très belle pièce de vie lumineuse (exposée Sud-Est) avec sa cuisine ouverte, une lingerie et des toilettes puis à l'étage 3 chambres, une salle d'eau et des toilettes.
Attention ce terrain est grevé d'une servitude de passage de 4 mls de large.
Cette parcelle vous est proposé au prix de 45000 euros, honoraires charge acquéreurs de 5000 euros TTC inclus, soit 40000 euros hors honoraires.
Pour visiter et vous accompagner dans votre projet, contactez Dominique CHARRON, agissant sous le statut d'agent commercial auprès de la SAS PROPRIETES PRIVEES, au (Numéro supprimé) ou par courriel à (Email supprimé), RSAC 850401662 Nantes. Mandat référence 409860. Le professionnel garantit et sécurise votre projet immobilier. SAS PROPRIETES PRIVEES, 44 allée des Cinq Continents, ZAC Le Chêne Ferré - Bâtiment C, 44120 VERTOU, carte professionnel CPI 4401 2016 000 010 388 CCI NANTES-SAINT NAZAIRE. (12.50 % honoraires TTC à la charge de l'acquéreur.)
Dominique CHARRON (EI) Agent Commercial - Numéro RSAC : NANTES 850401662 - .
Logement susceptibles de vous intéresser
Nous vous proposons de découvrir aussi cette sélection de logements situés à moins de 10km de Gorges et qui seraient susceptibles de vous intéresser.
Aigrefeuille-sur-Maine
TERRAIN ET MAISONDécouvrez ce terrain situé à seulement 4 km du centre bourg d'Aigrefeuille-sur-Maine, dans un environnement calme. Avec une belle surface de 389 m² , il constitue un cadre idéal pour concevoir et bâtir votre maison sur mesure. Prix : 95 000 € FAI. Les avantages de ce terrain:. Localisation privilégiée : Profitez du charme d'une sortie de bourg, paisible, tout en restant à proximité de Nantes et de ses opportunités grâce à un accès rapide aux grands axes. Cadre de vie agréable : Un secteur apprécié pour sa sérénité, parfait pour concrétiser un projet qui vous ressemble. Proximité des commodités : Écoles, parcs, complexes sportifs et services accessibles en quelques minutes. Transports: ligne 370 à proximitéContactez-nous dès maintenant pour organiser une visite et obtenir plus d’informations. Un cadre de vie pensé pour toute la famille. Confort, modernité et praticité se rencontrent dans cette maison à l’architecture affirmée. Ici, chaque espace est conçu pour s’adapter aux rythmes du quotidien : un vaste séjour baigné de lumière, une cuisine ouverte propice aux échanges et une belle harmonie entre pièces de vie et espaces privés. Avec 4 chambres, dont une suite parentale avec salle d’eau, cette maison offre à chacun son cocon tout en favorisant les moments de partage. Son aménagement astucieux, intégrant un garage et des rangements bien pensés, simplifie la vie et s’adapte à vos envies. Pour un confort optimal et conforme à la RE2025, cette maison dispose d’une PAC avec plancher chauffant au rez-de-chaussée, radiateurs à l’étage et volets roulants électriques. À noter : Le prix indiqué exclut les revêtements de sol des chambres, la cuisine aménagée, la peinture, la décoration, les raccordements, les frais de notaire et l’assurance dommages-ouvrage. // Réf. : 1309-210902-RRI. Prix terrain : 95 000 €, hors frais d'agence à la charge de l'acquéreur. Ce terrain vous est proposé, par nos partenaires fonciers, dans le cadre d'un projet de construction avec nous. Les informations sur les risques auxquels ce bien est exposé sont disponibles sur le site Géorisques (www.georisques.gouv.fr). Prix maison : 269 730 €.
Aigrefeuille-sur-Maine
TERRAIN ET MAISONDécouvrez ce terrain situé à seulement 4 km du centre bourg d'Aigrefeuille-sur-Maine, dans un environnement calme. Avec une belle surface de 389 m² , il constitue un cadre idéal pour concevoir et bâtir votre maison sur mesure. Prix : 95 000 € FAI. Les avantages de ce terrain:. Localisation privilégiée : Profitez du charme d'une sortie de bourg, paisible, tout en restant à proximité de Nantes et de ses opportunités grâce à un accès rapide aux grands axes. Cadre de vie agréable : Un secteur apprécié pour sa sérénité, parfait pour concrétiser un projet qui vous ressemble. Proximité des commodités : Écoles, parcs, complexes sportifs et services accessibles en quelques minutes. Transports: ligne 370 à proximitéContactez-nous dès maintenant pour organiser une visite et obtenir plus d’informations. Offrez-vous une maison où chaque espace est conçu pour répondre aux exigences du quotidien, tout en alliant modernité et fonctionnalité. Son agencement optimisé propose une pièce de vie lumineuse et spacieuse, véritable cœur de la maison, idéale pour partager des moments inoubliables. Avec trois chambres accueillantes, un bureau polyvalent, une salle de bain élégante et un cellier astucieux, tout a été pensé pour une organisation fluide et harmonieuse. Son garage intégré facilite votre quotidien en offrant praticité et sécurité. Dotée d’une architecture contemporaine et d’un système de chauffage performant, cette maison assure un confort optimal toute l’année. Un cadre de vie idéal pour une famille en quête d’espace et de bien-être. Pour vous assurer un confort de vie et conformément à la RE2025, nous avons choisi un mode de chauffage par PAC + plancher chauffant, volets roulants électriques. Prix hors peinture, décoration, revêtements de sol dans les chambres, cuisine équipée, frais de notaire, raccordements, dommage ouvrage. // Réf. : 2647-210902-RRI. Prix terrain : 95 000 €, hors frais d'agence à la charge de l'acquéreur. Ce terrain vous est proposé, par nos partenaires fonciers, dans le cadre d'un projet de construction avec nous. Les informations sur les risques auxquels ce bien est exposé sont disponibles sur le site Géorisques (www.georisques.gouv.fr). Prix maison : 168 551 €.
Aigrefeuille-sur-Maine
TERRAIN ET MAISONDécouvrez ce terrain situé à seulement 4 km du centre bourg d'Aigrefeuille-sur-Maine, dans un environnement calme. Avec une belle surface de 389 m² , il constitue un cadre idéal pour concevoir et bâtir votre maison sur mesure. Prix : 95 000 € FAI. Les avantages de ce terrain:. Localisation privilégiée : Profitez du charme d'une sortie de bourg, paisible, tout en restant à proximité de Nantes et de ses opportunités grâce à un accès rapide aux grands axes. Cadre de vie agréable : Un secteur apprécié pour sa sérénité, parfait pour concrétiser un projet qui vous ressemble. Proximité des commodités : Écoles, parcs, complexes sportifs et services accessibles en quelques minutes. Transports: ligne 370 à proximitéContactez-nous dès maintenant pour organiser une visite et obtenir plus d’informations. Fonctionnalité et confort familial ! Un espace généreux et lumineux de plus de 160 m² habitables, conçu pour offrir un cadre de vie agréable et fluide. Un séjour spacieux, une cuisine ouverte, et 4 chambres bien agencées, dont une suite parentale avec dressing au rez-de-chaussée. Un équilibre parfait entre intimité et convivialité, avec de grandes ouvertures et un aménagement optimisé. Garage, cellier et rangements intégrés pour un quotidien plus pratique. Un projet évolutif qui s’adapte à vos envies et besoins. Pour un confort optimal et conforme à la RE2025, cette maison dispose d’une PAC avec plancher chauffant au rez-de-chaussée, radiateurs à l’étage et volets roulants électriques. À noter : Le prix indiqué exclut les revêtements de sol des chambres, la cuisine aménagée, la peinture, la décoration, les raccordements, les frais de notaire et l’assurance dommages-ouvrage. (Piscine non contractuelle, non comprise dans le prix). // Réf. : 1673-210902-RRI. Prix terrain : 95 000 €, hors frais d'agence à la charge de l'acquéreur. Ce terrain vous est proposé, par nos partenaires fonciers, dans le cadre d'un projet de construction avec nous. Les informations sur les risques auxquels ce bien est exposé sont disponibles sur le site Géorisques (www.georisques.gouv.fr). Prix maison : 442 290 €.
Vallet
TERRAIN ET MAISONVous rêvez de construire votre maison dans un environnement agréable et pratique ?Découvrez ce nouveau lotissement communal idéalement situé en plein centre-bourg de Vallet, commune dynamique du Sud Loire !. Un cadre de vie privilégié : commerces, écoles, services, équipements sportifs et culturels accessibles à pied. Une localisation stratégique : accès rapide à la 4 voies pour rejoindre facilement Nantes, Clisson, Cholet ou Ancenis. Des terrains viabilisés aux surfaces adaptées à tous les styles de projets : contemporain, traditionnel ou sur-mesure. En tant que conseiller en habitat, je vous accompagne de la conception à la remise des clés :. Étude personnalisée de votre projet et de votre budget,. Plans sur mesure selon vos envies et votre mode de vie,. Accompagnement complet dans vos démarches administratives. Profitez de cette belle opportunité pour bâtir votre maison dans un cadre de vie idéal, au cœur d’une commune recherchée et bien desservie. Contactez-moi dès aujourd’hui pour étudier ensemble votre projet de construction à Vallet. Succombez au charme de cette maison moderne et lumineuse, pensée pour allier confort et optimisation des espaces. Son vaste espace de vie baigné de lumière invite à la convivialité et s’adapte à votre mode de vie. Côté nuit, chacun profite de son intimité avec 3 belles chambres, dont une suite parentale avec dressing et salle d’eau privée. Une salle de bain supplémentaire et un cellier viennent compléter cet agencement idéal pour un quotidien fluide et pratique. Avec son architecture contemporaine et ses finitions soignées, cette maison est entièrement personnalisable pour répondre à toutes vos envies. Pour un confort optimal et conforme à la RE2025, cette maison dispose d’une PAC avec plancher chauffant et volets roulants électriques. À noter : Le prix indiqué exclut les revêtements de sol des chambres, la cuisine aménagée, la peinture, la décoration, les raccordements, les frais de notaire et l’assurance dommages-ouvrage. (Piscine non contractuelle, non comprise dans le prix)). Imaginez votre futur chez-vous, contactez-nous dès aujourd’hui !. // Réf. : 539-210893-RRI. Prix terrain : 142 800 €, hors frais d'agence à la charge de l'acquéreur. Ce terrain vous est proposé, par nos partenaires fonciers, dans le cadre d'un projet de construction avec nous. Les informations sur les risques auxquels ce bien est exposé sont disponibles sur le site Géorisques (www.georisques.gouv.fr). Prix maison : 221 656 €.
Vallet
TERRAIN ET MAISONVous rêvez de construire votre maison dans un environnement agréable et pratique ?Découvrez ce nouveau lotissement communal idéalement situé en plein centre-bourg de Vallet, commune dynamique du Sud Loire !. Un cadre de vie privilégié : commerces, écoles, services, équipements sportifs et culturels accessibles à pied. Une localisation stratégique : accès rapide à la 4 voies pour rejoindre facilement Nantes, Clisson, Cholet ou Ancenis. Des terrains viabilisés aux surfaces adaptées à tous les styles de projets : contemporain, traditionnel ou sur-mesure. En tant que conseiller en habitat, je vous accompagne de la conception à la remise des clés :. Étude personnalisée de votre projet et de votre budget,. Plans sur mesure selon vos envies et votre mode de vie,. Accompagnement complet dans vos démarches administratives. Profitez de cette belle opportunité pour bâtir votre maison dans un cadre de vie idéal, au cœur d’une commune recherchée et bien desservie. Contactez-moi dès aujourd’hui pour étudier ensemble votre projet de construction à Vallet. Découvrez cette magnifique maison contemporaine aux volumes généreux et aux prestations de qualité. Pensée pour offrir confort et fonctionnalité, elle propose un vaste espace de vie baigné de lumière, une cuisine attenante avec cellier, ainsi qu’un accès direct à un garage pratique. L’agencement intelligent comprend une suite parentale avec dressing et salle d’eau privative au rez-de-chaussée, tandis que l’étage accueille trois belles chambres, une salle de bain et un espace mezzanine polyvalent. Afin de vous garantir un confort optimal et de répondre aux exigences de la RE2025, cette maison est équipée d’un système de chauffage par pompe à chaleur (PAC), avec un plancher chauffant au rez-de-chaussée et des radiateurs à l’étage. Des volets roulants électriques complètent les prestations pour plus de praticité. À noter :Le prix indiqué ne comprend pas la fourniture et la pose des revêtements de sol dans les chambres, la cuisine aménagée, ainsi que la peinture et la décoration intérieure. Il exclut également les raccordements, les frais de notaire et l’assurance dommages-ouvrage. (Piscine non contractuelle, non comprise dans le prix). // Réf. : 537-210893-RRI. Prix terrain : 142 800 €, hors frais d'agence à la charge de l'acquéreur. Ce terrain vous est proposé, par nos partenaires fonciers, dans le cadre d'un projet de construction avec nous. Les informations sur les risques auxquels ce bien est exposé sont disponibles sur le site Géorisques (www.georisques.gouv.fr). Prix maison : 319 503 €.
Vallet
TERRAIN ET MAISONVous rêvez de construire votre maison dans un environnement agréable et pratique ?Découvrez ce nouveau lotissement communal idéalement situé en plein centre-bourg de Vallet, commune dynamique du Sud Loire !. Un cadre de vie privilégié : commerces, écoles, services, équipements sportifs et culturels accessibles à pied. Une localisation stratégique : accès rapide à la 4 voies pour rejoindre facilement Nantes, Clisson, Cholet ou Ancenis. Des terrains viabilisés aux surfaces adaptées à tous les styles de projets : contemporain, traditionnel ou sur-mesure. En tant que conseiller en habitat, je vous accompagne de la conception à la remise des clés :. Étude personnalisée de votre projet et de votre budget,. Plans sur mesure selon vos envies et votre mode de vie,. Accompagnement complet dans vos démarches administratives. Profitez de cette belle opportunité pour bâtir votre maison dans un cadre de vie idéal, au cœur d’une commune recherchée et bien desservie. Contactez-moi dès aujourd’hui pour étudier ensemble votre projet de construction à Vallet. Découvrez une maison pensée pour le confort et la luminosité ! Avec ses 3 chambres, dont une suite parentale avec salle d’eau privative, et sa spacieuse pièce de vie, elle s’adapte parfaitement à votre quotidien. L’architecture joue sur les volumes et les ouvertures, offrant un intérieur baigné de lumière et une circulation fluide entre les espaces. Son garage intégré et ses prestations modernes en font un lieu aussi esthétique que fonctionnel. Pour un confort optimal et conforme à la RE2025, cette maison dispose d’une PAC avec plancher chauffant et volets roulants électriques. À noter : Le prix indiqué exclut les revêtements de sol des chambres, la cuisine aménagée, la peinture, la décoration, les raccordements, les frais de notaire et l’assurance dommages-ouvrage. Contactez-nous pour en savoir plus et donner vie à votre projet !. // Réf. : 1802-210893-RRI. Prix terrain : 142 800 €, hors frais d'agence à la charge de l'acquéreur. Ce terrain vous est proposé, par nos partenaires fonciers, dans le cadre d'un projet de construction avec nous. Les informations sur les risques auxquels ce bien est exposé sont disponibles sur le site Géorisques (www.georisques.gouv.fr). Prix maison : 204 480 €.
Aigrefeuille-sur-Maine
TERRAINDécouvrez ce terrain situé à seulement 4 km du centre bourg d'Aigrefeuille-sur-Maine, dans un environnement calme. Avec une belle surface de 389 m² , il constitue un cadre idéal pour concevoir et bâtir votre maison sur mesure. Prix : 95 000 € FAI. Les avantages de ce terrain:. Localisation privilégiée : Profitez du charme d'une sortie de bourg, paisible, tout en restant à proximité de Nantes et de ses opportunités grâce à un accès rapide aux grands axes. Cadre de vie agréable : Un secteur apprécié pour sa sérénité, parfait pour concrétiser un projet qui vous ressemble. Proximité des commodités : Écoles, parcs, complexes sportifs et services accessibles en quelques minutes. Transports: ligne 370 à proximitéContactez-nous dès maintenant pour organiser une visite et obtenir plus d’informations. // Réf. : T210902. Prix terrain : 95 000 €, hors frais d'agence et de notaire à la charge de l'acquéreur. Ce terrain vous est proposé, par nos partenaires fonciers, dans le cadre d'un projet de construction avec nous. Les informations sur les risques auxquels ce bien est exposé sont disponibles sur le site Géorisques (www.georisques.gouv.fr).
Vallet
TERRAINVous rêvez de construire votre maison dans un environnement agréable et pratique ?Découvrez ce nouveau lotissement communal idéalement situé en plein centre-bourg de Vallet, commune dynamique du Sud Loire !. Un cadre de vie privilégié : commerces, écoles, services, équipements sportifs et culturels accessibles à pied. Une localisation stratégique : accès rapide à la 4 voies pour rejoindre facilement Nantes, Clisson, Cholet ou Ancenis. Des terrains viabilisés aux surfaces adaptées à tous les styles de projets : contemporain, traditionnel ou sur-mesure. En tant que conseiller en habitat, je vous accompagne de la conception à la remise des clés :. Étude personnalisée de votre projet et de votre budget,. Plans sur mesure selon vos envies et votre mode de vie,. Accompagnement complet dans vos démarches administratives. Profitez de cette belle opportunité pour bâtir votre maison dans un cadre de vie idéal, au cœur d’une commune recherchée et bien desservie. Contactez-moi dès aujourd’hui pour étudier ensemble votre projet de construction à Vallet. // Réf. : T210890. Prix terrain : 144 900 €, hors frais d'agence et de notaire à la charge de l'acquéreur. Ce terrain vous est proposé, par nos partenaires fonciers, dans le cadre d'un projet de construction avec nous. Les informations sur les risques auxquels ce bien est exposé sont disponibles sur le site Géorisques (www.georisques.gouv.fr).
Vallet
TERRAINVous rêvez de construire votre maison dans un environnement agréable et pratique ?Découvrez ce nouveau lotissement communal idéalement situé en plein centre-bourg de Vallet, commune dynamique du Sud Loire !. Un cadre de vie privilégié : commerces, écoles, services, équipements sportifs et culturels accessibles à pied. Une localisation stratégique : accès rapide à la 4 voies pour rejoindre facilement Nantes, Clisson, Cholet ou Ancenis. Des terrains viabilisés aux surfaces adaptées à tous les styles de projets : contemporain, traditionnel ou sur-mesure. En tant que conseiller en habitat, je vous accompagne de la conception à la remise des clés :. Étude personnalisée de votre projet et de votre budget,. Plans sur mesure selon vos envies et votre mode de vie,. Accompagnement complet dans vos démarches administratives. Profitez de cette belle opportunité pour bâtir votre maison dans un cadre de vie idéal, au cœur d’une commune recherchée et bien desservie. Contactez-moi dès aujourd’hui pour étudier ensemble votre projet de construction à Vallet. // Réf. : T210893. Prix terrain : 142 800 €, hors frais d'agence et de notaire à la charge de l'acquéreur. Ce terrain vous est proposé, par nos partenaires fonciers, dans le cadre d'un projet de construction avec nous. Les informations sur les risques auxquels ce bien est exposé sont disponibles sur le site Géorisques (www.georisques.gouv.fr).
L’actualité immobilière à Gorges
27/11/2023
02/11/2023
30/10/2023
20/10/2023
16/10/2023
16/10/2023