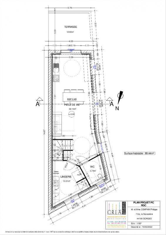
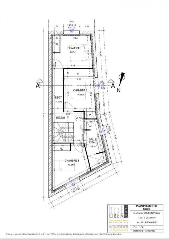
Terrain Gorges 188 M² avec suggestion de plan pour maison de type T4 (3 chambres) de 89.44 M²
Images
Description
44190 Gorges, Dominique CHARRON vous présente ce projet de construction sur un terrain constructible (libre de constructeurs) de 188 M² à viabiliser : exemple de plans de maison de type T4 (3 chambres) avec au rez de chaussée 1 très belle pièce de vie lumineuse (exposée Sud-Est) avec sa cuisine ouverte, une lingerie et des toilettes puis à l'étage 3 chambres, une salle d'eau et des toilettes.
Attention ce terrain est grevé d'une servitude de passage de 4 mls de large.
Cette parcelle vous est proposé au prix de 45000 euros, honoraires charge acquéreurs de 5000 euros TTC inclus, soit 40000 euros hors honoraires.
Pour visiter et vous accompagner dans votre projet, contactez Dominique CHARRON, agissant sous le statut d'agent commercial auprès de la SAS PROPRIETES PRIVEES, au (Numéro supprimé) ou par courriel à (Email supprimé), RSAC 850401662 Nantes. Mandat référence 409860. Le professionnel garantit et sécurise votre projet immobilier. SAS PROPRIETES PRIVEES, 44 allée des Cinq Continents, ZAC Le Chêne Ferré - Bâtiment C, 44120 VERTOU, carte professionnel CPI 4401 2016 000 010 388 CCI NANTES-SAINT NAZAIRE. (12.50 % honoraires TTC à la charge de l'acquéreur.)
Dominique CHARRON (EI) Agent Commercial - Numéro RSAC : NANTES 850401662 - .
Logement susceptibles de vous intéresser
Nous vous proposons de découvrir aussi cette sélection de logements situés à moins de 10km de Gorges et qui seraient susceptibles de vous intéresser.
Clisson
TERRAINDécouvrez ce terrain, rare sur le secteur, en premier rideau, à deux pas du centre-ville et de la Gare SNCF. Avec une surface de 429 m², il offre un cadre de vie privilégié à proximité immédiate de toutes commodités. Une belle opportunité pour réaliser votre projet sur mesure. N'hésitez pas à nous contacter pour plus de renseigner ou organiser un visite. // Réf. : T213676. Prix terrain : 200 000 €, hors frais d'agence et de notaire à la charge de l'acquéreur. Ce terrain vous est proposé, par nos partenaires fonciers, dans le cadre d'un projet de construction avec nous. Les informations sur les risques auxquels ce bien est exposé sont disponibles sur le site Géorisques (www.georisques.gouv.fr).
Clisson
TERRAIN ET MAISONDécouvrez ce terrain, rare sur le secteur, en premier rideau, à deux pas du centre-ville et de la Gare SNCF. Avec une surface de 429 m², il offre un cadre de vie privilégié à proximité immédiate de toutes commodités. Une belle opportunité pour réaliser votre projet sur mesure. N'hésitez pas à nous contacter pour plus de renseigner ou organiser un visite. Plongez dans un intérieur où luminosité et espace s'harmonisent parfaitement pour créer un cadre de vie accueillant et chaleureux. Dès l’entrée, la sensation d’ouverture vous invite à découvrir un vaste espace de vie, où la cuisine, moderne et conviviale, se prolonge naturellement vers un salon agréable et une salle à manger propice aux moments de partage. Côté nuit, les chambres offrent un véritable cocon de tranquillité, pensées pour conjuguer intimité et confort. L’agencement soigné garantit une circulation fluide entre les différents espaces, tandis que des rangements astucieux optimisent chaque recoin pour une organisation parfaite. L’extérieur prolonge cet art de vivre avec un espace idéal pour se détendre ou recevoir, à aménager selon vos envies. Une maison où chaque détail a été pensé pour vous offrir un quotidien serein et harmonieux. Pour vous assurer un confort de vie et conformément à la RE2025, nous avons choisi un mode de chauffage par PAC + plancher chauffant, volets roulants électriques. Prix hors peinture, décoration, revêtements de sol dans les chambres, cuisine équipée, frais de notaire, raccordements, dommage ouvrage. // Réf. : 2656-213676-RRI. Prix terrain : 200 000 €, hors frais d'agence à la charge de l'acquéreur. Ce terrain vous est proposé, par nos partenaires fonciers, dans le cadre d'un projet de construction avec nous. Les informations sur les risques auxquels ce bien est exposé sont disponibles sur le site Géorisques (www.georisques.gouv.fr). Prix maison : 175 698 €.
Le Pallet
TERRAINPrix : 68000 €.Sur ce terrain de 260 m² à LE PALLET, Alliance Construction vous propose de réaliser votre projet de construction de maison individuelle.Avec Alliance Construction, habitez une maison spécialement pensée et conçue pour vous et votre famille, prête à décorer, adaptée à vos modes de vie, personnalisée selon vos goûts grâce à un large choix d'options, de matériaux et d'innovations ! Demandez une étude gratuite et personnalisée de votre projet de construction sur ce terrain à LE PALLET !Contactez Laurent LASSIMONNE au (Numéro supprimé) (Alliance Construction – Agence de Vallet).Prix hors frais de notaire. Terrain sélectionné par ALLIANCE auprès de nos partenaires fonciers, selon disponibilité, pour la construction d'une maison neuve. Non mandaté pour réaliser la vente (loi du 2 janvier 1970 n°70-9). Visuels non contractuels. Voir détails en agence.Cette annonce a été créée et diffusée avec le logiciel VITAHOME.
Clisson
TERRAIN ET MAISONDécouvrez ce terrain, rare sur le secteur, en premier rideau, à deux pas du centre-ville et de la Gare SNCF. Avec une surface de 429 m², il offre un cadre de vie privilégié à proximité immédiate de toutes commodités. Une belle opportunité pour réaliser votre projet sur mesure. N'hésitez pas à nous contacter pour plus de renseigner ou organiser un visite. Compacte et élégante, cette maison optimise chaque mètre carré pour offrir un cadre de vie chaleureux et pratique. Son vaste espace de vie ouvert, baigné de lumière, crée une atmosphère conviviale et fluide. Avec 3 chambres, dont une au rez-de-chaussée, elle s’adapte à toutes les étapes de la vie et garantit un équilibre parfait entre intimité et partage. Un garage intégré, des rangements malins et une conception bien pensée en font une maison aussi esthétique que fonctionnelle. Un modèle personnalisable, conçu pour s’adapter à vos envies et à votre style de vie. Laissez libre cours à votre imagination et contactez-nous pour en savoir plus !. Pour un confort optimal et conforme à la RE2025, cette maison dispose d’une PAC avec plancher chauffant au rez-de-chaussée, radiateurs à l’étage et volets roulants électriques. À noter : Le prix indiqué exclut les revêtements de sol des chambres, la cuisine aménagée, la peinture, la décoration, les raccordements, les frais de notaire et l’assurance dommages-ouvrage. . // Réf. : 348-213676-RRI. Prix terrain : 200 000 €, hors frais d'agence à la charge de l'acquéreur. Ce terrain vous est proposé, par nos partenaires fonciers, dans le cadre d'un projet de construction avec nous. Les informations sur les risques auxquels ce bien est exposé sont disponibles sur le site Géorisques (www.georisques.gouv.fr). Prix maison : 219 450 €.
Maisdon-sur-Sèvre
TERRAIN ET MAISONA MAISDON-SUR-SEVRE sur un terrain de 270 m², Alliance Construction vous propose de réaliser votre projet de construction de maison individuelle d'une surface de 80.57 m² habitables avec 3 chambres, à partir de 218903€*Demandez une étude gratuite et personnalisée de votre projet de construction !* Cette offre comprend :- Garanties constructeurs (dommages ouvrage, garantie de prix ferme et définitif, garantie de livraison, responsabilité civile et décennale).- Branchements aux compteurs et accès empierré sur 5m linéaires.Habitez une maison spécialement pensée et conçue pour vous et votre famille, prête à décorer, adaptée à vos modes de vie, personnalisée selon vos goûts grâce à un large choix d'options, de matériaux et d'innovations !Contactez Laurent LASSIMONNE au (Numéro supprimé) (Alliance Construction – Agence de Vallet).*Prix indicatif pour un projet de construction d'une maison individuelle. Ne sont pas inclus les frais de branchements, raccordements aux réseaux publics, frais d'adaptations, aménagements intérieurs et extérieurs et options. terrain viabilisé, frais de notaire non compris, frais divers non compris. Garanties et assurances obligatoires incluses. Terrain sélectionné par ALLIANCE auprès de nos partenaires fonciers, selon disponibilité, pour la construction d'une maison neuve. Non mandaté pour réaliser la vente (loi du 2 janvier 1970 n°70-9). Visuels non contractuels. Voir détails en agence.Cette annonce a été créée et diffusée avec le logiciel VITAHOME.
Maisdon-sur-Sèvre
TERRAINPrix : 71000 €.Sur ce terrain de 270 m² à MAISDON-SUR-SEVRE, Alliance Construction vous propose de réaliser votre projet de construction de maison individuelle.Avec Alliance Construction, habitez une maison spécialement pensée et conçue pour vous et votre famille, prête à décorer, adaptée à vos modes de vie, personnalisée selon vos goûts grâce à un large choix d'options, de matériaux et d'innovations ! Demandez une étude gratuite et personnalisée de votre projet de construction sur ce terrain à MAISDON-SUR-SEVRE !Contactez Laurent LASSIMONNE au (Numéro supprimé) (Alliance Construction – Agence de Vallet).Prix hors frais de notaire. Terrain sélectionné par ALLIANCE auprès de nos partenaires fonciers, selon disponibilité, pour la construction d'une maison neuve. Non mandaté pour réaliser la vente (loi du 2 janvier 1970 n°70-9). Visuels non contractuels. Voir détails en agence.Cette annonce a été créée et diffusée avec le logiciel VITAHOME.
Clisson
TERRAIN ET MAISONDécouvrez ce terrain, rare sur le secteur, en premier rideau, à deux pas du centre-ville et de la Gare SNCF. Avec une surface de 429 m², il offre un cadre de vie privilégié à proximité immédiate de toutes commodités. Une belle opportunité pour réaliser votre projet sur mesure. N'hésitez pas à nous contacter pour plus de renseigner ou organiser un visite. Découvrez un projet de maison contemporaine qui allie élégance, confort et fonctionnalité. Conçue pour s’adapter aux besoins d’aujourd’hui, elle offre un intérieur lumineux et chaleureux, idéal pour une vie de famille épanouie. Son architecture moderne maximise les espaces tout en apportant une belle harmonie entre volumes ouverts et coins plus intimistes. Chaque pièce est pensée pour conjuguer praticité et bien-être, avec des finitions soignées qui font toute la différence. Vous y trouverez un vaste espace de vie convivial, une cuisine ouverte propice au partage, des chambres confortables, une salle de bain élégante et des rangements astucieux pour un quotidien organisé. À l’extérieur, profitez d’un espace agréable où vous pourrez créer votre cocon, qu’il s’agisse d’un jardin fleuri, d’une terrasse accueillante ou d’un espace détente selon vos envies. Un lieu de vie conçu pour vous offrir un quotidien fluide et apaisant, où chaque instant devient un plaisir. Pour vous assurer un confort de vie et conformément à la RE2025, nous avons choisi un mode de chauffage par PAC + plancher chauffant, volets roulants électriques. Prix hors peinture, décoration, revêtements de sol dans les chambres, cuisine équipée, frais de notaire, raccordements, dommage ouvrage. // Réf. : 2654-213676-RRI. Prix terrain : 200 000 €, hors frais d'agence à la charge de l'acquéreur. Ce terrain vous est proposé, par nos partenaires fonciers, dans le cadre d'un projet de construction avec nous. Les informations sur les risques auxquels ce bien est exposé sont disponibles sur le site Géorisques (www.georisques.gouv.fr). Prix maison : 176 476 €.
Vallet
TERRAIN ET MAISONSitué dans un hameau calme, à seulement 2,7 km du bourg, ce terrain de 531m² offre un cadre paisible et privilégié pour la construction de votre maison sur mesure. A 15 minutes de Clisson, 25 de Cholet et environ 20 minutes de Nantes, ce bien assure une position stratégique. . Ce terrain est viabilisé et prêt à accueillir votre projet qui vous ressemble, adapté à vos besoins et à vos envies, dans un environnement agréable. Contactez-nous pour plus de renseignements et pour visiter ce terrain. Dès l’entrée, vous serez séduit par une pièce de vie spacieuse et baignée de lumière, où salon, salle à manger et cuisine ouverte créent un espace convivial et chaleureux. L’agencement fluide et fonctionnel vous permet de profiter pleinement de chaque instant en famille ou entre amis. Côté nuit, la maison offre trois belles chambres, pensées pour le confort et la tranquillité de chacun. La suite parentale, intime et élégante, devient un véritable refuge, tandis que les chambres supplémentaires s’adaptent parfaitement aux besoins des enfants ou d’un bureau. Une salle de bain moderne complète cet espace avec style et praticité. À l’extérieur, un jardin agréable prolonge l’espace de vie, idéal pour savourer des moments en plein air. Un intérieur harmonieux, lumineux et conçu pour votre quotidien – tout ce qu’il faut pour s’y sentir bien dès le premier jour !. Pour vous assurer un confort de vie et conformément à la RE2025, nous avons choisi un mode de chauffage par PAC + plancher chauffant, volets roulants électriques. Prix hors peinture, décoration, revêtements de sol dans les chambres, cuisine équipée, frais de notaire, raccordements, dommage ouvrage. // Réf. : 2652-213555-RRI. Prix terrain : 112 000 €, hors frais d'agence à la charge de l'acquéreur. Ce terrain vous est proposé, par nos partenaires fonciers, dans le cadre d'un projet de construction avec nous. Les informations sur les risques auxquels ce bien est exposé sont disponibles sur le site Géorisques (www.georisques.gouv.fr). Prix maison : 163 796 €.
Vallet
TERRAIN ET MAISONSitué dans un hameau calme, à seulement 2,7 km du bourg, ce terrain de 531m² offre un cadre paisible et privilégié pour la construction de votre maison sur mesure. A 15 minutes de Clisson, 25 de Cholet et environ 20 minutes de Nantes, ce bien assure une position stratégique. . Ce terrain est viabilisé et prêt à accueillir votre projet qui vous ressemble, adapté à vos besoins et à vos envies, dans un environnement agréable. Contactez-nous pour plus de renseignements et pour visiter ce terrain. Compacte et élégante, cette maison optimise chaque mètre carré pour offrir un cadre de vie chaleureux et pratique. Son vaste espace de vie ouvert, baigné de lumière, crée une atmosphère conviviale et fluide. Avec 3 chambres, dont une au rez-de-chaussée, elle s’adapte à toutes les étapes de la vie et garantit un équilibre parfait entre intimité et partage. Un garage intégré, des rangements malins et une conception bien pensée en font une maison aussi esthétique que fonctionnelle. Un modèle personnalisable, conçu pour s’adapter à vos envies et à votre style de vie. Laissez libre cours à votre imagination et contactez-nous pour en savoir plus !. Pour un confort optimal et conforme à la RE2025, cette maison dispose d’une PAC avec plancher chauffant au rez-de-chaussée, radiateurs à l’étage et volets roulants électriques. À noter : Le prix indiqué exclut les revêtements de sol des chambres, la cuisine aménagée, la peinture, la décoration, les raccordements, les frais de notaire et l’assurance dommages-ouvrage. . // Réf. : 348-213555-RRI. Prix terrain : 112 000 €, hors frais d'agence à la charge de l'acquéreur. Ce terrain vous est proposé, par nos partenaires fonciers, dans le cadre d'un projet de construction avec nous. Les informations sur les risques auxquels ce bien est exposé sont disponibles sur le site Géorisques (www.georisques.gouv.fr). Prix maison : 219 450 €.
L’actualité immobilière à Gorges
27/11/2023
02/11/2023
30/10/2023
20/10/2023
16/10/2023
16/10/2023