Terrain à vendre

Devenez propriétaire à VAL DE VESLE (51)

85700 €
499 m²
172 €/m²
Val-de-Vesle
Marne (51)
TERRAIN
Réf externe: PG017444-_62
Annonce publiée le 16 décembre 2025

Images

Description

(RE)COMMENCEZ À RÊVER DE VOTRE MAISON ! TERRAINS À BÂTIR ÉLIGIBLES AU PRÊT À TAUX ZÉRO*

Accueil téléphonique : du lundi au samedi, de 8H00 à 19H00
Opération à frais de notaire réduits. Les travaux de viabilisation ont démarré !
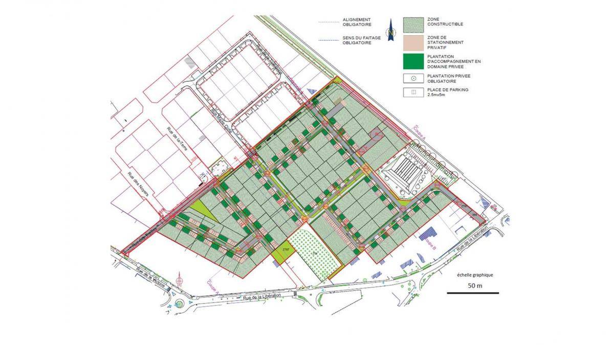
À proximité du centre-bourg de Val-de-Vesle, le lotissement Bois Branscourt 3 bénéficie d'un emplacement idéal. Au cour d'un quartier pavillonnaire calme et apaisé, ce lotissement s'intègre parfaitement à son environnement. Tous les services du quotidien sont accessibles en quelques minutes. L'opération est située au pied de la gare de la commune, à 17 minutes en TER de Reims et 25 minutes en voiture.
Le site Bois Branscourt 3 compte 65 terrains à bâtir viabilisés de 464 m² à 932 m². Les aménagements et les prestations sont de qualité : création d'un espace vert, gestion des eaux pluviales, accès figés, préservation du patrimoine paysager naturel.
Aux portes de Reims, Val-de-Vesle est une commune paisible qui offre un cadre de vie verdoyant et authentique. Entre rivière et fo Les informations sur l'état des risques auxquels ce bien est exposé sont disponibles sur le site Géorisques : www.georisques.gouv.fr

CONTACTER

Logement susceptibles de vous intéresser

L’actualité immobilière à Val-de-Vesle

Image du post Pourquoi acheter un terrain en lotissement ? 27/11/2023
Lire l’article
Pourquoi acheter un terrain en lotissement ?
Image du post Vendre son terrain à un promoteur : comment procéder ? 02/11/2023
Lire l’article
Vendre son terrain à un promoteur : comment procéder ?
Image du post Diviser le terrain de sa maison pour le vendre : pourquoi et comment ? 30/10/2023
Lire l’article
Diviser le terrain de sa maison pour le vendre : pourquoi et comment ?
Image du post Acheter un terrain viabilisé : quels avantages ? 20/10/2023
Lire l’article
Acheter un terrain viabilisé : quels avantages ?
Image du post Les 7 étapes incontournables pour bien vendre votre terrain constructible 16/10/2023
Lire l’article
Les 7 étapes incontournables pour bien vendre votre terrain constructible
Image du post 5 points clés à vérifier pour l’achat d’un terrain constructible  16/10/2023
Lire l’article
5 points clés à vérifier pour l’achat d’un terrain constructible