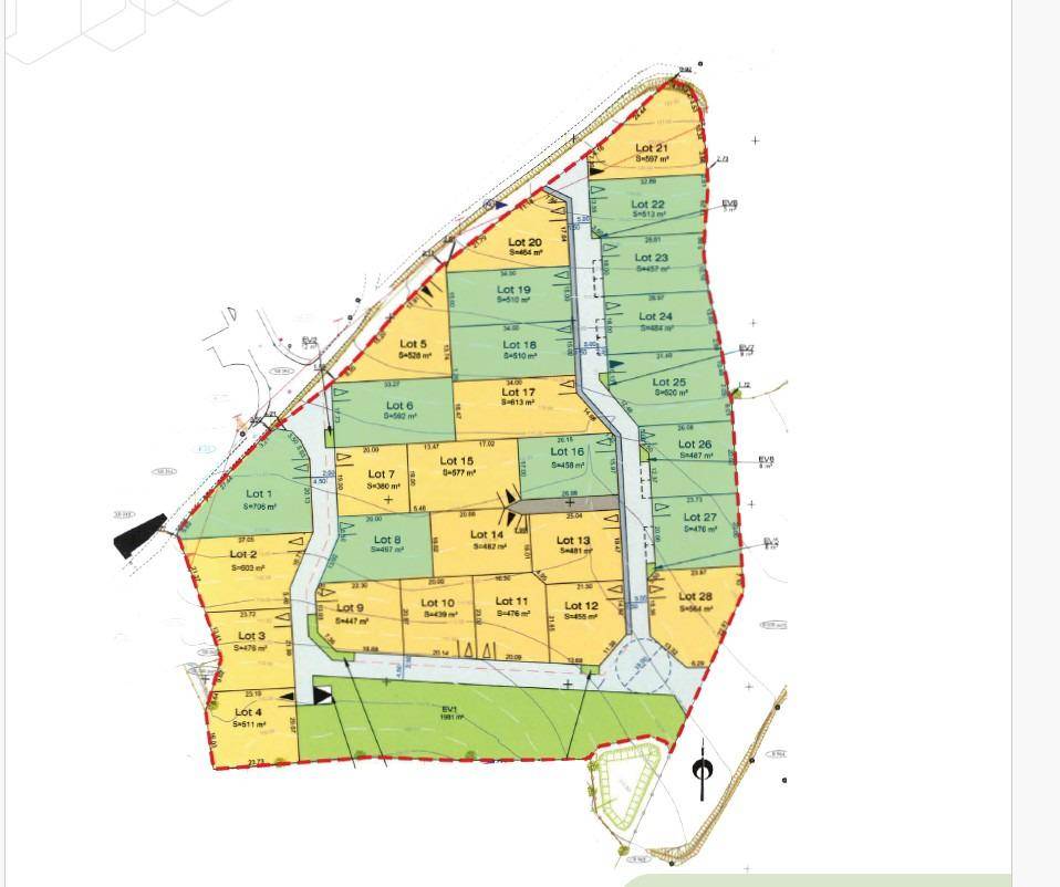
Terrain à vendre de plus de 9 000,00 m² MAYENNE (53)
Images
Description
Opportunité de développement immobilier ; idéal promoteurs ou bailleurs sociaux.
Situé à MAYENNE, cet ensemble immobilier offre une belle opportunité de transformation urbaine.Sur un vaste terrain bénéficiant d'une bonne accessibilité, quatre bâtiments sont actuellement en place et peuvent être réhabilités ou démolis selon le projet.
Superficie totale du foncier : 9550m2
Potentiel de valorisation :
- emplacement stratégique en entrée de ville, à proximité des commerces et infrastructures scolaires
- secteur compatible avec des projets d'habitat collectif ou intermédiaire (sous réserve accord urbanisme)
- possibilité d'étude de faisabilité pour opérations en partenariat avec la collectivité
- terrain plat, à l'exception de la partie boisée.
Un bien rare à MAYENNE, prêt à accueillir un projet d'envergure à vocation sociale ou résidentielle. Idéal pour promoteurs à la recherche de foncier ou bailleurs sociaux souhaitant étendre leur patrimoine.
Contactez-moi pour plus de renseignements.
Les honoraires sont à la charge du vendeur.
Les informations sur les risques auxquels ce bien est exposé sont disponibles sur le site Géorisques : www. georisques. gouv. fr.
Réseau Immobilier CAPIFRANCE - Votre agent commercial (RSAC N(Numéro supprimé) - Greffe de VANNES) Valérie MAQUAIRE Entrepreneur Individuel (Numéro supprimé) - Réf.903445
Logement susceptibles de vous intéresser
Nous vous proposons de découvrir aussi cette sélection de logements situés à moins de 10km de Mayenne et qui seraient susceptibles de vous intéresser.
Mayenne
TERRAIN ET MAISONVENTE d’une maison de 5 pièces (80 m²) à MoulayIDÉALEMENT SITUÉE – MAISON 5 PIÈCES NEUVEEn vente : à 25 km de Laval, idéalement située dans Moulay (53100), notre agence Maisons France Confort Bonchamp-lès-Laval est ravie de vous proposer cette maison de 5 pièces de plain-pied de 80 m² et de 484 m² de terrain. Conçue de plain-pied, elle compte trois chambres, une cuisine et une salle de bains.Cette maison est neuve.La maison se situe dans un secteur prisé. Une école primaire y est implantée. Il y a un accès à la nationale N12 à 4 km. Il y a deux commerces dans les environs.Elle est proposée à l’achat pour 209 200 €.N’hésitez pas à prendre contact avec notre agence (Claire FERBER : (Numéro supprimé)) pour plus d’informations sur la maison.
Commer
TERRAIN ET MAISONVENTE : maison T5 (110 m²) à CommerIDÉALEMENT SITUÉE – MAISON 5 PIÈCES NEUVEEn vente : située à deux pas de Laval, Maisons France Confort Bonchamp-lès-Laval vous présente cette maison de 5 pièces de 110 m² idéalement située dans Commer (53470).Cette maison compte 2 niveaux. Son intérieur se divise en quatre chambres, une cuisine et deux salles de bains. La maison est neuve.Le terrain de la propriété est de 587 m².Cette maison se trouve dans un secteur convoité. Il y a l’École Primaire Publique Jules Verne à moins de 10 minutes à pied. La nationale N12 est accessible à 7 km. On trouve un tennis et une boulangerie dans les environs.Son prix de vente est de 282 400 €.N’hésitez pas à prendre contact avec notre agence (FERBER Claire : (Numéro supprimé)) pour tout renseignement sur la maison, sur les démarches à suivre ou sur les modalités de vente. Maisons France Confort Bonchamp-lès-Laval vous accompagne à toutes les étapes de l’achat et dans tous vos projets immobiliers.
Commer
TERRAIN ET MAISONVENTE d’une maison F4 (95 m²) à CommerIDÉALEMENT SITUÉE – MAISON 4 PIÈCES NEUVEEn vente à quelques kilomètres de Laval, notre agence Maisons France Confort Bonchamp-lès-Laval est ravie de vous présenter, idéalement située dans Commer (53470), cette maison de 4 pièces de 95 m² et de 587 m² de terrain.C’est une maison de 2 niveaux. Son intérieur compte trois chambres, une cuisine et deux salles de bains. La maison est neuve.Cette maison est située dans un quartier convoité. L’École Primaire Publique Jules Verne se trouve à moins de 10 minutes à pied. On trouve un accès à la nationale N12 à 7 km. Il y a un tennis et une boulangerie à quelques minutes à peine.Elle est à vendre pour la somme de 267 300 €.N’hésitez pas à prendre contact avec notre agence (FERBER Claire : (Numéro supprimé)) pour toute information sur le bien. Maisons France Confort Bonchamp-lès-Laval est là pour vous accompagner à toutes les étapes de votre projet.
Commer
TERRAINVENTE : terrain de 587 m² à CommerIDÉALEMENT SITUÉ – PROCHE DE LAVALEn vente à deux pas de Laval à Commer (53470), grand terrain. Il est prêt à accueillir la maison de vos rêves pour toute la famille. Il y a l’École Primaire Publique Jules Verne à moins de 10 minutes à pied. Il y a un accès à la nationale N12 à 7 km. On trouve un tennis et une boulangerie à quelques minutes à peine.Il est à vendre pour la somme de 40 000 €. Prenez contact avec Claire FERBER ((Numéro supprimé)) pour tout renseignement sur ce terrain ou sur les démarches à suivre. Maisons France Confort Bonchamp-lès-Laval vous accompagne dans tous vos projets immobiliers et à toutes les étapes de l’achat.
Commer
TERRAIN ET MAISONCommer : maison T3 (75 m²) en venteIDÉALEMENT SITUÉE – MAISON 3 PIÈCES NEUVEÀ vendre : à quelques kilomètres de Laval, votre agence Maisons France Confort Bonchamp-lès-Laval est heureuse de vous présenter cette maison de 3 pièces de plain-pied de 75 m² idéalement située dans Commer (53470).Conçue de plain-pied, elle offre deux chambres, une cuisine et une salle de bains. Cette maison est neuve.Le terrain de la propriété s’étend sur 587 m².La maison est située dans un secteur convoité. L’École Primaire Publique Jules Verne est implantée à moins de 10 minutes à pied. Il y a un accès à la nationale N12 à 7 km. Il y a un tennis et une boulangerie à proximité du bien.Elle est à vendre pour la somme de 212 500 €.Contactez notre constructeur (Claire FERBER : (Numéro supprimé)) pour toute information sur la maison, sur les modalités de vente et sur les démarches à suivre. Maisons France Confort Bonchamp-lès-Laval vous accompagne à toutes les étapes de votre projet et dans tous vos projets immobiliers.
Commer
TERRAIN ET MAISONCommer : maison F4 (95 m²) en venteIDÉALEMENT SITUÉE – MAISON 4 PIÈCES NEUVEÀ vendre : localisée à deux pas de Laval, votre agence Maisons France Confort Bonchamp-lès-Laval est heureuse de vous présenter cette maison de 4 pièces de 95 m² et de 452 m² de terrain idéalement située dans Commer (53470). Son intérieur compte quatre chambres, une cuisine et deux salles de bains.Cette maison possède 2 niveaux. Elle est neuve.Cette maison se situe dans un secteur recherché. L’École Primaire Publique Jules Verne se trouve à moins de 10 minutes à pied. Il y a un accès à la nationale N12 à 7 km. Il y a un tennis et une boulangerie à proximité du bien.Elle est à vendre pour la somme de 249 500 €.N’hésitez pas à prendre contact avec notre agence (FERBER Claire : (Numéro supprimé)) pour toute question sur la maison, sur les modalités de vente ou sur les démarches à suivre. Maisons France Confort Bonchamp-lès-Laval est là pour vous accompagner dans tous vos projets immobiliers.
Commer
TERRAINTerrain de 452 m² en vente à CommerIDÉALEMENT SITUÉ – PROCHE DE LAVALÀ 22 km de Laval à Commer (53470), terrain de 452 m². Il y a l’École Primaire Publique Jules Verne à moins de 10 minutes à pied. Il y a un accès à la nationale N12 à 7 km. On trouve un tennis et une boulangerie à quelques minutes du bien.Il est à vendre pour la somme de 34 000 €. Contactez Claire FERBER ((Numéro supprimé)) pour toute information sur le terrain ou sur les modalités de vente. Maisons France Confort Bonchamp-lès-Laval est là pour vous accompagner à toutes les étapes de votre projet.
Commer
TERRAIN ET MAISONMaison F3 (73 m²) en vente à CommerIDÉALEMENT SITUÉE – MAISON 3 PIÈCES NEUVEÀ vendre à deux pas de Laval, Maisons France Confort Bonchamp-lès-Laval vous propose cette maison de 3 pièces de plain-pied de 73 m² idéalement située dans Commer (53470).Conçue de plain-pied, elle offre deux chambres, une cuisine et une salle de bains. Cette maison est neuve.Le terrain de la propriété est de 452 m².La maison se trouve dans un secteur convoité. L’École Primaire Publique Jules Verne est implantée à moins de 10 minutes à pied. On trouve un accès à la nationale N12 à 7 km. Il y a un tennis et une boulangerie dans les environs.Elle est proposée à l’achat pour 196 300 €.N’hésitez pas à prendre contact avec Claire FERBER (tél : (Numéro supprimé)) pour tout renseignement sur la maison, sur les démarches à suivre et sur les modalités de vente.
Mayenne
TERRAINTerrain de 484 m² en vente à MoulayIDÉALEMENT SITUÉ – PROCHE DE LAVALÀ Moulay (53100) en vente à quelques kilomètres de Laval, donnez vie à votre projet de construction sur ce terrain de 484 m². Il se trouve dans un secteur convoité. Une école primaire y est implantée. On trouve un accès à la nationale N12 à 4 km. Il y a deux commerces dans les environs.Son prix de vente est de 33 500 €. Contactez notre agence (Claire FERBER : (Numéro supprimé)) pour toute information sur ce terrain. Maisons France Confort Bonchamp-lès-Laval vous accompagne dans toutes vos démarches et dans tous vos projets immobiliers.
L’actualité immobilière à Mayenne
27/11/2023
02/11/2023
30/10/2023
20/10/2023
16/10/2023
16/10/2023