Terrain à vendre à Le Tilleul (76790)
Le Tilleul
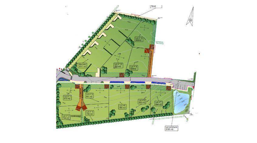
TERRAINTerrain de 893 m² en vente au TilleulPROCHE DU HAVREEn vente à 3 km de la Manche et à quelques kilomètres du Havre au Tilleul (76790), grand terrain. Il y a une école élémentaire dans le quartier. L’autoroute A29 est accessible à 18 km. On trouve un tennis, une boulangerie et une supérette à quelques minutes à peine.Son prix de vente est de 97 000 €. Contactez Barbara PELLETER (tél : (Numéro supprimé)) pour obtenir de plus amples informations sur le terrain, sur les démarches à suivre ou sur les modalités de vente.
Le Tilleul
TERRAINLe Tilleul : terrain de 670 m² en ventePROCHE DU HAVREAu Tilleul (76790) en vente à 3 km de la Manche et à quelques kilomètres du Havre, donnez vie à votre résidence principale ou secondaire sur ce terrain de 670 m². Il y a une école élémentaire dans le quartier. Il y a un accès à l’autoroute A29 à 18 km. On trouve un tennis, une boulangerie et une supérette à quelques minutes.Il est à vendre pour la somme de 82 000 €. Prenez contact avec notre agence (PELLETER Barbara : (Numéro supprimé)) pour obtenir de plus amples informations sur ce terrain.
Le Tilleul
TERRAINLe Tilleul : terrain de 641 m² en ventePROCHE DU HAVREAu Tilleul (76790) à 3 km de la Manche et à quelques kilomètres du Havre, donnez vie à la maison de vos rêves sur ce terrain de 641 m². Il y a une école élémentaire dans le quartier. Il y a un accès à l’autoroute A29 à 18 km. On trouve un tennis, une boulangerie et une supérette à quelques minutes à peine.Son prix de vente est de 80 000 €. Contactez Barbara PELLETER (tél : (Numéro supprimé)) pour plus d’informations sur ce terrain ou sur les modalités de vente. Concrétisez vos projets immobiliers avec Les Maisons Extraco Le Havre.
Le Tilleul
TERRAINLe Tilleul : terrain de 724 m² en venteIDÉALEMENT SITUÉ – PROCHE DU HAVREEn vente à 3 km de la Manche et à quelques kilomètres du Havre au Tilleul (76790), grand terrain. Réalisez-y la maison de vos rêves. Ce terrain, orienté au sud-ouest, donne sur un espace vert. Dans un quartier prisé, ce terrain idéalement situé est proche des commerces et des écoles. Il y a une école élémentaire dans le quartier. L’autoroute A29 est accessible à 18 km. On trouve un tennis, une boulangerie et une supérette dans les environs.Son prix de vente est de 87 000 €. Contactez Lindsay COLLAY ((Numéro supprimé)) pour plus d’informations sur le terrain, sur les démarches à suivre ou sur les modalités de vente. Maisons France Confort Sainte-Marie-des-Champs est là pour vous accompagner à toutes les étapes de votre projet.
De 0 à 4 parmi 4 résultats
En savoir plus sur Le Tilleul
Vous trouverez 4 terrain disponibles à l’achat dans la ville de Le Tilleul.
Les prix varient de 80 000€ à 97 000€. Le prix moyen constaté pour un terrrain est de 86 500€.
Nos articles concernant Le Tilleul
27/11/2023
02/11/2023
30/10/2023
20/10/2023
16/10/2023
16/10/2023