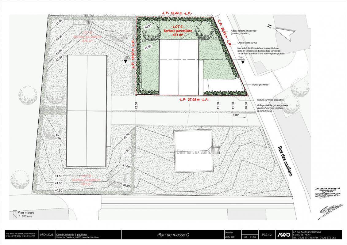
Terrain à bâtir de 393 m2 avec Permis de Construire à Neuville-Sur-Oise
Images
Description
Terrain à bâtir de 393 m² avec permis de construire déposé à Neuville-sur-Oise
A découvrir sans tarder, un magnifique terrain à bâtir de 393 m², situé dans un environnement calme et recherché de Neuville-sur-Oise, à proximité des commodités, des transports (RER A à quelques minutes) et des écoles.
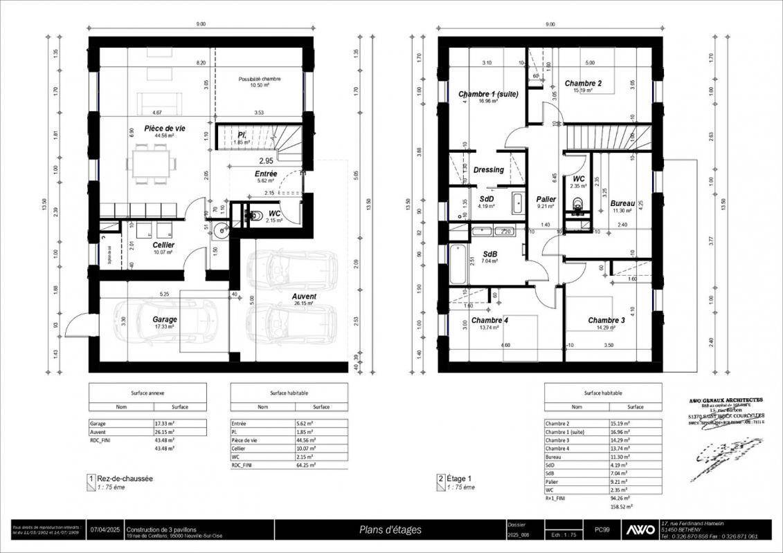
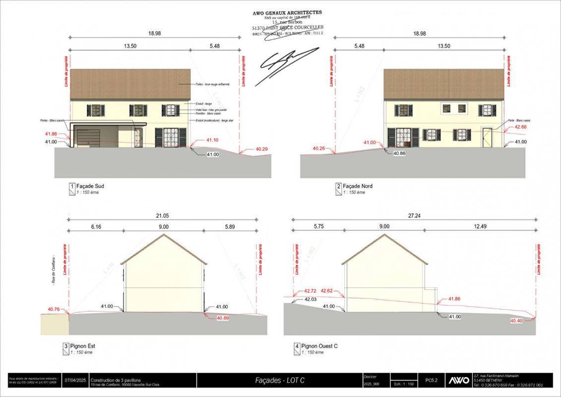
Terrain non viabilisé, mais bénéficiant d'un permis de construire déposé pour une maison familiale de 158 m² habitables sur deux niveaux + combles, offrant de très belles prestations :
- Grande pièce de vie de 45 m² baignée de lumière
- 5 chambres spacieuses, idéales pour une grande famille ou un projet de vie intergénérationnel
- 1 salle de bains, 1 salle d'eau et 2 WC
- Garage pour une voiture,
- Auvent extérieur permettant de stationner deux véhicules supplémentaires
Ce projet allie confort, modernité et espace, le tout sur une belle parcelle de terrain offrant de nombreuses possibilités d'aménagement paysager.
Une opportunité rare sur le secteur ! N'attendez plus pour construire la maison de vos rêves dans un cadre de vie privilégié.
Prix de vente HAI : 150.000 euros
Au choix, 3 terrains à bâtir de 618 m², 588m² et 393m² avec permis de construire déposés à Neuville-sur-Oise au prix unitaire de 150.000 euros.
Pour visiter et vous accompagner dans votre projet, contactez Emmanuel HUEBER, au (Numéro supprimé) ou, par courriel à (Email supprimé).
Selon l'article L.561.5 du Code Monétaire et Financier, pour l'organisation de la visite, la présentation d'une pièce d'identité vous sera demandée.
Cette présente annonce a été rédigée sous la responsabilité éditoriale de Emmanuel HUEBER agissant sous le statut d'agent commercial immatriculé au RSAC Versailles 798 058 863 auprès de SAS PROPRIETES PRIVEES, au capital de 44 920 euros, ZAC LE CHÊNE FERRÉ - 44 ALLÉE DES CINQ CONTINENTS 44120 VERTOU; SIRET 487 624 777 00040, RCS Nantes. Carte Professionnelle Transactions sur immeubles et fonds de commerce (T) et Gestion immobilière (G) n°CPI 4401 2016 000 010 388 délivrée par la CCI Nantes - Saint Nazaire. Compte séquestre n(Numéro supprimé)67 BPA SAINT-SEBASTIEN-SUR-LOIRE (44230). Garantie GALIAN-SMABTP - 89 rue de la Boétie, 75008 Paris - n°28137 J pour 2 000 000 euros pour T et 120 000 euros pour G. Assurance responsabilité civile professionnelle par GALIAN-SMABTP n° de police 28137.J
Mandat réf : 426117 - Le professionnel garantit et sécurise votre projet immobilier.
Emmanuel HUEBER (EI) Agent Commercial - Numéro RSAC : Versailles 798 058 863 - .
Logement susceptibles de vous intéresser
Nous vous proposons de découvrir aussi cette sélection de logements situés à moins de 10km de Neuville-sur-Oise et qui seraient susceptibles de vous intéresser.
Neuville-sur-Oise
TERRAINTerrain à bâtir de 618 m² avec permis de construire déposé à Neuville-sur-OiseA découvrir sans tarder, un magnifique terrain à bâtir de 618 m², situé dans un environnement calme et recherché de Neuville-sur-Oise, à proximité des commodités, des transports (RER A à quelques minutes) et des écoles.Terrain non viabilisé, mais bénéficiant d’un permis de construire déposé pour une maison familiale de 158 m² habitables sur deux niveaux + combles, offrant de très belles prestations :- Grande pièce de vie de 45 m² baignée de lumière- 5 chambres spacieuses, idéales pour une grande famille ou un projet de vie intergénérationnel- 1 salle de bains, 1 salle d’eau et 2 WC- Garage pour une voiture,- Auvent extérieur permettant de stationner deux véhicules supplémentairesCe projet allie confort, modernité et espace, le tout sur une belle parcelle de terrain offrant de nombreuses possibilités d’aménagement paysager.Une opportunité rare sur le secteur ! N’attendez plus pour construire la maison de vos rêves dans un cadre de vie privilégié.Prix de vente HAI : 150.000 euros honoraires charge vendeurAu choix, 3 terrains à bâtir de 618 m², 588m² et 393m² avec permis de construire déposés à Neuville-sur-Oise au prix unitaire de 150.000 euros.Pour visiter et vous accompagner dans votre projet, contactez Emmanuel HUEBER, au (Numéro supprimé) ou, par courriel à (Email supprimé).Selon l’article L.561.5 du Code Monétaire et Financier, pour l’organisation de la visite, la présentation d’une pièce d’identité vous sera demandée.Cette présente annonce a été rédigée sous la responsabilité éditoriale de Emmanuel HUEBER agissant sous le statut d’agent commercial immatriculé au RSAC Versailles 798 058 863 auprès de SAS PROPRIETES PRIVEES, au capital de 44 920 euros, ZAC LE CHÊNE FERRÉ – 44 ALLÉE DES CINQ CONTINENTS 44120 VERTOU; SIRET 487 624 777 00040, RCS Nantes. Carte Professionnelle Transactions sur immeubles et fonds de commerce (T) et Gestion immobilière (G) n°CPI 4401 2016 000 010 388 délivrée par la CCI Nantes – Saint Nazaire. Compte séquestre n(Numéro supprimé)67 BPA SAINT-SEBASTIEN-SUR-LOIRE (44230). Garantie GALIAN-SMABTP – 89 rue de la Boétie, 75008 Paris – n°28137 J pour 2 000 000 euros pour T et 120 000 euros pour G. Assurance responsabilité civile professionnelle par GALIAN-SMABTP n° de police 28137.JMandat réf : 426113 – Le professionnel garantit et sécurise votre projet immobilier. Emmanuel HUEBER (EI) Agent Commercial – Numéro RSAC : Versailles 798 058 863 – .
Neuville-sur-Oise
TERRAINTerrain à bâtir de 588 m² avec permis de construire déposé à Neuville-sur-OiseA découvrir sans tarder, un magnifique terrain à bâtir de 588 m², situé dans un environnement calme et recherché de Neuville-sur-Oise, à proximité des commodités, des transports (RER A à quelques minutes) et des écoles.Terrain non viabilisé, mais bénéficiant d’un permis de construire déposé pour une maison familiale de 158 m² habitables sur deux niveaux + combles, offrant de très belles prestations :- Grande pièce de vie de 45 m² baignée de lumière- 5 chambres spacieuses, idéales pour une grande famille ou un projet de vie intergénérationnel- 1 salle de bains, 1 salle d’eau et 2 WC- Garage pour une voiture,- Auvent extérieur permettant de stationner deux véhicules supplémentairesCe projet allie confort, modernité et espace, le tout sur une belle parcelle de terrain offrant de nombreuses possibilités d’aménagement paysager.Une opportunité rare sur le secteur ! N’attendez plus pour construire la maison de vos rêves dans un cadre de vie privilégié.Prix de vente HAI : 150.000 eurosAu choix, 3 terrains à bâtir de 618 m², 588m² et 393m² avec permis de construire déposés à Neuville-sur-Oise au prix unitaire de 150.000 euros.Pour visiter et vous accompagner dans votre projet, contactez Emmanuel HUEBER, au (Numéro supprimé) ou, par courriel à (Email supprimé).Selon l’article L.561.5 du Code Monétaire et Financier, pour l’organisation de la visite, la présentation d’une pièce d’identité vous sera demandée.Cette présente annonce a été rédigée sous la responsabilité éditoriale de Emmanuel HUEBER agissant sous le statut d’agent commercial immatriculé au RSAC Versailles 798 058 863 auprès de SAS PROPRIETES PRIVEES, au capital de 44 920 euros, ZAC LE CHÊNE FERRÉ – 44 ALLÉE DES CINQ CONTINENTS 44120 VERTOU; SIRET 487 624 777 00040, RCS Nantes. Carte Professionnelle Transactions sur immeubles et fonds de commerce (T) et Gestion immobilière (G) n°CPI 4401 2016 000 010 388 délivrée par la CCI Nantes – Saint Nazaire. Compte séquestre n(Numéro supprimé)67 BPA SAINT-SEBASTIEN-SUR-LOIRE (44230). Garantie GALIAN-SMABTP – 89 rue de la Boétie, 75008 Paris – n°28137 J pour 2 000 000 euros pour T et 120 000 euros pour G. Assurance responsabilité civile professionnelle par GALIAN-SMABTP n° de police 28137.JMandat réf : 426129 – Le professionnel garantit et sécurise votre projet immobilier. Emmanuel HUEBER (EI) Agent Commercial – Numéro RSAC : Versailles 798 058 863 – .
Neuville-sur-Oise
TERRAINTerrain à bâtir de 393 m² avec permis de construire déposé à Neuville-sur-OiseA découvrir sans tarder, un magnifique terrain à bâtir de 393 m², situé dans un environnement calme et recherché de Neuville-sur-Oise, à proximité des commodités, des transports (RER A à quelques minutes) et des écoles.Terrain non viabilisé, mais bénéficiant d’un permis de construire déposé pour une maison familiale de 158 m² habitables sur deux niveaux + combles, offrant de très belles prestations :- Grande pièce de vie de 45 m² baignée de lumière- 5 chambres spacieuses, idéales pour une grande famille ou un projet de vie intergénérationnel- 1 salle de bains, 1 salle d’eau et 2 WC- Garage pour une voiture,- Auvent extérieur permettant de stationner deux véhicules supplémentairesCe projet allie confort, modernité et espace, le tout sur une belle parcelle de terrain offrant de nombreuses possibilités d’aménagement paysager.Une opportunité rare sur le secteur ! N’attendez plus pour construire la maison de vos rêves dans un cadre de vie privilégié.Prix de vente HAI : 150.000 eurosAu choix, 3 terrains à bâtir de 618 m², 588m² et 393m² avec permis de construire déposés à Neuville-sur-Oise au prix unitaire de 150.000 euros.Pour visiter et vous accompagner dans votre projet, contactez Emmanuel HUEBER, au (Numéro supprimé) ou, par courriel à (Email supprimé).Selon l’article L.561.5 du Code Monétaire et Financier, pour l’organisation de la visite, la présentation d’une pièce d’identité vous sera demandée.Cette présente annonce a été rédigée sous la responsabilité éditoriale de Emmanuel HUEBER agissant sous le statut d’agent commercial immatriculé au RSAC Versailles 798 058 863 auprès de SAS PROPRIETES PRIVEES, au capital de 44 920 euros, ZAC LE CHÊNE FERRÉ – 44 ALLÉE DES CINQ CONTINENTS 44120 VERTOU; SIRET 487 624 777 00040, RCS Nantes. Carte Professionnelle Transactions sur immeubles et fonds de commerce (T) et Gestion immobilière (G) n°CPI 4401 2016 000 010 388 délivrée par la CCI Nantes – Saint Nazaire. Compte séquestre n(Numéro supprimé)67 BPA SAINT-SEBASTIEN-SUR-LOIRE (44230). Garantie GALIAN-SMABTP – 89 rue de la Boétie, 75008 Paris – n°28137 J pour 2 000 000 euros pour T et 120 000 euros pour G. Assurance responsabilité civile professionnelle par GALIAN-SMABTP n° de police 28137.JMandat réf : 426117 – Le professionnel garantit et sécurise votre projet immobilier. Emmanuel HUEBER (EI) Agent Commercial – Numéro RSAC : Versailles 798 058 863 – .
Cergy
TERRAINVENTE d’un terrain de 704 m² à BouconvillersIDÉALEMENT SITUÉ – PROCHE DE CERGYÀ deux pas de la gare de Chars (Paris à 55 min par le Transilien J) à Bouconvillers (60240), grand terrain. Dans un quartier recherché, ce terrain idéalement situé est proche des écoles et des commerces. Niveau transports, il y a six gares à moins de 10 minutes en voiture. Les autoroutes A16 et A15 et la nationale N14 sont accessibles à moins de 20 km et Cergy est située à 18 km. On trouve un tennis et un commerce dans les environs.Ce terrain est proposé à l’achat pour 92 900 €. Prenez contact avec Gilles BOREAU ((Numéro supprimé)) pour tout renseignement sur le terrain. Les Maisons Extraco Chambourcy est là pour vous accompagner à toutes les étapes de votre projet.
Cergy
TERRAIN ET MAISONBouconvillers : maison F4 (74 m²) à vendreIDÉALEMENT SITUÉE – MAISON 4 PIÈCES NEUVEEn vente : à proximité du Transilien J (gare de Chars, 55 min de Paris), nous vous proposons cette maison de 4 pièces de plain-pied de 74 m² et de 704 m² de terrain, idéalement située dans Bouconvillers (60240). Son intérieur offre trois chambres, une cuisine et une salle de bains.La maison est neuve.Le bien est situé dans un secteur prisé. Niveau transports, on trouve six gares à moins de 10 minutes en voiture. Les autoroutes A16 et A15 et la nationale N14 sont accessibles à moins de 20 km et Cergy se situe à 18 km. Il y a un tennis et un commerce à proximité.Il est proposé à l’achat pour 233 800 €.Prenez contact avec notre agence (Gilles BOREAU : (Numéro supprimé)) pour obtenir de plus amples informations sur la maison.
Cergy
TERRAIN ET MAISONVENTE d’une maison T5 (80 m²) à BouconvillersIDÉALEMENT SITUÉE – MAISON 5 PIÈCES NEUVEÀ deux pas du Transilien J (gare de Chars, 55 min de Paris), à vendre idéalement située dans Bouconvillers (60240), laissez vous charmer par cette maison de 5 pièces de 80 m². Son intérieur est composé de trois chambres, d’une cuisine et d’une salle de bains.Le terrain de cette maison est de 704 m².C’est une maison de 2 niveaux. Elle est neuve.La maison est située dans un secteur prisé. Niveau transports, on trouve six gares à moins de 10 minutes en voiture. Les autoroutes A16 et A15 et la nationale N14 sont accessibles à moins de 20 km et Cergy se situe à 18 km. Il y a un tennis et un commerce dans les environs.Son prix de vente est de 264 800 €.Contactez notre agence (Gilles BOREAU : (Numéro supprimé)) pour toute question sur la propriété, sur les modalités de vente ou sur les démarches à suivre.
Cergy
TERRAIN ET MAISONMaison T5 (108 m²) à vendre à BouconvillersIDÉALEMENT SITUÉE – MAISON 5 PIÈCES NEUVEÀ deux pas du Transilien J (gare de Chars, 55 min de Paris), nous vous proposons cette maison de 5 pièces de 108 m² et de 704 m² de terrain en vente idéalement située dans Bouconvillers (60240).Cette maison compte 2 niveaux. Elle inclut quatre chambres, une cuisine et une salle de bains. Cette maison est neuve.La propriété se trouve dans un secteur recherché. Niveau transports en commun, il y a six gares à moins de 10 minutes en voiture. Les autoroutes A16 et A15 et la nationale N14 sont accessibles à moins de 20 km et Cergy se situe à 18 km. On trouve un tennis et un commerce à quelques minutes à peine.Son prix de vente est de 314 400 €.Contactez Gilles BOREAU (tél : (Numéro supprimé)) pour plus d’informations sur la maison, sur les démarches à suivre ou sur les modalités de vente. Faites de vos projets immobiliers une réalité avec Les Maisons Extraco Chambourcy.
Maurecourt
TERRAINVous êtes à la recherche d'un terrain qui saura concrétiser vos ambitions ? Ne cherchez plus ! Ce terrain généreusement dimensionné, situé dans un quartier prisé et recherché, représente une occasion rare de bâtir le projet de vos rêves. Caractéristiques : Emplacement privilégié, offrant une accessibilité facile aux principales commodités locales ainsi qu'aux principaux axes de transport. Cadre paisible et serein, parfait pour ceux qui souhaitent allier tranquillité et proximité avec l'animation urbaine. Proximité immédiate des écoles, commerces et services essentiels, offrant ainsi confort et praticité au quotidien. C'est l'opportunité parfaite pour investir dans un avenir prometteur. Ne laissez pas passer cette chance unique de donner vie à vos projets ! Pour plus d'informations ou pour organiser une visite, contactez-moi sans tarder.Prix : 199000 €.Sur ce terrain, réalisez votre projet de construction de maison RE 2020 avec PAVILLONS D'ÎLE-DE-FRANCE (constructeur de maisons de gamme et sur-mesure depuis plus de 50 ans) :- Plan sur-mesure et personnalisé de 2 à 5 chambres- Mode de chauffage au choix- Grands choix d'équipements et de prestations- Matériaux de qualité selon les normes en vigueur- Accompagnement dans le choix et l’acquisition du terrainDemandez une étude gratuite et personnalisée de votre projet de construction sur ce terrain !Contactez Jason GUEVEL au (Numéro supprimé) ou au (Numéro supprimé) (Pavillons d'Île-de-France – Agence de Cauffry).Prix hors frais de notaire. Terrain sélectionné et vu pour vous sous réserve de disponibilité et au prix indiqué par notre partenaire foncier. Visuels non contractuels.Cette annonce a été créée et diffusée avec le logiciel VITAHOME.
Maurecourt
TERRAINVous êtes à la recherche d'un terrain qui saura concrétiser vos ambitions ? Ne cherchez plus ! Ce terrain généreusement dimensionné, situé dans un quartier prisé et recherché, représente une occasion rare de bâtir le projet de vos rêves. Caractéristiques : Emplacement privilégié, offrant une accessibilité facile aux principales commodités locales ainsi qu'aux principaux axes de transport. Cadre paisible et serein, parfait pour ceux qui souhaitent allier tranquillité et proximité avec l'animation urbaine. Proximité immédiate des écoles, commerces et services essentiels, offrant ainsi confort et praticité au quotidien. C'est l'opportunité parfaite pour investir dans un avenir prometteur. Ne laissez pas passer cette chance unique de donner vie à vos projets ! Pour plus d'informations ou pour organiser une visite, contactez-moi sans tarder.Prix : 225000 €.Sur ce terrain, réalisez votre projet de construction de maison RE 2020 avec PAVILLONS D'ÎLE-DE-FRANCE (constructeur de maisons de gamme et sur-mesure depuis plus de 50 ans) :- Plan sur-mesure et personnalisé de 2 à 5 chambres- Mode de chauffage au choix- Grands choix d'équipements et de prestations- Matériaux de qualité selon les normes en vigueur- Accompagnement dans le choix et l’acquisition du terrainDemandez une étude gratuite et personnalisée de votre projet de construction sur ce terrain !Contactez Jason GUEVEL au (Numéro supprimé) ou au (Numéro supprimé) (Pavillons d'Île-de-France – Agence de Cauffry).Prix hors frais de notaire. Terrain sélectionné et vu pour vous sous réserve de disponibilité et au prix indiqué par notre partenaire foncier. Visuels non contractuels.Cette annonce a été créée et diffusée avec le logiciel VITAHOME.
L’actualité immobilière à Neuville-sur-Oise
27/11/2023
02/11/2023
30/10/2023
20/10/2023
16/10/2023
16/10/2023