Terrain à vendre à Bollène (84500)
Bollène
TERRAINMAISONS FRANCE CONFORT, vous propose avec son partenaire foncier un terrain sur la commune de BOLLENE. Cette jolie parcelle de 302 m² pour 70 500 €, entièrement viabilisée, est située à proximité des commodités, ce qui vous assure un grand confort de vie. Dans un environnement calme et agréable pour votre projet de vie, réalisez votre rêve grâce à la maison qui vous ressemble.Vous pouvez contacter votre conseiller construction Olivier PUAUX ((Numéro supprimé)) pour en savoir plus ou vous faire accompagner dans votre recherche de logement.
Bollène
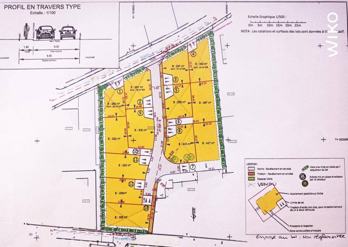
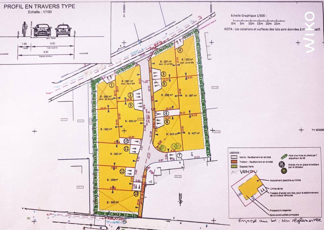
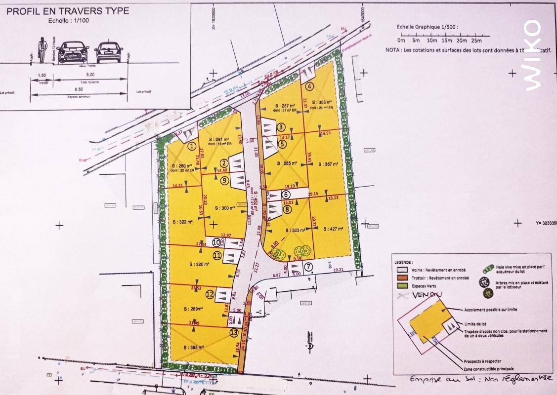
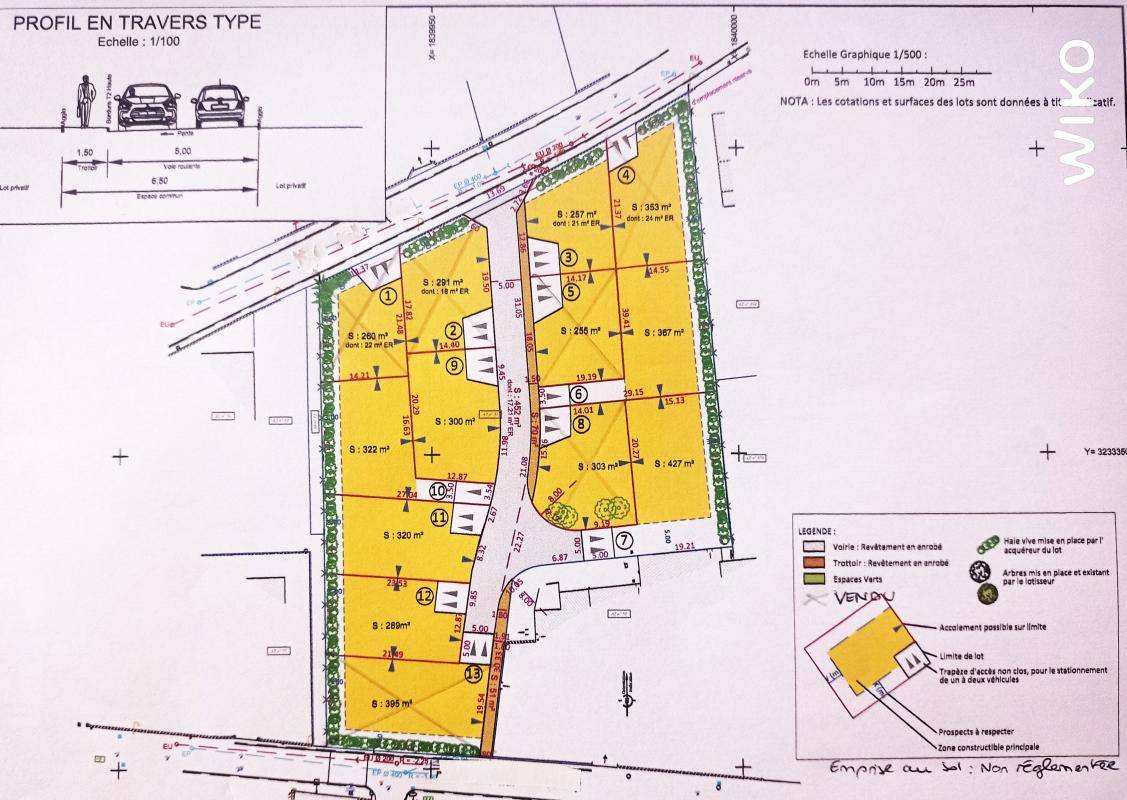
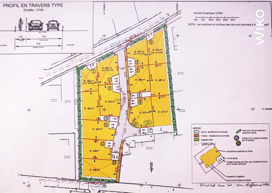
TERRAIN84500 BOLLENE – A DECOUVRIR RAPIDEMENT EN EXCLUSIVITE – TERRAIN PLAT & VIABILISE DE 642M² – LOT 10 & 11 – PISCINABLE – LIBRE CONSTRUCTEUR – DANS CHARMANT PETIT LOTISSEMENT AGREABLE, CALME & TRES BIEN DESSERVI – POSSIBILITE DE MIXER HABITATION & PROFESSION LIBERALE – ETUDE DE SOL REALISEE- JOURNEE DE VISITE PROGRAMMEE CE JEUDI 11 DÉCEMBRE 2025 -efficity, l’agence qui estime votre bien en ligne, vous propose de découvrir en EXCLUSIVITE avec Raphaël Deloche, ce terrain constructible idéalement situé rue Jules Verne, dans un environnement calme et verdoyant, à proximité immédiate des commodités : écoles, commerces, transports et accès autoroute. Vous pourrez ici construire la maison idéale, de PLEIN PIED OU ETAGE, avec terrasse, piscine et garage tout en conservant un bout de jardin.Constructions destinées à l’implantation de profession libérales, médicales ou apparentées autorisées.Emprise au sol non règlementée – Superficie plancher 400m²Etude de sols G1 réalisées -DEPECHEZ-VOUS : 7 terrains disponibles sur 13. Les atouts du terrain :Libre constructeurTerrain plat et paisibleViabilisé, prêt à bâtirPiscinableSurface plancher jusqu’à 400 m² possibleEmprise au sol : non règlementéeConstruction en limite de parcelle ou distance de 3mSecteur recherché et agréable à vivre Informations complémentaires :15 % de la parcelle à conserver en espace vertAccompagnement constructeur possiblePlusieurs parcelles disponibles de différentes tailles sur le lotissement Cette parcelle n’attend plus que vous et votre petit cocoon…Une belle opportunité pour concrétiser votre projet de maison dans un cadre serein et pratique ! Renseignements & visites avec Raphaël Deloche par téléphone ou par mail Les informations sur les risques auxquels ce bien est exposé sont disponibles sur le site Georisque : georisques. gouv. fr Raphaël Deloche – EI – est Agent Commercial mandataire en immobilier, immatriculé au Registre Spécial des Agents Commerciaux du Tribunal de Commerce de Avignon sous le n(Numéro supprimé).Siège social du mandant : effiCity, 48 avenue de Villiers – 75017 PARIS – Société par Actions Simplifiée, société au capital de 132 373,05 euros, immatriculée au RCS Paris 497 617 746 et titulaire de la Carte professionnelle CPI 7501 2015 000 002 025 – CCI Paris IDF – Caisse de Garantie : GALIAN Assurances 89 rue de la Boétie 75008 Paris
Bollène
TERRAIN84500 BOLLENE – A DECOUVRIR RAPIDEMENT EN EXCLUSIVITE – TERRAIN PLAT & VIABILISE DE 609M² – LOT 11 & 12 – PISCINABLE – LIBRE CONSTRUCTEUR – DANS CHARMANT PETIT LOTISSEMENT AGREABLE, CALME & TRES BIEN DESSERVI – POSSIBILITE DE MIXER HABITATION & PROFESSION LIBERALE – ETUDE DE SOL REALISEE- JOURNEE DE VISITE PROGRAMMEE CE JEUDI 11 DÉCEMBRE 2025 -efficity, l’agence qui estime votre bien en ligne, vous propose de découvrir en EXCLUSIVITE avec Raphaël Deloche, ce terrain constructible idéalement situé rue Jules Verne, dans un environnement calme et verdoyant, à proximité immédiate des commodités : écoles, commerces, transports et accès autoroute. Vous pourrez ici construire la maison idéale, de PLEIN PIED OU ETAGE, avec terrasse, piscine et garage tout en conservant un bout de jardin.Constructions destinées à l’implantation de profession libérales, médicales ou apparentées autorisées.Emprise au sol non règlementée – Superficie plancher 400m²Etude de sols G1 réalisées -DEPECHEZ-VOUS : 7 terrains disponibles sur 13. Les atouts du terrain :Libre constructeurTerrain plat et paisibleViabilisé, prêt à bâtirPiscinableSurface plancher jusqu’à 400 m² possibleEmprise au sol : non règlementéeConstruction en limite de parcelle ou distance de 3mSecteur recherché et agréable à vivre Informations complémentaires :15 % de la parcelle à conserver en espace vertAccompagnement constructeur possiblePlusieurs parcelles disponibles de différentes tailles sur le lotissement Cette parcelle n’attend plus que vous et votre petit cocoon…Une belle opportunité pour concrétiser votre projet de maison dans un cadre serein et pratique ! Renseignements & visites avec Raphaël Deloche par téléphone ou par mail Les informations sur les risques auxquels ce bien est exposé sont disponibles sur le site Georisque : georisques. gouv. fr Raphaël Deloche – EI – est Agent Commercial mandataire en immobilier, immatriculé au Registre Spécial des Agents Commerciaux du Tribunal de Commerce de Avignon sous le n(Numéro supprimé).Siège social du mandant : effiCity, 48 avenue de Villiers – 75017 PARIS – Société par Actions Simplifiée, société au capital de 132 373,05 euros, immatriculée au RCS Paris 497 617 746 et titulaire de la Carte professionnelle CPI 7501 2015 000 002 025 – CCI Paris IDF – Caisse de Garantie : GALIAN Assurances 89 rue de la Boétie 75008 Paris
Bollène
TERRAIN84500 BOLLENE – A DECOUVRIR RAPIDEMENT EN EXCLUSIVITE – TERRAIN PLAT & VIABILISE DE 622M² – LOT 9 & 10 – PISCINABLE – LIBRE CONSTRUCTEUR – DANS CHARMANT PETIT LOTISSEMENT AGREABLE, CALME & TRES BIEN DESSERVI – POSSIBILITE DE MIXER HABITATION & PROFESSION LIBERALE – ETUDE DE SOL REALISEE- JOURNEE DE VISITE PROGRAMMEE CE JEUDI 11 DÉCEMBRE 2025 -efficity, l’agence qui estime votre bien en ligne, vous propose de découvrir en EXCLUSIVITE avec Raphaël Deloche, ce terrain constructible idéalement situé rue Jules Verne, dans un environnement calme et verdoyant, à proximité immédiate des commodités : écoles, commerces, transports et accès autoroute. Vous pourrez ici construire la maison idéale, de PLEIN PIED OU ETAGE, avec terrasse, piscine et garage tout en conservant un bout de jardin.Constructions destinées à l’implantation de profession libérales, médicales ou apparentées autorisées.Emprise au sol non règlementée – Superficie plancher 400m²Etude de sols G1 réalisées -DEPECHEZ-VOUS : 7 terrains disponibles sur 13. Les atouts du terrain :Libre constructeurTerrain plat et paisibleViabilisé, prêt à bâtirPiscinableSurface plancher jusqu’à 400 m² possibleEmprise au sol : non règlementéeConstruction en limite de parcelle ou distance de 3mSecteur recherché et agréable à vivre Informations complémentaires :15 % de la parcelle à conserver en espace vertAccompagnement constructeur possiblePlusieurs parcelles disponibles de différentes tailles sur le lotissement Cette parcelle n’attend plus que vous et votre petit cocoon…Une belle opportunité pour concrétiser votre projet de maison dans un cadre serein et pratique ! Renseignements & visites avec Raphaël Deloche par téléphone ou par mail Les informations sur les risques auxquels ce bien est exposé sont disponibles sur le site Georisque : georisques. gouv. fr Raphaël Deloche – EI – est Agent Commercial mandataire en immobilier, immatriculé au Registre Spécial des Agents Commerciaux du Tribunal de Commerce de Avignon sous le n(Numéro supprimé).Siège social du mandant : effiCity, 48 avenue de Villiers – 75017 PARIS – Société par Actions Simplifiée, société au capital de 132 373,05 euros, immatriculée au RCS Paris 497 617 746 et titulaire de la Carte professionnelle CPI 7501 2015 000 002 025 – CCI Paris IDF – Caisse de Garantie : GALIAN Assurances 89 rue de la Boétie 75008 Paris
Bollène
TERRAIN84500 BOLLENE – A DECOUVRIR RAPIDEMENT EN EXCLUSIVITE – TERRAIN PLAT & VIABILISE DE 794M² – LOT 6 & 7 – PISCINABLE – LIBRE CONSTRUCTEUR – DANS CHARMANT PETIT LOTISSEMENT AGREABLE, CALME & TRES BIEN DESSERVI – POSSIBILITE DE MIXER HABITATION & PROFESSION LIBERALE – ETUDE DE SOL REALISEE- JOURNEE DE VISITE PROGRAMMEE CE JEUDI 11 DÉCEMBRE 2025 -efficity, l’agence qui estime votre bien en ligne, vous propose de découvrir en EXCLUSIVITE avec Raphaël Deloche, ce terrain constructible idéalement situé rue Jules Verne, dans un environnement calme et verdoyant, à proximité immédiate des commodités : écoles, commerces, transports et accès autoroute. Vous pourrez ici construire la maison idéale, de PLEIN PIED OU ETAGE, avec terrasse, piscine et garage tout en conservant un bout de jardin.Constructions destinées à l’implantation de profession libérales, médicales ou apparentées autorisées.Emprise au sol non règlementée – Superficie plancher 400m²Etude de sols G1 réalisées -DEPECHEZ-VOUS : 7 terrains disponibles sur 13. Les atouts du terrain :Libre constructeurTerrain plat et paisibleViabilisé, prêt à bâtirPiscinableSurface plancher jusqu’à 400 m² possibleEmprise au sol : non règlementéeConstruction en limite de parcelle ou distance de 3mSecteur recherché et agréable à vivre Informations complémentaires :15 % de la parcelle à conserver en espace vertAccompagnement constructeur possiblePlusieurs parcelles disponibles de différentes tailles sur le lotissement Cette parcelle n’attend plus que vous et votre petit cocoon…Une belle opportunité pour concrétiser votre projet de maison dans un cadre serein et pratique ! Renseignements & visites avec Raphaël Deloche par téléphone ou par mail Les informations sur les risques auxquels ce bien est exposé sont disponibles sur le site Georisque : georisques. gouv. fr Raphaël Deloche – EI – est Agent Commercial mandataire en immobilier, immatriculé au Registre Spécial des Agents Commerciaux du Tribunal de Commerce de Avignon sous le n(Numéro supprimé).Siège social du mandant : effiCity, 48 avenue de Villiers – 75017 PARIS – Société par Actions Simplifiée, société au capital de 132 373,05 euros, immatriculée au RCS Paris 497 617 746 et titulaire de la Carte professionnelle CPI 7501 2015 000 002 025 – CCI Paris IDF – Caisse de Garantie : GALIAN Assurances 89 rue de la Boétie 75008 Paris
Bollène
TERRAINBollène : terrain de 640 m² en ventePROCHE DE MONTÉLIMAREn vente à quelques kilomètres de Montélimar à Bollène (84500), grand terrain. Le terrain est proche des écoles et des commerces. Plusieurs écoles (maternelle, primaire et collège) sont implantées à moins de 10 minutes à pied. Côté transports, il y a la gare Bollène La Croisière à moins de 10 minutes en voiture. Il y a un accès à l’autoroute A7 à 1 km. On trouve une bibliothèque, des boulangeries, des commerces, un supermarché, quatre boucheries-charcuteries et une supérette à proximité du bien. Ne manquez pas le marché Centre-Ville chaque lundi matin.Ce terrain est à vendre pour la somme de 119 000 €. N’hésitez pas à prendre contact avec Driss LAMTALSI pour toute information sur le terrain.Contacter Mr Lamtalsi au (Numéro supprimé)
Bollène
TERRAIN84500 BOLLENE – A DECOUVRIR RAPIDEMENT EN EXCLUSIVITE – TERRAIN PLAT & VIABILISE DE 322M² – LOT 10 – PISCINABLE – LIBRE CONSTRUCTEUR – DANS CHARMANT PETIT LOTISSEMENT AGREABLE, CALME & TRES BIEN DESSERVI – POSSIBILITE DE MIXER HABITATION & PROFESSION LIBERALE – ETUDE DE SOL REALISEE- JOURNEE DE VISITE PROGRAMMEE CE JEUDI 11 DÉCEMBRE 2025 -efficity, l’agence qui estime votre bien en ligne, vous propose de découvrir en EXCLUSIVITE avec Raphaël Deloche, ce terrain constructible idéalement situé rue Jules Verne, dans un environnement calme et verdoyant, à proximité immédiate des commodités : écoles, commerces, transports et accès autoroute. Vous pourrez ici construire la maison idéale, de PLEIN PIED OU ETAGE, avec terrasse, piscine et garage tout en conservant un bout de jardin.Constructions destinées à l’implantation de profession libérales, médicales ou apparentées autorisées.Emprise au sol non règlementée – Superficie plancher 200m²Etude de sols G1 réalisées -DEPECHEZ-VOUS : 7 terrains disponibles sur 13. Les atouts du terrain :Libre constructeurTerrain plat et paisibleViabilisé, prêt à bâtirPiscinableSurface plancher jusqu’à 200 m² possibleEmprise au sol : non règlementéeConstruction en limite de parcelle ou distance de 3mSecteur recherché et agréable à vivre Informations complémentaires :15 % de la parcelle à conserver en espace vertAccompagnement constructeur possiblePlusieurs parcelles disponibles de différentes tailles sur le lotissement Cette parcelle n’attend plus que vous et votre petit cocoon…Une belle opportunité pour concrétiser votre projet de maison dans un cadre serein et pratique ! Renseignements & visites avec Raphaël Deloche par téléphone ou par mail Les informations sur les risques auxquels ce bien est exposé sont disponibles sur le site Georisque : georisques. gouv. fr Raphaël Deloche – EI – est Agent Commercial mandataire en immobilier, immatriculé au Registre Spécial des Agents Commerciaux du Tribunal de Commerce de Avignon sous le n(Numéro supprimé).Siège social du mandant : effiCity, 48 avenue de Villiers – 75017 PARIS – Société par Actions Simplifiée, société au capital de 132 373,05 euros, immatriculée au RCS Paris 497 617 746 et titulaire de la Carte professionnelle CPI 7501 2015 000 002 025 – CCI Paris IDF – Caisse de Garantie : GALIAN Assurances 89 rue de la Boétie 75008 Paris
Bollène
TERRAIN84500 BOLLENE – A DECOUVRIR RAPIDEMENT EN EXCLUSIVITE – TERRAIN PLAT & VIABILISE DE 367M² – LOT 6 – PISCINABLE – LIBRE CONSTRUCTEUR – DANS CHARMANT PETIT LOTISSEMENT AGREABLE, CALME & TRES BIEN DESSERVI – POSSIBILITE DE MIXER HABITATION & PROFESSION LIBERALE – ETUDE DE SOL REALISEE- JOURNEE DE VISITE PROGRAMMEE CE JEUDI 11 DÉCEMBRE 2025 -efficity, l’agence qui estime votre bien en ligne, vous propose de découvrir en EXCLUSIVITE avec Raphaël Deloche, ce terrain constructible idéalement situé rue Jules Verne, dans un environnement calme et verdoyant, à proximité immédiate des commodités : écoles, commerces, transports et accès autoroute. Vous pourrez ici construire la maison idéale, de PLEIN PIED OU ETAGE, avec terrasse, piscine et garage tout en conservant un bout de jardin.Constructions destinées à l’implantation de profession libérales, médicales ou apparentées autorisées.Emprise au sol non règlementée – Superficie plancher 200m²Etude de sols G1 réalisées -DEPECHEZ-VOUS : 7 terrains disponibles sur 13. Les atouts du terrain :Libre constructeurTerrain plat et paisibleViabilisé, prêt à bâtirPiscinableSurface plancher jusqu’à 200 m² possibleEmprise au sol : non règlementéeConstruction en limite de parcelle ou distance de 3mSecteur recherché et agréable à vivre Informations complémentaires :15 % de la parcelle à conserver en espace vertAccompagnement constructeur possiblePlusieurs parcelles disponibles de différentes tailles sur le lotissement Cette parcelle n’attend plus que vous et votre petit cocoon…Une belle opportunité pour concrétiser votre projet de maison dans un cadre serein et pratique ! Renseignements & visites avec Raphaël Deloche par téléphone ou par mail Les informations sur les risques auxquels ce bien est exposé sont disponibles sur le site Georisque : georisques. gouv. fr Raphaël Deloche – EI – est Agent Commercial mandataire en immobilier, immatriculé au Registre Spécial des Agents Commerciaux du Tribunal de Commerce de Avignon sous le n(Numéro supprimé).Siège social du mandant : effiCity, 48 avenue de Villiers – 75017 PARIS – Société par Actions Simplifiée, société au capital de 132 373,05 euros, immatriculée au RCS Paris 497 617 746 et titulaire de la Carte professionnelle CPI 7501 2015 000 002 025 – CCI Paris IDF – Caisse de Garantie : GALIAN Assurances 89 rue de la Boétie 75008 Paris
Bollène
TERRAIN84500 BOLLENE – A DECOUVRIR RAPIDEMENT EN EXCLUSIVITE – TERRAIN PLAT & VIABILISE DE 300M² – LOT 9 – PISCINABLE – LIBRE CONSTRUCTEUR – DANS CHARMANT PETIT LOTISSEMENT AGREABLE, CALME & TRES BIEN DESSERVI – POSSIBILITE DE MIXER HABITATION & PROFESSION LIBERALE – ETUDE DE SOL REALISEE- JOURNEE DE VISITE PROGRAMMEE CE JEUDI 11 DÉCEMBRE 2025 -efficity, l’agence qui estime votre bien en ligne, vous propose de découvrir en EXCLUSIVITE avec Raphaël Deloche, ce terrain constructible idéalement situé rue Jules Verne, dans un environnement calme et verdoyant, à proximité immédiate des commodités : écoles, commerces, transports et accès autoroute. Vous pourrez ici construire la maison idéale, de PLEIN PIED OU ETAGE, avec terrasse, piscine et garage tout en conservant un bout de jardin.Constructions destinées à l’implantation de profession libérales, médicales ou apparentées autorisées.Emprise au sol non règlementée – Superficie plancher 200m²Etude de sols G1 réalisées -DEPECHEZ-VOUS : 7 terrains disponibles sur 13. Les atouts du terrain :Libre constructeurTerrain plat et paisibleViabilisé, prêt à bâtirPiscinableSurface plancher jusqu’à 200 m² possibleEmprise au sol : non règlementéeConstruction en limite de parcelle ou distance de 3mSecteur recherché et agréable à vivre Informations complémentaires :15 % de la parcelle à conserver en espace vertAccompagnement constructeur possiblePlusieurs parcelles disponibles de différentes tailles sur le lotissement Cette parcelle n’attend plus que vous et votre petit cocoon…Une belle opportunité pour concrétiser votre projet de maison dans un cadre serein et pratique ! Renseignements & visites avec Raphaël Deloche par téléphone ou par mail Les informations sur les risques auxquels ce bien est exposé sont disponibles sur le site Georisque : georisques. gouv. fr Raphaël Deloche – EI – est Agent Commercial mandataire en immobilier, immatriculé au Registre Spécial des Agents Commerciaux du Tribunal de Commerce de Avignon sous le n(Numéro supprimé).Siège social du mandant : effiCity, 48 avenue de Villiers – 75017 PARIS – Société par Actions Simplifiée, société au capital de 132 373,05 euros, immatriculée au RCS Paris 497 617 746 et titulaire de la Carte professionnelle CPI 7501 2015 000 002 025 – CCI Paris IDF – Caisse de Garantie : GALIAN Assurances 89 rue de la Boétie 75008 Paris
Bollène
TERRAIN84500 BOLLENE – A DECOUVRIR RAPIDEMENT EN EXCLUSIVITE – TERRAIN PLAT & VIABILISE DE 427M² – LOT 7 – PISCINABLE – LIBRE CONSTRUCTEUR – DANS CHARMANT PETIT LOTISSEMENT AGREABLE, CALME & TRES BIEN DESSERVI – POSSIBILITE DE MIXER HABITATION & PROFESSION LIBERALE – ETUDE DE SOL REALISEE- JOURNEE DE VISITE PROGRAMMEE CE JEUDI 11 DÉCEMBRE 2025 -efficity, l’agence qui estime votre bien en ligne, vous propose de découvrir en EXCLUSIVITE avec Raphaël Deloche, ce terrain constructible idéalement situé rue Jules Verne, dans un environnement calme et verdoyant, à proximité immédiate des commodités : écoles, commerces, transports et accès autoroute. Vous pourrez ici construire la maison idéale, de PLEIN PIED OU ETAGE, avec terrasse, piscine et garage tout en conservant un bout de jardin.Constructions destinées à l’implantation de profession libérales, médicales ou apparentées autorisées.Emprise au sol non règlementée – Superficie plancher 200m²Etude de sols G1 réalisées -DEPECHEZ-VOUS : 7 terrains disponibles sur 13. Les atouts du terrain :Libre constructeurTerrain plat et paisibleViabilisé, prêt à bâtirPiscinableSurface plancher jusqu’à 200 m² possibleEmprise au sol : non règlementéeConstruction en limite de parcelle ou distance de 3mSecteur recherché et agréable à vivre Informations complémentaires :15 % de la parcelle à conserver en espace vertAccompagnement constructeur possiblePlusieurs parcelles disponibles de différentes tailles sur le lotissement Cette parcelle n’attend plus que vous et votre petit cocoon…Une belle opportunité pour concrétiser votre projet de maison dans un cadre serein et pratique ! Renseignements & visites avec Raphaël Deloche par téléphone ou par mail Les informations sur les risques auxquels ce bien est exposé sont disponibles sur le site Georisque : georisques. gouv. fr Raphaël Deloche – EI – est Agent Commercial mandataire en immobilier, immatriculé au Registre Spécial des Agents Commerciaux du Tribunal de Commerce de Avignon sous le n(Numéro supprimé).Siège social du mandant : effiCity, 48 avenue de Villiers – 75017 PARIS – Société par Actions Simplifiée, société au capital de 132 373,05 euros, immatriculée au RCS Paris 497 617 746 et titulaire de la Carte professionnelle CPI 7501 2015 000 002 025 – CCI Paris IDF – Caisse de Garantie : GALIAN Assurances 89 rue de la Boétie 75008 Paris
Bollène
TERRAIN84500 BOLLENE – A DECOUVRIR RAPIDEMENT EN EXCLUSIVITE – TERRAIN PLAT & VIABILISE DE 289M² – LOT 12 – PISCINABLE – LIBRE CONSTRUCTEUR – DANS CHARMANT PETIT LOTISSEMENT AGREABLE, CALME & TRES BIEN DESSERVI – POSSIBILITE DE MIXER HABITATION & PROFESSION LIBERALE – ETUDE DE SOL REALISEE- JOURNEE DE VISITE PROGRAMMEE CE JEUDI 11 DÉCEMBRE 2025 -efficity, l’agence qui estime votre bien en ligne, vous propose de découvrir en EXCLUSIVITE avec Raphaël Deloche, ce terrain constructible idéalement situé rue Jules Verne, dans un environnement calme et verdoyant, à proximité immédiate des commodités : écoles, commerces, transports et accès autoroute. Vous pourrez ici construire la maison idéale, de PLEIN PIED OU ETAGE, avec terrasse, piscine et garage tout en conservant un bout de jardin.Constructions destinées à l’implantation de profession libérales, médicales ou apparentées autorisées.Emprise au sol non règlementée – Superficie plancher 200m²Etude de sols G1 réalisées -DEPECHEZ-VOUS : 7 terrains disponibles sur 13. Les atouts du terrain :Libre constructeurTerrain plat et paisibleViabilisé, prêt à bâtirPiscinableSurface plancher jusqu’à 200 m² possibleEmprise au sol : non règlementéeConstruction en limite de parcelle ou distance de 3mSecteur recherché et agréable à vivre Informations complémentaires :15 % de la parcelle à conserver en espace vertAccompagnement constructeur possiblePlusieurs parcelles disponibles de différentes tailles sur le lotissement Cette parcelle n’attend plus que vous et votre petit cocoon…Une belle opportunité pour concrétiser votre projet de maison dans un cadre serein et pratique ! Renseignements & visites avec Raphaël Deloche par téléphone ou par mail Les informations sur les risques auxquels ce bien est exposé sont disponibles sur le site Georisque : georisques. gouv. fr Raphaël Deloche – EI – est Agent Commercial mandataire en immobilier, immatriculé au Registre Spécial des Agents Commerciaux du Tribunal de Commerce de Avignon sous le n(Numéro supprimé).Siège social du mandant : effiCity, 48 avenue de Villiers – 75017 PARIS – Société par Actions Simplifiée, société au capital de 132 373,05 euros, immatriculée au RCS Paris 497 617 746 et titulaire de la Carte professionnelle CPI 7501 2015 000 002 025 – CCI Paris IDF – Caisse de Garantie : GALIAN Assurances 89 rue de la Boétie 75008 Paris
Bollène
TERRAIN84500 BOLLENE – A DECOUVRIR RAPIDEMENT EN EXCLUSIVITE – TERRAIN PLAT & VIABILISE DE 320M² – LOT 11 – PISCINABLE – LIBRE CONSTRUCTEUR – DANS CHARMANT PETIT LOTISSEMENT AGREABLE, CALME & TRES BIEN DESSERVI – POSSIBILITE DE MIXER HABITATION & PROFESSION LIBERALE – ETUDE DE SOL REALISEE- JOURNEE DE VISITE PROGRAMMEE CE JEUDI 11 DÉCEMBRE 2025 -efficity, l’agence qui estime votre bien en ligne, vous propose de découvrir en EXCLUSIVITE avec Raphaël Deloche, ce terrain constructible idéalement situé rue Jules Verne, dans un environnement calme et verdoyant, à proximité immédiate des commodités : écoles, commerces, transports et accès autoroute. Vous pourrez ici construire la maison idéale, de PLEIN PIED OU ETAGE, avec terrasse, piscine et garage tout en conservant un bout de jardin.Constructions destinées à l’implantation de profession libérales, médicales ou apparentées autorisées.Emprise au sol non règlementée – Superficie plancher 200m²Etude de sols G1 réalisées -DEPECHEZ-VOUS : 7 terrains disponibles sur 13. Les atouts du terrain :Libre constructeurTerrain plat et paisibleViabilisé, prêt à bâtirPiscinableSurface plancher jusqu’à 200 m² possibleEmprise au sol : non règlementéeConstruction en limite de parcelle ou distance de 3mSecteur recherché et agréable à vivre Informations complémentaires :15 % de la parcelle à conserver en espace vertAccompagnement constructeur possiblePlusieurs parcelles disponibles de différentes tailles sur le lotissement Cette parcelle n’attend plus que vous et votre petit cocoon…Une belle opportunité pour concrétiser votre projet de maison dans un cadre serein et pratique ! Renseignements & visites avec Raphaël Deloche par téléphone ou par mail Les informations sur les risques auxquels ce bien est exposé sont disponibles sur le site Georisque : georisques. gouv. fr Raphaël Deloche – EI – est Agent Commercial mandataire en immobilier, immatriculé au Registre Spécial des Agents Commerciaux du Tribunal de Commerce de Avignon sous le n(Numéro supprimé).Siège social du mandant : effiCity, 48 avenue de Villiers – 75017 PARIS – Société par Actions Simplifiée, société au capital de 132 373,05 euros, immatriculée au RCS Paris 497 617 746 et titulaire de la Carte professionnelle CPI 7501 2015 000 002 025 – CCI Paris IDF – Caisse de Garantie : GALIAN Assurances 89 rue de la Boétie 75008 Paris
Bollène
TERRAINMAISONS FRANCE CONFORT, vous propose avec ses partenaires fonciers un terrain sur la commune de BOLLENE. Cette jolie parcelle de 635m² pour 119 500€, est située à proximité des commodités, ce qui vous assure un grand confort de vie. Dans un environnement calme et agréable pour votre projet de vie, réalisez votre rêve grâce à la maison qui vous ressemble.Vous pouvez contacter votre conseiller construction Olivier PUAUX ((Numéro supprimé)) pour en savoir plus ou vous faire accompagner dans votre recherche de logement.
Bollène
TERRAINMAISONS FRANCE CONFORT vous propose avec son partenaire foncier : Sur la commune de Bollène, un joli terrain plat à bâtir de 353 m2 environ, entièrement viabilisé, dans un quartier résidentiel calme.Située dans un lotissement de 13 lots, cette parcelle se trouve à proximité immédiate du centre ville et de toutes les commodités.Vous pouvez contacter votre conseiller construction Olivier PUAUX ((Numéro supprimé)) pour en savoir plus ou vous faire accompagner dans votre recherche de logement.
Bollène
TERRAIN84500 BOLLENE – A DECOUVRIR RAPIDEMENT EN EXCLUSIVITE – TERRAIN PLAT & VIABILISE DE 257M² – LOT 3 – PISCINABLE – LIBRE CONSTRUCTEUR – DANS CHARMANT PETIT LOTISSEMENT AGREABLE, CALME & TRES BIEN DESSERVI – POSSIBILITE DE MIXER HABITATION & PROFESSION LIBERALE – ETUDE DE SOL REALISEE- JOURNEE DE VISITE PROGRAMMEE CE JEUDI 11 DÉCEMBRE 2025 -efficity, l’agence qui estime votre bien en ligne, vous propose de découvrir en EXCLUSIVITE avec Raphaël Deloche, ce terrain constructible idéalement situé rue Jules Verne, dans un environnement calme et verdoyant, à proximité immédiate des commodités : écoles, commerces, transports et accès autoroute. Vous pourrez ici construire la maison idéale, de PLEIN PIED OU ETAGE, avec terrasse, piscine et garage tout en conservant un bout de jardin.Constructions destinées à l’implantation de profession libérales, médicales ou apparentées autorisées.Emprise au sol non règlementée – Superficie plancher 200m²Etude de sols G1 réalisées -DEPECHEZ-VOUS : 7 terrains disponibles sur 13. Les atouts du terrain :Libre constructeurTerrain plat et paisibleViabilisé, prêt à bâtirPiscinableSurface plancher jusqu’à 200 m² possibleEmprise au sol : non règlementéeConstruction en limite de parcelle ou distance de 3mSecteur recherché et agréable à vivre Informations complémentaires :15 % de la parcelle à conserver en espace vertAccompagnement constructeur possiblePlusieurs parcelles disponibles de différentes tailles sur le lotissement Cette parcelle n’attend plus que vous et votre petit cocoon…Une belle opportunité pour concrétiser votre projet de maison dans un cadre serein et pratique ! Renseignements & visites avec Raphaël Deloche par téléphone ou par mail Les informations sur les risques auxquels ce bien est exposé sont disponibles sur le site Georisque : georisques. gouv. fr Raphaël Deloche – EI – est Agent Commercial mandataire en immobilier, immatriculé au Registre Spécial des Agents Commerciaux du Tribunal de Commerce de Avignon sous le n(Numéro supprimé).Siège social du mandant : effiCity, 48 avenue de Villiers – 75017 PARIS – Société par Actions Simplifiée, société au capital de 132 373,05 euros, immatriculée au RCS Paris 497 617 746 et titulaire de la Carte professionnelle CPI 7501 2015 000 002 025 – CCI Paris IDF – Caisse de Garantie : GALIAN Assurances 89 rue de la Boétie 75008 Paris
Bollène
TERRAINVALRIM AMENAGEMENT vous propose un terrain de 630 m² au coeur du quartier Saint Pierre, libre de constructeurs, borné et viabilisé sur la commune de Bollène au sud de Saint Paul Trois Châteaux.Le bien est situé proche des infrastructures, à 5 min des grands axes routiers et à 25 minutes de Montélimar.Au coeur d’un quartier résidentiel, ce programme du domaine de Saint Pierre, est très au calme bien que proche des commerces et écoles.Prix hors frais de notaire.D’autres surfaces sont encore disponibles.N’hésitez pas à nous contacter pour plus de renseignements et/ou une visite terrain.Livraison : été 2024 (Les délais peuvent être majorés en cas de force majeure; ex: intempéries)Statut : lancement commercial
Bollène
TERRAINBollèneNous vous proposons un joli terrain à bâtir, à proximité des commerces, écoles, services.Ce terrain de 1246 m2 environ, non viabilisé, peut être proposé pour un investisseur ou particulier, possibilité de faire deux maisons.DP ok, viabilité en bordure du terrain, libre constructeur, position dominante, terrain arboré.Il n’attend plus que vous, venez vite le découvrir !!Une négociation est possible.Contacts : Emilie Broche (Numéro supprimé) ou Sandra Simoncelli-Clain – (Numéro supprimé) – BSK immobilierCette annonce référence 220058 vous est présentée par votre agent commercial BSK Immobilier SANDRA SIMONCELLI-CLAIN (EI) immatriculé au RSAC de AVIGNON (84000) sous le numéro 84226564700011.Prix du bien : 150 500,00 €Les honoraires d’agence sont à la charge du vendeur.Les informations sur les risques auxquels ce bien est exposé sont disponibles sur le site Géorisques : www.georisques.gouv.fr
Bollène
TERRAINVALRIM AMENAGEMENT vous propose un terrain de 680 m² au coeur du quartier Saint Pierre, libre de constructeurs, borné et viabilisé sur la commune de Bollène au sud de Saint Paul Trois Châteaux.Le bien est situé proche des infrastructures, à 5 min des grands axes routiers et à 25 minutes de Montélimar.Au coeur d’un quartier résidentiel, ce programme du domaine de Saint Pierre, est très au calme bien que proche des commerces et écoles.Prix hors frais de notaire.D’autres surfaces sont encore disponibles.N’hésitez pas à nous contacter pour plus de renseignements et/ou une visite terrain.Livraison : été 2024 (Les délais peuvent être majorés en cas de force majeure; ex: intempéries)Statut : lancement commercial
De 0 à 18 parmi 18 résultats
En savoir plus sur Bollène
Vous trouverez 18 terrain disponibles à l’achat dans la ville de Bollène.
Les prix varient de 51 000€ à 159 000€. Le prix moyen constaté pour un terrrain est de 98 372€.
Nos articles concernant Bollène
27/11/2023
02/11/2023
30/10/2023
20/10/2023
16/10/2023
16/10/2023