Cucuron : Terrain constructible avec PC purgé 12 appartements
Images
Description
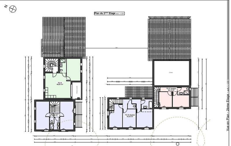
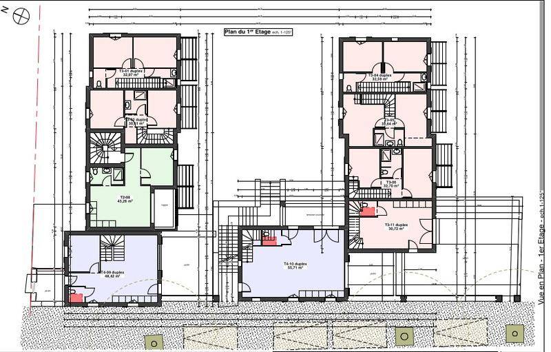
Cucuron centre : Vente d'un très beau projet sur parcelle de terrain de 1581 m2. Permis accordé et purgé pour édification d'un ensemble de 12 logements en sept bâtiments et 15 places de parking ouvertes. L'emprise au sol totale du projet est de 474 m2, la surface plancher de 827m2. Celui-ci comprend un T1, trois T2 avec extérieur ou loggia , six T3 dont 5 duplex avec terrasse et jardin, et deux T4 en duplex avec terrasse ou jardin, également pour une surface allant de 31,77 m2 à 111,14 m2 de surface habitable.
Le projet est élégant (croquis annexés). Envois du PC sur demande. Pour promoteur ou entreprise de maçonnerie générale. Secteur proche Ansouis, Lourmarin. Possibilité bureaux, appart-hotel, gites... Me téléphoner pour de plus amples informations. Les honoraires sont à la charge du vendeur.
Les informations sur les risques auxquels ce bien est exposé sont disponibles sur le site Géorisques : www. georisques. gouv. fr.
Contactez Jacqueline PORIKIAN Entrepreneur Individuel, Agent commercial OptimHome (RSAC N(Numéro supprimé) Greffe de AVIGNON) (Numéro supprimé) (réf. 595265 )
Logement susceptibles de vous intéresser
Nous vous proposons de découvrir aussi cette sélection de logements situés à moins de 10km de Cucuron et qui seraient susceptibles de vous intéresser.
La Motte-d'Aigues
TERRAIN ET MAISONConfort et économies d'énergie avec cette maison en DPE ACette maison à étage de 115 m² offre un espace de vie fonctionnel. Au rez-de-chaussée, une grande pièce de vie avec cuisine ouverte, un cellier attenant à la cuisine et un garage intégré viennent compléter l'espace jour.À l’étage, vous trouverez 3 chambre spacieuse, ainsi qu’une suite parentale avec salle d'eau privative, offrant confort et intimité. Une seconde salle de bain complète cet étage, idéale pour les membres de la famille ou les invités.Située dans un quartier proche des commodités, cette maison sera parfaite pour ceux qui recherchent un cadre de vie agréable.Contactez-nous au (Numéro supprimé).Frais de notaire non compris.Cette annonce a été créée et diffusée avec le logiciel VITAHOME.
La Motte-d'Aigues
TERRAIN ET MAISONLaissez-vous séduire par cette maison de 95 m², parfaite pour ceux qui veulent allier confort, modernité et respect de l’environnement. Cette maison de plain-pied offre 3 chambres, une grande pièce de vie lumineuse, une salle de bains, des WC indépendants et un cellier. Sa conception intelligente garantit une circulation fluide et une belle luminosité naturelle. Son DPE A vous assure un habitat sain, économe et agréable en toutes saisons. Une maison qui a tout pour plaire aux familles exigeantes.Contactez-nous au (Numéro supprimé).Frais de notaire non compris.Cette annonce a été créée et diffusée avec le logiciel VITAHOME.
La Motte-d'Aigues
TERRAIN ET MAISONMaison moderne et éco-performante, avec une performance énergétique DPE A.Caractéristiques principales :Rez-de-chaussée :- Espace de vie lumineux de 40 m²,- Suite parentale avec salle d’eau et dressing,- Hall d’entrée avec WC indépendant,- Garage.Étage :- Deux chambres spacieuses avec espace rangement,- Salle de bain et WC indépendant,- Villas alliant confort, modernité et faible consommation énergétique.Contactez-nous au (Numéro supprimé).Frais de notaire non compris.Cette annonce a été créée et diffusée avec le logiciel VITAHOME.
Villelaure
TERRAINÀ vendre sur la commune de Villelaure, terrain constructible bénéficiant d’un permis déposé pour 3 habitations, une opportunité rare pour concrétiser votre projet immobilier en toute sérénité.Idéal pour un projet familial ou un investissement, ce terrain offre :Trois surfaces disponible : de 220 m² à 380 m² selon le lot choisiUn permis déjà déposé, évitant les démarches longues et incertainesUn montage juridique clair et sécurisé, suivi par un notaireUn environnement calme et résidentiel, proche des commodités, écoles et commercesVous pouvez venir visiter le terrain pour vous projeter concrètement, ou consulter les plans de construction pour imaginer votre futur logement.Cette configuration permet de réduire les contraintes administratives et d’aborder votre projet avec confiance et sérénité.Que vous soyez primo-accédant ou investisseur, ce terrain représente une opportunité rare sur Villelaure pour construire de manière fiable et transparente.Contact uniquement par téléphone : (Numéro supprimé)
Cadenet
TERRAINEntre PERTUIS et LOURMARIN, à 30 min d’Aix, écoles et commerces à 5 min, sur la jolie commune de Cadenet.En collaboration avec son partenaire foncier, MAISONS DE MANON GARDANNE vous propose de réaliser votre projet de construction sur l’un des lots de ce futur lotissement. Les terrains sont plats, viabilisés, dans un environnement de campagne, calme et paisible proche commodités, Plusieurs surfaces de terrain proposées de 400 à 700 m² bénéficiant d’emprises au sol confortables pour de nombreuses possibilités de construction. À compter d’avril 2025, le Prêt à Taux Zéro va s’étendre à tout le territoire et réintégrer les maisons individuelles dans son périmètre. Bonne nouvelle pour votre projet immobilier et son financement !Et si 2025 était l’année pour devenir propriétaire ?MAISONS DE MANON GARDANNE(Numéro supprimé)Annonce proposée par un Agent Commercial Partenaire.
Cadenet
TERRAIN ET MAISONLaissez-vous séduire par cette maison à l’architecture soignée, pensée pour allier volume, lumière naturelle et qualité de vie. Dès l’entrée, vous découvrirez un vaste espace de vie baigné de lumière, où la cuisine ouverte, moderne et fonctionnelle, s’intègre parfaitement. Un cellier attenant vient compléter cet espace avec une touche de praticité bienvenue. Le garage intégré, quant à lui, offre non seulement un stationnement sécurisé, mais aussi un bel espace de rangement.À l’étage, l’espace nuit propose 3 chambres confortables, dont une belle suite parentale avec sa salle d’eau privative. Une seconde salle de bains vient parfaire l’aménagement, idéale pour répondre aux besoins de toute la famille.Nichée dans un quartier paisible tout en restant proche des écoles, commerces et services, cette maison offre un cadre de vie agréable et pratique au quotidien. Elle conviendra parfaitement aux familles en quête d’un lieu à la fois chaleureux, moderne et bien situé.Contactez-nous au (Numéro supprimé).Frais de notaire non compris.Cette annonce a été créée et diffusée avec le logiciel VITAHOME.
Cadenet
TERRAIN ET MAISONDans un environnement résidentiel calme et prisé.Prestations intérieures :- Hall d’entrée avec espace rangement- Grande pièce de vie lumineuse de 50 m²- Cuisine américaine- Accès direct à la terrasse- Cellier attenant avec liaison directe au garageEspace nuit :- 2 chambres à l’étage avec espace rangement- 2 Suites parentale, une au rez de chaussé et une à l'étage- 3 salles de bains aux finitions soignées- 2 dressings spacieuxConfort & Performance :- Diagnostic de Performance Énergétique : A- Isolation thermique et acoustique renforcée- Faibles consommations énergétiques- Matériaux de qualité et finitions premiumÀ proximité :- Commerces, écoles, transports et commodités à quelques minutes- Environnement calme, cadre de vie privilégiéContactez-nous au (Numéro supprimé).Frais de notaire non compris.Cette annonce a été créée et diffusée avec le logiciel VITAHOME.
Cucuron
TERRAINCucuron centre : Vente d’un très beau projet sur parcelle de terrain de 1581 m2. Permis accordé et purgé pour édification d’un ensemble de 12 logements en sept bâtiments et 15 places de parking ouvertes. L’emprise au sol totale du projet est de 474 m2, la surface plancher de 827m2. Celui-ci comprend un T1, trois T2 avec extérieur ou loggia , six T3 dont 5 duplex avec terrasse et jardin, et deux T4 en duplex avec terrasse ou jardin, également pour une surface allant de 31,77 m2 à 111,14 m2 de surface habitable.Le projet est élégant (croquis annexés). Envois du PC sur demande. Pour promoteur ou entreprise de maçonnerie générale. Secteur proche Ansouis, Lourmarin. Possibilité bureaux, appart-hotel, gites… Me téléphoner pour de plus amples informations. Les honoraires sont à la charge du vendeur.Les informations sur les risques auxquels ce bien est exposé sont disponibles sur le site Géorisques : www. georisques. gouv. fr.Contactez Jacqueline PORIKIAN Entrepreneur Individuel, Agent commercial OptimHome (RSAC N(Numéro supprimé) Greffe de AVIGNON) (Numéro supprimé) (réf. 595265 )
Cadenet
TERRAINL’agence Maisons France Confort du Pontet vous propose, en accord avec son partenaire foncier et en exclusivité ce joli terrain de 500 m² sur la commune CADENET .CADENET se situe à 20 minutes d’AIX EN PROVENCE et de SALON DE PROVENCE avec accès a l autoroute a 15mn . Le terrain est exposé plein sud, il est non viabilités et se situe dans une zone très calme tout proche du centre ville. Vous trouverez dans les alentours un hôpital, un centre commercial, un pôle santé, une école, collège, arrêt de bus etc…Pour plus d’informations, n’hésitez à contacter Lionel Montagne de l’agence de Maisons France Confort Le Pontet au (Numéro supprimé)
L’actualité immobilière à Cucuron
27/11/2023
02/11/2023
30/10/2023
20/10/2023
16/10/2023
16/10/2023