Terrain à vendre à Maule (78580)
Maule
TERRAINMaule : terrain de 500 m² à vendreEMPLACEMENT PRIVILÉGIÉ – Eligible au prêt à taux zéroÀ deux pas de la gare (Paris à 60 min avec le Transilien N) à Maule (78580), terrain de 500 m². Réalisez-y la maison de vos rêves. Dans un secteur attractif, le terrain bénéficiant d’un emplacement d’exception est proche des commerces et des écoles. Des écoles de tous niveaux (de la maternelle au lycée) sont implantées à moins de 10 minutes à pied. Niveau transports, il y a la gare Maule à quelques pas du terrain. On trouve une bibliothèque, un tennis, des commerces, des boulangeries, un supermarché, un bureau de poste et trois épiceries à quelques minutes.Il est à vendre pour la somme de 185 000 €. N’hésitez pas à prendre contact avec Gilles BOREAU ((Numéro supprimé)) pour toute question sur ce terrain. Concrétisez vos projets immobiliers avec Les Maisons Extraco Chambourcy.
Maule
TERRAINVENTE : terrain de 500 m² à MauleIDÉALEMENT SITUÉÀ deux pas du Transilien N (60 min de Paris) à Maule (78580), terrain de 500 m². Réalisez-y votre résidence principale ou secondaire. Ce terrain, exposé plein sud-est, donne sur un jardin. Dans un quartier convoité, le terrain idéalement situé est proche des commerces et des écoles. Il y a des écoles (de la maternelle au lycée) à moins de 10 minutes à pied. Côté transports, on trouve la gare Maule dans les environs. Il y a une bibliothèque, un tennis, des commerces, des boulangeries, un supermarché, un bureau de poste et trois épiceries à proximité.Ce terrain est proposé à l’achat pour 185 000 €. Contactez Thibault DUTEURTRE (tél : (Numéro supprimé)) pour obtenir de plus amples renseignements sur le terrain. Maisons Balency Coignières est là pour vous accompagner dans tous vos projets immobiliers.Annonce proposée par un Agent Commercial Partenaire.
Maule
TERRAINVENTE d’un terrain de 556 m² à MaulePROCHE GARE À Maule (78580) à deux pas de la gare (Paris à 60 min avec le Transilien N), projetez la maison de vos rêves sur ce terrain de 556 m². Non loin de la gare, ce terrain proche de la gare est proche des écoles et des commerces. Il y a des établissements scolaires du primaire et du secondaire à moins de 10 minutes à pied. Niveau transports en commun, on trouve la gare Maule dans les alentours. Il y a une bibliothèque, un tennis, des commerces, des boulangeries, un supermarché, trois épiceries et un bureau de poste à proximité.Son prix de vente est de 193 000 €. Contactez Gilles BOREAU (tél : (Numéro supprimé)) pour toute question sur ce terrain ou sur les démarches à suivre. Les Maisons Extraco Chambourcy vous accompagne dans tous vos projets immobiliers et dans toutes vos démarches.
Maule
TERRAINVENTE – Terrain constructible de 720 m² à MauleOpportunité idéale pour votre maison sur-mesure Maisons ÉvolutionDécouvrez ce grand terrain plat et viabilisé de 720 m², dans un secteur recherché et calme. Une occasion unique de concevoir et construire votre maison entièrement personnalisée avec Maisons Évolution, spécialiste du sur-mesure.Un emplacement privilégiéÀ proximité du Transilien N (≈ 60 min de Paris)Écoles de la maternelle au lycéeCommerces et services à proximité : bibliothèque, tennis, boulangeries, supermarché, boucheries et épiceriesGrâce à son environnement agréable et à la qualité de vie qu’offre Maule, ce terrain est parfait pour un projet de construction personnalisé, adapté à vos envies et à votre mode de vie.Prix : 235 000 €Pour obtenir plus d’informations sur ce terrain, les modalités de vente ou démarrer votre projet de maison sur-mesure, contactez notre agence :📞 Caroline BETHERY : (Numéro supprimé)Maisons Évolution – Cormeilles-en-Parisis
Maule
TERRAINDans la charmante commune de Maule, au coeur d’un lotissement recherché, plusieurs terrains sont encore disponibles, dont cette belle parcelle d’environ 500 m², proposée au prix de 190 000 €.Maule séduit par son cadre de vie privilégié : un centre-ville vivant avec ses commerces, écoles, collège, marché, ainsi qu’une vraie vie de village. La gare de Maule (ligne J) facilite vos déplacements vers Paris, et les axes principaux (A13, A14) sont rapidement accessibles.Entre nature, services et mobilité, Maule offre un équilibre idéal pour construire un projet de vie serein.Ce terrain bien situé dans le lotissement présente de belles proportions pour accueillir une maison lumineuse et familiale. Le modèle Natishen, avec son charme intemporel et son agencement fonctionnel, pourrait parfaitement s’y adapter pour donner vie à votre projet.Terrain proposé par notre partenaire foncier. En tant que constructeur, nous ne réalisisons pas la vente du terrain seul.
Maule
TERRAINVENTE d’un terrain de 500 m² à MauleIDÉALEMENT SITUÉ – Eligible au prêt à taux zéroÀ Maule (78580) à proximité du Transilien N (60 min de Paris), projetez la maison de vos rêves sur ce terrain de 500 m². Dans un quartier convoité, ce terrain idéalement situé est proche des écoles et des commerces. Il y a des établissements scolaires de tous niveaux à moins de 10 minutes à pied. Côté transports en commun, on trouve la gare Maule à quelques pas du bien. On trouve une bibliothèque, un tennis, des commerces, des boulangeries, un supermarché, un bureau de poste et trois épiceries à proximité.Il est proposé à l’achat pour 185 000 €. Contactez notre agence (BOREAU Gilles : (Numéro supprimé)) pour obtenir de plus amples renseignements sur ce terrain ou sur les modalités de vente.
Maule
TERRAINTerrain de 380 m² en vente à MauleQUARTIER RECHERCHÉ – VUE SANS VIS-À-VISÀ deux pas du Transilien N (60 min de Paris) à Maule (78580), terrain de 380 m². Il profite d’une vue sans vis-à-vis. Dans un secteur attractif, ce terrain dans un quartier convoité est proche des écoles et des commerces. Il y a des écoles (de la maternelle au lycée) à moins de 10 minutes à pied. Côté transports, on trouve la gare Maule juste à côté. On trouve une bibliothèque, un tennis, des commerces, des boulangeries, un supermarché, trois boucheries-charcuteries et un bureau de poste à proximité.Ce terrain est à vendre pour la somme de 184 000 €. Prenez contact avec Morgane KUD (tél : (Numéro supprimé)) pour plus d’informations sur le terrain. Les Maisons Extraco Chambourcy est là pour vous accompagner dans toutes vos démarches.
Maule
TERRAINVENTE d’un terrain de 521 m² à MauleIDÉALEMENT SITUÉ – PROCHE DE BOULOGNE-BILLANCOURTÀ Maule (78580) à 560 m du Transilien N (60 min de Paris), projetez la maison de vos rêves sur ce terrain de 521 m². Dans un secteur recherché, ce terrain idéalement situé est proche des écoles et des commerces. Des écoles de tous types sont implantées à moins de 10 minutes à pied. Côté transports en commun, on trouve la gare Maule à quelques pas du bien. Il y a une bibliothèque, un tennis, des commerces, des boulangeries, un supermarché, trois boucheries-charcuteries et trois épiceries à proximité.Il est à vendre pour la somme de 188 000 €. Contactez notre agence (BOREAU Gilles : (Numéro supprimé)) pour plus d’informations sur ce terrain. Les Maisons Extraco Chambourcy vous accompagne dans toutes vos démarches et à toutes les étapes de votre projet.
Maule
TERRAINMaule : terrain de 940 m² en venteCENTRE-VILLE – PROCHE DE BOULOGNE-BILLANCOURTÀ Maule (78580) au pied du Transilien N (60 min de Paris), projetez la maison de vos rêves sur ce terrain de 940 m². Il profite d’une vue sur rue et est exposé au sud-ouest. En centre-ville, le terrain est proche des écoles et des commerces. Il y a tous les types d’établissements scolaires (maternelle, élémentaire et secondaire) à moins de 10 minutes à pied. Côté transports, on trouve la gare Maule dans les environs. On trouve une bibliothèque, un tennis, des commerces, des boulangeries, un supermarché, trois boucheries-charcuteries et un bureau de poste à quelques minutes à peine.Ce terrain est proposé à l’achat pour 215 000 €. N’hésitez pas à prendre contact avec notre agence (Thomas RELAND : (Numéro supprimé)) pour toute information sur le terrain. Maisons France Confort La Queue-en-Brie est là pour vous accompagner dans toutes vos démarches.
Maule
TERRAINVENTE d’un terrain de 500 m² à MaulePROCHE DE BOULOGNE-BILLANCOURTÀ Maule (78580) à deux pas du Transilien N (60 min de Paris), projetez la maison de vos rêves sur ce terrain de 500 m². Des établissements scolaires de tous niveaux (de la maternelle au lycée) sont implantés à moins de 10 minutes à pied. Côté transports, on trouve la gare Maule dans les environs. Il y a une bibliothèque, un tennis, des commerces, des boulangeries, un supermarché, trois boucheries-charcuteries et un bureau de poste à proximité.Son prix de vente est de 195 000 €. Contactez notre agence (Christophe MONTANIER : (Numéro supprimé)) pour plus de renseignements sur ce terrain, sur les modalités de vente ou sur les démarches à suivre. Donnez vie à vos projets immobiliers avec Maisons Balency Saint-Maur-des-Fossés.Annonce proposée par un Agent Commercial Partenaire.
Maule
TERRAINTerrain de 500 m² en vente à MauleEMPLACEMENT PRIVILÉGIÉ – PROCHE DE BOULOGNE-BILLANCOURTÀ 560 m de la gare (Paris à 60 min avec le Transilien N) à Maule (78580), terrain de 500 m². Dans un quartier convoité, ce terrain bénéficiant d’un emplacement d’exception est proche des commerces et des écoles. Il y a tous les types d’établissements scolaires (maternelle, élémentaire et secondaire) à moins de 10 minutes à pied. Niveau transports, on trouve la gare Maule dans les environs. Il y a une bibliothèque, un tennis, des commerces, des boulangeries, un supermarché, un bureau de poste et trois épiceries à quelques minutes du bien.Ce terrain est à vendre pour la somme de 200 000 €. N’hésitez pas à prendre contact avec notre agence (ZAGDANSKI Charles : (Numéro supprimé)) pour plus d’informations sur le terrain ou sur les démarches à suivre. Maisons France Confort Jouars-Pontchartrain vous accompagne à toutes les étapes de votre projet et dans tous vos projets immobiliers.
Maule
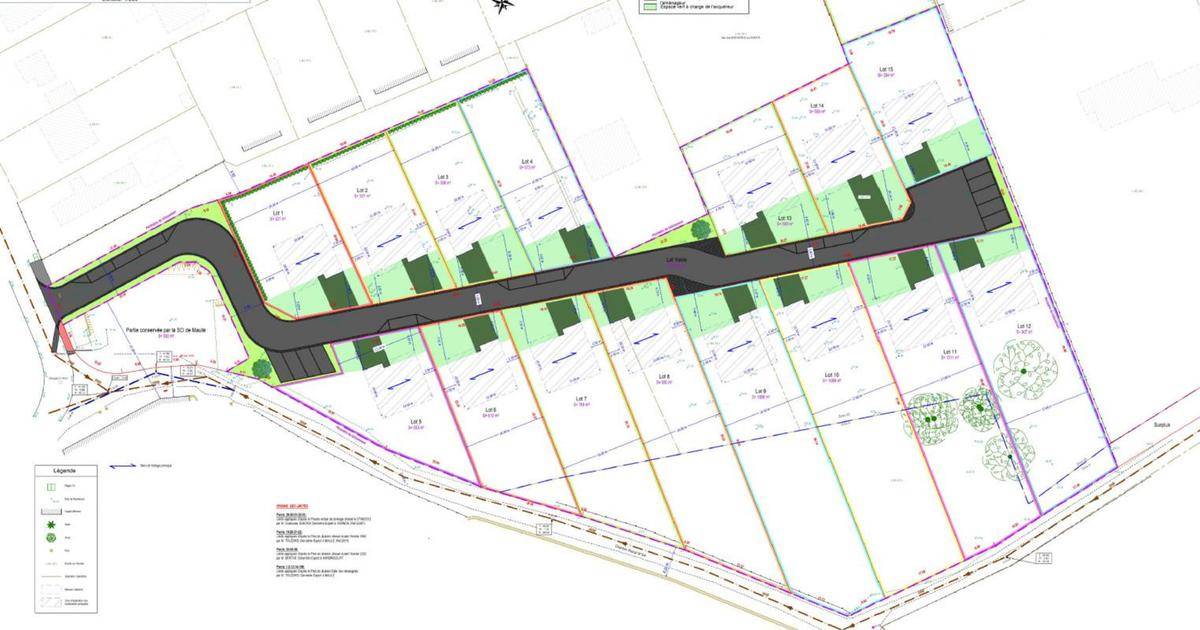
TERRAINSitué au coeur de la commune de Maule, dans un environnement résidentiel recherché, ce terrain à bâtir d’une superficie de 506 m² offre une belle opportunité de construction dans un lotissement à taille humaine composé de 12 lots uniquement.Le terrain est plat et entièrement viabilisé (eau, électricité, tout-à-l’égout, télécommunications), permettant une totale liberté dans la conception de votre projet immobilier. (Sous réserve du règlement)L’emplacement bénéficie d’un cadre de vie calme et verdoyant, à proximité immédiate des écoles, commerces et transports. La commune de Maule dispose d’une gare SNCF (ligne N – direction Paris-Montparnasse), d’un centre-ville dynamique et d’un environnement familial apprécié.Annonce proposée par un Agent Commercial Partenaire.
Maule
TERRAINTerrain de 584 m² en vente à MauleIDÉALEMENT SITUÉÀ Maule (78580) à quelques minutes du Transilien N (60 min de Paris), projetez la maison de vos rêves sur ce terrain de 584 m². Il donne sur un jardin et est orienté au sud-est. Dans un quartier recherché, ce terrain idéalement situé est proche des écoles et des commerces. Tous les types d’établissements scolaires sont implantés à moins de 10 minutes à pied. Côté transports en commun, on trouve la gare Maule dans un rayon de 1 km. Il y a une bibliothèque, un tennis, des commerces, des boulangeries, un supermarché, trois épiceries et trois boucheries-charcuteries à quelques minutes du bien.Ce terrain est proposé à l’achat pour 225 000 €. Contactez notre agence (Thibault DUTEURTRE : (Numéro supprimé)) pour toute information sur le terrain. Maisons Balency Coignières vous accompagne dans toutes vos démarches et dans tous vos projets immobiliers.Annonce proposée par un Agent Commercial Partenaire.
Maule
TERRAINVENTE : terrain de 1 011 m² à MauleIDÉALEMENT SITUÉÀ deux pas du Transilien N (60 min de Paris) à Maule (78580), grand terrain. Il est prêt à accueillir votre résidence principale ou secondaire pour toute la famille. Ce terrain, avec vue sur jardin, est orienté au sud-est. Dans un secteur recherché, ce terrain idéalement situé est proche des écoles et des commerces. Des établissements scolaires de tous types (de la maternelle au lycée) sont implantés à moins de 10 minutes à pied. Côté transports, il y a la gare Maule à quelques pas du terrain. On trouve une bibliothèque, un tennis, des commerces, des boulangeries, un supermarché, un bureau de poste et trois épiceries dans les environs.Il est proposé à l’achat pour 233 000 €. Contactez notre agence (DUTEURTRE Thibault : (Numéro supprimé)) pour obtenir de plus amples renseignements sur ce terrain ou sur les modalités de vente. Maisons Balency Coignières vous accompagne à toutes les étapes de votre projet et dans toutes vos démarches.Annonce proposée par un Agent Commercial Partenaire.
Maule
TERRAINSitué au coeur de la commune de Maule, dans un environnement résidentiel recherché, ce terrain à bâtir d’une superficie de 500 m² offre une belle opportunité de construction dans un lotissement à taille humaine composé de 12 lots uniquement.Le terrain est entièrement viabilisé (eau, électricité, tout-à-l’égout, télécommunications) L’emplacement bénéficie d’un cadre de vie calme et verdoyant, à proximité immédiate des écoles, commerces et transports. La commune de Maule dispose d’une gare SNCF (ligne N – direction Paris-Montparnasse), d’un centre-ville dynamique et d’un environnement familial apprécié.Annonce proposée par un Agent Commercial Partenaire.
Maule
TERRAINVENTE : terrain de 573 m² à MauleIDÉALEMENT SITUÉÀ Maule (78580) à quelques minutes du Transilien N (60 min de Paris), venez découvrir ce terrain de 573 m². Il donne sur un jardin et bénéficie d’une exposition sud-est. Dans un secteur attractif, le terrain idéalement situé est proche des écoles et des commerces. Des écoles du primaire et du secondaire sont implantées à moins de 10 minutes à pied. Côté transports, il y a la gare Maule à proximité. On trouve une bibliothèque, un tennis, des commerces, des boulangeries, un supermarché, trois boucheries-charcuteries et trois épiceries à quelques minutes à peine.Ce terrain est proposé à l’achat pour 201 000 €. Contactez notre agence (Thibault DUTEURTRE : (Numéro supprimé)) pour tout renseignement sur le terrain, sur les démarches à suivre ou sur les modalités de vente. Maisons Balency Coignières vous accompagne dans tous vos projets immobiliers et à toutes les étapes de l’achat.Annonce proposée par un Agent Commercial Partenaire.
Maule
TERRAINVENTE : terrain de 521 m² à MauleIDÉALEMENT SITUÉÀ Maule (78580) à 560 m de la gare (Paris à 60 min avec le Transilien N), donnez vie à la maison de vos rêves sur ce terrain de 521 m². Il donne sur un jardin et est orienté au sud-est. Dans un secteur convoité, le terrain idéalement situé est proche des écoles et des commerces. Il y a des écoles de tous niveaux à moins de 10 minutes à pied. Niveau transports, on trouve la gare Maule dans les environs. Il y a une bibliothèque, un tennis, des commerces, des boulangeries, un supermarché, trois épiceries et un bureau de poste à quelques minutes.Ce terrain est proposé à l’achat pour 197 000 €. Prenez contact avec notre agence (DUTEURTRE Thibault : (Numéro supprimé)) pour toute information sur le terrain. Maisons Balency Coignières vous accompagne dans tous vos projets immobiliers et à toutes les étapes de l’achat.Annonce proposée par un Agent Commercial Partenaire.
Maule
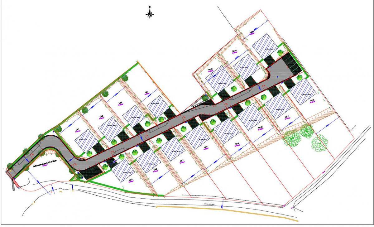
TERRAINLotissement de 15 terrains viabilisés situés sur les hauteurs de Maule avec une jolie vue et emplacement très calme. Terrains piscinables à construire d’une superficie de 507 à 1088 m² Lotissement à l’américain. Libre choix constructeur en R+combles + 30cm. Prix de vente de 193 000 € honoraires d’agence inclus. Plans sur simple demande par mail ou à l’agence. Cette annonce et son prix concerne le lot N°02 d’une superficie de 507M2. Emprise au sol de 20%. Lots encore disponibles : 2 (507M2), 4 (573M2), 9 (1 088M2), 11 (1 011M2) et 15 (868 M2) dans une fourchette de prix de 193 000 € HAi à 223 000 € HAI. Les informations sur les risques auxquels ce bien est exposé sont disponibles sur le site Georisque : georisques. gouv. fr Olivier Bloud – EI – est Agent Commercial mandataire en immobilier, immatriculé au Registre Spécial des Agents Commerciaux du Tribunal de Commerce de Nanterre sous le n(Numéro supprimé).Siège social du mandant : effiCity, 48 avenue de Villiers – 75017 PARIS – Société par Actions Simplifiée, société au capital de 132 373,05 euros, immatriculée au RCS Paris 497 617 746 et titulaire de la Carte professionnelle CPI 7501 2015 000 002 025 – CCI Paris IDF – Caisse de Garantie : GALIAN Assurances 89 rue de la Boétie 75008 Paris
De 0 à 18 parmi 24 résultats
En savoir plus sur Maule
Vous trouverez 24 terrain disponibles à l’achat dans la ville de Maule.
Les prix varient de 179 900€ à 235 000€. Le prix moyen constaté pour un terrrain est de 199 079€.
Nos articles concernant Maule
27/11/2023
02/11/2023
30/10/2023
20/10/2023
16/10/2023
16/10/2023