Maison à construire à Les Mées (04190)
Images
Description
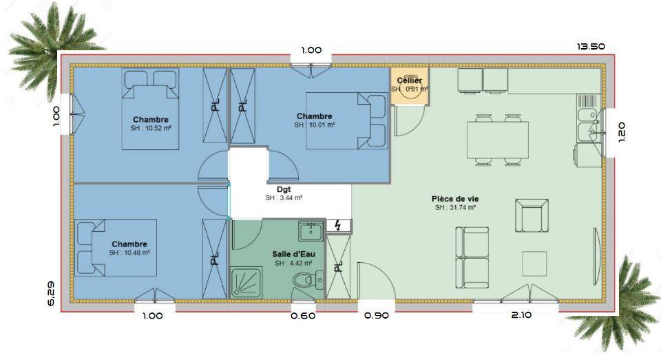
VENTE : maison F4 (71 m²) aux Mées
Maison neuve 4 pièces en vente aux Mées (04190) avec une surface de 71 m² et de 451 m² de terrain. Son intérieur dispose de trois chambres, d'une cuisine et d'une salle de bains.
À proximité : gares (La Brillanne-Oraison et Château-Arnoux-Saint-Auban), établissements scolaires, crèches, marchés, bibliothèques, tennis, bassins de natation, commerces, boulangeries, supermarchés, poissonnerie et boucheries-charcuteries. Autoroute A51 à 6 km.
Le prix de vente de cette maison de 4 pièces est de 205 900 €.(terrain, frais de notaire et maison compris).
N'hésitez pas à prendre contact avec notre agence (DEROCH Daniel : (Numéro supprimé)) pour plus de renseignements sur la maison ou sur les modalités de vente. Azur & Constructions Manosque est là pour vous accompagner dans toutes vos démarches.
Logement susceptibles de vous intéresser
Nous vous proposons de découvrir aussi cette sélection de logements situés à moins de 10km de Les Mées et qui seraient susceptibles de vous intéresser.
La Brillanne
TERRAIN ET MAISONA LA BRILLANNE sur un terrain de 495 m², VILLAS PRISME vous propose de réaliser votre projet de construction de maison individuelle d'une surface de 90 m² habitables avec 3 chambres.Avec VILLAS PRISME, vous pouvez personnaliser votre projet de maison sur mesure :- Plan et distribution- Système de chauffage au choix- Prestations et équipements selon vos souhaits : carrelages, faïence, menuiseries, salles de bains…- Mode constructif et matériaux selon les normes en vigueur Informations du terrain : A deux pas du village et des commodités. Terrain plat et viabilisé de 495 m² bénéficiant d’une parfaite exposition.Vue dégagée et peu de vis-à-vis.Votre projet : Une maison sur mesure, construction brique et isolation renforcée RE2020.Assurances et garanties du constructeur (RC professionnelle, décennale, dommage ouvrage, garantie de remboursement de l'acompte, livraison à prix et délai convenu).Contact : Pierre JUHAN, (Numéro supprimé)Demandez une étude gratuite et personnalisée de votre projet de construction !Contactez Pierre JUHAN au (Numéro supprimé) (Villas Prisme – Agence de Manosque).Prix avec assurance dommages-ouvrage comprise, hors VRD, terrain viabilisé, frais de notaire non compris, frais divers non compris. Terrain sélectionné et vu pour vous sous réserve de disponibilité et au prix indiqué par notre partenaire foncier. Non mandaté pour la vente du terrain. Visuels non contractuels.Cette annonce a été créée et diffusée avec le logiciel VITAHOME.
Oraison
TERRAIN ET MAISONA ORAISON sur un terrain de 509 m², VILLAS PRISME vous propose de réaliser votre projet de construction de maison individuelle d'une surface de 85 m² habitables avec 3 chambres.Avec VILLAS PRISME, vous pouvez personnaliser votre projet de maison sur mesure :- Plan et distribution- Système de chauffage au choix- Prestations et équipements selon vos souhaits : carrelages, faïence, menuiseries, salles de bains…- Mode constructif et matériaux selon les normes en vigueur Informations du terrain : A deux pas du centre-ville et des écoles, ce terrain est plat, viabilisé, situé dans un environnement résidentiel idéal pour bâtir votre projet de vie.Votre projet : Une maison sur mesure, construction brique et isolation renforcée RE2020.Assurances et garanties du constructeur (RC professionnelle, décennale, dommage ouvrage, garantie de remboursement de l'acompte, livraison à prix et délai convenu).Contact : Pierre JUHAN, (Numéro supprimé)Demandez une étude gratuite et personnalisée de votre projet de construction !Contactez Pierre JUHAN au (Numéro supprimé) (Villas Prisme – Agence de Manosque).Prix avec assurance dommages-ouvrage comprise, hors VRD, terrain viabilisé, frais de notaire non compris, frais divers non compris. Terrain sélectionné et vu pour vous sous réserve de disponibilité et au prix indiqué par notre partenaire foncier. Non mandaté pour la vente du terrain. Visuels non contractuels.Cette annonce a été créée et diffusée avec le logiciel VITAHOME.
Peyruis
TERRAIN ET MAISONA PEYRUIS sur un terrain de 893 m², VILLAS PRISME vous propose de réaliser votre projet de construction de maison individuelle d'une surface de 86 m² habitables avec 3 chambres.Avec VILLAS PRISME, vous pouvez personnaliser votre projet de maison sur mesure :- Plan et distribution- Système de chauffage au choix- Prestations et équipements selon vos souhaits : carrelages, faïence, menuiseries, salles de bains…- Mode constructif et matériaux selon les normes en vigueur Informations du terrain : A deux pas du village et des écoles, ce terrain est plat, viabilisé, situé dans un environnement résidentiel idéal pour bâtir votre projet de vie.Votre projet : Une maison sur mesure, construction brique et isolation renforcée RE2020.Assurances et garanties du constructeur (RC professionnelle, décennale, dommage ouvrage, garantie de remboursement de l'acompte, livraison à prix et délai convenu).Contact : Pierre JUHAN, (Numéro supprimé)Demandez une étude gratuite et personnalisée de votre projet de construction !Contactez Pierre JUHAN au (Numéro supprimé) (Villas Prisme – Agence de Manosque).Prix avec assurance dommages-ouvrage comprise, hors VRD, terrain viabilisé, frais de notaire non compris, frais divers non compris. Terrain sélectionné et vu pour vous sous réserve de disponibilité et au prix indiqué par notre partenaire foncier. Non mandaté pour la vente du terrain. Visuels non contractuels.Cette annonce a été créée et diffusée avec le logiciel VITAHOME.
Oraison
TERRAIN ET MAISONA ORAISON sur un terrain de 501 m², VILLAS PRISME vous propose de réaliser votre projet de construction de maison individuelle d'une surface de 100 m² habitables avec 3 chambres.Avec VILLAS PRISME, vous pouvez personnaliser votre projet de maison sur mesure :- Plan et distribution- Système de chauffage au choix- Prestations et équipements selon vos souhaits : carrelages, faïence, menuiseries, salles de bains…- Mode constructif et matériaux selon les normes en vigueur Informations du terrain : A deux pas du village et des commodités. Terrain plat et viabilisé de 501 m² bénéficiant d’une parfaite exposition.Vue dégagée et peu de vis-à-vis.Votre projet : Une maison sur mesure, construction brique et isolation renforcée RE2020.Assurances et garanties du constructeur (RC professionnelle, décennale, dommage ouvrage, garantie de remboursement de l'acompte, livraison à prix et délai convenu).Contact : Pierre JUHAN, (Numéro supprimé)Demandez une étude gratuite et personnalisée de votre projet de construction !Contactez Pierre JUHAN au (Numéro supprimé) (Villas Prisme – Agence de Manosque).Prix avec assurance dommages-ouvrage comprise, hors VRD, terrain viabilisé, frais de notaire non compris, frais divers non compris. Terrain sélectionné et vu pour vous sous réserve de disponibilité et au prix indiqué par notre partenaire foncier. Non mandaté pour la vente du terrain. Visuels non contractuels.Cette annonce a été créée et diffusée avec le logiciel VITAHOME.
La Brillanne
TERRAINA deux pas du village et des commodités. Terrain plat et viabilisé de 495 m² bénéficiant d’une parfaite exposition.Vue dégagée et peu de vis-à-vis.Votre projet : Une maison sur mesure, construction brique et isolation renforcée RE2020.Assurances et garanties du constructeur (RC professionnelle, décennale, dommage ouvrage, garantie de remboursement de l'acompte, livraison à prix et délai convenu).Contact : Pierre JUHAN, (Numéro supprimé)Prix : 90000 €.Sur ce terrain de 495 m² à LA BRILLANNE, VILLAS PRISME vous propose de réaliser votre projet de construction de maison individuelle.Avec VILLAS PRISME, vous pouvez personnaliser votre projet de maison sur mesure :- Plan et distribution- Système de chauffage au choix- Prestations et équipements selon vos souhaits : carrelages, faïence, menuiseries, salles de bains…- Mode constructif et matériaux selon les normes en vigueur Demandez une étude gratuite et personnalisée de votre projet de construction sur ce terrain à LA BRILLANNE ! Prix hors frais de notaire. Terrain sélectionné et vu pour vous sous réserve de disponibilité et au prix indiqué par notre partenaire foncier. Non mandaté pour la vente du terrain. Visuels non contractuels.Cette annonce a été créée et diffusée avec le logiciel VITAHOME.
La Brillanne
TERRAIN ET MAISONA LA BRILLANNE sur un terrain de 400 m², VILLAS PRISME vous propose de réaliser votre projet de construction de maison individuelle d'une surface de 95 m² habitables avec 3 chambres.Avec VILLAS PRISME, vous pouvez personnaliser votre projet de maison sur mesure :- Plan et distribution- Système de chauffage au choix- Prestations et équipements selon vos souhaits : carrelages, faïence, menuiseries, salles de bains…- Mode constructif et matériaux selon les normes en vigueur Informations du terrain : A deux pas du village et des commodités. Terrain plat et viabilisé de 400 m² bénéficiant d’une parfaite exposition.Vue dégagée et peu de vis-à-vis.Votre projet : Une maison sur mesure, construction brique et isolation renforcée RE2020.Assurances et garanties du constructeur (RC professionnelle, décennale, dommage ouvrage, garantie de remboursement de l'acompte, livraison à prix et délai convenu).Contact : Pierre JUHAN, (Numéro supprimé)Demandez une étude gratuite et personnalisée de votre projet de construction !Contactez Pierre JUHAN au (Numéro supprimé) (Villas Prisme – Agence de Manosque).Prix avec assurance dommages-ouvrage comprise, hors VRD, terrain viabilisé, frais de notaire non compris, frais divers non compris. Terrain sélectionné et vu pour vous sous réserve de disponibilité et au prix indiqué par notre partenaire foncier. Non mandaté pour la vente du terrain. Visuels non contractuels.Cette annonce a été créée et diffusée avec le logiciel VITAHOME.
La Brillanne
TERRAINA deux pas du village et des commodités. Terrain plat et viabilisé de 400 m² bénéficiant d’une parfaite exposition.Vue dégagée et peu de vis-à-vis.Votre projet : Une maison sur mesure, construction brique et isolation renforcée RE2020.Assurances et garanties du constructeur (RC professionnelle, décennale, dommage ouvrage, garantie de remboursement de l'acompte, livraison à prix et délai convenu).Contact : Pierre JUHAN, (Numéro supprimé)Prix : 85000 €.Sur ce terrain de 400 m² à LA BRILLANNE, VILLAS PRISME vous propose de réaliser votre projet de construction de maison individuelle.Avec VILLAS PRISME, vous pouvez personnaliser votre projet de maison sur mesure :- Plan et distribution- Système de chauffage au choix- Prestations et équipements selon vos souhaits : carrelages, faïence, menuiseries, salles de bains…- Mode constructif et matériaux selon les normes en vigueur Demandez une étude gratuite et personnalisée de votre projet de construction sur ce terrain à LA BRILLANNE ! Prix hors frais de notaire. Terrain sélectionné et vu pour vous sous réserve de disponibilité et au prix indiqué par notre partenaire foncier. Non mandaté pour la vente du terrain. Visuels non contractuels.Cette annonce a été créée et diffusée avec le logiciel VITAHOME.
La Brillanne
TERRAIN ET MAISONA LA BRILLANNE sur un terrain de 332 m², VILLAS PRISME vous propose de réaliser votre projet de construction de maison individuelle d'une surface de 88 m² habitables avec 3 chambres.Avec VILLAS PRISME, vous pouvez personnaliser votre projet de maison sur mesure :- Plan et distribution- Système de chauffage au choix- Prestations et équipements selon vos souhaits : carrelages, faïence, menuiseries, salles de bains…- Mode constructif et matériaux selon les normes en vigueur Informations du terrain : A deux pas du village et des commodités. Terrain plat et viabilisé de 332 m² bénéficiant d’une parfaite exposition.Vue dégagée et peu de vis-à-vis.Votre projet : Une maison sur mesure, construction brique et isolation renforcée RE2020.Assurances et garanties du constructeur (RC professionnelle, décennale, dommage ouvrage, garantie de remboursement de l'acompte, livraison à prix et délai convenu).Contact : Pierre JUHAN, (Numéro supprimé)Demandez une étude gratuite et personnalisée de votre projet de construction !Contactez Pierre JUHAN au (Numéro supprimé) (Villas Prisme – Agence de Manosque).Prix avec assurance dommages-ouvrage comprise, hors VRD, terrain viabilisé, frais de notaire non compris, frais divers non compris. Terrain sélectionné et vu pour vous sous réserve de disponibilité et au prix indiqué par notre partenaire foncier. Non mandaté pour la vente du terrain. Visuels non contractuels.Cette annonce a été créée et diffusée avec le logiciel VITAHOME.
Oraison
TERRAINA deux pas du village et des commodités. Terrain plat et viabilisé de 501 m² bénéficiant d’une parfaite exposition.Vue dégagée et peu de vis-à-vis.Votre projet : Une maison sur mesure, construction brique et isolation renforcée RE2020.Assurances et garanties du constructeur (RC professionnelle, décennale, dommage ouvrage, garantie de remboursement de l'acompte, livraison à prix et délai convenu).Contact : Pierre JUHAN, (Numéro supprimé)Prix : 110000 €.Sur ce terrain de 501 m² à ORAISON, VILLAS PRISME vous propose de réaliser votre projet de construction de maison individuelle.Avec VILLAS PRISME, vous pouvez personnaliser votre projet de maison sur mesure :- Plan et distribution- Système de chauffage au choix- Prestations et équipements selon vos souhaits : carrelages, faïence, menuiseries, salles de bains…- Mode constructif et matériaux selon les normes en vigueur Demandez une étude gratuite et personnalisée de votre projet de construction sur ce terrain à ORAISON ! Prix hors frais de notaire. Terrain sélectionné et vu pour vous sous réserve de disponibilité et au prix indiqué par notre partenaire foncier. Non mandaté pour la vente du terrain. Visuels non contractuels.Cette annonce a été créée et diffusée avec le logiciel VITAHOME.
L’actualité immobilière à Les Mées
27/11/2023
02/11/2023
30/10/2023
20/10/2023
16/10/2023
16/10/2023