Maison à construire à Bourg-Saint-Andéol (07700)
Images
Description
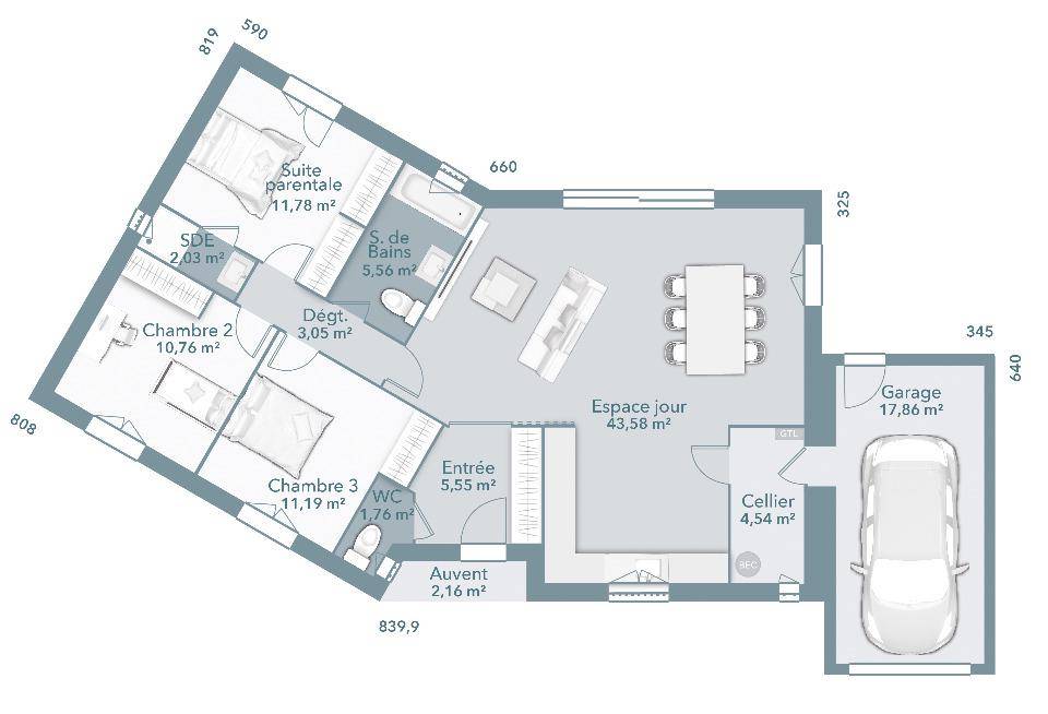
Bourg-Saint-Andéol : maison F4 (100 m²) à vendre
EMPLACEMENT PRIVILÉGIÉ - MAISON 4 PIÈCES NEUVE
À vendre : située à 23 km de Montélimar, votre agence Maisons France Confort Montélimar est ravie de vous présenter cette maison de 4 pièces de plain-pied de 100 m² bénéficiant d'un emplacement d'exception dans Bourg-Saint-Andéol (07700).
Elle propose trois chambres, une cuisine et deux salles de bains. La maison est neuve.
Le terrain de la propriété s'étend sur 603 m².
Cette maison se situe dans un quartier prisé. Des écoles de tous niveaux sont implantées à moins de 10 minutes à pied, tout comme deux structures d'accueil pour les tout-petits. Côté transports, il y a les gares Pierrelatte et Donzère à moins de 10 minutes en voiture. On trouve un accès à la nationale N7 à 4 km. On trouve des commerces, quatre boulangeries, un supermarché, un bureau de poste et quatre boucheries-charcuteries à quelques minutes de la maison. Enfin, 2 marchés animent les environs.
Son prix de vente est de 283 988 €.
Contactez florian DUBOIS ((Numéro supprimé)) pour tout renseignement sur la maison ou sur les démarches à suivre. Maisons France Confort Montélimar vous accompagne à toutes les étapes de votre projet et dans tous vos projets immobiliers.
Logement susceptibles de vous intéresser
Nous vous proposons de découvrir aussi cette sélection de logements situés à moins de 10km de Bourg-Saint-Andéol et qui seraient susceptibles de vous intéresser.
Pierrelatte
TERRAIN ET MAISONDécouvrez le modèle Étage GA 4 Ch Design, une maison moderne de 98 m² conçue pour répondre aux besoins actuels des familles : espaces optimisés, luminosité et confort au quotidien.Au rez-de-chaussée, profitez d’une grande pièce de vie traversante de 33 m², baignée de lumière, où la cuisine ouverte s’intègre harmonieusement au séjour.Une chambre de plain-pied apporte une véritable polyvalence d’usage : idéale pour recevoir ou aménager un espace de travail.Un cellier de 4,83 m², donnant accès direct au garage, vient compléter l’ensemble, offrant un espace de rangement pratique et fonctionnel.À l’étage, l’espace nuit se compose de trois chambres spacieuses et d’une salle de bains équipée d’une baignoire et d’une douche, pour un confort adapté à toute la famille.Grâce à la nouvelle gamme Open, vous bénéficiez de finitions personnalisables et de packs évolutifs, afin d’adapter votre maison à vos envies et à vos besoins.Côté confort, rien n’a été laissé au hasard : volets roulants électriques, centralisation des fermetures, domotique intégrée… autant d’équipements modernes pensés pour simplifier votre quotidien et renforcer votre confort.Fonctionnelle, lumineuse et résolument moderne, cette maison offre un cadre de vie idéal pour accueillir votre famille et concrétiser votre projet de vie.Contactez dès maintenant Olivier PUAUX, votre conseiller MAISONS FRANCE CONFORT, au (Numéro supprimé), pour en savoir plus ou imaginer ensemble votre future maison.
Donzère
TERRAINMAISONS FRANCE CONFORT vous propose, en collaboration avec son partenaire foncier, un terrain situé sur la commune de DONZERECette jolie parcelle d’une superficie de 390 m² boisé, pour 72000 €, viabilisé en bordure, vous séduira par son cadre unique.Implantée dans un environnement calme, mais proche des commodité, cette opportunité est idéale pour concrétiser votre projet de vie et bâtir la maison de vos rêves.Si vous aussi, vous rêvez d’une maison qui vous ressemble et d’un accompagnement sur mesure, contactez votre conseiller Florian DUBOIS au (Numéro supprimé) 📞
Donzère
TERRAIN ET MAISONVENTE d’une maison T3 (60 m²) à DonzèreMAISON 3 PIÈCES NEUVE – PROCHE DE MONTÉLIMAREn vente : située à quelques kilomètres de Montélimar, votre agence Maisons France Confort Montélimar est ravie de vous présenter à Donzère (26290), cette maison de 3 pièces de plain-pied de 60 m². Son intérieur inclut deux chambres, une cuisine et une salle de bains.Le terrain de la maison s’étend sur 390 m².La maison est neuve.L’École Publique André Jullien, l’École Maternelle Aiguebelle et l’École Privée Sainte Marie sont implantées à moins de 10 minutes à pied. Niveau transports, on trouve la gare Donzère dans un rayon de 1 km. Il y a un accès à la nationale N7 à 1 km. Il y a un tennis, un bassin de natation, des commerces, une boulangerie, une épicerie, un bureau de poste et une boucherie-charcuterie à quelques minutes.Son prix de vente est de 181 910 €.Contactez florian DUBOIS ((Numéro supprimé)) pour obtenir de plus amples informations sur cette maison, sur les modalités de vente et sur les démarches à suivre. Donnez vie à vos projets immobiliers avec Maisons France Confort Montélimar.
Donzère
TERRAIN ET MAISONMaison de 6 pièces (93 m²) à vendre à DonzèreMAISON 6 PIÈCES NEUVE – PROCHE DE MONTÉLIMAREn vente : localisée à quelques kilomètres de Montélimar, laissez vous charmer par à Donzère (26290), cette maison de 6 pièces de plain-pied de 93 m² et de 390 m² de terrain. Conçue de plain-pied, elle offre trois chambres, une cuisine et une salle de bains.La maison est neuve.L’École Publique André Jullien, l’École Maternelle Aiguebelle et l’École Privée Sainte Marie sont implantées à moins de 10 minutes à pied. Niveau transports, on trouve la gare Donzère à quelques pas du bien. On trouve un accès à la nationale N7 à 1 km. Il y a un tennis, un bassin de natation, des commerces, une boulangerie, une épicerie, une boucherie-charcuterie et un bureau de poste à proximité.Son prix de vente est de 214 341 €.Contactez florian DUBOIS (tél : (Numéro supprimé)) pour tout renseignement sur la maison, sur les démarches à suivre ou sur les modalités de vente. Maisons France Confort Montélimar vous accompagne dans tous vos projets immobiliers et dans toutes vos démarches.
Donzère
TERRAIN ET MAISONMaison de 4 pièces (83 m²) à vendre à DonzèrePROCHE DE MONTÉLIMAR – MAISON 4 PIÈCES NEUVEEn vente à quelques kilomètres de Montélimar, venez découvrir cette maison de 4 pièces de 83 m² à Donzère (26290). Son intérieur inclut trois chambres, une cuisine et une salle de bains.Le terrain de la maison s’étend sur 390 m².Cette maison possède 2 niveaux. Elle est neuve.Il y a l’École Publique André Jullien, l’École Maternelle Aiguebelle et l’École Privée Sainte Marie à moins de 10 minutes à pied. Niveau transports, on trouve la gare Donzère dans les environs. On trouve un accès à la nationale N7 à 1 km. Il y a un tennis, un bassin de natation, des commerces, une boulangerie, une épicerie, une boucherie-charcuterie et un bureau de poste à proximité du logement.Il est proposé à l’achat pour 218 480 €.N’hésitez pas à prendre contact avec notre agence (DUBOIS florian : (Numéro supprimé)) pour toute question sur la maison ou sur les modalités de vente. Maisons France Confort Montélimar vous accompagne dans toutes vos démarches et dans tous vos projets immobiliers.
Donzère
TERRAIN ET MAISONMaison de 5 pièces (110 m²) à vendre à DonzèreMAISON 5 PIÈCES NEUVE – PROCHE DE MONTÉLIMARÀ vendre à 14 km de Montélimar, votre agence Maisons France Confort Montélimar est heureuse de vous présenter cette maison de 5 pièces de 110 m² et de 390 m² de terrain à Donzère (26290). Son intérieur propose quatre chambres, une cuisine et deux salles de bains.Cette maison possède 2 niveaux. Elle est neuve.On trouve l’École Publique André Jullien, l’École Maternelle Aiguebelle et l’École Privée Sainte Marie à moins de 10 minutes à pied. Niveau transports, il y a la gare Donzère dans les alentours. La nationale N7 est accessible à 1 km. On trouve un tennis, un bassin de natation, des commerces, une boulangerie, un bureau de poste, une épicerie et une boucherie-charcuterie à proximité du bien.Elle est à vendre pour la somme de 265 456 €.Contactez florian DUBOIS (tél : (Numéro supprimé)) pour tout renseignement sur le bien ou sur les modalités de vente.
Bourg-Saint-Andéol
TERRAINVENTE d’un terrain de 937 m² à Bourg-Saint-AndéolEMPLACEMENT PRIVILÉGIÉ – PROCHE DE MONTÉLIMARÀ Bourg-Saint-Andéol (07700) en vente à 23 km de Montélimar, projetez la maison de vos rêves sur ce terrain de 937 m². Il donne sur un bois. Dans un quartier prisé, ce terrain bénéficiant d’un emplacement privilégié est proche des écoles et des commerces. Il y a des établissements scolaires (de la maternelle au lycée) à moins de 10 minutes à pied, tout comme deux crèches. Côté transports, on trouve deux gares (Pierrelatte et Donzère) à moins de 10 minutes en voiture. La nationale N7 est accessible à 4 km. Il y a des commerces, quatre boulangeries, un supermarché, deux épiceries et quatre boucheries-charcuteries à quelques minutes à peine. Enfin, 2 marchés animent les environs.Ce terrain est à vendre pour la somme de 129 000 €. N’hésitez pas à prendre contact avec Florian DUBOIS ((Numéro supprimé)) pour plus d’informations sur le terrain ou sur les démarches à suivre.
Bourg-Saint-Andéol
TERRAINVENTE d’un terrain de 937 m² à Bourg-Saint-AndéolEMPLACEMENT PRIVILÉGIÉ – PROCHE DE MONTÉLIMARÀ Bourg-Saint-Andéol (07700) en vente à 23 km de Montélimar, projetez la maison de vos rêves sur ce terrain de 937 m². Il donne sur un bois. Dans un quartier prisé, ce terrain bénéficiant d’un emplacement privilégié est proche des écoles et des commerces. Il y a des établissements scolaires (de la maternelle au lycée) à moins de 10 minutes à pied, tout comme deux crèches. Côté transports, on trouve deux gares (Pierrelatte et Donzère) à moins de 10 minutes en voiture. La nationale N7 est accessible à 4 km. Il y a des commerces, quatre boulangeries, un supermarché, deux épiceries et quatre boucheries-charcuteries à quelques minutes à peine. Enfin, 2 marchés animent les environs.Ce terrain est à vendre pour la somme de 129 000 €. N’hésitez pas à prendre contact avec Florian DUBOIS ((Numéro supprimé)) pour plus d’informations sur le terrain ou sur les démarches à suivre.
Bourg-Saint-Andéol
TERRAIN ET MAISONBourg-Saint-Andéol : maison de 5 pièces (131 m²) à vendreEMPLACEMENT PRIVILÉGIÉ – MAISON 5 PIÈCES NEUVEÀ 23 km de Montélimar, à vendre bénéficiant d’un emplacement privilégié dans Bourg-Saint-Andéol (07700), nous vous présentons cette maison de 5 pièces de plain-pied de 131 m² et de 603 m² de terrain. Son intérieur dispose de quatre chambres, d’une cuisine et de deux salles de bains.La maison est neuve.La propriété est située dans un secteur prisé. Des établissements scolaires (de la maternelle au lycée) sont implantés à moins de 10 minutes à pied, tout comme deux structures d’accueil pour la petite enfance. Côté transports, il y a deux gares (Pierrelatte et Donzère) à moins de 10 minutes en voiture. La nationale N7 est accessible à 4 km. On trouve des commerces, quatre boulangeries, un supermarché, quatre boucheries-charcuteries et deux épiceries à quelques minutes. 2 marchés animent le quartier.Elle est proposée à l’achat pour 322 629 €.Prenez contact avec florian DUBOIS (tél : (Numéro supprimé)) pour toute question sur la maison, sur les démarches à suivre ou sur les modalités de vente. Donnez vie à vos projets immobiliers avec Maisons France Confort Montélimar.
L’actualité immobilière à Bourg-Saint-Andéol
27/11/2023
02/11/2023
30/10/2023
20/10/2023
16/10/2023
16/10/2023