Maison à construire à Montaut (09700)
Images
Description
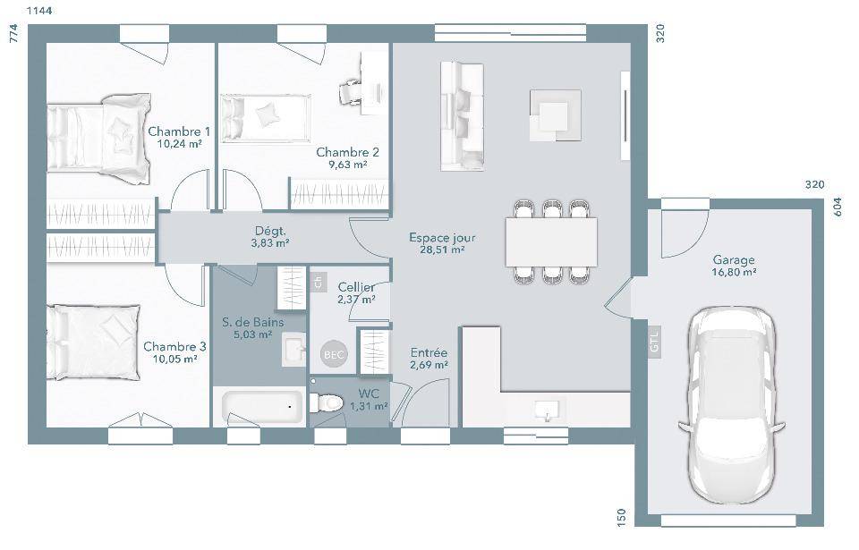
Avec Maisons France Confort Pamiers, devenez propriétaire de cette agréable maison de 73 m² pour 183 391 € hors frais, sur un terrain de 527 m² à la campagne, sur la commune de Montaut. Vous allez apprécier ses légers décrochés de murs et de toitures.
Elle se compose, pour la zone nuit, d'une salle de bains et de trois chambres. Pour la zone jour de 34 m², un espace de vie avec cuisine ouverte et WC séparé, cellier et un garage accolé de 17 m².
Pour rendre votre projet unique, il est totalement personnalisable : les plans, le niveau de prestations, le système de chauffage... tout est possible, vous décidez selon vos envies et votre budget.
Maisons France Confort vous offre, dans votre contrat de construction de maison individuelle, toutes les garanties. Faites maintenant le choix du 1er constructeur en Midi-Pyrénées pour un accompagnement de haute qualité à toutes les étapes de votre projet et un résultat optimal.
Alors, pour toute information, étude personnalisée et gratuite de votre projet, c'est facile : contactez l'agence Maisons France Confort de Pamiers au (Numéro supprimé).
Annonce proposée par un Agent Commercial Partenaire.
Logement susceptibles de vous intéresser
Nous vous proposons de découvrir aussi cette sélection de logements situés à moins de 10km de Montaut et qui seraient susceptibles de vous intéresser.
Pamiers
TERRAINTERRAIN PLAT – CONSTRUCTIBLE – VUE PYRENEES – QUARTIER CALME -RARE SUR CE SECTEUR, A SAISIR .Efficity pamiers vous présente ce terrain , plat , avec les arrivées en bordures.Sa superficie de 577 m² vous permettra de réaliser la maison de vos rêves.Il est situé en bordure d’un chemin privée avec peu d’habitation offrant calme et tranquillité , tout en étant à proximité des commerces et commodités diverses.N’hésitez pas à venir le découvrir . Les informations sur les risques auxquels ce bien est exposé sont disponibles sur le site Georisque : georisques. gouv. fr Marion Isach – EI – est Agent Commercial mandataire en immobilier, immatriculé au Registre Spécial des Agents Commerciaux du Tribunal de Commerce de foix sous le n(Numéro supprimé).Siège social du mandant : effiCity, 48 avenue de Villiers – 75017 PARIS – Société par Actions Simplifiée, société au capital de 132 373,05 euros, immatriculée au RCS Paris 497 617 746 et titulaire de la Carte professionnelle CPI 7501 2015 000 002 025 – CCI Paris IDF – Caisse de Garantie : GALIAN Assurances 89 rue de la Boétie 75008 Paris
Montaut
TERRAIN ET MAISONAvec Maisons France Confort Pamiers, devenez propriétaire de cette sobre et élégante maison de 75 m² pour 178 626 € hors frais, sur un terrain de 527 m² à la campagne, sur la commune de Montaut. Vous allez apprécier son côté fonctionnel.Elle se compose, dans sa partie nuit, d’une salle de bains avec WC et de trois chambres. Pour la partie jour, un espace de vie de 35 m² avec cellier contigu à la cuisine ouverte et au garage de 14 m².Pour rendre votre projet unique, il est totalement personnalisable : les plans, le niveau de prestations, le système de chauffage… tout est possible, vous décidez selon vos envies et votre budget.Maisons France Confort vous offre, dans votre contrat de construction de maison individuelle, toutes les garanties. Faites maintenant le choix du 1er constructeur en Midi-Pyrénées pour un accompagnement de haute qualité à toutes les étapes de votre projet et un résultat optimal.Alors, pour toute information, étude personnalisée et gratuite de votre projet, c’est facile : contactez l’agence Maisons France Confort de Pamiers au (Numéro supprimé).Annonce proposée par un Agent Commercial Partenaire.
Montaut
TERRAIN ET MAISONAvec Maisons France Confort Pamiers, devenez propriétaire de cette agréable maison de 95 m² pour 205 442 € hors frais, sur un terrain de 527 m² à la campagne, sur la commune de Montaut. Vous allez apprécier ses légers décrochés de murs et de toitures.Elle se compose, dans la partie nuit, d’une salle de bains avec WC et de trois chambres, dont une suite parentale. Pour la zone jour, un espace de vie de 44 m² avec cuisine ouverte, cellier, WC et un garage accolé de 17 m².Pour rendre votre projet unique, il est totalement personnalisable : les plans, le niveau de prestations, le système de chauffage… tout est possible, vous décidez selon vos envies et votre budget.Maisons France Confort vous offre, dans votre contrat de construction de maison individuelle, toutes les garanties. Faites maintenant le choix du 1er constructeur en Midi-Pyrénées pour un accompagnement de haute qualité à toutes les étapes de votre projet et un résultat optimal.Alors, pour toute information, étude personnalisée et gratuite de votre projet, c’est facile : contactez l’agence Maisons France Confort de Pamiers au (Numéro supprimé).Annonce proposée par un Agent Commercial Partenaire.
Montaut
TERRAINBaisse de prix ! Unique sur la commune de Montaut, venez découvrir ce petit lotissement de 8 parcelles et réservez les 2 derniers lots dès maintenant.Celui-ci, de 527 m², vous est proposé pour 40 000 €. Il est orienté plein sud. Une école primaire est implantée dans le quartier.Niveau transports, on trouve les gares de Le Vernet d’Ariège, Pamiers et Saverdun à moins de 10 minutes en voiture. L’autoroute A66 et la nationale N20 sont accessibles à moins de 6 km.Pour bâtir la maison de vos rêves, je vous offre toutes mes compétences pour vous accompagner dans votre projet de construction.Alors c’est simple : appelez dès maintenant l’agence Maisons France Confort de Pamiers au (Numéro supprimé).Annonce proposée par un Agent Commercial Partenaire.
Montaut
TERRAIN ET MAISONVous êtes sensible à l’environnement ? Avec Maisons France Confort Pamiers, optez maintenant pour la maison à ossature bois et participez à la réduction de l’empreinte carbone pour préserver notre planète. Cette maison conjugue confort moderne, réduction des délais de construction et respect de l’environnement.Elle vous est proposée pour 193 343 € hors frais, sur un terrain de 527 m² dans la commune de Montaut. Vous allez apprécier le côté fonctionnel de cette maison environnementale. Elle contribue à un avenir plus vert et vous assure une construction éco-performante avec une empreinte carbone basse.Elle se compose, pour la zone nuit, d’une salle de bains, de trois chambres et d’un WC séparé. Pour la zone jour de 35 m², un espace de vie avec cuisine ouverte et un cellier.Pour rendre votre projet unique, il est personnalisable : les plans, le niveau de prestations, les menuiseries… vous décidez selon vos envies et votre budget.Maisons France Confort vous offre, dans votre contrat de construction de maison individuelle, toutes les garanties. Faites maintenant le choix du 1er constructeur en Midi-Pyrénées pour un accompagnement de haute qualité à toutes les étapes de votre projet et pour une construction durable.Alors, pour toute information, étude personnalisée et gratuite de votre projet, c’est facile : contactez l’agence Maisons France Confort de Pamiers au (Numéro supprimé).Annonce proposée par un Agent Commercial Partenaire.
Montaut
TERRAIN ET MAISONAvec Maisons France Confort Pamiers, devenez propriétaire de cette sobre et élégante maison de 90 m² pour 195 617 € hors frais, sur un terrain de 527 m² à la campagne, sur la commune de Montaut. Vous allez apprécier son ingénieuse conception et l’optimisation des espaces.Elle se compose, dans sa partie nuit, d’une salle de bains et de WC séparés, ainsi que de trois chambres dont une suite parentale. Pour la partie jour, un espace de vie de 41 m² avec cellier contigu à la cuisine ouverte et au garage de 14 m².Pour rendre votre projet unique, il est totalement personnalisable : les plans, le niveau de prestations, le système de chauffage… tout est possible, vous décidez selon vos envies et votre budget.Maisons France Confort vous offre, dans votre contrat de construction de maison individuelle, toutes les garanties. Faites maintenant le choix du 1er constructeur en Midi-Pyrénées pour un accompagnement de haute qualité à toutes les étapes de votre projet et un résultat optimal.Alors, pour toute information, étude personnalisée et gratuite de votre projet, c’est facile : contactez l’agence Maisons France Confort de Pamiers au (Numéro supprimé).Annonce proposée par un Agent Commercial Partenaire.
Montaut
TERRAIN ET MAISONAvec Maisons France Confort Pamiers, devenez propriétaire de cette agréable maison de 73 m² pour 183 391 € hors frais, sur un terrain de 527 m² à la campagne, sur la commune de Montaut. Vous allez apprécier ses légers décrochés de murs et de toitures.Elle se compose, pour la zone nuit, d’une salle de bains et de trois chambres. Pour la zone jour de 34 m², un espace de vie avec cuisine ouverte et WC séparé, cellier et un garage accolé de 17 m².Pour rendre votre projet unique, il est totalement personnalisable : les plans, le niveau de prestations, le système de chauffage… tout est possible, vous décidez selon vos envies et votre budget.Maisons France Confort vous offre, dans votre contrat de construction de maison individuelle, toutes les garanties. Faites maintenant le choix du 1er constructeur en Midi-Pyrénées pour un accompagnement de haute qualité à toutes les étapes de votre projet et un résultat optimal.Alors, pour toute information, étude personnalisée et gratuite de votre projet, c’est facile : contactez l’agence Maisons France Confort de Pamiers au (Numéro supprimé).Annonce proposée par un Agent Commercial Partenaire.
Mazères
TERRAIN ET MAISONVous êtes sensible à l’environnement ? Avec Maisons France Confort Pamiers, optez maintenant pour la maison à ossature bois et participez à la réduction de l’empreinte carbone pour préserver notre planète. Cette maison conjugue confort moderne, réduction des délais de construction et respect de l’environnement. Elle vous est proposée pour 228 763 € Hors frais, sur un terrain de 472 m² dans la commune de Mazères. Vous allez apprécier l’ingénieuse adaptabilité de cette maison environnementale. Elle contribue à un avenir plus vert et vous assure une construction éco-performante avec une empreinte carbone basse. Elle se compose dans sa partie nuit, d’une salle de bains et WC séparés, et de trois chambres. Pour la partie jour, un espace de vie de 36 m2 avec cuisine ouverte, un grand cellier et un garage de 14m2. Pour rendre votre projet unique, il est personnalisable : les plans, le niveau de prestations, les menuiseries…vous décidez suivant vos envies et votre budget. Maisons France Confort vous offre dans votre contrat de construction de maison individuelle toutes les garanties. Faites maintenant le choix du 1er constructeur en Midi Pyrénées pour un accompagnement de haute qualité à toutes les étapes de votre projet pour une construction durable. Alors pour toutes informations, étude personnalisée et gratuite de votre projet, c’est facile contactez l’agence Maisons France Confort de Pamiers au (Numéro supprimé). Annonce proposée par un Agent Commercial Partenaire.
Mazères
TERRAIN ET MAISONAvec Maisons France Confort Pamiers, devenez propriétaire de cette agréable maison de 73m2 pour 195 891 € Hors frais, sur un terrain de 472 m² sur la commune de Mazères. Vous allez apprécier ses légers décrochés de murs et de toitures. Elle se compose pour la zone nuit, d’une salle de bains et trois chambres. Pour la zone jour de 34 m2, un espace de vie avec cuisine ouverte et WC séparé, cellier et un garage accolé de 17m2. Pour rendre votre projet unique, il est totalement personnalisable : les plans, le niveau de prestations, le système de chauffage, tout est possible, vous décidez suivant vos envies et votre budget. Maisons France Confort vous offre dans votre contrat de construction de maison individuelle toutes les garanties. Faites maintenant le choix du 1er constructeur en Midi Pyrénées pour un accompagnement de haute qualité à toutes les étapes de votre projet et un résultat optimal. Alors pour toutes informations, étude personnalisée et gratuite de votre projet, c’est facile contactez l’agence Maisons France Confort de Pamiers au (Numéro supprimé). Annonce proposée par un Agent Commercial Partenaire.
L’actualité immobilière à Montaut
27/11/2023
02/11/2023
30/10/2023
20/10/2023
16/10/2023
16/10/2023