Maison à construire à Caunes-Minervois (11160)
Images
Description
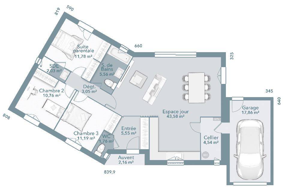
VENTE : maison T4 (100 m²) à Caunes-Minervois
EMPLACEMENT PRIVILÉGIÉ - VUE PANORAMIQUE
En vente à 21 km de Carcassonne, votre agence Maisons France Confort Carcassonne est ravie de vous proposer cette maison de 4 pièces de 100 m² et de 900 m² de terrain avec vue panoramique bénéficiant d'un emplacement privilégié dans Caunes-Minervois (11160).
Il s'agit d'une maison de plain-pied. Son intérieur se divise en trois chambres, une cuisine et deux salles de bains. Cette maison est neuve.
La maison se trouve dans un secteur attractif. Des écoles maternelles et élémentaires y sont implantées et une crèche. L'autoroute A61 est accessible à 17 km. Il y a un tennis, une boulangerie, deux commerces, une boucherie-charcuterie et un bureau de poste dans les environs.
Elle est à vendre pour la somme de 250 000 €.
N'hésitez pas à prendre contact avec notre agence (Frédéric MAGERE : (Numéro supprimé)) pour toute information sur la maison, sur les démarches à suivre ou sur les modalités de vente.
Logement susceptibles de vous intéresser
Nous vous proposons de découvrir aussi cette sélection de logements situés à moins de 10km de Caunes-Minervois et qui seraient susceptibles de vous intéresser.
Peyriac-Minervois
TERRAIN ET MAISONVENTE : maison F4 (100 m²) à Peyriac-MinervoisEMPLACEMENT PRIVILÉGIÉ – MAISON 4 PIÈCES NEUVEÀ vendre : à 20 km de Carcassonne, nous vous proposons, bénéficiant d’un emplacement d’exception dans Peyriac-Minervois (11160), cette maison de 4 pièces de 100 m² et de 500 m² de terrain avec vue dégagée. Conçue de plain-pied, elle se divise en trois chambres, une cuisine et deux salles de bains.Il s’agit d’une maison de plain-pied. Elle est neuve.La maison se trouve dans un quartier convoité. L’École Primaire Lucien Milhau est implantée à moins de 10 minutes à pied. Il y a un accès à l’autoroute A61 à 16 km. On trouve une bibliothèque, un bassin de natation, deux commerces, une boulangerie, un supermarché et une boucherie-charcuterie dans les environs.Elle est à vendre pour la somme de 209 880 €.Prenez contact avec notre agence (EMBID Stéphane : (Numéro supprimé)) pour plus d’informations sur la maison.
Peyriac-Minervois
TERRAINTerrain de 5 000 m² à vendre à Peyriac-MinervoisEMPLACEMENT PRIVILÉGIÉ – VUE DÉGAGÉEÀ Peyriac-Minervois (11160) à deux pas de Carcassonne, découvrez ce terrain de 5 000 m². Ce terrain, orienté plein sud, profite d’une vue dégagée. Dans un secteur attractif, ce terrain bénéficiant d’un emplacement d’exception est proche des commerces et des écoles. On trouve l’École Primaire Lucien Milhau à moins de 10 minutes à pied. Il y a un accès à l’autoroute A61 à 16 km. Il y a une bibliothèque, un bassin de natation, deux commerces, une boulangerie, un supermarché et une boucherie-charcuterie à proximité.Ce terrain est à vendre pour la somme de 54 780 €. Prenez contact avec notre agence (Stéphane EMBID : (Numéro supprimé)) pour tout renseignement sur le terrain ou sur les démarches à suivre.
Caunes-Minervois
TERRAINCaunes-Minervois : terrain de 900 m² en venteEMPLACEMENT PRIVILÉGIÉ – VUE PANORAMIQUEGrand terrain à deux pas de Carcassonne. De 900 m², ce terrain se situe bénéficiant d’un emplacement privilégié dans Caunes-Minervois (11160). Il profite d’une vue panoramique et est exposé plein sud. Dans un secteur prisé, ce terrain est proche des écoles et des commerces. Il y a des établissements scolaires maternelles et élémentaires dans le quartier et une structure d’accueil pour les tout-petits. L’autoroute A61 est accessible à 17 km. On trouve un tennis, une boulangerie, deux commerces, une boucherie-charcuterie et un bureau de poste à quelques minutes à peine.Il est proposé à l’achat pour 72 000 €. Contactez notre agence (Frédéric MAGERE : (Numéro supprimé)) pour toute question sur le terrain ou sur les modalités de vente.
Caunes-Minervois
TERRAIN ET MAISONVENTE : maison T4 (100 m²) à Caunes-MinervoisEMPLACEMENT PRIVILÉGIÉ – VUE PANORAMIQUEEn vente à 21 km de Carcassonne, votre agence Maisons France Confort Carcassonne est ravie de vous proposer cette maison de 4 pièces de 100 m² et de 900 m² de terrain avec vue panoramique bénéficiant d’un emplacement privilégié dans Caunes-Minervois (11160).Il s’agit d’une maison de plain-pied. Son intérieur se divise en trois chambres, une cuisine et deux salles de bains. Cette maison est neuve.La maison se trouve dans un secteur attractif. Des écoles maternelles et élémentaires y sont implantées et une crèche. L’autoroute A61 est accessible à 17 km. Il y a un tennis, une boulangerie, deux commerces, une boucherie-charcuterie et un bureau de poste dans les environs.Elle est à vendre pour la somme de 250 000 €.N’hésitez pas à prendre contact avec notre agence (Frédéric MAGERE : (Numéro supprimé)) pour toute information sur la maison, sur les démarches à suivre ou sur les modalités de vente.
Rieux-Minervois
TERRAIN ET MAISONRieux-Minervois : maison de 4 pièces (80 m²) à vendreIDÉALEMENT SITUÉE – MAISON 4 PIÈCES NEUVEÀ 21 km de Carcassonne, nous vous présentons cette maison de 4 pièces de 80 m² sans vis-à-vis à vendre idéalement située dans Rieux-Minervois (11160). Conçue de plain-pied, elle est composée de trois chambres, d’une cuisine et d’une salle de bains.Le terrain de la propriété s’étend sur 400 m².C’est une maison de plain-pied. Elle est neuve.Cette maison se trouve dans un quartier recherché. Quatre établissements scolaires sont implantés à moins de 10 minutes à pied, tout comme, comme l’École Maternelle Léon Cathala, l’École Primaire Privée Los Cascamels ou le Collège Pierre et Marie Curie. On trouve un accès à l’autoroute A61 à 17 km. Il y a un tennis, trois boulangeries, quatre commerces, une boucherie-charcuterie, un bureau de poste et une épicerie à proximité de la maison.Son prix de vente est de 177 900 €.Contactez notre agence (MAGERE Frédéric : (Numéro supprimé)) pour obtenir de plus amples renseignements sur la maison et sur les démarches à suivre. Maisons France Confort Carcassonne vous accompagne à toutes les étapes de votre projet et dans tous vos projets immobiliers.
Villeneuve-Minervois
TERRAINTerrain de 775 m² à vendre à Villeneuve-MinervoisIDÉALEMENT SITUÉ – VUE SANS VIS-À-VISÀ Villeneuve-Minervois (11160) à deux pas de Carcassonne, donnez vie à la maison de vos rêves sur ce terrain de 775 m². Il profite d’une vue sans vis-à-vis et est orienté au sud. Dans un secteur prisé, le terrain idéalement situé est proche des commerces et des écoles. Une école primaire est implantée dans le quartier. On trouve un accès à l’autoroute A61 à 14 km. Il y a un tennis, une boulangerie, une épicerie et une boucherie-charcuterie à quelques minutes de la propriété.Son prix de vente est de 72 900 €. Prenez contact avec notre agence (MAGERE Frédéric : (Numéro supprimé)) pour plus de renseignements sur le terrain. Donnez vie à vos projets immobiliers avec Maisons France Confort Carcassonne.
Villeneuve-Minervois
TERRAIN ET MAISONVENTE : maison de 5 pièces (100 m²) à Villeneuve-MinervoisIDÉALEMENT SITUÉE – MAISON 5 PIÈCES NEUVEEn vente à 17 km de Carcassonne, Maisons France Confort Carcassonne vous présente cette maison de 5 pièces de 100 m² sans vis-à-vis idéalement située dans Villeneuve-Minervois (11160). Conçue de plain-pied, elle inclut quatre chambres, une cuisine et deux salles de bains.Le terrain de la propriété est de 775 m².C’est une maison de plain-pied. Elle est neuve.Cette maison est située dans un quartier recherché. On y trouve une école primaire. L’autoroute A61 est accessible à 14 km. On trouve un tennis, une boulangerie, une boucherie-charcuterie et une épicerie dans les environs.Elle est à vendre pour la somme de 250 000 €.Contactez Frédéric MAGERE ((Numéro supprimé)) pour toute information sur la maison. Maisons France Confort Carcassonne vous accompagne dans tous vos projets immobiliers et dans toutes vos démarches.
Villeneuve-Minervois
TERRAINOc’résidences, constructeur de maisons individuelles depuis 1983 vous propose une opportunité à saisir!Situé dans un lotissement agréable à Villeneuve-Minervois, ce terrain terrain viabilisé de 600 m² est idéal pour concrétiser votre projet de construction. Ne manquez pas cette belle opportunité de bâtir votre maison dans un cadre privilégié!Pour plus de renseignements, contactez l’agence de Carcassonne au (Numéro supprimé).
Villeneuve-Minervois
TERRAIN ET MAISONLa maison Rose des vents offrira la modernité à votre quotidien. Son aménagement intérieur, vous assurera une judicieuse séparation entre l’espace jour et l’espace nuit, et ce, pour vous assurer une plus grande intimité. Son porche d’entrée vous abritera avant d’accéder à une vaste pièce à vivre de 40 m². Son coté nuit dessert quatre chambres avec placard et une salle de bains familiale. Son architecture en L font de ce modèle un incontournable chez Oc résidences, votre constructeur sur mesure en Occitanie.
L’actualité immobilière à Caunes-Minervois
27/11/2023
02/11/2023
30/10/2023
20/10/2023
16/10/2023
16/10/2023