Maison à construire à Arpajon-sur-Cère (15130)
Images
Description
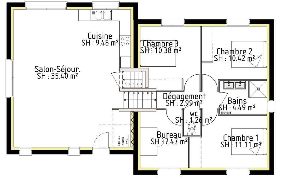
Découvrez cette maison moderne de 94m², alliant confort et praticité ! Avec son salon-séjour traversant de 44m², ses trois chambres avec placards et sa pièce bureau de 7,5m², elle offre un cadre de vie lumineux et fonctionnel. Profitez également d'un grand garage en sous-sol de 56m² pour un maximum de rangement. Un bien surprenant, pensé pour allier espace et commodités !
Logement susceptibles de vous intéresser
Nous vous proposons de découvrir aussi cette sélection de logements situés à moins de 10km de Arpajon-sur-Cère et qui seraient susceptibles de vous intéresser.
Arpajon-sur-Cère
TERRAINIDÉALEMENT SITUÉ – PROCHE AURILLACA quelques kilomètres d’Aurillac à Arpajon-sur-Cère (15130). Réalisez votre résidence principale ou secondaire sur ce terrain idéalement situé, dans un quartier recherché proche de toutes les commodités.Contactez l’Agence Maisons Partout au (Numéro supprimé) pour toute question sur ce terrain, sur les démarches à suivre et sur les modalités de vente. Donnez vie à vos projets immobiliers avec MAISONS PARTOUT Aurillac.
Aurillac
TERRAIN ET MAISONCette maison de plain-pied de 77m², idéale pour toute la famille, offre un salon-séjour traversant de 35m² lumineux, trois chambres spacieuses, une salle d’eau moderne et un WC indépendant. Le garage de 15m² complète parfaitement l’ensemble, offrant à la fois confort et praticité. Un agencement fonctionnel et agréable pour un cadre de vie idéal.
Aurillac
TERRAINCette maison de plain-pied de 77m², idéale pour toute la famille, offre un salon-séjour traversant de 35m² lumineux, trois chambres spacieuses, une salle d’eau moderne et un WC indépendant. Le garage de 15m² complète parfaitement l’ensemble, offrant à la fois confort et praticité. Un agencement fonctionnel et agréable pour un cadre de vie idéal.
Sansac-de-Marmiesse
TERRAINSansac-de-Marmiesse : terrain de 3 500 m² en venteIDÉALEMENT SITUÉ – PROCHE D’AURILLAC À vendre à quelques kilomètres d’Aurillac à Sansac-de-Marmiesse (15130), grand terrain. Réalisez-y la maison de vos rêves. Il y a une école élémentaire dans le quartier. Il est à vendre pour la somme de 32 000 €. Contactez notre agence MAISONS PARTOUT au (Numéro supprimé) pour obtenir de plus amples informations sur ce terrain. MAISONS PARTOUT Aurillac est là pour vous accompagner à toutes les étapes de l’achat.
Lafeuillade-en-Vézie
TERRAINTerrain de 705 m² en vente à Lafeuillade-en-VézieEmplacement privilégié – Proche écoles et commerces, à vendre : réalisez votre projet sur ce terrain de 705 m² à Lafeuillade-en-Vézie (15130).À proximité : écoles, boulangeries, boucherie-charcuterie, bureau de poste et épicerie. Aurillac à 15 km.Son prix de vente est de 23 970 €. N’hésitez pas à prendre contact avec l’Agence MAISONS PARTOUT ((Numéro supprimé)) pour toute information sur le terrain, sur les démarches à suivre ou sur les modalités de vente. Donnez vie à vos projets immobiliers avec MAISONS PARTOUT Aurillac.
Arpajon-sur-Cère
TERRAINVENTE : terrain de 710m² à Arpajon-sur-CèreQUARTIER RECHERCHÉ – PROCHE D’AURILLACCe terrain se situe situé dans un quartier prisé d’Arpajon-sur-Cère (15130). Il est situé dans un secteur recherché.Trés jolie vue sur les montagnes.Ce terrain est proposé à l’achat pour 49 700 €. N’hésitez pas à prendre contact avec l’Agence MAISONS PARTOUT (Numéro supprimé) pour tout renseignement sur le terrain. Faites de vos projets immobiliers une réalité avec MAISONS PARTOUT Aurillac.
Sansac-de-Marmiesse
TERRAINVENTE d’un terrain de 982 m² à Sansac-de-MarmiesseIDÉALEMENT SITUÉ – PROCHE AURILLACÀ Sansac-de-Marmiesse, à moins de 10 minutes d’Aurillac, venez découvrir ce terrain de 982 m² viabilisé et orienté Sud. Il se trouve dans un secteur attractif.Il est à vendre pour la somme de 42 000 €. Ce terrain est en zone C du PTZ+. Contactez notre agent commerciale Sylvie SOUQUIERES au (Numéro supprimé) pour tout renseignement sur ce terrain, sur les démarches à suivre et sur les modalités de vente.
Roannes-Saint-Mary
TERRAINVENTE : terrain de 900 m² à Roannes-Saint-MaryEMPLACEMENT PRIVILÉGIÉ – VUE DÉGAGÉE QUARTIER PAISIBLEÀ Roannes-Saint-Mary (15220) à 10 km d’Aurillac, donnez vie à la maison de vos rêves sur ce terrain de 900 m². Ce terrain, orienté sud, profite d’une vue dégagée. Il se situe dans un quartier convoité. Une école élémentaire y est implantée. Ce terrain est à vendre pour la somme de 22 500 €. Prenez contact avec Fabien CHARMES ((Numéro supprimé)) pour toute information sur ce terrain. MAISONS PARTOUT Aurillac est là pour vous accompagner dans toutes vos démarches.
Arpajon-sur-Cère
TERRAIN ET MAISONCette future villa de plain-pied, d’une superficie habitable de 111 m² avec un double garage de 37 m² a été pensée pour répondre à toutes vos attentes. Avec ses 4 chambres spacieuses, dont une suite parentale comprenant un dressing et une salle d’eau, elle offre un espace de vie généreux et fonctionnel de 45 m², idéal pour accueillir votre famille et partager des moments inoubliables. Sur un terrain plat de 829 m², dans un environnement paisible et à proximité immédiate des commerces, se dressera bientôt votre nouvelle demeure. Imaginez-vous déjà profiter de ce cadre idyllique avec une terrasse de 22.50 m² exposée Sud/Est, où le calme règne en maître et où chaque jour est synonyme de confort et de sérénité.Ne laissez pas passer cette opportunité unique de construire la maison de vos rêves dans un cadre enchanteur. Contactez-nous dès maintenant à l’agence Maisons Partout ((Numéro supprimé)) pour en savoir plus et commencez à imaginer votre nouvelle vie dans cette villa d’exception.
L’actualité immobilière à Arpajon-sur-Cère
27/11/2023
02/11/2023
30/10/2023
20/10/2023
16/10/2023
16/10/2023