Maison à construire à La Couronne (16400)
Images
Description
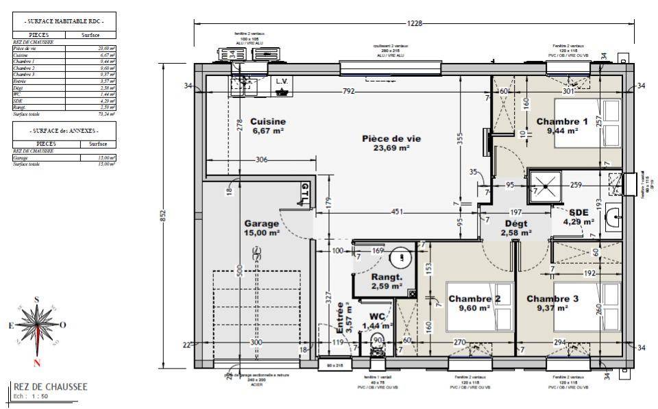
Projet maison de 3 pièces (70 m²)
A deux pas d'Angoulême, votre agence Bermax Construction Saint-Yrieix-sur-Charente est ravie de vous proposer cette maison de 3 pièces de plain-pied de 70 m² et de 384 m² de terrain idéalement située dans La Couronne (16400).
Conçue de plain-pied, elle inclut trois chambres, une cuisine ouverte sur une pièce de vie lumineuse, un garage et une salle de bains.
La maison est située dans un secteur convoité.
Elle est proposée à l'achat pour 151 400 €.
Contactez Aurélie RICOME (Numéro supprimé) pour plus de renseignements sur la maison. Concrétisez vos projets immobiliers avec Bermax Construction Saint-Yrieix-sur-Charente.
Logement susceptibles de vous intéresser
Nous vous proposons de découvrir aussi cette sélection de logements situés à moins de 10km de La Couronne et qui seraient susceptibles de vous intéresser.
Trois-Palis
TERRAINTerrain de 501 m² à Trois-PalisÀ quelques kilomètres d’Angoulême, grand terrain. Ce terrain, avec vue sur jardin, est orienté plein ouest. Il est situé dans un secteur recherché. Ce terrain est proposé à l’achat pour 39 000 €. Contactez Aurélie RICOME (tél : (Numéro supprimé)) pour plus de renseignements sur le terrain. Bermax Construction Saint-Yrieix-sur-Charente est là pour vous accompagner à toutes les étapes de l’achat.
Trois-Palis
TERRAIN ET MAISONProjet maison T3 60 m²À vendre à deux pas d’Angoulême, idéalement située dans Trois-Palis (16730), votre agence Bermax Construction Saint-Yrieix-sur-Charente est ravie de vous proposer cette maison de 3 pièces de plain-pied de 60 m² et de 501 m² de terrain. Elle comporte deux chambres, une cuisine ouverte sur une pièce de vie lumineuse et une salle de bains.Cette maison se trouve dans un secteur convoité. Son prix de vente est de 138 500 €.N’hésitez pas à prendre contact avec Aurélie RICOME (tél : (Numéro supprimé)) pour plus d’informations sur la maison. Bermax Construction Saint-Yrieix-sur-Charente est là pour vous accompagner à toutes les étapes de l’investissement.
Trois-Palis
TERRAIN ET MAISONProjet d’une maison T3 (70 m²) En vente à quelques kilomètres d’Angoulême, notre agence Bermax Construction Saint-Yrieix-sur-Charente est heureuse de vous proposer cette maison de 3 pièces de plain-pied de 70 m² et de 501 m² de terrain, idéalement située dans Trois-Palis (16730).Elle inclut trois chambres, une cuisine ouverte sur une pièce de vie lumineuse, un garage intégré et une salle de bains. La maison se situe dans un secteur attractif.Elle est proposée à l’achat pour 160 500 €.N’hésitez pas à prendre contact avec Aurélie RICOME (Numéro supprimé) pour obtenir de plus amples informations sur la propriété, sur les modalités de vente ou sur les démarches à suivre. Bermax Construction Saint-Yrieix-sur-Charente est là pour vous accompagner à toutes les étapes de l’achat.
La Couronne
TERRAINTerrain de 384 m² à vendreEn vente à quelques kilomètres d’Angoulême à La Couronne (16400), terrain de 384 m².Il est prêt à accueillir votre projet immobilier. Ce terrain, avec vue dégagée, bénéficie d’une exposition sud. Il est situé dans un secteur convoité. Il est à vendre pour la somme de 29 000 €. Prenez contact avec Aurélie RICOME (Numéro supprimé) pour toute information sur ce terrain. Donnez vie à vos projets immobiliers avec Bermax Construction Saint-Yrieix-sur-Charente.
La Couronne
TERRAIN ET MAISONProjet maison T3 (60 m²) En vente à quelques kilomètres d’Angoulême, nous vous présentons, idéalement située dans La Couronne (16400), cette maison de 3 pièces de 60 m² avec vue dégagée.C’est une maison de plain-pied. Elle est composée de deux chambres, d’une cuisine ouverte sur une pièce de vie lumineuse et d’une salle de bains. Le terrain de la propriété s’étend sur 384 m².Elle est proposée à l’achat pour 129 400 €.Contactez Aurélie RICOME (Numéro supprimé) pour toute information sur la maison, sur les démarches à suivre ou sur les modalités de vente. Concrétisez vos projets immobiliers avec Bermax Construction Saint-Yrieix-sur-Charente.
La Couronne
TERRAIN ET MAISONProjet maison de 3 pièces (70 m²)A deux pas d’Angoulême, votre agence Bermax Construction Saint-Yrieix-sur-Charente est ravie de vous proposer cette maison de 3 pièces de plain-pied de 70 m² et de 384 m² de terrain idéalement située dans La Couronne (16400).Conçue de plain-pied, elle inclut trois chambres, une cuisine ouverte sur une pièce de vie lumineuse, un garage et une salle de bains. La maison est située dans un secteur convoité. Elle est proposée à l’achat pour 151 400 €.Contactez Aurélie RICOME (Numéro supprimé) pour plus de renseignements sur la maison. Concrétisez vos projets immobiliers avec Bermax Construction Saint-Yrieix-sur-Charente.
Soyaux
TERRAINjoli terrain 439m2 proches des commerces et transports Les honoraires d’agence sont à la charge de l’acquéreur, soit 10,00% TTC du prix hors honoraires.Les informations sur les risques auxquels ce bien est exposé sont disponibles sur le site Géorisques : www. georisques. gouv. fr.Contactez Laurence COUPRIE Entrepreneur Individuel, Agent commercial OptimHome (RSAC N(Numéro supprimé) Greffe de ANGOULEME) (Numéro supprimé) (réf. 595037 )
Soyaux
TERRAINbeau terrain bien exposé proche de toutes commodités Les honoraires d’agence sont à la charge de l’acquéreur, soit 10,00% TTC du prix hors honoraires.Les informations sur les risques auxquels ce bien est exposé sont disponibles sur le site Géorisques : www. georisques. gouv. fr.Contactez Laurence COUPRIE Entrepreneur Individuel, Agent commercial OptimHome (RSAC N(Numéro supprimé) Greffe de ANGOULEME) (Numéro supprimé) (réf. 595006 )
Mouthiers-sur-Boëme
TERRAINEXCLUSIVITÉ 16440 MOUTHIERS SUR BOEME – TERRAIN CONSTRUCTIBLE AVEC GARAGE – 1650 m² – effiCity, l’Agence qui estime votre bien en ligne, vous propose ce grand terrain aux portes d’Angoulême.Terrain arboré et clôturé. Garage et cabanon sur la parcelle.Terrain plat de +/- 26 mètres sur 64 mètres. Terrain constructible viabilisé uniquement avec compteur d’eau (électricité, gaz, fibre et tout à l’égout juste devant la parcelle). Certificat d’urbanisme OK pour 1 ou 2 maisons – étude de sol en-cours. Coup de cœur garantit ! Pour plus d’informations, contactez Christophe HERVET au (Numéro supprimé). ou (Email supprimé) Les informations sur les risques auxquels ce bien est exposé sont disponibles sur le site Georisque : georisques. gouv. fr Christophe Hervet – EI – est Agent Commercial mandataire en immobilier, immatriculé au Registre Spécial des Agents Commerciaux du Tribunal de Commerce de Angoulême sous le n(Numéro supprimé).Siège social du mandant : effiCity, 48 avenue de Villiers – 75017 PARIS – Société par Actions Simplifiée, société au capital de 132 373,05 euros, immatriculée au RCS Paris 497 617 746 et titulaire de la Carte professionnelle CPI 7501 2015 000 002 025 – CCI Paris IDF – Caisse de Garantie : GALIAN Assurances 89 rue de la Boétie 75008 Paris
L’actualité immobilière à La Couronne
27/11/2023
02/11/2023
30/10/2023
20/10/2023
16/10/2023
16/10/2023