Maison à construire à Trois-Palis (16730)
Images
Description
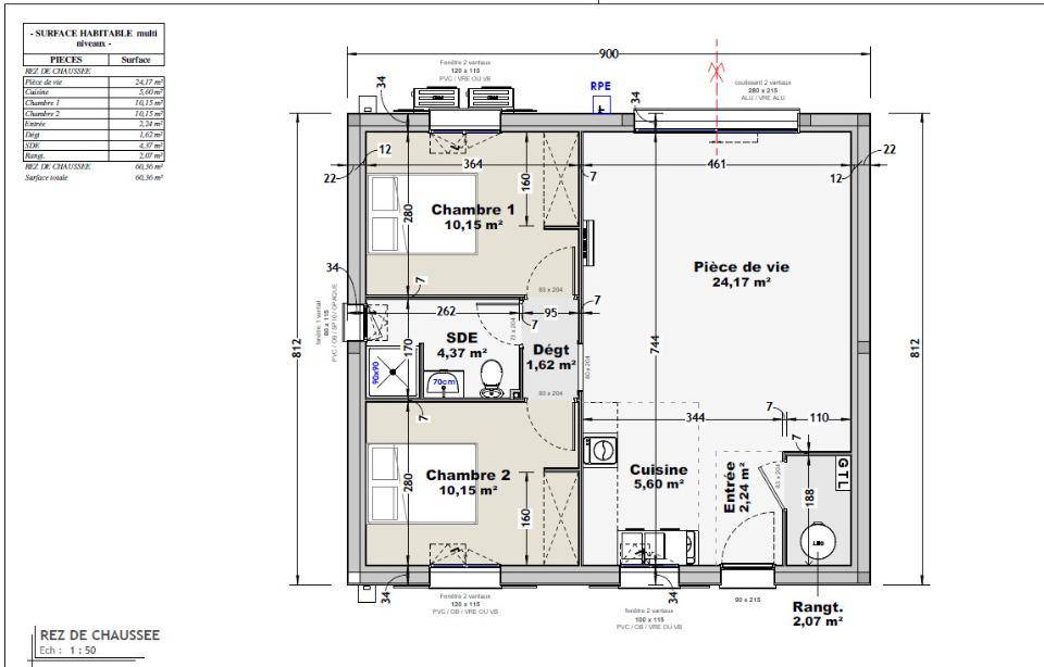
Projet maison T3 60 m²
À vendre à deux pas d'Angoulême, idéalement située dans Trois-Palis (16730), votre agence Bermax Construction Saint-Yrieix-sur-Charente est ravie de vous proposer cette maison de 3 pièces de plain-pied de 60 m² et de 501 m² de terrain.
Elle comporte deux chambres, une cuisine ouverte sur une pièce de vie lumineuse et une salle de bains.
Cette maison se trouve dans un secteur convoité.
Son prix de vente est de 138 500 €.
N'hésitez pas à prendre contact avec Aurélie RICOME (tél : (Numéro supprimé)) pour plus d'informations sur la maison.
Bermax Construction Saint-Yrieix-sur-Charente est là pour vous accompagner à toutes les étapes de l'investissement.
Logement susceptibles de vous intéresser
Nous vous proposons de découvrir aussi cette sélection de logements situés à moins de 10km de Trois-Palis et qui seraient susceptibles de vous intéresser.
Châteauneuf-sur-Charente
TERRAINSur la commune de Viville, entre Châteauneuf et Barbezieux, venez découvrir ce superbe terrain offrant un cadre paisible et verdoyant, idéal pour votre projet de constructions. Possibilité d’acquérir du terrain agricole supplémentaire selon vos besoins. Réseaux en bordure de parcelle, accès facile, environnement agréable et belle exposition. Une belle opportunité rare sur le secteur. Contactez notre Agence ALPHA CONSTRUCTIONS Cognac (Tony Daigre (Numéro supprimé)) pour plus de renseignements.
Châteauneuf-sur-Charente
TERRAIN ET MAISONA découvrir sans tarder! Magnifique maison de 100m² offre un cadre paisible et verdoyant, alliant confort, espace et luminosité. Composé de 3 chambres spacieuses, 2 salle de bain modernes, cuisine fonctionnelle, carport avec garage attenant et un magnifique séjour traversant baigné dans la lumière. Idéalement située à la campagne tout en étant proche des commodités, cette maison séduit par sa luminosité naturelle, son agencement convivial et son environnement calme. PLAN MODULABLE, MODE DE CHAUFFAGE PERFORMANT ET ECONOMIQUE, RE2020, MAT2RIAUX DE QUALITES. PLAN MODULABLE.Contactez notre agence Alpha Constructions Cognac (Tony DAIGRE (Numéro supprimé)) pour plus de renseignements
Châteauneuf-sur-Charente
TERRAIN ET MAISONA découvrir sans tarder! Magnifique maison en H de 145m² offre un cadre paisible et verdoyant, alliant confort, espace et luminosité. Composé de 3 chambres spacieuses, 2 salle de bain modernes, cuisine fonctionnelle avec son garage attenant et un magnifique séjour traversant baigné dans la lumière. Idéalement située à la campagne tout en étant proche des commodités, cette maison séduit par sa luminosité naturelle, son agencement convivial et son environnement calme. PLAN MODULABLE, MODE DE CHAUFFAGE PERFORMANT ET ECONOMIQUE, RE2020, MATERIAUX DE QUALITES. PLAN MODULABLE.Contactez notre agence Alpha Constructions Cognac (Tony DAIGRE (Numéro supprimé)) pour plus de renseignements
Trois-Palis
TERRAINTerrain de 501 m² à Trois-PalisÀ quelques kilomètres d’Angoulême, grand terrain. Ce terrain, avec vue sur jardin, est orienté plein ouest. Il est situé dans un secteur recherché. Ce terrain est proposé à l’achat pour 39 000 €. Contactez Aurélie RICOME (tél : (Numéro supprimé)) pour plus de renseignements sur le terrain. Bermax Construction Saint-Yrieix-sur-Charente est là pour vous accompagner à toutes les étapes de l’achat.
Trois-Palis
TERRAIN ET MAISONProjet maison T3 60 m²À vendre à deux pas d’Angoulême, idéalement située dans Trois-Palis (16730), votre agence Bermax Construction Saint-Yrieix-sur-Charente est ravie de vous proposer cette maison de 3 pièces de plain-pied de 60 m² et de 501 m² de terrain. Elle comporte deux chambres, une cuisine ouverte sur une pièce de vie lumineuse et une salle de bains.Cette maison se trouve dans un secteur convoité. Son prix de vente est de 138 500 €.N’hésitez pas à prendre contact avec Aurélie RICOME (tél : (Numéro supprimé)) pour plus d’informations sur la maison. Bermax Construction Saint-Yrieix-sur-Charente est là pour vous accompagner à toutes les étapes de l’investissement.
Trois-Palis
TERRAIN ET MAISONProjet d’une maison T3 (70 m²) En vente à quelques kilomètres d’Angoulême, notre agence Bermax Construction Saint-Yrieix-sur-Charente est heureuse de vous proposer cette maison de 3 pièces de plain-pied de 70 m² et de 501 m² de terrain, idéalement située dans Trois-Palis (16730).Elle inclut trois chambres, une cuisine ouverte sur une pièce de vie lumineuse, un garage intégré et une salle de bains. La maison se situe dans un secteur attractif.Elle est proposée à l’achat pour 160 500 €.N’hésitez pas à prendre contact avec Aurélie RICOME (Numéro supprimé) pour obtenir de plus amples informations sur la propriété, sur les modalités de vente ou sur les démarches à suivre. Bermax Construction Saint-Yrieix-sur-Charente est là pour vous accompagner à toutes les étapes de l’achat.
La Couronne
TERRAINTerrain de 384 m² à vendreEn vente à quelques kilomètres d’Angoulême à La Couronne (16400), terrain de 384 m².Il est prêt à accueillir votre projet immobilier. Ce terrain, avec vue dégagée, bénéficie d’une exposition sud. Il est situé dans un secteur convoité. Il est à vendre pour la somme de 29 000 €. Prenez contact avec Aurélie RICOME (Numéro supprimé) pour toute information sur ce terrain. Donnez vie à vos projets immobiliers avec Bermax Construction Saint-Yrieix-sur-Charente.
La Couronne
TERRAIN ET MAISONProjet maison T3 (60 m²) En vente à quelques kilomètres d’Angoulême, nous vous présentons, idéalement située dans La Couronne (16400), cette maison de 3 pièces de 60 m² avec vue dégagée.C’est une maison de plain-pied. Elle est composée de deux chambres, d’une cuisine ouverte sur une pièce de vie lumineuse et d’une salle de bains. Le terrain de la propriété s’étend sur 384 m².Elle est proposée à l’achat pour 129 400 €.Contactez Aurélie RICOME (Numéro supprimé) pour toute information sur la maison, sur les démarches à suivre ou sur les modalités de vente. Concrétisez vos projets immobiliers avec Bermax Construction Saint-Yrieix-sur-Charente.
La Couronne
TERRAIN ET MAISONProjet maison de 3 pièces (70 m²)A deux pas d’Angoulême, votre agence Bermax Construction Saint-Yrieix-sur-Charente est ravie de vous proposer cette maison de 3 pièces de plain-pied de 70 m² et de 384 m² de terrain idéalement située dans La Couronne (16400).Conçue de plain-pied, elle inclut trois chambres, une cuisine ouverte sur une pièce de vie lumineuse, un garage et une salle de bains. La maison est située dans un secteur convoité. Elle est proposée à l’achat pour 151 400 €.Contactez Aurélie RICOME (Numéro supprimé) pour plus de renseignements sur la maison. Concrétisez vos projets immobiliers avec Bermax Construction Saint-Yrieix-sur-Charente.
L’actualité immobilière à Trois-Palis
27/11/2023
02/11/2023
30/10/2023
20/10/2023
16/10/2023
16/10/2023