Images
Description
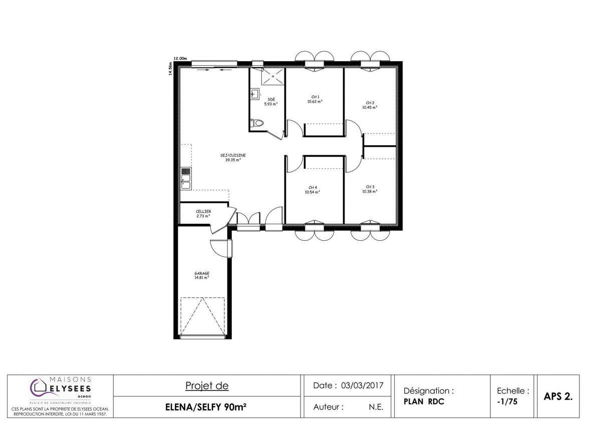
Sur ce terrain, nous vous proposons cette maison neuve, modèle Selfy, construite par Elysees Ocean, le constructeur avec les meilleurs avis clients de la profession. Idéale pour les petits terrains, la Selfy est un modèle jeune et convivial, misant sur la personnalisation pour répondre à vos besoins.
Avec une surface de 90 m², cette maison basse consommation, conforme à la RE2020, vous offre un cadre de vie moderne et éco-responsable. Elle se compose de 4 chambres et de 4 pièces, offrant ainsi un espace de vie confortable et fonctionnel pour toute la famille.
Les options les plus demandées par nos clients sont disponibles pour cette maison : des menuiseries en aluminium pour une meilleure isolation et un design contemporain, ainsi qu'un bardage en bois pour une touche naturelle et chaleureuse.
Que vous entriez par le nord ou le sud, et que vous cherchiez 2, 3 ou 4 chambres, il existe toujours un modèle Selfy pour vous satisfaire. Ne manquez pas cette opportunité de construire la maison de vos rêves avec Elysees Ocean, le constructeur de confiance.
Logement susceptibles de vous intéresser
Nous vous proposons de découvrir aussi cette sélection de logements situés à moins de 10km de Médis et qui seraient susceptibles de vous intéresser.
Meschers-sur-Gironde
TERRAINMeschers, situé dans un lotissement très agréable à vivre, venez découvrir ce terrain viabilisé de 248 m², clos, profitant d’une exposition sud.Pour tout renseignement complémentaire, contactez Pierre-Emmanuel HÜE (Bermax Construction Vaux-sur-Mer) au (Numéro supprimé)
Médis
TERRAINMédis, dans un quartier calme et bucolique entouré de champs et forêts, très belle opportunité avec ce terrain borné et viabilisé à la façade de plus de 15ml et exposé sud-ouest.Vous souhaitez faire construire à Médis, contactez Pierre-Emmanuel HÜE (Bermax Construction Vaux-sur-Mer) au (Numéro supprimé)
Mornac-sur-Seudre
TERRAINDécouvrez cette nouvelle opportunité située dans l’un des plus beaux villages de France, à seulement 15 minutes du centre-ville de Royan et à 10 minutes des plages de Saint-Palais-sur-Mer. Ce terrain de 343 m², idéalement placé à Mornac-sur-Seudre, est borné et viabilisé, en bordure d’espaces verts. Si vous êtes en quête d’authenticité et de charme, contactez Pierre-Emmanuel HÜE (Bermax Construction à Vaux-sur-Mer) au (Numéro supprimé) pour plus d’informations.
Mornac-sur-Seudre
TERRAINVous souhaitez habiter une maison de plain-pied, avec une pièce de vie traversante communiquant avec le cellier et le garage, mais également avec 3 chambres alors cette maison est faite pour vous.Cette maison est construite en briques sur vide-sanitaire. Elle est présentée avec les peintures et revêtements de sols dans les chambres faits, faïence toute hauteur en douche et 2 m sur le reste de la salle d’eau, porte de garage sectionnelle motorisée. La production d’eau chaude et de chauffage (plancher chauffant hydraulique) est assurée par une pompe à chaleur air/eau.Contactez Pierre-Emmanuel HÜE (Bermax Construction Vaux-sur-Mer) au (Numéro supprimé) pour de plus amples renseignements.
Meschers-sur-Gironde
TERRAIN ET MAISONA Meschers, à 2 km du centre ville et école maternelles et primaires, nous proposons cette maison RE 2020 de plain-pied de 60 m² à construire avec une pièce de vie traversante, 2 chambres, salle d’eau avec wc intégré, carport de 18,65 m²Prenez contact avec Pierre-Emmanuel HÜE (Bermax Construction Vaux-sur-Mer) au (Numéro supprimé) pour tout renseignement complémentaire.
Médis
TERRAIN ET MAISONA Médis, située dans un quartier très calme, nous proposons cette maison RE 2020 de plain-pied de 60 m² avec une pièce de vie traversante, 2 chambres, salle d’eau avec wc intégré, garage accolé.Prenez contact avec Pierre-Emmanuel HÜE (Bermax Construction Vaux-sur-Mer) au (Numéro supprimé) pour tout renseignement complémentaire.
Médis
TERRAIN ET MAISONA Médis, située dans un quartier calme, à 2 pas du centre bourg, nous proposons une maison de plain-pied de 73 m² RE 2020 avec pièce de vie de 29 m², 3 chambres, salle d’eau avec double vasque, wc, garage intégré Pour tout renseignement complémentaire, contactez Pierre-Emmanuel HÜE (Bermax Construction Vaux-sur-Mer) au (Numéro supprimé)
Mornac-sur-Seudre
TERRAIN ET MAISONVous souhaitez habiter une maison de plain-pied, avec une pièce de vie spacieuse avec cuisine légèrement en renforcement, communiquant directement avec le cellier et le garage, mais également avec 3 chambres alors cette maison est faite pour vous.Cette maison est construite en briques sur vide-sanitaire. Elle est présentée avec les peintures et revêtements de sols dans les chambres faits, faïence toute hauteur en douche et 2 m sur le reste de la salle d’eau, porte de garage sectionnelle motorisée. La production d’eau chaude et de chauffage (plancher chauffant hydraulique) est assurée par une pompe à chaleur air/eau.Contactez Pierre-Emmanuel HÜE (Bermax Construction Vaux-sur-Mer) au (Numéro supprimé) pour de plus amples renseignements.
Mornac-sur-Seudre
TERRAIN ET MAISONVous souhaitez habiter une maison de plain-pied, avec une pièce de vie traversante communiquant avec le cellier et le garage, mais également avec 3 chambres alors cette maison est faite pour vous.Cette maison est construite en briques sur vide-sanitaire. Elle est présentée avec les peintures et revêtements de sols dans les chambres faits, faïence toute hauteur en douche et 2 m sur le reste de la salle d’eau, porte de garage sectionnelle motorisée. La production d’eau chaude et de chauffage (plancher chauffant hydraulique) est assurée par une pompe à chaleur air/eau.Contactez Pierre-Emmanuel HÜE (Bermax Construction Vaux-sur-Mer) au (Numéro supprimé) pour de plus amples renseignements.
L’actualité immobilière à Médis
27/11/2023
02/11/2023
30/10/2023
20/10/2023
16/10/2023
16/10/2023