Images
Description
Sur ce terrain, nous vous proposons cette maison neuve, modèle Oceane, construite par Elysees Ocean, le constructeur avec les meilleurs avis clients de la profession.
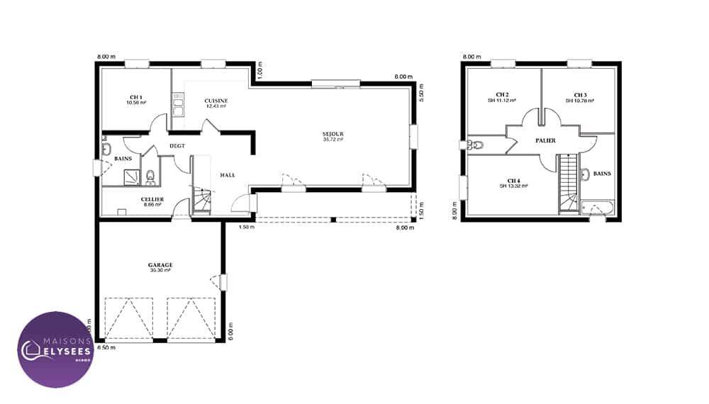
Cette maison de 116 m², de style provençal, se distingue par son élégance et son harmonie. Elle dispose de 4 chambres et de 4 pièces, offrant ainsi un espace de vie confortable et fonctionnel pour toute la famille. La maison Oceane est conçue avec une dalle étage en béton, garantissant une solidité et une durabilité exceptionnelles. Vous avez le choix entre une toiture à 2 pans ou à 4 pans, selon vos préférences esthétiques.
Le rez-de-chaussée accueille un grand espace à vivre lumineux et convivial, idéal pour les moments en famille ou entre amis. Une chambre ou un bureau supplémentaire se trouve également à ce niveau, offrant une flexibilité d'aménagement. À l'étage, la partie nuit se compose de trois chambres spacieuses, parfaites pour le repos et l'intimité de chacun.
Le garage intégré est un atout pratique, permettant de stationner votre véhicule en toute sécurité et de bénéficier d'un espace de rangement supplémentaire.
Les options les plus demandées par nos clients, telles que les menuiseries en aluminium, sont disponibles pour personnaliser votre maison selon vos goûts et vos besoins. Vous pouvez également choisir des façades colorées ou un bardage bois pour apporter une touche de modernité à votre demeure.
Cette maison neuve est basse consommation et conforme à la réglementation environnementale RE2020, vous assurant ainsi des économies d'énergie et un confort optimal tout au long de l'année.
La maison Oceane est idéale pour une vie en bord de mer, offrant un cadre de vie agréable et paisible. Ne manquez pas cette opportunité unique de devenir propriétaire d'une maison neuve, élégante et éco-responsable, construite par Elysees Ocean, le constructeur de confiance avec les meilleurs avis clients de la profession.
Logement susceptibles de vous intéresser
Nous vous proposons de découvrir aussi cette sélection de logements situés à moins de 10km de Saujon et qui seraient susceptibles de vous intéresser.
Meursac
TERRAINMeursac, très agréable village au charme charentais, située à 5 mn de Saujon en direction de Saintes, nous proposons dans un lotissement achevé et récent, ce beau terrain viabilisé, plat, bénéficiant d’une façade de 19 m pour accueillir votre résidence principale.Ce terrain vous intéresse, contactez Pierre-Emmanuel HÜE (Bermax Construction Vaux-sur-Mer) au (Numéro supprimé)
Médis
TERRAINMédis, dans un quartier calme et bucolique entouré de champs et forêts, très belle opportunité avec ce terrain borné et viabilisé à la façade de plus de 15ml et exposé sud-ouest.Vous souhaitez faire construire à Médis, contactez Pierre-Emmanuel HÜE (Bermax Construction Vaux-sur-Mer) au (Numéro supprimé)
Mornac-sur-Seudre
TERRAINDécouvrez cette nouvelle opportunité située dans l’un des plus beaux villages de France, à seulement 15 minutes du centre-ville de Royan et à 10 minutes des plages de Saint-Palais-sur-Mer. Ce terrain de 343 m², idéalement placé à Mornac-sur-Seudre, est borné et viabilisé, en bordure d’espaces verts. Si vous êtes en quête d’authenticité et de charme, contactez Pierre-Emmanuel HÜE (Bermax Construction à Vaux-sur-Mer) au (Numéro supprimé) pour plus d’informations.
Mornac-sur-Seudre
TERRAINVous souhaitez habiter une maison de plain-pied, avec une pièce de vie traversante communiquant avec le cellier et le garage, mais également avec 3 chambres alors cette maison est faite pour vous.Cette maison est construite en briques sur vide-sanitaire. Elle est présentée avec les peintures et revêtements de sols dans les chambres faits, faïence toute hauteur en douche et 2 m sur le reste de la salle d’eau, porte de garage sectionnelle motorisée. La production d’eau chaude et de chauffage (plancher chauffant hydraulique) est assurée par une pompe à chaleur air/eau.Contactez Pierre-Emmanuel HÜE (Bermax Construction Vaux-sur-Mer) au (Numéro supprimé) pour de plus amples renseignements.
Médis
TERRAIN ET MAISONA Médis, située dans un quartier très calme, nous proposons cette maison RE 2020 de plain-pied de 60 m² avec une pièce de vie traversante, 2 chambres, salle d’eau avec wc intégré, garage accolé.Prenez contact avec Pierre-Emmanuel HÜE (Bermax Construction Vaux-sur-Mer) au (Numéro supprimé) pour tout renseignement complémentaire.
Médis
TERRAIN ET MAISONA Médis, située dans un quartier calme, à 2 pas du centre bourg, nous proposons une maison de plain-pied de 73 m² RE 2020 avec pièce de vie de 29 m², 3 chambres, salle d’eau avec double vasque, wc, garage intégré Pour tout renseignement complémentaire, contactez Pierre-Emmanuel HÜE (Bermax Construction Vaux-sur-Mer) au (Numéro supprimé)
Mornac-sur-Seudre
TERRAIN ET MAISONVous souhaitez habiter une maison de plain-pied, avec une pièce de vie spacieuse avec cuisine légèrement en renforcement, communiquant directement avec le cellier et le garage, mais également avec 3 chambres alors cette maison est faite pour vous.Cette maison est construite en briques sur vide-sanitaire. Elle est présentée avec les peintures et revêtements de sols dans les chambres faits, faïence toute hauteur en douche et 2 m sur le reste de la salle d’eau, porte de garage sectionnelle motorisée. La production d’eau chaude et de chauffage (plancher chauffant hydraulique) est assurée par une pompe à chaleur air/eau.Contactez Pierre-Emmanuel HÜE (Bermax Construction Vaux-sur-Mer) au (Numéro supprimé) pour de plus amples renseignements.
Mornac-sur-Seudre
TERRAIN ET MAISONVous souhaitez habiter une maison de plain-pied, avec une pièce de vie traversante communiquant avec le cellier et le garage, mais également avec 3 chambres alors cette maison est faite pour vous.Cette maison est construite en briques sur vide-sanitaire. Elle est présentée avec les peintures et revêtements de sols dans les chambres faits, faïence toute hauteur en douche et 2 m sur le reste de la salle d’eau, porte de garage sectionnelle motorisée. La production d’eau chaude et de chauffage (plancher chauffant hydraulique) est assurée par une pompe à chaleur air/eau.Contactez Pierre-Emmanuel HÜE (Bermax Construction Vaux-sur-Mer) au (Numéro supprimé) pour de plus amples renseignements.
Mornac-sur-Seudre
TERRAIN17113- MORNAC-SUR-SEUDRE – CHARENTE MARITIME – TERRAIN CONSTRUCTIBLE de 640 M2 -Efficity, l’agence qui estime votre bien en ligne vous propose, un terrain constructible de 640 m2 .Ce terrain se trouve à Mornac-sur-Seudre, l’un des plus beaux village de France, à proximité des commerces.Pour plus de renseignement contacter Anne Carlier Le Coadou au (Numéro supprimé) ou par mail (Email supprimé) Les informations sur les risques auxquels ce bien est exposé sont disponibles sur le site Georisque : georisques. gouv. fr Anne Carlier Le Coadou – EI – est Agent Commercial mandataire en immobilier, immatriculé au Registre Spécial des Agents Commerciaux du Tribunal de Commerce de La Rochelle sous le n(Numéro supprimé).Siège social du mandant : effiCity, 48 avenue de Villiers – 75017 PARIS – Société par Actions Simplifiée, société au capital de 132 373,05 euros, immatriculée au RCS Paris 497 617 746 et titulaire de la Carte professionnelle CPI 7501 2015 000 002 025 – CCI Paris IDF – Caisse de Garantie : GALIAN Assurances 89 rue de la Boétie 75008 Paris
L’actualité immobilière à Saujon
27/11/2023
02/11/2023
30/10/2023
20/10/2023
16/10/2023
16/10/2023