Images
Description
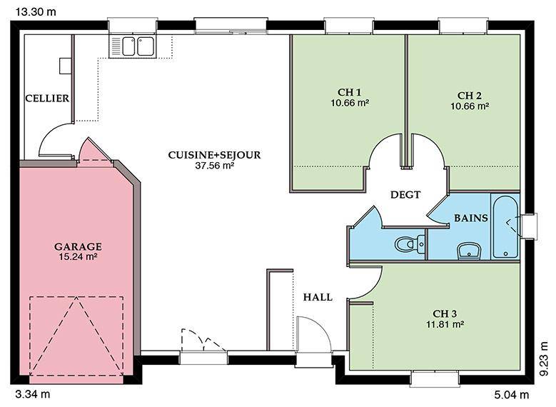
Découvrez la Prunière, une maison neuve de 87,5 m² avec garage intégré, qui marie style moderne et confort au quotidien. Disponible en toit 2 ou 4 pans, elle séduit par son architecture élégante et son agencement fonctionnel, idéal pour un couple ou une jeune famille.
L’intérieur se compose de 3 chambres lumineuses, d’un espace de vie ouvert et convivial, et d’un garage accolé offrant un rangement pratique et un accès direct à la maison. Chaque espace a été pensé pour offrir volume, clarté et bien-être.
Conforme à la réglementation RE2020, la Prunière bénéficie d’une isolation performante, d’une consommation énergétique réduite et d’un confort thermique optimal tout au long de l’année.
La Prunière 87,5 m² + garage, c’est le choix d’une maison moderne, économe et durable, pensée pour un mode de vie simple, serein et tourné vers l’avenir.
Logement susceptibles de vous intéresser
Nous vous proposons de découvrir aussi cette sélection de logements situés à moins de 10km de La Chapelle-Saint-Ursin et qui seraient susceptibles de vous intéresser.
Saint-Doulchard
TERRAIN ET MAISONMAISONS FRANCE CONFORT – Votre future maison d’exception à Saint-Doulchard !120 m² + garage – Confort, volume et modernité !Saisissez l’opportunité de réaliser une maison sur mesure signée Maisons France Confort, alliant design contemporain, grands espaces et prestations de qualité.Au programme :✨ 3 chambres dont une suite parentale premium avec espace privatif✨ Une grande pièce de vie lumineuse, parfaite pour accueillir famille et amis✨ Cuisine ouverte avec cellier attenant, pour un quotidien facilité✨ Garage, idéal pour stockageUn projet pensé pour offrir bien-être, fonctionnalité et valeur pérenne.Un investissement sûr, un confort durable : construisez l’avenir avec Maisons France Confort !Réalisez la maison qui vous ressemble, adaptée à vos besoins avec MAISONS FRANCE CONFORT sur ce terrain en accord avec un partenaire foncier.📞 Contactez Maisons France Confort Saint-Doulchard pour plus d’informations et commencer votre projet de construction !
Saint-Florent-sur-Cher
TERRAIN ET MAISONProjet de construction – Maison familiale à Saint-Florent-sur-Cher (18)Maisons France Confort Saint-Doulchard vous propose un projet de construction d’une maison moderne et fonctionnelle située à Saint-Florent-sur-Cher, idéale pour une famille en quête de confort et de sérénité.Cette maison disposera de 4 chambres, dont une suite parentale comprenant un dressing et une salle d’eau privative, offrant un véritable espace intime et indépendant.Un grand cellier/buanderie viendra compléter les espaces pratiques de la maison pour un quotidien plus organisé.Les 3 autres chambres, dédiées aux enfants ou aux invités, sont situées dans un espace nuit séparé et bénéficient d’une belle salle de bain indépendante, garantissant confort et intimité pour toute la famille.La pièce de vie, spacieuse et lumineuse, a été pensée pour être chaleureuse et conviviale, parfaite pour recevoir et partager des moments en famille ou entre amis.Réalisez la maison qui vous ressemble, adaptée à vos besoins avec MAISONS FRANCE CONFORT sur ce terrain en accord avec un partenaire foncier.📞 Contactez Maisons France Confort Saint-Doulchard dès aujourd’hui pour plus d’informations et commencer votre projet de construction !
Saint-Florent-sur-Cher
TERRAIN ET MAISON🏡 Votre future maison 3 chambres à Saint-Florent-sur-Cher avec Maisons France ConfortRéalisez votre projet sur mesure dans cette charmante commune, avec une maison moderne, fonctionnelle et parfaitement adaptée à vos besoins.✨ Les atouts de votre maison :3 chambres spacieuses, idéales pour toute la famillePlan sur mesure : personnalisez chaque espace selon vos enviesMaison lumineuse et bien agencée avec pièce à vivre ouverteBeau Jardin pour profiter pleinement de vos extérieursConstruction de qualité par Maisons France Confort,1er constructeur de maisons en France et marque leader du Groupe HEXAOM💡 Votre projet clé en main : Maisons France Confort vous accompagne à chaque étape, du plan personnalisé jusqu’à la remise des clés.N’hésitez pas à prendre contact avec Maisons France Confort Saint-Doulchard pour obtenir de plus amples renseignements. Donnez vie à vos projets immobiliers avec Maisons France Confort.MAISONS FRANCE CONFORT a sélectionné avec un partenaire foncier un terrain pour construire cette maison.
Saint-Doulchard
TERRAIN ET MAISONProjet de construction – Maison familiale à Saint-Doulchard (18230)Maisons France Confort Saint-Doulchard vous propose un projet de construction d’une maison moderne et fonctionnelle située à Saint-Doulchard, idéale pour une famille en quête de confort et de sérénité.Cette maison disposera de 4 chambres, dont une suite parentale comprenant un dressing et une salle d’eau privative, offrant un véritable espace intime et indépendant.Un grand cellier/buanderie viendra compléter les espaces pratiques de la maison pour un quotidien plus organisé.Les 3 autres chambres, dédiées aux enfants ou aux invités, sont situées dans un espace nuit séparé et bénéficient d’une belle salle de bain indépendante, garantissant confort et intimité pour toute la famille.La pièce de vie, spacieuse et lumineuse, a été pensée pour être chaleureuse et conviviale, parfaite pour recevoir et partager des moments en famille ou entre amis.Réalisez la maison qui vous ressemble, adaptée à vos besoins avec MAISONS FRANCE CONFORT sur ce terrain en accord avec un partenaire foncier.📞 Contactez Maisons France Confort Saint-Doulchard dès aujourd’hui pour plus d’informations et commencer votre projet de construction !
Saint-Florent-sur-Cher
TERRAIN ET MAISON🏡 Construction – Maison 2 chambres évolutive avec combles aménageablesDécouvrez ce projet de construction moderne et fonctionnel, proposé par Maisons France Confort, constructeur reconnu du groupe HEXAOM, premier constructeur de maisons individuelles en France.✨ Descriptif du projet :Maison de plain-pied, aux normes PMR (personne à mobilité réduite), pensée pour le confort et l’accessibilité2 chambres lumineuses et bien agencéesCombles aménageables, offrant un fort potentiel d’évolution selon vos besoins futurs (chambres supplémentaires, bureau, salle de jeux, etc.)Belle pièce de vie conviviale, ouverte sur le jardinCuisine ouverte et cellier fonctionnelSalle d’eau moderne et WC 🌿 Maison conforme à la norme RE2020, garantissant confort, performance énergétique et économies d’énergie.💡 Idéale pour un investissement locatif ou un premier achat, cette maison combine accessibilité, évolutivité et rentabilité.🏠 Maisons France Confort vous accompagne pour réaliser un projet sur mesure, fiable et durable.Possibilité de réaliser votre projet personnalisé avec Maisons France Confort sur ce terrain en accord avec notre partenaire foncier📞 Contactez Maisons France Confort Saint-Doulchard dès aujourd’hui pour étudier votre projet et faire de cette maison votre futur chez-vous
Saint-Florent-sur-Cher
TERRAINIdéal pour votre projet de maison avec Maisons France Confort Saint-Doulchard🏠 Un projet de construction personnaliséLe constructeur Maisons France Confort vous accompagne pour imaginer et bâtir la maison de vos rêves :Maisons traditionnelles, modernes ou contemporaines.Plans personnalisables selon vos besoins et votre budget.Garanties et accompagnement complet (CCMI, suivi de chantier, performance énergétique).Pour plus d’informations sur les possibilités de construction avec Maisons France Confort, contactez Jessica DA COSTANous vous accompagnerons à chaque étape de votre projet pour une réalisation en toute sérénité sur ce terrain proposé en accord avec notre partenaire foncier.
Saint-Florent-sur-Cher
TERRAIN ET MAISON🏡 Construction Maison R+1 – 4 chambres avec garage à Saint-Florent-sur-Cher – Prestations haut de gammeRéalisez votre projet de vie avec Maisons France Confort, constructeur du groupe HEXAOM, premier constructeur de maisons individuelles en France, reconnu pour la qualité et le sérieux de ses réalisations.✨ Caractéristiques de la maison :R+1 complet offrant de beaux volumes et une organisation fonctionnelle4 chambres spacieuses pour toute la famille2 WC et un cellier pratique pour le rangementGrande pièce de vie lumineuse pour profiter d’un espace convivial et confortableMaison conforme aux normes RE2020, garantissant confort thermique et économies d’énergie🌿 Prestations haut de gamme : matériaux de qualité, finitions soignées et conception moderne pour un confort optimal.🏠 Maisons France Confort, c’est la garantie d’une construction fiable, sur mesure, et pensée pour allier fonctionnalité, espace et confort, idéale pour une vie de famille sereine.Réalisez la maison qui vous ressemble, adaptée à vos besoins avec MAISONS FRANCE CONFORT sur ce terrain en accord avec un partenaire foncier.📞 Contactez Maisons France Confort Saint-Doulchard dès aujourd’hui pour plus d’informations et commencer votre projet de construction !
Saint-Doulchard
TERRAIN ET MAISONProjet de construction d’une maison individuelle moderne et fonctionnelle, idéale pour un couple, une jeune famille ou un investissement patrimonial.Cette maison se compose de :Une belle pièce de vie lumineuse, avec salon, séjour et cuisine ouverte, offrant un espace convivial et agréable au quotidienDeux chambres confortables, bien agencéesUne salle de bain fonctionnelleUn WC séparé, pour plus de confortUn cellier, parfait pour le rangement et les équipements (machine à laver, garde-manger…)Un garage attenant, pratique et sécurisé⭐ Atout majeur : combles aménageablesLes combles offrent un vrai potentiel d’agrandissement : possibilité de créer une ou deux chambres supplémentaires, un bureau ou une salle de jeux dans le futur, selon vos besoins.Cette construction allie confort, modernité et évolutivité, avec une excellente optimisation des espaces et la possibilité d’adapter la maison à l’évolution de votre vie.Possibilité de réaliser votre projet personnalisé avec Maisons France Confort sur ce terrain en accord avec notre partenaire foncier.📞 Contactez Maisons France Confort Saint-Doulchard dès aujourd’hui pour étudier votre projet et faire de cette maison votre futur chez-vous.
Saint-Doulchard
TERRAIN ET MAISONMAISON NEUVE 3 CHAMBRES AVEC GARAGE – MAISONS FRANCE CONFORTMaisons France Confort vous propose ce projet de maison individuelle idéale pour une famille, alliant confort, modernité et fonctionnalité.La maison comprend :✅ 3 chambres✅ Une belle pièce de vie lumineuse avec espace salon/salle à manger✅ Une cuisine ouverte✅ Un cellier pratique✅ Une salle de bain moderne✅ Un WC séparé✅ Un garage attenantMaison conçue selon les dernières normes environnementales (RE2020), offrant d’excellentes performances énergétiques et un confort optimal toute l’année.Projet personnalisable selon vos envies et votre budget.Idéal pour un premier achat ou un projet de vie en famille.Possibilité de réaliser votre projet personnalisé avec Maisons France Confort sur ce terrain en accord avec notre partenaire foncier📞 Contactez Maisons France Confort Saint-Doulchard dès aujourd’hui pour étudier votre projet et faire de cette maison votre futur chez-vous
L’actualité immobilière à La Chapelle-Saint-Ursin
27/11/2023
02/11/2023
30/10/2023
20/10/2023
16/10/2023
16/10/2023