Images
Description
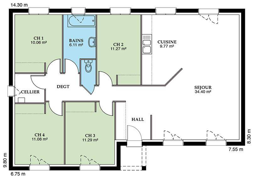
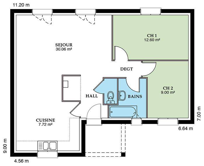
Nous vous proposons cette maison neuve, baptisée ""Mezière"", un modèle de construction qui allie élégance et fonctionnalité sur une surface habitable de 89 m². Conçue pour répondre aux attentes des plus exigeants, cette maison se distingue par son architecture moderne, disponible en versions à 2 ou 4 pans, complétée par un charmant porche qui accueille vos visiteurs avec style et distinction.
La ""Mezière"" se compose de 3 pièces judicieusement agencées pour maximiser l'espace et le confort. Elle offre 2 chambres spacieuses, promettant un havre de paix pour chaque membre de la famille. L'espace de vie, lumineux et accueillant, est conçu pour partager des moments précieux, que ce soit dans le cadre familial ou lors de réceptions amicales.
Ce modèle se distingue également par son engagement envers l'environnement et votre portefeuille. En effet, la ""Mezière"" est une maison basse consommation, rigoureusement conçue pour respecter les normes de la RE2020. Cette réglementation environnementale de 2020 garantit une efficacité énergétique supérieure, réduisant considérablement vos factures d'énergie tout en contribuant à la protection de notre planète.
Chaque détail de la ""Mezière"" a été pensé pour offrir un confort de vie inégalé, dans le respect des normes écologiques les plus strictes. Que vous optiez pour une toiture à 2 ou 4 pans, vous bénéficierez d'une maison qui allie esthétique contemporaine et performances énergétiques de pointe.
En choisissant la ""Mezière"", vous faites le choix d'une maison neuve, personnalisable selon vos goûts et vos besoins, et d'un habitat durable qui vous accompagnera pendant de nombreuses années. Ne manquez pas l'opportunité de construire la maison de vos rêves, une maison qui respecte à la fois votre confort et l'environnement.
Logement susceptibles de vous intéresser
Nous vous proposons de découvrir aussi cette sélection de logements situés à moins de 10km de Massay et qui seraient susceptibles de vous intéresser.
Méreau
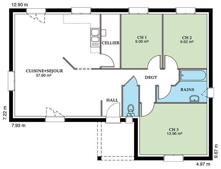
TERRAIN ET MAISONDécouvrez la Prunière, une maison neuve de 87,5 m² avec garage intégré, qui marie style moderne et confort au quotidien. Disponible en toit 2 ou 4 pans, elle séduit par son architecture élégante et son agencement fonctionnel, idéal pour un couple ou une jeune famille.L’intérieur se compose de 3 chambres lumineuses, d’un espace de vie ouvert et convivial, et d’un garage accolé offrant un rangement pratique et un accès direct à la maison. Chaque espace a été pensé pour offrir volume, clarté et bien-être.Conforme à la réglementation RE2020, la Prunière bénéficie d’une isolation performante, d’une consommation énergétique réduite et d’un confort thermique optimal tout au long de l’année.La Prunière 87,5 m² + garage, c’est le choix d’une maison moderne, économe et durable, pensée pour un mode de vie simple, serein et tourné vers l’avenir.
Massay
TERRAINÀ la recherche d’un espace pour concrétiser vos rêves de construction ? Ce terrain de 1400 m², situé dans la charmante commune de Massay, est l’opportunité parfaite pour un projet de maison unique. Profitez d’un environnement calme et serein, avec une superbe vue qui saura séduire les amateurs de tranquillité. Ce bien, non viabilisé, représente une chance rare pour bâtir la maison de vos rêves dans un cadre naturel préservé. Idéalement situé dans le département du Cher, en région Centre-Val de Loire, Massay vous offre un cadre de vie agréable avec des écoles à proximité, parfait pour les familles. La commune allie charme rural et proximité aux commodités, offrant ainsi un cadre de vie équilibré. L’environnement paisible sans vis-à-vis promet de belles perspectives pour votre futur projet, tout en étant à proximité de diverses attractions locales qui enrichissent le quotidien. Ne laissez pas cette occasion vous échapper. Ce terrain possède un potentiel inégalé pour une réalisation architecturale de qualité, en faisant un choix judicieux pour tous ceux en quête d’un lieu unique. À noter qu’en tant que constructeur, nous ne sommes pas mandatés pour réaliser la vente de ce terrain.
Méreau
TERRAINNous vous présentons ce terrain de 950 m² à la vente, situé dans la charmante ville de Méréau, dans le département du Cher en Centre-Val de Loire. Ce terrain plat et ensoleillé est une opportunité rare, particulièrement pour ceux qui souhaitent réaliser leur projet de construction de maison. Avec un prix exceptionnel et un Plan Local d’Urbanisme non contraignant, ce dernier lot à saisir saura séduire les acheteurs à la recherche d’un emplacement stratégique pour leur future habitation. Méréau est une commune paisible offrant un cadre de vie agréable. Les résidents bénéficient de la tranquillité d’une ville calme tout en étant à proximité des commodités essentielles. La région environnante se distingue par ses paysages naturels, ses parcs et ses attractions locales qui invitent à la découverte et aux loisirs en plein air. L’accès aux services de proximité, aux transports et aux écoles distingue également cette localisation, faisant de ce terrain un choix idéal pour les familles. Si vous cherchez à investir dans un bien immobilier qui conjugue à la fois sérénité et pratique, ne laissez pas passer cette belle opportunité. Ce terrain représente un potentiel considérable pour concrétiser votre projet immobilier. N’attendez plus pour envisager l’avenir dans cet environnement propice à la vie familiale et à la création de votre maison idéale. À noter qu’en tant que constructeur, nous ne sommes pas mandatés pour réaliser la vente de ce terrain.
Méreau
TERRAINNous vous présentons un terrain exceptionnel de 770 m², situé dans le charmant lotissement de Méréau, dans le département du Cher, au cœur de la région Centre-Val de Loire. Ce terrain, offrant une vue dégagée et un ensoleillement optimal, constitue une toile blanche idéale pour votre projet de construction de maison. Avec un PLU non contraignant, vous avez la liberté d’imaginer l’habitat qui vous ressemble dans un cadre champêtre et paisible, où le calme et la nature se rencontrent. Ne manquez pas cette opportunité rare d’acquérir le dernier lot disponible dans ce secteur prisé ! Le lotissement de Méréau est idéalement situé, offrant un accès facile aux axes routiers principaux tout en bénéficiant de la tranquillité d’un cadre rural. À proximité, vous trouverez de nombreuses commodités et services, notamment des arrêts de bus pour un transport facile vers les villes voisines. Cette localité se distingue par son ambiance conviviale et ses attraits locaux qui sauront séduire les amoureux de la nature, tout en étant à quelques encablures de l’animation des villes environnantes. Les pépites naturelles de la région Centre-Val de Loire et ses paysages préservés enrichissent cette adresse en tant qu’endroit de vie de choix. Ce terrain représente une excellente opportunité d’investissement pour votre projet de vie. N’attendez plus, envisagez cette chance unique d’acquérir un bien immobilier qui a tant à offrir ! À noter qu’en tant que constructeur, nous ne sommes pas mandatés pour réaliser la vente de ce terrain.
Méreau
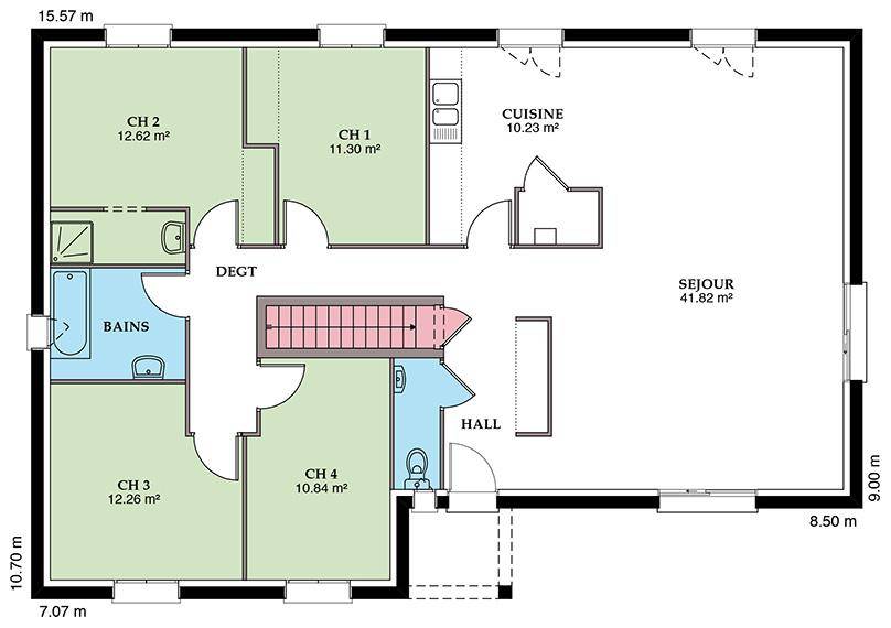
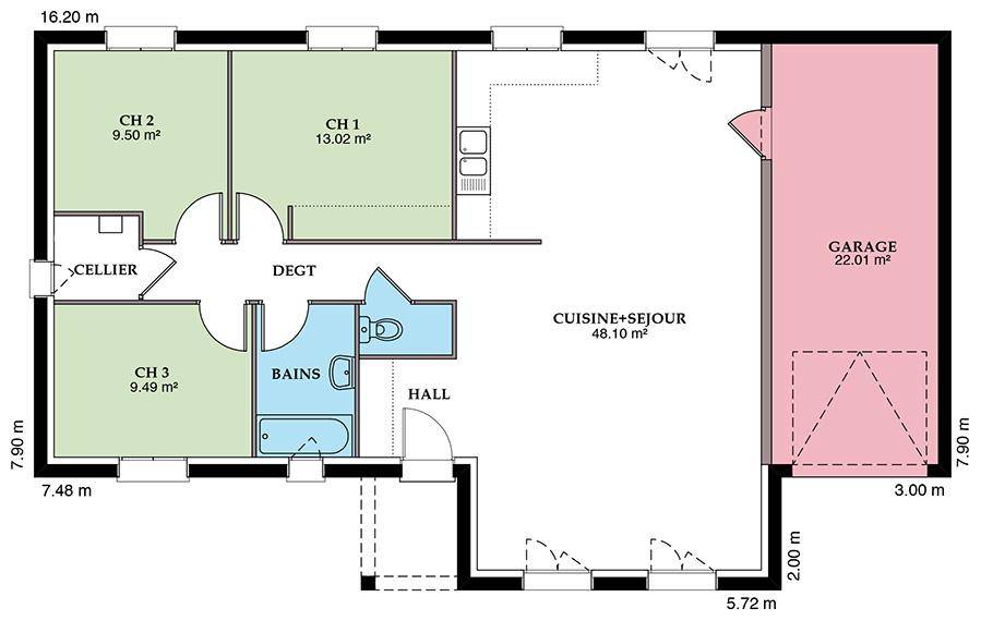
TERRAIN ET MAISONNous vous proposons cette maison neuve, baptisée « »Aubetière » », un modèle de construction qui allie élégance et performance énergétique, conforme aux exigences de la norme RE2020. Avec une surface habitable de 90 m², cette maison est conçue pour offrir un confort optimal tout en minimisant son impact sur l’environnement. L’Aubetière se décline en deux versions architecturales : vous avez le choix entre un toit traditionnel à 2 pans ou une version plus moderne à 4 pans, chacune pensée pour s’intégrer harmonieusement à son environnement. Cette maison basse consommation est un véritable engagement vers un avenir plus durable, garantissant une réduction significative de vos factures énergétiques grâce à une isolation optimale, une ventilation performante et l’utilisation de matériaux à faible impact environnemental. Ce modèle se compose de 4 pièces lumineuses et spacieuses, dont 4 chambres confortables, offrant ainsi un cadre de vie idéal pour une famille. Chaque espace a été pensé pour maximiser le confort et la fonctionnalité, tout en respectant les critères de la norme RE2020. Vous bénéficierez d’un intérieur à la fois moderne et chaleureux, avec la possibilité de personnaliser les finitions selon vos goûts et vos besoins. L’Aubetière représente l’opportunité de vivre dans une maison neuve, économique et respectueuse de l’environnement, sans compromis sur le style ou le confort. C’est l’assurance d’un investissement pérenne, conçu pour répondre aux défis de demain. N’attendez plus pour faire de ce lieu votre nouveau foyer, un espace où bien-être rime avec éco-responsabilité.
Méreau
TERRAINNous vous proposons un terrain exceptionnel à vendre d’une superficie de 950 m², bien viabilisé, situé dans la charmante commune de Méréau, dans le département du Cher. Ce terrain, idéal pour un projet de construction de maison, se situe dans un quartier privilégié, recherché pour sa qualité de vie inégalée. Profitez d’un emplacement stratégique avec un PLU non contraignant, offrant ainsi une flexibilité certaine pour vos projets futurs. Que ce soit pour une maison familiale ou un investissement, ce terrain représente une opportunité à ne pas manquer. Méréau, nichée en plein cœur du Centre-Val de Loire, se distingue par son ambiance paisible et ses paysages pittoresques. La ville est à proximité des accès autoroute, facilitant ainsi les déplacements vers les grandes agglomérations environnantes. Les commodités locales, y compris les commerces, les écoles et les services de santé, sont facilement accessibles, contribuant à un cadre de vie agréable pour les familles. Ce secteur prisé combine la tranquillité de la campagne avec les avantages des infrastructures urbaines, rendant ce terrain des plus attractifs. N’attendez plus pour saisir cette occasion unique de réaliser votre projet immobilier dans un cadre idyllique. Contactez-nous dès aujourd’hui pour plus d’informations et pour envisager votre futur sur ce magnifique terrain. À noter qu’en tant que constructeur, nous ne sommes pas mandatés pour réaliser la vente de ce terrain.
Méreau
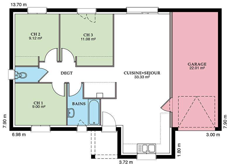
TERRAIN ET MAISONNous vous proposons cette maison neuve, baptisée Focus 79, un modèle de construction qui allie élégance, confort et respect de l’environnement. Avec une surface habitable de 79 m², cette maison est conçue pour répondre aux besoins d’une vie familiale harmonieuse et dynamique. Elle se compose de 4 pièces lumineuses, dont 3 chambres accueillantes, offrant ainsi un espace de vie idéal pour une famille. La Focus 79 se distingue par sa charpente de type fermette, un choix architectural qui garantit à la fois solidité et esthétique, tout en optimisant l’espace sous toit. Cette maison intègre également un garage, solution pratique pour sécuriser votre véhicule ou pour disposer d’un espace de rangement supplémentaire. Construite dans le respect des normes les plus exigeantes, la Focus 79 est une maison basse consommation, parfaitement conforme à la réglementation environnementale RE2020. Cette conformité assure une efficacité énergétique optimale, réduisant ainsi vos factures d’énergie tout en contribuant à la protection de l’environnement. Grâce à des matériaux de construction de haute qualité et à des technologies innovantes, cette maison vous offre un confort de vie inégalé, été comme hiver. La Focus 79 est plus qu’une maison, c’est un foyer pensé pour votre bien-être et celui de votre famille, dans lequel chaque détail a été soigneusement étudié pour répondre à vos attentes les plus élevées. Investir dans la Focus 79, c’est choisir un mode de vie durable, dans un cadre de vie exceptionnel. N’attendez plus pour réaliser votre rêve d’une maison neuve, basse consommation et respectueuse de l’environnement. La Focus 79 est la promesse d’un avenir serein, dans un espace de vie où chaque jour est une source de bonheur et de confort. Contactez-nous dès maintenant pour plus d’informations et laissez-vous séduire par le charme et les performances de la Focus 79.
Massay
TERRAIN ET MAISONNous vous proposons cette maison neuve, baptisée « »Mezière » », un modèle de construction qui allie élégance et fonctionnalité sur une surface habitable de 89 m². Conçue pour répondre aux attentes des plus exigeants, cette maison se distingue par son architecture moderne, disponible en versions à 2 ou 4 pans, complétée par un charmant porche qui accueille vos visiteurs avec style et distinction. La « »Mezière » » se compose de 3 pièces judicieusement agencées pour maximiser l’espace et le confort. Elle offre 2 chambres spacieuses, promettant un havre de paix pour chaque membre de la famille. L’espace de vie, lumineux et accueillant, est conçu pour partager des moments précieux, que ce soit dans le cadre familial ou lors de réceptions amicales. Ce modèle se distingue également par son engagement envers l’environnement et votre portefeuille. En effet, la « »Mezière » » est une maison basse consommation, rigoureusement conçue pour respecter les normes de la RE2020. Cette réglementation environnementale de 2020 garantit une efficacité énergétique supérieure, réduisant considérablement vos factures d’énergie tout en contribuant à la protection de notre planète. Chaque détail de la « »Mezière » » a été pensé pour offrir un confort de vie inégalé, dans le respect des normes écologiques les plus strictes. Que vous optiez pour une toiture à 2 ou 4 pans, vous bénéficierez d’une maison qui allie esthétique contemporaine et performances énergétiques de pointe. En choisissant la « »Mezière » », vous faites le choix d’une maison neuve, personnalisable selon vos goûts et vos besoins, et d’un habitat durable qui vous accompagnera pendant de nombreuses années. Ne manquez pas l’opportunité de construire la maison de vos rêves, une maison qui respecte à la fois votre confort et l’environnement.
Méreau
TERRAINNous vous présentons ce terrain non viabilisé, d’une surface généreuse de 1217 m², situé dans la charmante commune de Méréau nord, au cœur du département du Cher, en région Centre-Val de Loire. Ce terrain est une opportunité idéale pour réaliser un projet de construction de maison, offrant l’espace nécessaire pour concevoir un foyer sur mesure qui répond à vos aspirations. La tranquillité de l’environnement et le potentiel de développement en font un choix judicieux pour les acheteurs en quête d’un cadre de vie paisible et agréable. Méréau se distingue par sa proximité avec plusieurs commodités locales et ses attraits pittoresques, notamment sa nature environnante qui invite à la détente et aux activités en plein air. Les habitants peuvent profiter de la quiétude d’un village tout en étant à deux pas des services essentiels et des infrastructures nécessaires. Les passionnés de nature apprécieront la richesse des paysages et des chemins de randonnée aux alentours, créant ainsi un cadre de vie harmonieux et inspirant. Ce terrain bénéficie d’une localisation stratégique qui allie tranquillité et accessibilité, faisant de ce bien une offre particulièrement alléchante. Ne manquez pas l’occasion de découvrir le potentiel de ce terrain et envisagez cet investissement unique pour réaliser la maison de vos rêves. À noter qu’en tant que constructeur, nous ne sommes pas mandatés pour réaliser la vente de ce terrain.
L’actualité immobilière à Massay
27/11/2023
02/11/2023
30/10/2023
20/10/2023
16/10/2023
16/10/2023