Images
Description
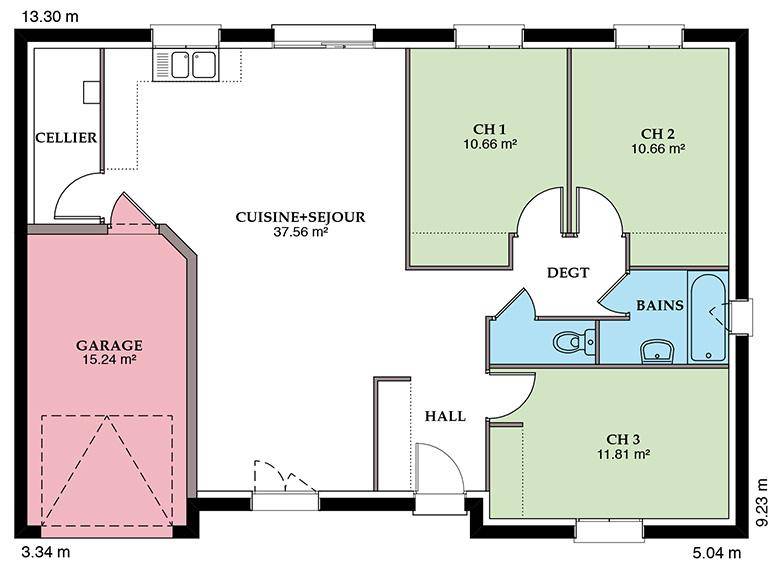
Découvrez la Prunière, une maison neuve de 87,5 m² avec garage intégré, qui marie style moderne et confort au quotidien. Disponible en toit 2 ou 4 pans, elle séduit par son architecture élégante et son agencement fonctionnel, idéal pour un couple ou une jeune famille.
L’intérieur se compose de 3 chambres lumineuses, d’un espace de vie ouvert et convivial, et d’un garage accolé offrant un rangement pratique et un accès direct à la maison. Chaque espace a été pensé pour offrir volume, clarté et bien-être.
Conforme à la réglementation RE2020, la Prunière bénéficie d’une isolation performante, d’une consommation énergétique réduite et d’un confort thermique optimal tout au long de l’année.
La Prunière 87,5 m² + garage, c’est le choix d’une maison moderne, économe et durable, pensée pour un mode de vie simple, serein et tourné vers l’avenir.
Logement susceptibles de vous intéresser
Nous vous proposons de découvrir aussi cette sélection de logements situés à moins de 10km de Méreau et qui seraient susceptibles de vous intéresser.
Méreau
TERRAIN ET MAISONDécouvrez la Prunière, une maison neuve de 87,5 m² avec garage intégré, qui marie style moderne et confort au quotidien. Disponible en toit 2 ou 4 pans, elle séduit par son architecture élégante et son agencement fonctionnel, idéal pour un couple ou une jeune famille.L’intérieur se compose de 3 chambres lumineuses, d’un espace de vie ouvert et convivial, et d’un garage accolé offrant un rangement pratique et un accès direct à la maison. Chaque espace a été pensé pour offrir volume, clarté et bien-être.Conforme à la réglementation RE2020, la Prunière bénéficie d’une isolation performante, d’une consommation énergétique réduite et d’un confort thermique optimal tout au long de l’année.La Prunière 87,5 m² + garage, c’est le choix d’une maison moderne, économe et durable, pensée pour un mode de vie simple, serein et tourné vers l’avenir.
Massay
TERRAINÀ la recherche d’un espace pour concrétiser vos rêves de construction ? Ce terrain de 1400 m², situé dans la charmante commune de Massay, est l’opportunité parfaite pour un projet de maison unique. Profitez d’un environnement calme et serein, avec une superbe vue qui saura séduire les amateurs de tranquillité. Ce bien, non viabilisé, représente une chance rare pour bâtir la maison de vos rêves dans un cadre naturel préservé. Idéalement situé dans le département du Cher, en région Centre-Val de Loire, Massay vous offre un cadre de vie agréable avec des écoles à proximité, parfait pour les familles. La commune allie charme rural et proximité aux commodités, offrant ainsi un cadre de vie équilibré. L’environnement paisible sans vis-à-vis promet de belles perspectives pour votre futur projet, tout en étant à proximité de diverses attractions locales qui enrichissent le quotidien. Ne laissez pas cette occasion vous échapper. Ce terrain possède un potentiel inégalé pour une réalisation architecturale de qualité, en faisant un choix judicieux pour tous ceux en quête d’un lieu unique. À noter qu’en tant que constructeur, nous ne sommes pas mandatés pour réaliser la vente de ce terrain.
Méreau
TERRAINNous vous présentons ce terrain de 950 m² à la vente, situé dans la charmante ville de Méréau, dans le département du Cher en Centre-Val de Loire. Ce terrain plat et ensoleillé est une opportunité rare, particulièrement pour ceux qui souhaitent réaliser leur projet de construction de maison. Avec un prix exceptionnel et un Plan Local d’Urbanisme non contraignant, ce dernier lot à saisir saura séduire les acheteurs à la recherche d’un emplacement stratégique pour leur future habitation. Méréau est une commune paisible offrant un cadre de vie agréable. Les résidents bénéficient de la tranquillité d’une ville calme tout en étant à proximité des commodités essentielles. La région environnante se distingue par ses paysages naturels, ses parcs et ses attractions locales qui invitent à la découverte et aux loisirs en plein air. L’accès aux services de proximité, aux transports et aux écoles distingue également cette localisation, faisant de ce terrain un choix idéal pour les familles. Si vous cherchez à investir dans un bien immobilier qui conjugue à la fois sérénité et pratique, ne laissez pas passer cette belle opportunité. Ce terrain représente un potentiel considérable pour concrétiser votre projet immobilier. N’attendez plus pour envisager l’avenir dans cet environnement propice à la vie familiale et à la création de votre maison idéale. À noter qu’en tant que constructeur, nous ne sommes pas mandatés pour réaliser la vente de ce terrain.
Méreau
TERRAINNous vous présentons un terrain exceptionnel de 770 m², situé dans le charmant lotissement de Méréau, dans le département du Cher, au cœur de la région Centre-Val de Loire. Ce terrain, offrant une vue dégagée et un ensoleillement optimal, constitue une toile blanche idéale pour votre projet de construction de maison. Avec un PLU non contraignant, vous avez la liberté d’imaginer l’habitat qui vous ressemble dans un cadre champêtre et paisible, où le calme et la nature se rencontrent. Ne manquez pas cette opportunité rare d’acquérir le dernier lot disponible dans ce secteur prisé ! Le lotissement de Méréau est idéalement situé, offrant un accès facile aux axes routiers principaux tout en bénéficiant de la tranquillité d’un cadre rural. À proximité, vous trouverez de nombreuses commodités et services, notamment des arrêts de bus pour un transport facile vers les villes voisines. Cette localité se distingue par son ambiance conviviale et ses attraits locaux qui sauront séduire les amoureux de la nature, tout en étant à quelques encablures de l’animation des villes environnantes. Les pépites naturelles de la région Centre-Val de Loire et ses paysages préservés enrichissent cette adresse en tant qu’endroit de vie de choix. Ce terrain représente une excellente opportunité d’investissement pour votre projet de vie. N’attendez plus, envisagez cette chance unique d’acquérir un bien immobilier qui a tant à offrir ! À noter qu’en tant que constructeur, nous ne sommes pas mandatés pour réaliser la vente de ce terrain.
Méreau
TERRAIN ET MAISONNous vous proposons cette maison neuve, baptisée « »Aubetière » », un modèle de construction qui allie élégance et performance énergétique, conforme aux exigences de la norme RE2020. Avec une surface habitable de 90 m², cette maison est conçue pour offrir un confort optimal tout en minimisant son impact sur l’environnement. L’Aubetière se décline en deux versions architecturales : vous avez le choix entre un toit traditionnel à 2 pans ou une version plus moderne à 4 pans, chacune pensée pour s’intégrer harmonieusement à son environnement. Cette maison basse consommation est un véritable engagement vers un avenir plus durable, garantissant une réduction significative de vos factures énergétiques grâce à une isolation optimale, une ventilation performante et l’utilisation de matériaux à faible impact environnemental. Ce modèle se compose de 4 pièces lumineuses et spacieuses, dont 4 chambres confortables, offrant ainsi un cadre de vie idéal pour une famille. Chaque espace a été pensé pour maximiser le confort et la fonctionnalité, tout en respectant les critères de la norme RE2020. Vous bénéficierez d’un intérieur à la fois moderne et chaleureux, avec la possibilité de personnaliser les finitions selon vos goûts et vos besoins. L’Aubetière représente l’opportunité de vivre dans une maison neuve, économique et respectueuse de l’environnement, sans compromis sur le style ou le confort. C’est l’assurance d’un investissement pérenne, conçu pour répondre aux défis de demain. N’attendez plus pour faire de ce lieu votre nouveau foyer, un espace où bien-être rime avec éco-responsabilité.
Méreau
TERRAINNous vous proposons un terrain exceptionnel à vendre d’une superficie de 950 m², bien viabilisé, situé dans la charmante commune de Méréau, dans le département du Cher. Ce terrain, idéal pour un projet de construction de maison, se situe dans un quartier privilégié, recherché pour sa qualité de vie inégalée. Profitez d’un emplacement stratégique avec un PLU non contraignant, offrant ainsi une flexibilité certaine pour vos projets futurs. Que ce soit pour une maison familiale ou un investissement, ce terrain représente une opportunité à ne pas manquer. Méréau, nichée en plein cœur du Centre-Val de Loire, se distingue par son ambiance paisible et ses paysages pittoresques. La ville est à proximité des accès autoroute, facilitant ainsi les déplacements vers les grandes agglomérations environnantes. Les commodités locales, y compris les commerces, les écoles et les services de santé, sont facilement accessibles, contribuant à un cadre de vie agréable pour les familles. Ce secteur prisé combine la tranquillité de la campagne avec les avantages des infrastructures urbaines, rendant ce terrain des plus attractifs. N’attendez plus pour saisir cette occasion unique de réaliser votre projet immobilier dans un cadre idyllique. Contactez-nous dès aujourd’hui pour plus d’informations et pour envisager votre futur sur ce magnifique terrain. À noter qu’en tant que constructeur, nous ne sommes pas mandatés pour réaliser la vente de ce terrain.
Méreau
TERRAIN ET MAISONNous vous proposons cette maison neuve, baptisée Focus 79, un modèle de construction qui allie élégance, confort et respect de l’environnement. Avec une surface habitable de 79 m², cette maison est conçue pour répondre aux besoins d’une vie familiale harmonieuse et dynamique. Elle se compose de 4 pièces lumineuses, dont 3 chambres accueillantes, offrant ainsi un espace de vie idéal pour une famille. La Focus 79 se distingue par sa charpente de type fermette, un choix architectural qui garantit à la fois solidité et esthétique, tout en optimisant l’espace sous toit. Cette maison intègre également un garage, solution pratique pour sécuriser votre véhicule ou pour disposer d’un espace de rangement supplémentaire. Construite dans le respect des normes les plus exigeantes, la Focus 79 est une maison basse consommation, parfaitement conforme à la réglementation environnementale RE2020. Cette conformité assure une efficacité énergétique optimale, réduisant ainsi vos factures d’énergie tout en contribuant à la protection de l’environnement. Grâce à des matériaux de construction de haute qualité et à des technologies innovantes, cette maison vous offre un confort de vie inégalé, été comme hiver. La Focus 79 est plus qu’une maison, c’est un foyer pensé pour votre bien-être et celui de votre famille, dans lequel chaque détail a été soigneusement étudié pour répondre à vos attentes les plus élevées. Investir dans la Focus 79, c’est choisir un mode de vie durable, dans un cadre de vie exceptionnel. N’attendez plus pour réaliser votre rêve d’une maison neuve, basse consommation et respectueuse de l’environnement. La Focus 79 est la promesse d’un avenir serein, dans un espace de vie où chaque jour est une source de bonheur et de confort. Contactez-nous dès maintenant pour plus d’informations et laissez-vous séduire par le charme et les performances de la Focus 79.
Foëcy
TERRAINDécouvrez ce charmant terrain à vendre d’une superficie de 850 m², idéalement situé à Foëcy, dans le département du Cher, au cœur de la belle région Centre-Val de Loire. Ce terrain viabilisé offre une multitude de possibilités pour un projet de construction de maison. Vous serez séduit par son cadre champêtre, sa luminosité, ainsi que son environnement arboré, garantissant un confort de vie inégalé. De plus, le PLU non contraignant ajoute une flexibilité précieuse à votre projet. C’est une occasion rare et en exclusivité à ne pas manquer! Foëcy se distingue par son ambiance paisible et conviviale. À proximité directe, vous trouverez tous les commerces nécessaires au quotidien, ainsi que des services variés pour répondre à vos besoins. La localité bénéficie également d’une richesse naturelle et d’un cadre enchanteur qui incite à la détente et aux activités de plein air. Avec son accessibilité et son dynamisme, Foëcy constitue un lieu de vie idéal pour les familles et les personnes cherchant à allier tranquillité et commodités urbaines. Ne laissez pas passer cette opportunité unique d’acquérir un terrain au potentiel exceptionnel. Contactez-nous dès aujourd’hui pour en savoir plus! À noter qu’en tant que constructeur, nous ne sommes pas mandatés pour réaliser la vente de ce terrain.
Vierzon
TERRAIN ET MAISONNous vous proposons cette maison neuve, baptisée « »Mezière » », un modèle de construction qui allie élégance et performance énergétique. Avec une surface habitable de 109 m², cette demeure est conçue pour offrir confort et bien-être à ses occupants. Elle se compose de 4 chambres spacieuses et lumineuses, réparties dans un agencement de 4 pièces pensé pour optimiser l’espace et la fonctionnalité. La maison Mezière se distingue par son architecture moderne, disponible en versions à 2 ou 4 pans, selon vos préférences. Son porche accueillant invite à entrer et découvrir un intérieur soigneusement agencé. Cette maison est idéale pour ceux qui cherchent à combiner style et confort de vie. L’un des atouts majeurs de la Mezière réside dans son engagement envers l’environnement et l’économie d’énergie. Cette maison est conçue pour être basse consommation, conformément aux exigences de la réglementation environnementale RE2020. Cela signifie que vous bénéficierez d’une isolation optimale, d’une excellente performance thermique et d’une réduction significative de vos factures d’énergie, tout en contribuant à la protection de l’environnement. La maison Mezière est donc une invitation à vivre dans un espace moderne, confortable et respectueux de l’environnement. Elle représente l’opportunité idéale pour les familles cherchant à s’installer dans une maison neuve, pensée pour répondre aux défis du 21e siècle. Ne manquez pas cette chance de construire la maison de vos rêves, un lieu où chaque jour sera empreint de bien-être et d’harmonie.
L’actualité immobilière à Méreau
27/11/2023
02/11/2023
30/10/2023
20/10/2023
16/10/2023
16/10/2023