Images
Description
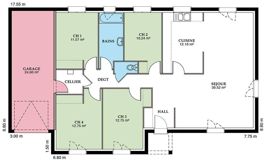
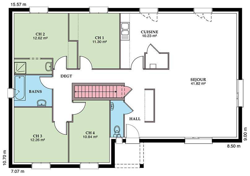
Nous vous proposons cette maison neuve, baptisée ""Mezière"", un modèle de construction qui allie élégance et performance énergétique. Avec une surface habitable de 109 m², cette demeure est conçue pour offrir confort et bien-être à ses occupants. Elle se compose de 4 chambres spacieuses et lumineuses, réparties dans un agencement de 4 pièces pensé pour optimiser l'espace et la fonctionnalité.
La maison Mezière se distingue par son architecture moderne, disponible en versions à 2 ou 4 pans, selon vos préférences. Son porche accueillant invite à entrer et découvrir un intérieur soigneusement agencé. Cette maison est idéale pour ceux qui cherchent à combiner style et confort de vie.
L'un des atouts majeurs de la Mezière réside dans son engagement envers l'environnement et l'économie d'énergie. Cette maison est conçue pour être basse consommation, conformément aux exigences de la réglementation environnementale RE2020. Cela signifie que vous bénéficierez d'une isolation optimale, d'une excellente performance thermique et d'une réduction significative de vos factures d'énergie, tout en contribuant à la protection de l'environnement.
La maison Mezière est donc une invitation à vivre dans un espace moderne, confortable et respectueux de l'environnement. Elle représente l'opportunité idéale pour les familles cherchant à s'installer dans une maison neuve, pensée pour répondre aux défis du 21e siècle. Ne manquez pas cette chance de construire la maison de vos rêves, un lieu où chaque jour sera empreint de bien-être et d'harmonie.
Logement susceptibles de vous intéresser
Nous vous proposons de découvrir aussi cette sélection de logements situés à moins de 10km de Vierzon et qui seraient susceptibles de vous intéresser.
Saint-Laurent
TERRAIN ET MAISONMaison de plain-pied conçue pour offrir un espace de vie confortable et fonctionnel, idéal pour une famille. L’agencement privilégie la convivialité avec un espace jour spacieux et lumineux, parfait pour les moments de partage. Les trois chambres, de tailles similaires, offrent à chacun son espace d’intimité, tandis que les espaces fonctionnels, tels que le cellier, le garage et la salle de bains, facilitent le quotidien.L’espace jour, véritable coeur de la maison, est baigné de lumière naturelle grâce à de larges ouvertures.Il offre un espace de vie ouvert et accueillant, idéal pour se détendre, recevoir des amis ou partager des repas en famille. Les chambres, quant à elles, sont conçues comme des havres de paix, offrant à chacun son espace personnel.Les espaces fonctionnels, tels que le cellier, le garage et la salle de bains, sont pensés pour faciliter le quotidien. Le dégagement central assure une circulation fluide entre les pièces.L’ensemble de la maison est conçu pour offrir un espace de vie agréable et pratique, où chaque membre de la famille se sentira chez soi.Réalisez la maison qui vous ressemble, adaptée à vos besoins avec MAISONS FRANCE CONFORT sur ce terrain en accord avec un partenaire foncier.📞 Contactez Maisons France Confort dès aujourd’hui pour plus d’informations et commencer votre projet de construction !
Saint-Laurent
TERRAIN ET MAISONProjet de construction – Maison familiale Maisons France Confort Saint-Doulchard vous propose un projet de construction d’une maison moderne et fonctionnelle, idéale pour une famille en quête de confort et de sérénité.Cette maison disposera de 4 chambres, dont une suite parentale comprenant un dressing et une salle d’eau privative, offrant un véritable espace intime et indépendant.Un grand cellier/buanderie viendra compléter les espaces pratiques de la maison pour un quotidien plus organisé.Les 3 autres chambres, dédiées aux enfants ou aux invités, sont situées dans un espace nuit séparé et bénéficient d’une belle salle de bain indépendante, garantissant confort et intimité pour toute la famille.La pièce de vie, spacieuse et lumineuse, a été pensée pour être chaleureuse et conviviale, parfaite pour recevoir et partager des moments en famille ou entre amis.Réalisez la maison qui vous ressemble, adaptée à vos besoins avec MAISONS FRANCE CONFORT sur ce terrain en accord avec un partenaire foncier.📞 Contactez Maisons France Confort Saint-Doulchard dès aujourd’hui pour plus d’informations et commencer votre projet de construction !
Saint-Laurent
TERRAIN ET MAISON🏡 Construction – Maison 2 chambres Garage évolutive avec combles aménageablesDécouvrez ce projet de construction moderne et fonctionnel, proposé par Maisons France Confort, constructeur reconnu du groupe HEXAOM, premier constructeur de maisons individuelles en France.✨ Descriptif du projet :Maison de plain-pied, aux normes PMR (personne à mobilité réduite), pensée pour le confort et l’accessibilité2 chambres lumineuses et bien agencéesCombles aménageables, offrant un fort potentiel d’évolution selon vos besoins futurs (chambres supplémentaires, bureau, salle de jeux, etc.)Belle pièce de vie conviviale, ouverte sur le jardinCuisine ouverte et cellier fonctionnelSalle d’eau moderne et WC 🌿 Maison conforme à la norme RE2020, garantissant confort, performance énergétique et économies d’énergie.💡 Idéale pour un investissement locatif ou un premier achat, cette maison combine accessibilité, évolutivité et rentabilité.🏠 Maisons France Confort vous accompagne pour réaliser un projet sur mesure, fiable et durable.Possibilité de réaliser votre projet personnalisé avec Maisons France Confort sur ce terrain en accord avec notre partenaire foncier📞 Contactez Maisons France Confort Saint-Doulchard dès aujourd’hui pour étudier votre projet et faire de cette maison votre futur chez-vous
Saint-Laurent
TERRAIN ET MAISON🏡 Construction Maison R+1 – 4 chambres avec garage – Prestations haut de gammeRéalisez votre projet de vie avec Maisons France Confort, constructeur du groupe HEXAOM, premier constructeur de maisons individuelles en France, reconnu pour la qualité et le sérieux de ses réalisations.✨ Caractéristiques de la maison :R+1 complet offrant de beaux volumes et une organisation fonctionnelle4 chambres spacieuses pour toute la famille2 WC et un cellier pratique pour le rangementGrande pièce de vie lumineuse pour profiter d’un espace convivial et confortableMaison conforme aux normes RE2020, garantissant confort thermique et économies d’énergie🌿 Prestations haut de gamme : matériaux de qualité, finitions soignées et conception moderne pour un confort optimal.🏠 Maisons France Confort, c’est la garantie d’une construction fiable, sur mesure, et pensée pour allier fonctionnalité, espace et confort, idéale pour une vie de famille sereine.Réalisez la maison qui vous ressemble, adaptée à vos besoins avec MAISONS FRANCE CONFORT sur ce terrain en accord avec un partenaire foncier.📞 Contactez Maisons France Confort Saint-Doulchard dès aujourd’hui pour plus d’informations et commencer votre projet de construction !
Saint-Laurent
TERRAINIdéal pour votre projet de maison avec Maisons France Confort Saint-Doulchard🏠 Un projet de construction personnaliséLe constructeur Maisons France Confort vous accompagne pour imaginer et bâtir la maison de vos rêves :Maisons traditionnelles, modernes ou contemporaines.Plans personnalisables selon vos besoins et votre budget.Garanties et accompagnement complet (CCMI, suivi de chantier, performance énergétique).Pour plus d’informations sur les possibilités de construction avec Maisons France Confort, contactez Jessica DA COSTANous vous accompagnerons à chaque étape de votre projet pour une réalisation en toute sérénité sur ce terrain proposé en accord avec notre partenaire foncier.
Méreau
TERRAIN ET MAISONDécouvrez la Prunière, une maison neuve de 87,5 m² avec garage intégré, qui marie style moderne et confort au quotidien. Disponible en toit 2 ou 4 pans, elle séduit par son architecture élégante et son agencement fonctionnel, idéal pour un couple ou une jeune famille.L’intérieur se compose de 3 chambres lumineuses, d’un espace de vie ouvert et convivial, et d’un garage accolé offrant un rangement pratique et un accès direct à la maison. Chaque espace a été pensé pour offrir volume, clarté et bien-être.Conforme à la réglementation RE2020, la Prunière bénéficie d’une isolation performante, d’une consommation énergétique réduite et d’un confort thermique optimal tout au long de l’année.La Prunière 87,5 m² + garage, c’est le choix d’une maison moderne, économe et durable, pensée pour un mode de vie simple, serein et tourné vers l’avenir.
Méreau
TERRAINNous vous présentons ce terrain de 950 m² à la vente, situé dans la charmante ville de Méréau, dans le département du Cher en Centre-Val de Loire. Ce terrain plat et ensoleillé est une opportunité rare, particulièrement pour ceux qui souhaitent réaliser leur projet de construction de maison. Avec un prix exceptionnel et un Plan Local d’Urbanisme non contraignant, ce dernier lot à saisir saura séduire les acheteurs à la recherche d’un emplacement stratégique pour leur future habitation. Méréau est une commune paisible offrant un cadre de vie agréable. Les résidents bénéficient de la tranquillité d’une ville calme tout en étant à proximité des commodités essentielles. La région environnante se distingue par ses paysages naturels, ses parcs et ses attractions locales qui invitent à la découverte et aux loisirs en plein air. L’accès aux services de proximité, aux transports et aux écoles distingue également cette localisation, faisant de ce terrain un choix idéal pour les familles. Si vous cherchez à investir dans un bien immobilier qui conjugue à la fois sérénité et pratique, ne laissez pas passer cette belle opportunité. Ce terrain représente un potentiel considérable pour concrétiser votre projet immobilier. N’attendez plus pour envisager l’avenir dans cet environnement propice à la vie familiale et à la création de votre maison idéale. À noter qu’en tant que constructeur, nous ne sommes pas mandatés pour réaliser la vente de ce terrain.
Méreau
TERRAINNous vous présentons un terrain exceptionnel de 770 m², situé dans le charmant lotissement de Méréau, dans le département du Cher, au cœur de la région Centre-Val de Loire. Ce terrain, offrant une vue dégagée et un ensoleillement optimal, constitue une toile blanche idéale pour votre projet de construction de maison. Avec un PLU non contraignant, vous avez la liberté d’imaginer l’habitat qui vous ressemble dans un cadre champêtre et paisible, où le calme et la nature se rencontrent. Ne manquez pas cette opportunité rare d’acquérir le dernier lot disponible dans ce secteur prisé ! Le lotissement de Méréau est idéalement situé, offrant un accès facile aux axes routiers principaux tout en bénéficiant de la tranquillité d’un cadre rural. À proximité, vous trouverez de nombreuses commodités et services, notamment des arrêts de bus pour un transport facile vers les villes voisines. Cette localité se distingue par son ambiance conviviale et ses attraits locaux qui sauront séduire les amoureux de la nature, tout en étant à quelques encablures de l’animation des villes environnantes. Les pépites naturelles de la région Centre-Val de Loire et ses paysages préservés enrichissent cette adresse en tant qu’endroit de vie de choix. Ce terrain représente une excellente opportunité d’investissement pour votre projet de vie. N’attendez plus, envisagez cette chance unique d’acquérir un bien immobilier qui a tant à offrir ! À noter qu’en tant que constructeur, nous ne sommes pas mandatés pour réaliser la vente de ce terrain.
Méreau
TERRAIN ET MAISONNous vous proposons cette maison neuve, baptisée « »Aubetière » », un modèle de construction qui allie élégance et performance énergétique, conforme aux exigences de la norme RE2020. Avec une surface habitable de 90 m², cette maison est conçue pour offrir un confort optimal tout en minimisant son impact sur l’environnement. L’Aubetière se décline en deux versions architecturales : vous avez le choix entre un toit traditionnel à 2 pans ou une version plus moderne à 4 pans, chacune pensée pour s’intégrer harmonieusement à son environnement. Cette maison basse consommation est un véritable engagement vers un avenir plus durable, garantissant une réduction significative de vos factures énergétiques grâce à une isolation optimale, une ventilation performante et l’utilisation de matériaux à faible impact environnemental. Ce modèle se compose de 4 pièces lumineuses et spacieuses, dont 4 chambres confortables, offrant ainsi un cadre de vie idéal pour une famille. Chaque espace a été pensé pour maximiser le confort et la fonctionnalité, tout en respectant les critères de la norme RE2020. Vous bénéficierez d’un intérieur à la fois moderne et chaleureux, avec la possibilité de personnaliser les finitions selon vos goûts et vos besoins. L’Aubetière représente l’opportunité de vivre dans une maison neuve, économique et respectueuse de l’environnement, sans compromis sur le style ou le confort. C’est l’assurance d’un investissement pérenne, conçu pour répondre aux défis de demain. N’attendez plus pour faire de ce lieu votre nouveau foyer, un espace où bien-être rime avec éco-responsabilité.
L’actualité immobilière à Vierzon
27/11/2023
02/11/2023
30/10/2023
20/10/2023
16/10/2023
16/10/2023