Terrain à vendre

178879 €
89 m²
Mehun-sur-Yèvre
Cher (18)
TERRAIN ET MAISON
Réf externe: 4957712
Annonce publiée le 15 décembre 2025

Images

Description

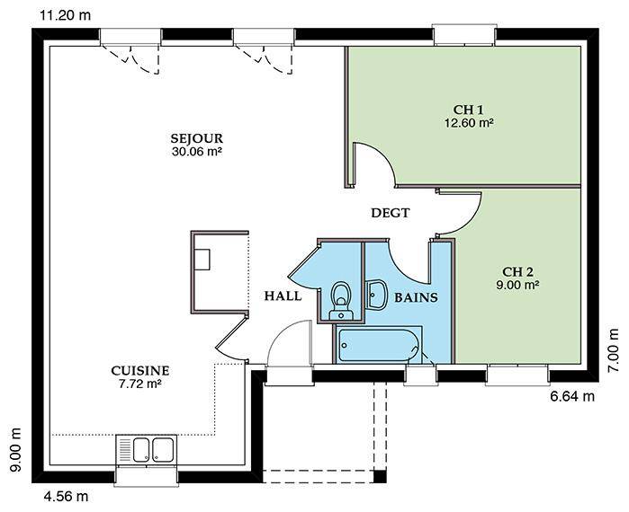
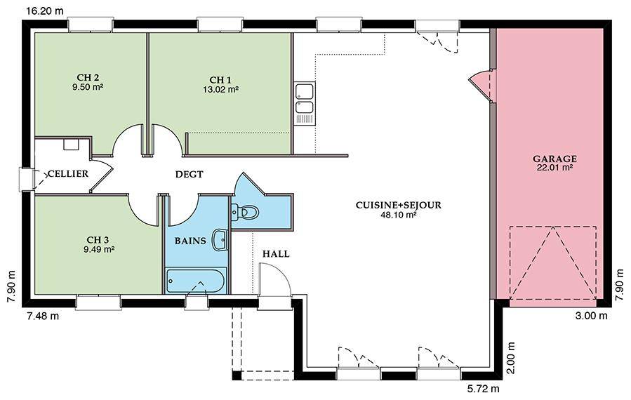
Nous vous proposons cette maison neuve, baptisée ""Mezière"", un modèle de construction qui allie élégance et fonctionnalité sur une surface habitable de 89 m². Conçue pour répondre aux attentes des plus exigeants, cette maison se distingue par son architecture moderne, disponible en versions à 2 ou 4 pans, complétée par un charmant porche qui accueille vos visiteurs avec style et distinction.

La ""Mezière"" se compose de 3 pièces judicieusement agencées pour maximiser l'espace et le confort. Elle offre 2 chambres spacieuses, promettant un havre de paix pour chaque membre de la famille. L'espace de vie, lumineux et accueillant, est conçu pour partager des moments précieux, que ce soit dans le cadre familial ou lors de réceptions amicales.

Ce modèle se distingue également par son engagement envers l'environnement et votre portefeuille. En effet, la ""Mezière"" est une maison basse consommation, rigoureusement conçue pour respecter les normes de la RE2020. Cette réglementation environnementale de 2020 garantit une efficacité énergétique supérieure, réduisant considérablement vos factures d'énergie tout en contribuant à la protection de notre planète.

Chaque détail de la ""Mezière"" a été pensé pour offrir un confort de vie inégalé, dans le respect des normes écologiques les plus strictes. Que vous optiez pour une toiture à 2 ou 4 pans, vous bénéficierez d'une maison qui allie esthétique contemporaine et performances énergétiques de pointe.

En choisissant la ""Mezière"", vous faites le choix d'une maison neuve, personnalisable selon vos goûts et vos besoins, et d'un habitat durable qui vous accompagnera pendant de nombreuses années. Ne manquez pas l'opportunité de construire la maison de vos rêves, une maison qui respecte à la fois votre confort et l'environnement.

CONTACTER

Logement susceptibles de vous intéresser

L’actualité immobilière à Mehun-sur-Yèvre

Image du post Pourquoi acheter un terrain en lotissement ? 27/11/2023
Lire l’article
Pourquoi acheter un terrain en lotissement ?
Image du post Vendre son terrain à un promoteur : comment procéder ? 02/11/2023
Lire l’article
Vendre son terrain à un promoteur : comment procéder ?
Image du post Diviser le terrain de sa maison pour le vendre : pourquoi et comment ? 30/10/2023
Lire l’article
Diviser le terrain de sa maison pour le vendre : pourquoi et comment ?
Image du post Acheter un terrain viabilisé : quels avantages ? 20/10/2023
Lire l’article
Acheter un terrain viabilisé : quels avantages ?
Image du post Les 7 étapes incontournables pour bien vendre votre terrain constructible 16/10/2023
Lire l’article
Les 7 étapes incontournables pour bien vendre votre terrain constructible
Image du post 5 points clés à vérifier pour l’achat d’un terrain constructible  16/10/2023
Lire l’article
5 points clés à vérifier pour l’achat d’un terrain constructible