Images
Description
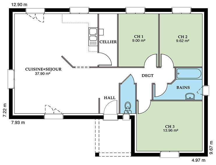
Nous vous proposons cette maison neuve, baptisée ""Mezière"", un modèle de construction qui allie élégance et fonctionnalité sur une surface habitable de 89 m². Conçue pour répondre aux attentes des plus exigeants, cette maison se distingue par son architecture moderne, disponible en versions à 2 ou 4 pans, complétée par un charmant porche qui accueille vos visiteurs avec style et distinction.
La ""Mezière"" se compose de 3 pièces judicieusement agencées pour maximiser l'espace et le confort. Elle offre 2 chambres spacieuses, promettant un havre de paix pour chaque membre de la famille. L'espace de vie, lumineux et accueillant, est conçu pour partager des moments précieux, que ce soit dans le cadre familial ou lors de réceptions amicales.
Ce modèle se distingue également par son engagement envers l'environnement et votre portefeuille. En effet, la ""Mezière"" est une maison basse consommation, rigoureusement conçue pour respecter les normes de la RE2020. Cette réglementation environnementale de 2020 garantit une efficacité énergétique supérieure, réduisant considérablement vos factures d'énergie tout en contribuant à la protection de notre planète.
Chaque détail de la ""Mezière"" a été pensé pour offrir un confort de vie inégalé, dans le respect des normes écologiques les plus strictes. Que vous optiez pour une toiture à 2 ou 4 pans, vous bénéficierez d'une maison qui allie esthétique contemporaine et performances énergétiques de pointe.
En choisissant la ""Mezière"", vous faites le choix d'une maison neuve, personnalisable selon vos goûts et vos besoins, et d'un habitat durable qui vous accompagnera pendant de nombreuses années. Ne manquez pas l'opportunité de construire la maison de vos rêves, une maison qui respecte à la fois votre confort et l'environnement.
Logement susceptibles de vous intéresser
Nous vous proposons de découvrir aussi cette sélection de logements situés à moins de 10km de Mehun-sur-Yèvre et qui seraient susceptibles de vous intéresser.
Mehun-sur-Yèvre
TERRAIN ET MAISONMaison neuve – 5 chambres – Suite parentale – GarageVolumes généreux & luminosité exceptionnelle !Découvrez cette superbe maison idéale pour une grande famille :✨ 5 chambres dont une suite parentale avec dressing et salle d’eau✨ 2 salles de bain✨ Grande pièce de vie ultra lumineuse✨ Cuisine ouverte avec cellier✨ Garage attenantDes beaux volumes, une luminosité remarquable et une conception pensée pour le confort quotidien.Un projet moderne, spacieux et résolument séduisant !Réalisez la maison qui vous ressemble, adaptée à vos besoins avec MAISONS FRANCE CONFORT sur ce terrain en accord avec un partenaire foncier.📞 Contactez Maisons France Confort Saint-Doulchard dès aujourd’hui pour plus d’informations et commencer votre projet de construction !
Saint-Éloy-de-Gy
TERRAIN ET MAISONMaison neuve – 5 chambres – Suite parentale – GarageVolumes généreux & luminosité exceptionnelle !Découvrez cette superbe maison idéale pour une grande famille :✨ 5 chambres dont une suite parentale avec dressing et salle d’eau✨ 2 salles de bain✨ Grande pièce de vie ultra lumineuse✨ Cuisine ouverte avec cellier✨ Garage attenantDes beaux volumes, une luminosité remarquable et une conception pensée pour le confort quotidien.Un projet moderne, spacieux et résolument séduisant !Réalisez la maison qui vous ressemble, adaptée à vos besoins avec MAISONS FRANCE CONFORT sur ce terrain en accord avec un partenaire foncier.📞 Contactez Maisons France Confort Saint-Doulchard dès aujourd’hui pour plus d’informations et commencer votre projet de construction !
Saint-Éloy-de-Gy
TERRAIN ET MAISON🏡 VOTRE MAISON NEUVE À ÉTAGE – 4 CHAMBRES + GARAGERéalisez votre projet de vie avec Maisons France Confort,1er constructeur de maisons en France et marque leader du Groupe HEXAOM, et devenez propriétaire d’une maison familiale moderne à seulement quelques minutes de Bourges.✨ Un modèle de maison pensé pour toute la famille :Cette maison à étage de 105 m² habitables séduit par son design contemporain, son agencement intelligent et son grand confort de vie.🔹 Au rez-de-chaussée :Une spacieuse pièce à vivre lumineuse avec cuisine ouverteUn cellier pratique attenant au garageUn WC indépendant🔹 À l’étage :4 belles chambres, idéales pour accueillir toute la familleUne grande salle de bains moderne et fonctionnelle + 1 WC🔹 Garage intégré et jardin pour profiter pleinement de vos extérieurs.💡 Pourquoi choisir Maisons France Confort ?Constructeur de référence depuis plus de 100 ans, Maisons France Confort (Groupe Hexaom) vous accompagne à chaque étape de votre projet pour une maison sur mesure, performante et certifiée RE2020.Possibilité de réaliser votre projet personnalisé avec Maisons France Confort sur ce terrain en accord avec notre partenaire foncier📞 Contactez Maisons France Confort Saint-Doulchard dès aujourd’hui pour étudier votre projet et faire de cette maison votre futur chez-vous
Saint-Éloy-de-Gy
TERRAIN ET MAISONMAISON NEUVE 3 CHAMBRES AVEC GARAGE – MAISONS FRANCE CONFORTMaisons France Confort vous propose ce projet de maison individuelle idéale pour une famille, alliant confort, modernité et fonctionnalité.La maison comprend :✅ 3 chambres✅ Une belle pièce de vie lumineuse avec espace salon/salle à manger✅ Une cuisine ouverte✅ Un cellier pratique✅ Une salle de bain moderne✅ Un WC séparé✅ Un garage attenantMaison conçue selon les dernières normes environnementales (RE2020), offrant d’excellentes performances énergétiques et un confort optimal toute l’année.Projet personnalisable selon vos envies et votre budget.Idéal pour un premier achat ou un projet de vie en famille.Possibilité de réaliser votre projet personnalisé avec Maisons France Confort sur ce terrain en accord avec notre partenaire foncier📞 Contactez Maisons France Confort Saint-Doulchard dès aujourd’hui pour étudier votre projet et faire de cette maison votre futur chez-vous
Saint-Éloy-de-Gy
TERRAINIdéal pour votre projet de maison avec Maisons France Confort🏠 Un projet de construction personnaliséLe constructeur Maisons France Confort vous accompagne pour imaginer et bâtir la maison de vos rêves :Maisons traditionnelles, modernes ou contemporaines.Plans personnalisables selon vos besoins et votre budget.Garanties et accompagnement complet (CCMI, suivi de chantier, performance énergétique).Pour plus d’informations sur les possibilités de construction avec Maisons France Confort, contactez Jessica DA COSTA au (Numéro supprimé)Nous vous accompagnerons à chaque étape de votre projet pour une réalisation en toute sérénité sur ce terrain proposé en accord avec notre partenaire foncier Floris JOLY
Saint-Éloy-de-Gy
TERRAIN ET MAISON🏡 Maison neuve 4 chambres – dont une suite parentale à Saint-Eloy-De-Gy- par MAISONS FRANCE CONFORTDécouvrez cette superbe maison familiale moderne et fonctionnelle, pensée pour votre confort au quotidien.✨ Caractéristiques principales :4 chambres dont une belle suite parentale avec salle d’eau privative et dressingGrande pièce de vie lumineuse grâce à ses deux baies vitrées, offrant un espace convivial et chaleureuxCuisine ouverte donnant sur le séjour, idéale pour partager des moments en familleCellier spacieux, parfait pour le rangementSalle de bain moderne avec baignoireWC séparéCette maison combine confort, luminosité et praticité pour répondre aux besoins de toute la famille.📍 Proposée par Maisons France Confort, constructeur reconnu pour la qualité et le savoir-faire de ses réalisations.📞 Envie de concrétiser votre projet ?Prenez rendez-vous avec Jessica DA COSTA au (Numéro supprimé) et imaginons ensemble votre future maison.
Saint-Éloy-de-Gy
TERRAIN ET MAISON🏡 Construction à Saint-Eloy-De-Gy – Maison 2 chambres évolutive avec combles aménageablesDécouvrez ce projet de construction moderne et fonctionnel, proposé par Maisons France Confort, constructeur reconnu du groupe HEXAOM, premier constructeur de maisons individuelles en France.✨ Descriptif du projet :Maison de plain-pied, aux normes PMR (personne à mobilité réduite), pensée pour le confort et l’accessibilité2 chambres lumineuses et bien agencéesCombles aménageables, offrant un fort potentiel d’évolution selon vos besoins futurs (chambres supplémentaires, bureau, salle de jeux, etc.)Belle pièce de vie conviviale, ouverte sur le jardinCuisine ouverte et cellier fonctionnelSalle d’eau moderne et WC 🌿 Maison conforme à la norme RE2020, garantissant confort, performance énergétique et économies d’énergie.💡 Idéale pour un investissement locatif ou un premier achat, cette maison combine accessibilité, évolutivité et rentabilité.Possibilité de réaliser votre projet personnalisé avec Maisons France Confort sur ce terrain en accord avec notre partenaire foncier📞 Contactez-nous dès aujourd’hui pour étudier votre projet et faire de cette maison votre futur chez-vous ! Jessica DA COSTA au (Numéro supprimé)
Saint-Éloy-de-Gy
TERRAIN ET MAISON🏡 Construction à Saint-Éloy-de-Gy – Maison 2 chambres évolutive avec combles aménageablesDécouvrez ce projet de construction moderne et fonctionnel, proposé par Maisons France Confort, constructeur reconnu du groupe HEXAOM, premier constructeur de maisons individuelles en France.✨ Descriptif du projet :Maison de plain-pied, aux normes PMR (personne à mobilité réduite), pensée pour le confort et l’accessibilité2 chambres lumineuses et bien agencéesCombles aménageables, offrant un fort potentiel d’évolution selon vos besoins futurs (chambres supplémentaires, bureau, salle de jeux, etc.)Belle pièce de vie conviviale, ouverte sur le jardinCuisine ouverte et cellier fonctionnelSalle d’eau moderne et WC 🌿 Maison conforme à la norme RE2020, garantissant confort, performance énergétique et économies d’énergie.💡 Idéale pour un investissement locatif ou un premier achat, cette maison combine accessibilité, évolutivité et rentabilité.📍 Localisation : Saint-Éloy-de-Gy, commune agréable à vivre, bien desservie et disposant de toutes les commodités (écoles, commerces, services), à quelques minutes de Bourges.🏠 Maisons France Confort vous accompagne pour réaliser un projet sur mesure, fiable et durable.📞 Contactez Jessica DA COSTA pour une étude personnalisée de votre projet.
Marmagne
TERRAINIdéalement situé dans un environnement calme et verdoyant, nous vous proposons ce terrain d’une superficie de 760 m².La parcelle offre une façade de 24 m et une profondeur de 32 m, permettant de réaliser un projet de construction confortable et fonctionnel. Points fortsSecteur recherché et paisibleTerrain rectangulaire facile à exploiterAccès rapide aux commodités Proximité (en minutes)Commerces de Marmagne : 3-4 minÉcole primaire : 3 minCollèges : 8 minBourges et zones commerciales : 10 min Informations complémentairesÉtude de sol à venirDemande de Certificat d’Urbanisme opérationnel (CU)Des questions???… Nous sommes à votre disposition… Les honoraires sont à la charge du vendeur.Les informations sur les risques auxquels ce bien est exposé sont disponibles sur le site Géorisques : www. georisques. gouv. fr.Réseau Immobilier CAPIFRANCE – Votre agent commercial (RSAC N(Numéro supprimé) – Greffe de BOURGES) Véronique MARTINS-FERREIRA Entrepreneur Individuel à Responsabilité Limitée (Numéro supprimé) – Réf.932330
L’actualité immobilière à Mehun-sur-Yèvre
27/11/2023
02/11/2023
30/10/2023
20/10/2023
16/10/2023
16/10/2023