Images
Description
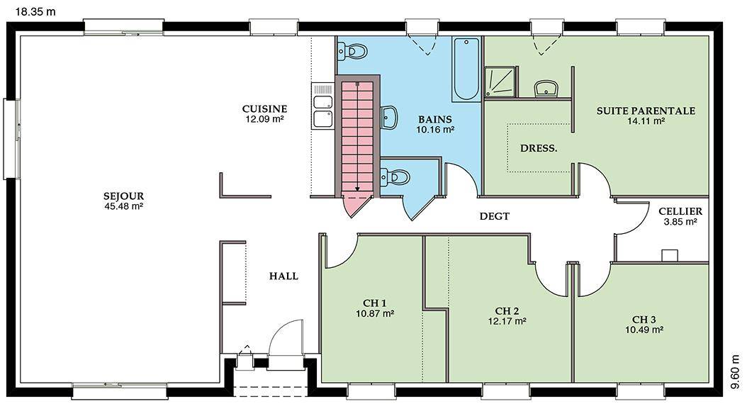
Maison Aubetière – 109 m² de confort moderne
Découvrez l’Aubetière, une maison neuve de 109 m² alliant élégance et performance énergétique. Conforme à la norme RE2020, elle offre un confort durable et une consommation maîtrisée.
Proposée en toit 2 pans ou 4 pans, l’Aubetière s’adapte à tous les styles et s’intègre harmonieusement à son environnement. À l’intérieur, vous profitez d’un espace lumineux avec 4 chambres et un grand séjour ouvert, pensé pour la vie de famille.
Grâce à son isolation performante et ses matériaux écoresponsables, cette maison basse consommation conjugue style, économie et durabilité. L’Aubetière, c’est le choix d’une maison moderne où bien-être et éco-responsabilité vont de pair.
Logement susceptibles de vous intéresser
Nous vous proposons de découvrir aussi cette sélection de logements situés à moins de 10km de Menetou-Couture et qui seraient susceptibles de vous intéresser.
Jussy-le-Chaudrier
TERRAINIdéalement situé dans un hameau paisible de la commune de Jussy-le-Chaudrier, à 10min des commerces et commodités de Sancergues, à 15min de La Charité sur Loire et à 40min de Bourges, nous vous présentons ce superbe terrain à bâtir soumis à OAP d’une superficie de 9100m², dédié à la construction de maisons d’habitation. Ce terrain, bordé par des voies communales, est totalement plat, non viabilisé avec eau et électricité en façade, fibre optique présente à cette adresse et assainissement individuel à prévoir.Les plus :L’emplacement idéal du terrain dans un charmant coin de campagne tout en étant proche des commerces, commodités, services, et écoles ainsi que sa belle superficie et son potentiel à exploiter.Photos supplémentaires disponibles sur BSK IMMOBILIER > Nos conseillers > Inès RÉMONDPour tout renseignement complémentaire ou pour une visite, contactez moi au (Numéro supprimé).Cette annonce référence 312577 vous est présentée par votre agent commercial BSK Immobilier INÈS RÉMOND (EI) immatriculé au RSAC de NEVERS (58000) sous le numéro 89151961300014.Prix du bien : 51 000,00 €Les honoraires d’agence sont à la charge du vendeur.Les informations sur les risques auxquels ce bien est exposé sont disponibles sur le site Géorisques : www.georisques.gouv.fr
Cours-les-Barres
TERRAINTerrain à bâtir constitué de deux parcelles :- une parcelle de 676m2- une parcelle de 801m2Chaque parcelle peut aussi être achetée séparément.Devant la parcelle : eau, électricité aérienne + fibre, assainissement. Les honoraires sont à la charge du vendeur.Les informations sur les risques auxquels ce bien est exposé sont disponibles sur le site Géorisques : www. georisques. gouv. fr.Réseau Immobilier CAPIFRANCE – Votre agent commercial (RSAC N(Numéro supprimé) – Greffe de NEVERS) Léa MERIT Entrepreneur Individuel (Numéro supprimé) – Réf.929446
Le Chautay
TERRAINRARE A SAISIRA 10 min de Nevers,Terrain à bâtir non viabilisé sur une surface plane de plus d’un hectare,Dans un cadre nature et arboré, idéal pour implanter votre maison en bois, maison contemporaine ou maison bioclimatique,Plus de photos et informations sur demande, Les honoraires sont à la charge du vendeur.Les informations sur les risques auxquels ce bien est exposé sont disponibles sur le site Géorisques : www. georisques. gouv. fr.Réseau Immobilier CAPIFRANCE – Votre agent commercial (RSAC N(Numéro supprimé) – Greffe de BOURGES) Aude KALUZNY Entrepreneur Individuel (Numéro supprimé) – Réf.932377
Menetou-Couture
TERRAIN ET MAISONMaison Aubetière – 109 m² de confort moderneDécouvrez l’Aubetière, une maison neuve de 109 m² alliant élégance et performance énergétique. Conforme à la norme RE2020, elle offre un confort durable et une consommation maîtrisée.Proposée en toit 2 pans ou 4 pans, l’Aubetière s’adapte à tous les styles et s’intègre harmonieusement à son environnement. À l’intérieur, vous profitez d’un espace lumineux avec 4 chambres et un grand séjour ouvert, pensé pour la vie de famille.Grâce à son isolation performante et ses matériaux écoresponsables, cette maison basse consommation conjugue style, économie et durabilité. L’Aubetière, c’est le choix d’une maison moderne où bien-être et éco-responsabilité vont de pair.
Menetou-Couture
TERRAINDécouvrez ce terrain de 3 980 m², idéal pour réaliser votre projet de construction de maison dans un cadre verdoyant et paisible. Profitant d’une vue dégagée et sans vis-à-vis, ce terrain plat est parfaitement arboré, vous garantissant un environnement serein. Situé à Menetou-Couture, ce bien présente un PLU non contraignant, offrant une flexibilité d’aménagement pour donner vie à vos rêves immobiliers. Située dans le département du Cher, en région Centre-Val de Loire, Menetou-Couture se distingue par sa qualité de vie et ses paysages bucoliques. La commune est desservie par des transports à proximité, facilitant l’accès aux commodités locales. Les habitants peuvent profiter d’un cadre champêtre apaisant tout en étant à proximité des attractions culturelles et historiques de la région, faisant de cet emplacement un choix judicieux et prometteur pour votre futur foyer. Ne manquez pas cette occasion unique d’acquérir un terrain au potentiel exceptionnel dans un cadre enchanteur. Contactez-nous pour envisager cette belle opportunité d’achat. À noter qu’en tant que constructeur, nous ne sommes pas mandatés pour réaliser la vente de ce terrain.
Nérondes
TERRAINEntre Bourges et Nevers sur la commune de Nérondes (18350)A vendre grand terrain à bâtir de plus de 10 000 m2 en plein cœur du village (secteur U).Ce terrain situé proche de la gare peut être divisé en plusieurs parcelles car il dispose de plus de 250m de façade sur la rue.le terrain est plat et parcouru par un chemin stabilisé qui peut recevoir camions en engins de chantier.La parcelle n’est pas viabilisée mais l’ensemble des réseaux passe dans la rue : eau, électricité, tout à l’égout et fibre. Les honoraires d’agence sont à la charge de l’acquéreur, soit 10,78% TTC du prix hors honoraires.Les informations sur les risques auxquels ce bien est exposé sont disponibles sur le site Géorisques : www. georisques. gouv. fr.Réseau Immobilier CAPIFRANCE – Votre agent commercial (RSAC N(Numéro supprimé) – Greffe de TOURS) Laurent DEBAIN Entrepreneur Individuel (Numéro supprimé) – Réf.925775
Jouet-sur-l'Aubois
TERRAINNous vous proposons un terrain à vendre d’une superficie de 2439 m², parfaitement viabilisé et situé à Jouet-sur-l’Aubois, dans le département du Cher. Ce bien rare offre une opportunité unique pour réaliser votre projet de construction de maison dans un cadre champêtre et ensoleillé. La qualité de vie dans cette magnifique commune, combinée à un prix exceptionnel, fait de ce terrain un choix judicieux pour les acheteurs souhaitant s’installer dans un environnement paisible. Situé en Centre-Val de Loire, Jouet-sur-l’Aubois est une ville charmante qui privilégie le cadre de vie. Vous bénéficierez de la proximité des commodités locales tout en profitant des paysages naturels environnants. La division parcellaire est possible, et le PLU non contraignant permet une flexibilité dans vos projets d’aménagement. En choisissant ce terrain, vous vous offrez la convivialité d’un village tout en étant à quelques pas des attractions de la région. Vous pourrez savourer les délices de la nature tout en ayant accès aux services essentiels de la ville. Ce terrain représente une opportunité d’achat unique, et nous vous invitons à envisager tout son potentiel pour créer la maison de vos rêves. À noter qu’en tant que constructeur, nous ne sommes pas mandatés pour réaliser la vente de ce terrain.
Jouet-sur-l'Aubois
TERRAIN ET MAISONNous vous proposons cette maison neuve, baptisée « »Prunière » », un modèle de construction alliant élégance et fonctionnalité, conçu pour répondre aux attentes des familles modernes. Avec une surface habitable de 99 m², cette maison est parfaitement dimensionnée pour offrir confort et bien-être à ses occupants. La « »Prunière » » se distingue par son architecture soignée, disponible en versions à 2 ou 4 pans, selon vos préférences, intégrant harmonieusement un garage. Cette caractéristique non seulement ajoute à l’esthétique de la maison mais assure également une fonctionnalité accrue, offrant un espace supplémentaire pour votre véhicule ou pour du rangement. L’intérieur de la maison est judicieusement agencé pour maximiser l’espace et la lumière naturelle. Elle comprend quatre chambres spacieuses, promettant un espace privé confortable pour chaque membre de la famille. Les quatre pièces de la maison sont conçues pour faciliter une vie familiale harmonieuse, avec des espaces de vie communs accueillants et bien pensés. Au-delà de son design attrayant, la « »Prunière » » est une maison basse consommation, conçue dans le strict respect de la réglementation environnementale RE2020. Cette norme garantit une efficacité énergétique optimale et une réduction significative de votre empreinte carbone. Vivre dans la « »Prunière » », c’est choisir un habitat respectueux de l’environnement, tout en bénéficiant d’un confort inégalé et de réductions substantielles sur vos factures d’énergie. Cette maison neuve représente une opportunité exceptionnelle de posséder une demeure moderne, durable et économe en énergie. La « »Prunière » » est la promesse d’un foyer chaleureux, où chaque détail a été pensé pour votre bien-être et celui de votre famille. Ne manquez pas cette chance de construire la maison de vos rêves, un lieu où de nouveaux souvenirs seront créés et chéris pour les années à venir.
Germigny-sur-Loire
TERRAIN ET MAISONNous vous proposons cette maison neuve, la Diamant, d’une surface de 96 m², comprenant 3 chambres et 4 pièces. Cette charmante demeure se distingue par son design en L offrant une configuration optimale et une belle luminosité.Les caractéristiques principales de la Diamant incluent un auvent accueillant à l’entrée, idéal pour abriter vos invités des intempéries. De plus, un garage intégré vous permettra de stationner votre véhicule en toute sécurité, offrant ainsi un confort supplémentaire au quotidien.Cette maison à construire se démarque par son aspect basse consommation, répondant aux normes de la RE2020 en matière d’efficacité énergétique. Vous pourrez ainsi profiter d’un habitat moderne et respectueux de l’environnement, alliant confort et économies d’énergie.Ne manquez pas l’opportunité d’acquérir cette maison Diamant, alliant praticité, esthétique et performance énergétique pour un cadre de vie agréable et durable.
L’actualité immobilière à Menetou-Couture
27/11/2023
02/11/2023
30/10/2023
20/10/2023
16/10/2023
16/10/2023