Images
Description
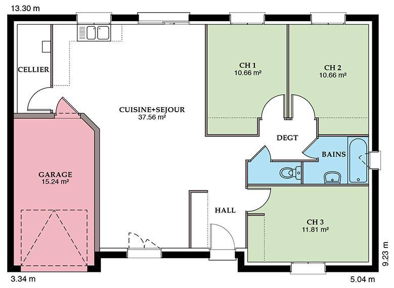
Découvrez la Prunière, une maison neuve de 87,5 m² avec garage intégré, qui marie style moderne et confort au quotidien. Disponible en toit 2 ou 4 pans, elle séduit par son architecture élégante et son agencement fonctionnel, idéal pour un couple ou une jeune famille.
L’intérieur se compose de 3 chambres lumineuses, d’un espace de vie ouvert et convivial, et d’un garage accolé offrant un rangement pratique et un accès direct à la maison. Chaque espace a été pensé pour offrir volume, clarté et bien-être.
Conforme à la réglementation RE2020, la Prunière bénéficie d’une isolation performante, d’une consommation énergétique réduite et d’un confort thermique optimal tout au long de l’année.
La Prunière 87,5 m² + garage, c’est le choix d’une maison moderne, économe et durable, pensée pour un mode de vie simple, serein et tourné vers l’avenir.
Logement susceptibles de vous intéresser
Nous vous proposons de découvrir aussi cette sélection de logements situés à moins de 10km de Senneçay et qui seraient susceptibles de vous intéresser.
Trouy
TERRAIN ET MAISONNous vous proposons cette maison neuve, baptisée Focus 73, un modèle de construction qui allie modernité, confort et respect de l’environnement. Avec une surface habitable de 73 m², cette maison est parfaitement conçue pour accueillir confortablement votre famille, offrant 3 chambres spacieuses et un total de 4 pièces bien agencées pour maximiser l’espace et la luminosité. Le modèle Focus 73 se distingue par son garage intégré, offrant non seulement un espace de stationnement sécurisé pour votre véhicule mais aussi un accès direct à votre domicile, facilitant ainsi votre quotidien. Cette maison est conçue pour répondre aux exigences de la norme RE2020, la réglementation environnementale la plus récente, garantissant une construction basse consommation. Cela signifie que vous bénéficierez d’une isolation optimale, d’une excellente performance énergétique et d’une réduction significative de vos factures d’énergie, tout en contribuant à la protection de l’environnement. La Focus 73 est l’incarnation de l’habitat du futur, offrant un cadre de vie sain et économique. Son architecture moderne et ses finitions de qualité en font un lieu de vie agréable et fonctionnel. La maison est conçue pour offrir un confort optimal en toutes saisons, grâce à une gestion intelligente de la température intérieure et à l’utilisation de matériaux durables et écologiques. En choisissant la Focus 73, vous optez pour une maison neuve qui respecte les plus hauts standards de qualité et de performance énergétique. C’est l’assurance de vivre dans un espace sain, confortable et respectueux de l’environnement, conçu pour répondre aux besoins de votre famille aujourd’hui et demain. Ne manquez pas cette opportunité de construire la maison de vos rêves, conforme aux dernières normes environnementales. La Focus 73 est la promesse d’un avenir durable et d’un investissement pérenne pour vous et vos proches. Contactez-nous dès maintenant pour plus d’informations et débutons ensemble le projet
Plaimpied-Givaudins
TERRAINDécouvrez ce magnifique terrain viabilisé de 820 m², idéalement situé à Plaimpied-Givaudins, dans le département du Cher. Ce terrain, dernier disponible du lotissement, offre une surface plane parfaite pour la construction de votre maison de rêve. Avec ses caractéristiques uniques, ce bien vous permettra de bénéficier d’un cadre de vie paisible en toute proximité des commodités nécessaires à votre quotidien. Plaimpied-Givaudins, située en Centre-Val de Loire, est une ville qui allie qualité de vie et accessibilité. À quelques pas des commerces et des services locaux, vous profiterez d’un environnement agréable avec une vue dégagée. Les nombreux atouts de cette localité, notamment ses infrastructures et son dynamisme, en font un lieu de vie prisé, idéal pour les familles et les futurs propriétaires souhaitant s’installer dans un cadre harmonieux. Ne laissez pas passer cette opportunité unique d’acquérir un terrain au potentiel sans pareil, parfait pour concrétiser votre projet de construction. Contactez-nous pour plus d’informations! À noter qu’en tant que constructeur, nous ne sommes pas mandatés pour réaliser la vente de ce terrain.
Plaimpied-Givaudins
TERRAIN ET MAISONSur ce terrain, découvrez la Focus 89, une maison neuve signée Styl Habitat, constructeur reconnu pour offrir le meilleur rapport qualité/prix du marché. Conçue pour allier confort et économies, cette maison familiale à prix mini est idéale pour accéder à la propriété sans compromis.Avec ses 89 m² habitables, la Focus 89 vous propose un agencement optimisé, comprenant 4 chambres, parfaites pour accueillir toute votre famille, et un séjour traversant avec cuisine ouverte, offrant un espace de vie convivial et lumineux. Son garage intégré ajoute une touche de praticité, que ce soit pour stationner votre véhicule ou disposer d’un espace de rangement supplémentaire.L’esthétique n’est pas en reste : sa façade bi-ton lui confère un style moderne et élégant, tandis que diverses options, comme les menuiseries en aluminium, permettent de personnaliser votre future maison selon vos envies.Conforme à la réglementation RE2020, la Focus 89 est une maison basse consommation, équipée des dernières technologies pour une isolation thermique et phonique optimale. Économique et respectueuse de l’environnement, elle vous garantit un confort durable tout en réduisant vos dépenses énergétiques.Avec Styl Habitat, vous bénéficiez d’un savoir-faire éprouvé et de matériaux de qualité, notamment une charpente traditionnelle, pour une maison solide et pérenne.N’attendez plus pour concrétiser votre projet ! La Focus 89 est la maison idéale pour les familles à la recherche d’un logement spacieux, écologique et abordable.
Trouy
TERRAINDécouvrez ce terrain d’une surface généreuse de 750 m², idéalement situé dans la charmante commune de Trouy, dans le département du Cher en région Centre-Val de Loire. Ce terrain, viabilisé et en pente, offre un emplacement top pour votre projet de construction de maison. Bénéficiant d’un cadre paisible tout en étant proche des commodités, il constitue une opportunité rêvée pour donner vie à votre vision habitation. La ville de Trouy est réputée pour son ambiance conviviale et son environnement accueillant. Vous serez séduit par les diverses attractions locales, allant des parcs verdoyants propices à la détente aux infrastructures de loisirs qui animent le quartier. Les commodités telles que les commerces de proximité et les services publics sont facilement accessibles, offrant ainsi un cadre de vie agréable et pratique pour toute la famille. Profitez d’une localisation privilégiée tout en gardant la tranquillité nécessaire pour construire votre havre de paix. Ce terrain représente une véritable opportunité d’investissement dans un secteur en pleine expansion. N’attendez plus pour envisager ce projet de construction unique qui répondra à vos aspirations. À noter qu’en tant que constructeur, nous ne sommes pas mandatés pour réaliser la vente de ce terrain.
Plaimpied-Givaudins
TERRAIN ET MAISONMaison Aubetière – 109 m² de confort moderneDécouvrez l’Aubetière, une maison neuve de 109 m² alliant élégance et performance énergétique. Conforme à la norme RE2020, elle offre un confort durable et une consommation maîtrisée.Proposée en toit 2 pans ou 4 pans, l’Aubetière s’adapte à tous les styles et s’intègre harmonieusement à son environnement. À l’intérieur, vous profitez d’un espace lumineux avec 4 chambres et un grand séjour ouvert, pensé pour la vie de famille.Grâce à son isolation performante et ses matériaux écoresponsables, cette maison basse consommation conjugue style, économie et durabilité. L’Aubetière, c’est le choix d’une maison moderne où bien-être et éco-responsabilité vont de pair.
Senneçay
TERRAIN ET MAISONDécouvrez la Prunière, une maison neuve de 87,5 m² avec garage intégré, qui marie style moderne et confort au quotidien. Disponible en toit 2 ou 4 pans, elle séduit par son architecture élégante et son agencement fonctionnel, idéal pour un couple ou une jeune famille.L’intérieur se compose de 3 chambres lumineuses, d’un espace de vie ouvert et convivial, et d’un garage accolé offrant un rangement pratique et un accès direct à la maison. Chaque espace a été pensé pour offrir volume, clarté et bien-être.Conforme à la réglementation RE2020, la Prunière bénéficie d’une isolation performante, d’une consommation énergétique réduite et d’un confort thermique optimal tout au long de l’année.La Prunière 87,5 m² + garage, c’est le choix d’une maison moderne, économe et durable, pensée pour un mode de vie simple, serein et tourné vers l’avenir.
Plaimpied-Givaudins
TERRAINDécouvrez ce terrain exceptionnel de 1327 m², idéalement situé à Plaimpied-Givaudins, dans le département du Cher. Ce terrain plat, non viabilisé, offre de nombreuses possibilités pour la réalisation de votre projet de construction de maison. Niché dans un quartier recherché, ce bien vous séduira par son cadre champêtre qui allie calme et tranquillité, tout en vous permettant de profiter d’une qualité de vie intenable. Plaimpied-Givaudins se situe en plein cœur de la région Centre-Val de Loire, offrant ainsi un excellent équilibre entre nature et commodités. Vous trouverez à proximité immédiate de ce terrain des commerces, des services essentiels, ainsi qu’un collège et un lycée, garantissant un accès facile à l’éducation et à la vie quotidienne. De plus, le terrain bénéficie d’un accès rapide aux axes routiers importants, facilitant vos déplacements. Les arrêts de bus à proximité ajoutent une touche pratique à cet environnement déjà attrayant, faisant de ce lieu un endroit idéal pour ériger votre future maison. Ce terrain offre un potentiel exceptionnel et représente une opportunité d’achat unique à envisager. Ne laissez pas passer cette chance de concrétiser votre projet de vie dans un cadre agréable et bien desservi. À noter qu’en tant que constructeur, nous ne sommes pas mandatés pour réaliser la vente de ce terrain.
Senneçay
TERRAINÀ vendre, un terrain idéalement situé sur la commune de Senneçay, dans le département du Cher en Centre-Val de Loire. Avec une superficie généreuse de 1164 m², ce terrain non viabilisé offre un cadre champêtre propice à la construction de votre future maison. Profitez de ses caractéristiques uniques pour donner vie à votre projet immobilier dans un environnement paisible et harmonieux. Senneçay est une ville attrayante qui combine le charme de la campagne et la proximité des commodités essentielles. Vous serez à proximité des écoles, du collège et du lycée, ce qui en fait une situation idéale pour les familles. Les transports publics, avec un arrêt de bus à proximité et un accès facile à un axe routier important, facilitent vos déplacements vers les villes environnantes. L’environnement idyllique et calme de Senneçay, avec de nombreuses attractions locales, vous permettra de profiter d’un cadre de vie agréable et convivial. Ne manquez pas cette opportunité d’acquérir un terrain au potentiel exceptionnel pour votre projet de construction. Contactez-nous dès aujourd’hui pour plus d’informations ! À noter qu’en tant que constructeur, nous ne sommes pas mandatés pour réaliser la vente de ce terrain.
Arçay
TERRAIN ET MAISONArçay : maison T3 (65 m²) en venteProche de Bourges – En vente à Arçay (18340) : maison neuve 3 pièces de 65 m² sur un terrain de 650 m². Son intérieur est composé de deux chambres, d’une cuisine et d’une salle de bains.À dix minutes : gares (Lunery et Saint-Florent-sur-Cher), écoles, tennis. Accès autoroute A71 et nationales N151 et N142 à 14 km.Cette maison de 3 pièces est à vendre pour la somme de 170 050 €.Contactez David POUPET ((Numéro supprimé)) pour tout renseignement sur la maison de plain-pied, sur les démarches à suivre ou sur les modalités de vente.
L’actualité immobilière à Senneçay
27/11/2023
02/11/2023
30/10/2023
20/10/2023
16/10/2023
16/10/2023