Images
Description
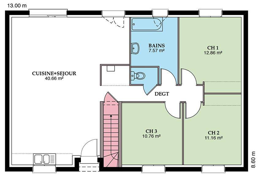
Nous vous proposons cette maison neuve, baptisée ""Aubetière"", un modèle de construction qui allie élégance et performance énergétique. Avec une surface habitable de 79 m², cette maison est conçue pour offrir confort et bien-être à ses occupants. Elle se compose de 4 pièces lumineuses, dont 3 chambres accueillantes, idéales pour une famille cherchant à s'établir dans un cadre de vie agréable et serein.
L'Aubetière se distingue par son architecture moderne, disponible en version 2 pans ou 4 pans, offrant ainsi une flexibilité selon vos préférences esthétiques et vos besoins. Chaque détail a été pensé pour maximiser l'espace de vie et garantir une luminosité optimale dans toutes les pièces.
Cette maison est avant tout un modèle d'efficacité énergétique, conforme à la norme RE2020. Elle est conçue pour être basse consommation, vous permettant ainsi de réaliser d'importantes économies d'énergie tout en réduisant votre empreinte carbone. L'isolation thermique renforcée, le système de chauffage performant et la ventilation optimisée sont autant d'éléments qui contribuent à atteindre un niveau de confort exceptionnel, été comme hiver, tout en préservant l'environnement.
L'Aubetière représente l'opportunité de vivre dans une maison neuve, moderne et écologique, répondant aux exigences les plus strictes en matière de construction durable. C'est l'assurance d'un investissement pérenne, dans un lieu où il fait bon vivre.
N'attendez plus pour découvrir ce modèle de maison qui saura répondre à vos attentes en termes de qualité de vie, d'économie d'énergie et de respect de l'environnement. L'Aubetière est la promesse d'un foyer chaleureux, où chaque jour est une invitation au bien-être.
Logement susceptibles de vous intéresser
Nous vous proposons de découvrir aussi cette sélection de logements situés à moins de 10km de Vignoux-sur-Barangeon et qui seraient susceptibles de vous intéresser.
Allogny
TERRAIN ET MAISONMaison neuve – 5 chambres – Suite parentale – GarageVolumes généreux & luminosité exceptionnelle !Découvrez cette superbe maison idéale pour une grande famille :✨ 5 chambres dont une suite parentale avec dressing et salle d’eau✨ 2 salles de bain✨ Grande pièce de vie ultra lumineuse✨ Cuisine ouverte avec cellier✨ Garage attenantDes beaux volumes, une luminosité remarquable et une conception pensée pour le confort quotidien.Un projet moderne, spacieux et résolument séduisant !Réalisez la maison qui vous ressemble, adaptée à vos besoins avec MAISONS FRANCE CONFORT sur ce terrain en accord avec un partenaire foncier.📞 Contactez Maisons France Confort Saint-Doulchard dès aujourd’hui pour plus d’informations et commencer votre projet de construction !
Mehun-sur-Yèvre
TERRAIN ET MAISONMaison neuve – 5 chambres – Suite parentale – GarageVolumes généreux & luminosité exceptionnelle !Découvrez cette superbe maison idéale pour une grande famille :✨ 5 chambres dont une suite parentale avec dressing et salle d’eau✨ 2 salles de bain✨ Grande pièce de vie ultra lumineuse✨ Cuisine ouverte avec cellier✨ Garage attenantDes beaux volumes, une luminosité remarquable et une conception pensée pour le confort quotidien.Un projet moderne, spacieux et résolument séduisant !Réalisez la maison qui vous ressemble, adaptée à vos besoins avec MAISONS FRANCE CONFORT sur ce terrain en accord avec un partenaire foncier.📞 Contactez Maisons France Confort Saint-Doulchard dès aujourd’hui pour plus d’informations et commencer votre projet de construction !
Saint-Laurent
TERRAIN ET MAISONMaison de plain-pied conçue pour offrir un espace de vie confortable et fonctionnel, idéal pour une famille. L’agencement privilégie la convivialité avec un espace jour spacieux et lumineux, parfait pour les moments de partage. Les trois chambres, de tailles similaires, offrent à chacun son espace d’intimité, tandis que les espaces fonctionnels, tels que le cellier, le garage et la salle de bains, facilitent le quotidien.L’espace jour, véritable coeur de la maison, est baigné de lumière naturelle grâce à de larges ouvertures.Il offre un espace de vie ouvert et accueillant, idéal pour se détendre, recevoir des amis ou partager des repas en famille. Les chambres, quant à elles, sont conçues comme des havres de paix, offrant à chacun son espace personnel.Les espaces fonctionnels, tels que le cellier, le garage et la salle de bains, sont pensés pour faciliter le quotidien. Le dégagement central assure une circulation fluide entre les pièces.L’ensemble de la maison est conçu pour offrir un espace de vie agréable et pratique, où chaque membre de la famille se sentira chez soi.Réalisez la maison qui vous ressemble, adaptée à vos besoins avec MAISONS FRANCE CONFORT sur ce terrain en accord avec un partenaire foncier.📞 Contactez Maisons France Confort dès aujourd’hui pour plus d’informations et commencer votre projet de construction !
Saint-Laurent
TERRAIN ET MAISONProjet de construction – Maison familiale Maisons France Confort Saint-Doulchard vous propose un projet de construction d’une maison moderne et fonctionnelle, idéale pour une famille en quête de confort et de sérénité.Cette maison disposera de 4 chambres, dont une suite parentale comprenant un dressing et une salle d’eau privative, offrant un véritable espace intime et indépendant.Un grand cellier/buanderie viendra compléter les espaces pratiques de la maison pour un quotidien plus organisé.Les 3 autres chambres, dédiées aux enfants ou aux invités, sont situées dans un espace nuit séparé et bénéficient d’une belle salle de bain indépendante, garantissant confort et intimité pour toute la famille.La pièce de vie, spacieuse et lumineuse, a été pensée pour être chaleureuse et conviviale, parfaite pour recevoir et partager des moments en famille ou entre amis.Réalisez la maison qui vous ressemble, adaptée à vos besoins avec MAISONS FRANCE CONFORT sur ce terrain en accord avec un partenaire foncier.📞 Contactez Maisons France Confort Saint-Doulchard dès aujourd’hui pour plus d’informations et commencer votre projet de construction !
Saint-Laurent
TERRAIN ET MAISON🏡 Construction – Maison 2 chambres Garage évolutive avec combles aménageablesDécouvrez ce projet de construction moderne et fonctionnel, proposé par Maisons France Confort, constructeur reconnu du groupe HEXAOM, premier constructeur de maisons individuelles en France.✨ Descriptif du projet :Maison de plain-pied, aux normes PMR (personne à mobilité réduite), pensée pour le confort et l’accessibilité2 chambres lumineuses et bien agencéesCombles aménageables, offrant un fort potentiel d’évolution selon vos besoins futurs (chambres supplémentaires, bureau, salle de jeux, etc.)Belle pièce de vie conviviale, ouverte sur le jardinCuisine ouverte et cellier fonctionnelSalle d’eau moderne et WC 🌿 Maison conforme à la norme RE2020, garantissant confort, performance énergétique et économies d’énergie.💡 Idéale pour un investissement locatif ou un premier achat, cette maison combine accessibilité, évolutivité et rentabilité.🏠 Maisons France Confort vous accompagne pour réaliser un projet sur mesure, fiable et durable.Possibilité de réaliser votre projet personnalisé avec Maisons France Confort sur ce terrain en accord avec notre partenaire foncier📞 Contactez Maisons France Confort Saint-Doulchard dès aujourd’hui pour étudier votre projet et faire de cette maison votre futur chez-vous
Saint-Laurent
TERRAIN ET MAISON🏡 Construction Maison R+1 – 4 chambres avec garage – Prestations haut de gammeRéalisez votre projet de vie avec Maisons France Confort, constructeur du groupe HEXAOM, premier constructeur de maisons individuelles en France, reconnu pour la qualité et le sérieux de ses réalisations.✨ Caractéristiques de la maison :R+1 complet offrant de beaux volumes et une organisation fonctionnelle4 chambres spacieuses pour toute la famille2 WC et un cellier pratique pour le rangementGrande pièce de vie lumineuse pour profiter d’un espace convivial et confortableMaison conforme aux normes RE2020, garantissant confort thermique et économies d’énergie🌿 Prestations haut de gamme : matériaux de qualité, finitions soignées et conception moderne pour un confort optimal.🏠 Maisons France Confort, c’est la garantie d’une construction fiable, sur mesure, et pensée pour allier fonctionnalité, espace et confort, idéale pour une vie de famille sereine.Réalisez la maison qui vous ressemble, adaptée à vos besoins avec MAISONS FRANCE CONFORT sur ce terrain en accord avec un partenaire foncier.📞 Contactez Maisons France Confort Saint-Doulchard dès aujourd’hui pour plus d’informations et commencer votre projet de construction !
Saint-Laurent
TERRAINIdéal pour votre projet de maison avec Maisons France Confort Saint-Doulchard🏠 Un projet de construction personnaliséLe constructeur Maisons France Confort vous accompagne pour imaginer et bâtir la maison de vos rêves :Maisons traditionnelles, modernes ou contemporaines.Plans personnalisables selon vos besoins et votre budget.Garanties et accompagnement complet (CCMI, suivi de chantier, performance énergétique).Pour plus d’informations sur les possibilités de construction avec Maisons France Confort, contactez Jessica DA COSTANous vous accompagnerons à chaque étape de votre projet pour une réalisation en toute sérénité sur ce terrain proposé en accord avec notre partenaire foncier.
Allogny
TERRAIN ET MAISONUne maison optimisée pour les investisseurs, conforme aux normes PMR.Ce plan de maison est conçu pour répondre parfaitement aux besoins des investisseurs immobiliers cherchant un bien à forte attractivité locative. Avec un agencement optimisé et conforme aux normes PMR (Personnes à Mobilité Réduite), cette maison garantit accessibilité, confort et fonctionnalité pour tous les occupants.Cette maison offre un beau potentiel d’agrandissement grâce à ses combles aménageables déjà préparés avec trémie existante (accès prévu pour escalier).L’espace de vie principal se distingue par sa grande luminosité, grâce à de larges ouvertures permettant une belle connexion avec l’extérieur. Cette pièce spacieuse offre de multiples possibilités d’aménagement, alliant convivialité et praticité.La partie nuit est composée de deux chambres confortables, idéales pour accueillir des locataires ou une petite famille. La salle de bain entièrement adaptée aux besoins des personnes à mobilité réduite, est équipée d’une douche à l’italienne et d’un agencement ergonomique. Le dégagement compact facilite la circulation fluide dans toute la maison.Ce bien, pensé pour répondre aux exigences du marché locatif, est une solution clé en main pour les investisseurs soucieux de garantir un rendement durable tout en offrant un cadre de vie adapté à tous.Possibilité de réaliser votre projet personnalisé avec Maisons France Confort sur ce terrain en accord avec notre partenaire foncier📞 Contactez-nous dès aujourd’hui pour étudier votre projet et faire de cette maison votre futur chez-vous ! Jessica DA COSTA au (Numéro supprimé)
Mehun-sur-Yèvre
TERRAIN ET MAISON🏡 Maison combles aménagés – 4 chambres, garage & cellierMaison à construire avec combles aménagés :3 chambres à l’étage1 chambre au rez-de-chaussée, pratique pour les parents ou invitésGarage intégré et cellier attenant à la cuisinePièce de vie lumineuse et conviviale, pensée pour toute la familleFonctionnelle et moderne, cette maison allie confort, espace et praticité au quotidien.Possibilité de réaliser votre projet personnalisé avec Maisons France Confort sur ce terrain en accord avec notre partenaire foncier📞 Contactez-nous dès aujourd’hui pour étudier votre projet et faire de cette maison votre futur chez-vous ! Jessica DA COSTA au (Numéro supprimé)
L’actualité immobilière à Vignoux-sur-Barangeon
27/11/2023
02/11/2023
30/10/2023
20/10/2023
16/10/2023
16/10/2023