Maison à construire à Bobital (22100)
Images
Description
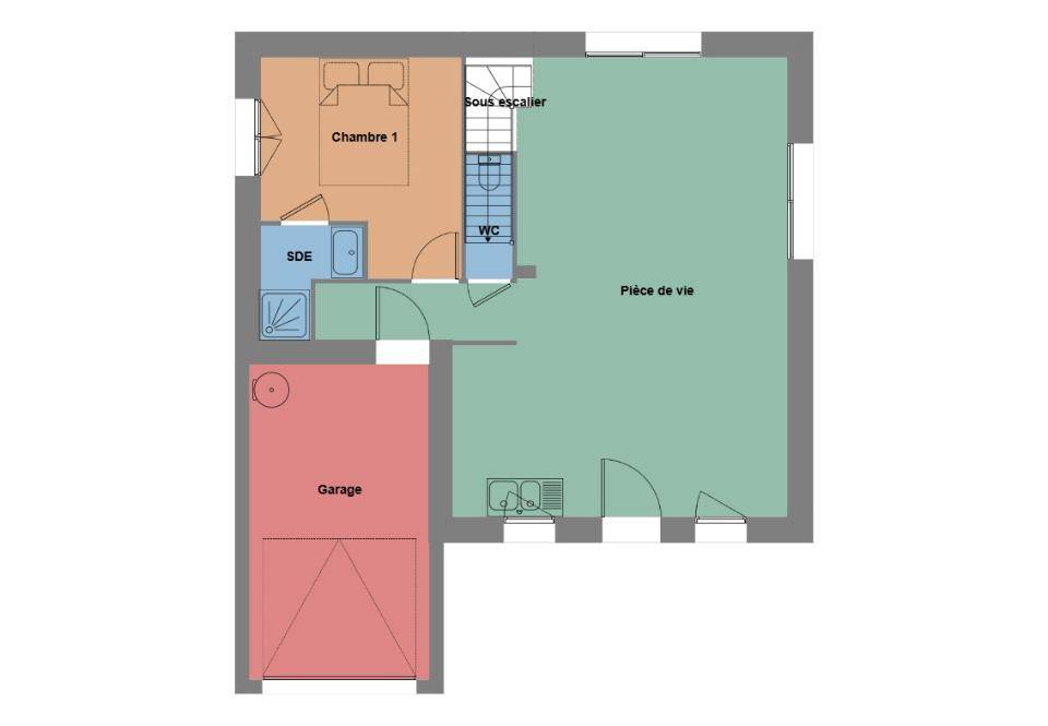
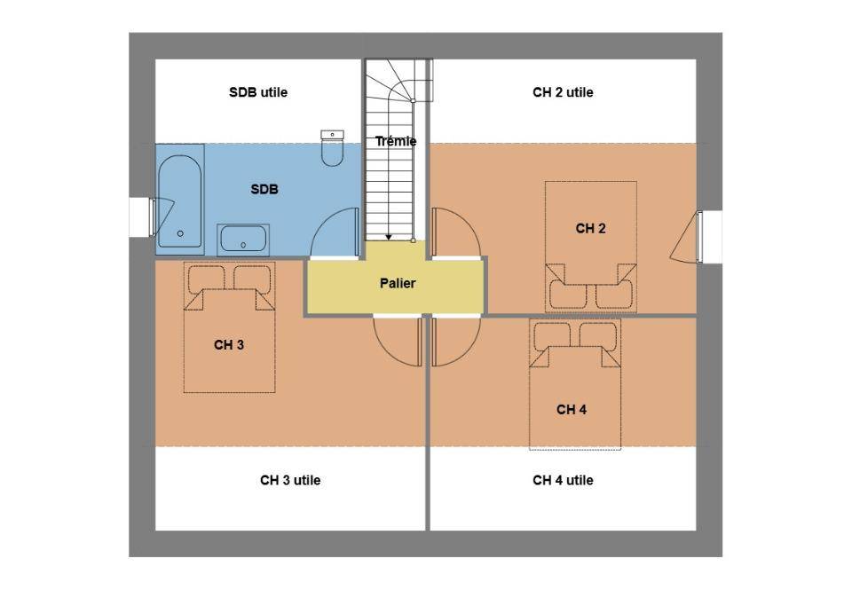
VENTE d'une maison F5 (102 m²) à Bobital
IDÉALEMENT SITUÉE - PROCHE DE DINAN
MAISON 5 PIÈCES NEUVE
En vente : à 18 km de la Manche et à deux pas de Saint-Malo, laissez vous charmer par, idéalement située dans Bobital (22100), cette maison de 5 pièces de 102 m².
Cette maison possède 2 niveaux. Son intérieur inclut quatre chambres, une cuisine et deux salles de bains. La maison est neuve.
Le terrain de la propriété s'étend sur 365 m².
Cette maison se situe dans un quartier prisé. On trouve l'École Primaire Publique les Acacias à moins de 10 minutes à pied. Niveau transports en commun, il y a deux gares (Dinan et Corseul-Languenan) à moins de 10 minutes en voiture. On trouve un accès à la nationale N176 à 4 km. On trouve une bibliothèque et une boulangerie dans les environs.
Elle est proposée à l'achat pour 238 800 €.
Prenez contact avec notre agence (Laetitia AMIRI : (Numéro supprimé)) pour toute information sur la maison, sur les démarches à suivre ou sur les modalités de vente. Donnez vie à vos projets immobiliers avec Maisons de l'Avenir Saint-Carné.
Logement susceptibles de vous intéresser
Nous vous proposons de découvrir aussi cette sélection de logements situés à moins de 10km de Bobital et qui seraient susceptibles de vous intéresser.
Bobital
TERRAINVENTE : terrain de 365 m² à BobitalIDÉALEMENT SITUÉ – PROCHE DE DINANÀ Bobital (22100) à 18 km de la Manche et à deux pas de Saint-Malo, découvrez ce terrain de 365 m². Dans un quartier recherché, ce terrain idéalement situé est proche des commerces et des écoles. L’École Primaire Publique les Acacias est implantée à moins de 10 minutes à pied. Niveau transports en commun, on trouve deux gares (Dinan et Corseul-Languenan) à moins de 10 minutes en voiture. La nationale N176 est accessible à 4 km. Il y a une bibliothèque et une boulangerie à proximité du terrain.Il est à vendre pour la somme de 57 300 €. Prenez contact avec Laetitia AMIRI (tél : (Numéro supprimé)) pour tout renseignement sur ce terrain. Maisons de l’Avenir Saint-Carné vous accompagne à toutes les étapes de votre projet et dans tous vos projets immobiliers.
Bobital
TERRAIN ET MAISONBobital : maison T3 (56 m²) en venteIDÉALEMENT SITUÉE – PROCHE DE DINANMAISON 3 PIÈCES NEUVEEn vente à 18 km de la Manche et à deux pas de Saint-Malo, idéalement située dans Bobital (22100), nous sommes ravis de vous proposer cette maison de 3 pièces de plain-pied de 56 m² et de 365 m² de terrain.Elle inclut deux chambres, une cuisine et une salle de bains. La maison est neuve.Cette maison est située dans un quartier prisé. L’École Primaire Publique les Acacias est implantée à moins de 10 minutes à pied. Niveau transports en commun, on trouve deux gares (Dinan et Corseul-Languenan) à moins de 10 minutes en voiture. Il y a un accès à la nationale N176 à 4 km. Il y a une bibliothèque et une boulangerie dans les environs.Elle est proposée à l’achat pour 193 400 €.Prenez contact avec Laetitia AMIRI ((Numéro supprimé)) pour plus d’informations sur la maison, sur les modalités de vente ou sur les démarches à suivre. Maisons de l’Avenir Saint-Carné vous accompagne à toutes les étapes de votre projet et dans tous vos projets immobiliers.
Bobital
TERRAIN ET MAISONBobital : maison F4 (88 m²) à vendreIDÉALEMENT SITUÉE – PROCHE DE DINANMAISON 4 PIÈCES NEUVEEn vente : située à 18 km de la Manche et à 27 km de Saint-Malo, ayez le coup de coeur pour cette maison de 4 pièces de 88 m² idéalement située dans Bobital (22100).Cette maison comporte 2 niveaux. Elle offre trois chambres, une cuisine et une salle de bains. Cette maison est neuve.Le terrain de la propriété s’étend sur 365 m².Cette maison est située dans un secteur recherché. L’École Primaire Publique les Acacias se trouve à moins de 10 minutes à pied. Côté transports en commun, il y a deux gares (Dinan et Corseul-Languenan) à moins de 10 minutes en voiture. On trouve un accès à la nationale N176 à 4 km. On trouve une bibliothèque et une boulangerie dans les environs.Son prix de vente est de 209 400 €.Contactez Laetitia AMIRI (tél : (Numéro supprimé)) pour toute question sur la maison ou sur les démarches à suivre. Maisons de l’Avenir Saint-Carné est là pour vous accompagner à toutes les étapes de l’achat.
Bobital
TERRAIN ET MAISONVENTE d’une maison F5 (102 m²) à BobitalIDÉALEMENT SITUÉE – PROCHE DE DINANMAISON 5 PIÈCES NEUVEEn vente : à 18 km de la Manche et à deux pas de Saint-Malo, laissez vous charmer par, idéalement située dans Bobital (22100), cette maison de 5 pièces de 102 m².Cette maison possède 2 niveaux. Son intérieur inclut quatre chambres, une cuisine et deux salles de bains. La maison est neuve.Le terrain de la propriété s’étend sur 365 m².Cette maison se situe dans un quartier prisé. On trouve l’École Primaire Publique les Acacias à moins de 10 minutes à pied. Niveau transports en commun, il y a deux gares (Dinan et Corseul-Languenan) à moins de 10 minutes en voiture. On trouve un accès à la nationale N176 à 4 km. On trouve une bibliothèque et une boulangerie dans les environs.Elle est proposée à l’achat pour 238 800 €.Prenez contact avec notre agence (Laetitia AMIRI : (Numéro supprimé)) pour toute information sur la maison, sur les démarches à suivre ou sur les modalités de vente. Donnez vie à vos projets immobiliers avec Maisons de l’Avenir Saint-Carné.
Bobital
TERRAIN ET MAISONBobital : maison T5 (120 m²) à vendreIDÉALEMENT SITUÉE – PROCHE DE DINANMAISON 5 PIÈCES NEUVEÀ vendre : localisée à 18 km de la Manche et à deux pas de Saint-Malo, nous sommes ravis de vous présenter cette maison de 5 pièces de 120 m² idéalement située dans Bobital (22100). Elle compte quatre chambres, une cuisine et deux salles de bains.Le terrain de la propriété s’étend sur 365 m².Cette maison possède 2 niveaux. Elle est neuve.Cette propriété se trouve dans un secteur prisé. L’École Primaire Publique les Acacias est implantée à moins de 10 minutes à pied. Côté transports, il y a deux gares (Dinan et Corseul-Languenan) à moins de 10 minutes en voiture. On trouve un accès à la nationale N176 à 4 km. On trouve une bibliothèque et une boulangerie dans les environs.Son prix de vente est de 305 850 €.Prenez contact avec Laetitia AMIRI (tél : (Numéro supprimé)) pour toute information sur la maison ou sur les démarches à suivre.
Bobital
TERRAIN ET MAISONVENTE d’une maison de 4 pièces (94 m²) à BobitalIDÉALEMENT SITUÉE – PROCHE DE DINANMAISON 4 PIÈCES NEUVEEn vente : située à 18 km de la Manche et à quelques kilomètres de Saint-Malo, idéalement située dans Bobital (22100), Maisons de l’Avenir Saint-Carné vous propose cette maison de 4 pièces de 94 m² et de 365 m² de terrain.Cette maison comporte 2 niveaux. Son intérieur compte trois chambres, une cuisine et deux salles de bains. Cette maison est neuve.La maison est située dans un quartier attractif. L’École Primaire Publique les Acacias se trouve à moins de 10 minutes à pied. Côté transports en commun, il y a deux gares (Dinan et Corseul-Languenan) à moins de 10 minutes en voiture. La nationale N176 est accessible à 4 km. On trouve une bibliothèque et une boulangerie à proximité.Son prix de vente est de 251 995 €.Prenez contact avec Laetitia AMIRI (tél : (Numéro supprimé)) pour toute information sur le bien. Maisons de l’Avenir Saint-Carné vous accompagne dans tous vos projets immobiliers et à toutes les étapes de l’achat.
Bobital
TERRAIN ET MAISONVENTE : maison de 4 pièces (83 m²) à BobitalIDÉALEMENT SITUÉE – PROCHE DE DINANMAISON BOIS QUALITATIVE, ECONOMIQUE ET DURABLE, 4 PIÈCES NEUVEÀ vendre : localisée à 18 km de la Manche et à deux pas de Saint-Malo, laissez vous charmer par cette maison de 4 pièces de plain-pied de 83 m², idéalement située dans Bobital (22100). Son intérieur inclut trois chambres, une cuisine et une salle de bains.Le terrain de la propriété s’étend sur 365 m².Cette maison est neuve.La maison est située dans un secteur recherché. L’École Primaire Publique les Acacias se trouve à moins de 10 minutes à pied. Côté transports en commun, il y a les gares Dinan et Corseul-Languenan à moins de 10 minutes en voiture. On trouve un accès à la nationale N176 à 4 km. On trouve une bibliothèque et une boulangerie à proximité.Son prix de vente est de 256 500 €.Prenez contact avec notre agence (AMIRI Laetitia : (Numéro supprimé)) pour toute question sur la maison, sur les modalités de vente ou sur les démarches à suivre.
Bobital
TERRAINVENTE d’un terrain de 261 m² à BobitalIDÉALEMENT SITUÉ – PROCHE DE DINANÀ Bobital (22100) à 18 km de la Manche et à quelques kilomètres de Saint-Malo, imaginez la maison de vos rêves sur ce terrain de 261 m². Dans un secteur recherché, ce terrain idéalement situé est proche des commerces et des écoles. On trouve l’École Primaire Publique les Acacias à moins de 10 minutes à pied. Niveau transports en commun, il y a deux gares (Dinan et Corseul-Languenan) à moins de 10 minutes en voiture. La nationale N176 est accessible à 4 km. On trouve une bibliothèque et une boulangerie dans les environs.Son prix de vente est de 41 300 €. N’hésitez pas à prendre contact avec Laetitia AMIRI ((Numéro supprimé)) pour plus de renseignements sur ce terrain, sur les modalités de vente ou sur les démarches à suivre. Maisons de l’Avenir Saint-Carné est là pour vous accompagner dans tous vos projets immobiliers.
Bobital
TERRAIN ET MAISONBobital : maison T3 (57 m²) à vendreIDÉALEMENT SITUÉE – PROCHE DE DINANMAISON 3 PIÈCES NEUVEÀ 18 km de la Manche et à quelques kilomètres de Saint-Malo, votre agence Maisons de l’Avenir Saint-Carné est heureuse de vous présenter à vendre, idéalement située dans Bobital (22100), cette maison de 3 pièces de plain-pied de 57 m². Son intérieur comporte deux chambres, une cuisine et une salle de bains.Le terrain du bien est de 261 m².Cette maison est neuve.Cette maison se situe dans un quartier recherché. Il y a l’École Primaire Publique les Acacias à moins de 10 minutes à pied. Niveau transports, on trouve deux gares (Dinan et Corseul-Languenan) à moins de 10 minutes en voiture. La nationale N176 est accessible à 4 km. Il y a une bibliothèque et une boulangerie dans les environs.Son prix de vente est de 173 350 €.Contactez Laetitia AMIRI ((Numéro supprimé)) pour tout renseignement sur la maison ou sur les modalités de vente. Maisons de l’Avenir Saint-Carné est là pour vous accompagner à toutes les étapes de votre projet.
L’actualité immobilière à Bobital
27/11/2023
02/11/2023
30/10/2023
20/10/2023
16/10/2023
16/10/2023