Maison à construire à Bobital (22100)
Images
Description
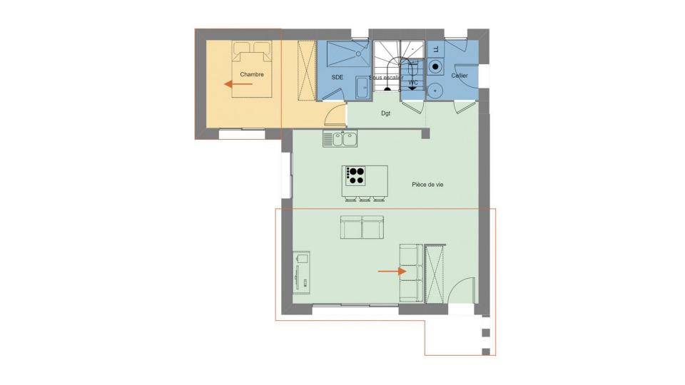
VENTE d'une maison de 4 pièces (94 m²) à Bobital
IDÉALEMENT SITUÉE - PROCHE DE DINAN
MAISON 4 PIÈCES NEUVE
En vente : située à 18 km de la Manche et à quelques kilomètres de Saint-Malo, idéalement située dans Bobital (22100), Maisons de l'Avenir Saint-Carné vous propose cette maison de 4 pièces de 94 m² et de 365 m² de terrain.
Cette maison comporte 2 niveaux. Son intérieur compte trois chambres, une cuisine et deux salles de bains. Cette maison est neuve.
La maison est située dans un quartier attractif. L'École Primaire Publique les Acacias se trouve à moins de 10 minutes à pied. Côté transports en commun, il y a deux gares (Dinan et Corseul-Languenan) à moins de 10 minutes en voiture. La nationale N176 est accessible à 4 km. On trouve une bibliothèque et une boulangerie à proximité.
Son prix de vente est de 251 995 €.
Prenez contact avec Laetitia AMIRI (tél : (Numéro supprimé)) pour toute information sur le bien. Maisons de l'Avenir Saint-Carné vous accompagne dans tous vos projets immobiliers et à toutes les étapes de l'achat.
Logement susceptibles de vous intéresser
Nous vous proposons de découvrir aussi cette sélection de logements situés à moins de 10km de Bobital et qui seraient susceptibles de vous intéresser.
Bobital
TERRAINVENTE : terrain de 365 m² à BobitalIDÉALEMENT SITUÉ – PROCHE DE DINANÀ Bobital (22100) à 18 km de la Manche et à deux pas de Saint-Malo, découvrez ce terrain de 365 m². Dans un quartier recherché, ce terrain idéalement situé est proche des commerces et des écoles. L’École Primaire Publique les Acacias est implantée à moins de 10 minutes à pied. Niveau transports en commun, on trouve deux gares (Dinan et Corseul-Languenan) à moins de 10 minutes en voiture. La nationale N176 est accessible à 4 km. Il y a une bibliothèque et une boulangerie à proximité du terrain.Il est à vendre pour la somme de 57 300 €. Prenez contact avec Laetitia AMIRI (tél : (Numéro supprimé)) pour tout renseignement sur ce terrain. Maisons de l’Avenir Saint-Carné vous accompagne à toutes les étapes de votre projet et dans tous vos projets immobiliers.
Bobital
TERRAIN ET MAISONBobital : maison T3 (56 m²) en venteIDÉALEMENT SITUÉE – PROCHE DE DINANMAISON 3 PIÈCES NEUVEEn vente à 18 km de la Manche et à deux pas de Saint-Malo, idéalement située dans Bobital (22100), nous sommes ravis de vous proposer cette maison de 3 pièces de plain-pied de 56 m² et de 365 m² de terrain.Elle inclut deux chambres, une cuisine et une salle de bains. La maison est neuve.Cette maison est située dans un quartier prisé. L’École Primaire Publique les Acacias est implantée à moins de 10 minutes à pied. Niveau transports en commun, on trouve deux gares (Dinan et Corseul-Languenan) à moins de 10 minutes en voiture. Il y a un accès à la nationale N176 à 4 km. Il y a une bibliothèque et une boulangerie dans les environs.Elle est proposée à l’achat pour 193 400 €.Prenez contact avec Laetitia AMIRI ((Numéro supprimé)) pour plus d’informations sur la maison, sur les modalités de vente ou sur les démarches à suivre. Maisons de l’Avenir Saint-Carné vous accompagne à toutes les étapes de votre projet et dans tous vos projets immobiliers.
Bobital
TERRAIN ET MAISONBobital : maison F4 (88 m²) à vendreIDÉALEMENT SITUÉE – PROCHE DE DINANMAISON 4 PIÈCES NEUVEEn vente : située à 18 km de la Manche et à 27 km de Saint-Malo, ayez le coup de coeur pour cette maison de 4 pièces de 88 m² idéalement située dans Bobital (22100).Cette maison comporte 2 niveaux. Elle offre trois chambres, une cuisine et une salle de bains. Cette maison est neuve.Le terrain de la propriété s’étend sur 365 m².Cette maison est située dans un secteur recherché. L’École Primaire Publique les Acacias se trouve à moins de 10 minutes à pied. Côté transports en commun, il y a deux gares (Dinan et Corseul-Languenan) à moins de 10 minutes en voiture. On trouve un accès à la nationale N176 à 4 km. On trouve une bibliothèque et une boulangerie dans les environs.Son prix de vente est de 209 400 €.Contactez Laetitia AMIRI (tél : (Numéro supprimé)) pour toute question sur la maison ou sur les démarches à suivre. Maisons de l’Avenir Saint-Carné est là pour vous accompagner à toutes les étapes de l’achat.
Bobital
TERRAIN ET MAISONVENTE d’une maison F5 (102 m²) à BobitalIDÉALEMENT SITUÉE – PROCHE DE DINANMAISON 5 PIÈCES NEUVEEn vente : à 18 km de la Manche et à deux pas de Saint-Malo, laissez vous charmer par, idéalement située dans Bobital (22100), cette maison de 5 pièces de 102 m².Cette maison possède 2 niveaux. Son intérieur inclut quatre chambres, une cuisine et deux salles de bains. La maison est neuve.Le terrain de la propriété s’étend sur 365 m².Cette maison se situe dans un quartier prisé. On trouve l’École Primaire Publique les Acacias à moins de 10 minutes à pied. Niveau transports en commun, il y a deux gares (Dinan et Corseul-Languenan) à moins de 10 minutes en voiture. On trouve un accès à la nationale N176 à 4 km. On trouve une bibliothèque et une boulangerie dans les environs.Elle est proposée à l’achat pour 238 800 €.Prenez contact avec notre agence (Laetitia AMIRI : (Numéro supprimé)) pour toute information sur la maison, sur les démarches à suivre ou sur les modalités de vente. Donnez vie à vos projets immobiliers avec Maisons de l’Avenir Saint-Carné.
Bobital
TERRAIN ET MAISONBobital : maison T5 (120 m²) à vendreIDÉALEMENT SITUÉE – PROCHE DE DINANMAISON 5 PIÈCES NEUVEÀ vendre : localisée à 18 km de la Manche et à deux pas de Saint-Malo, nous sommes ravis de vous présenter cette maison de 5 pièces de 120 m² idéalement située dans Bobital (22100). Elle compte quatre chambres, une cuisine et deux salles de bains.Le terrain de la propriété s’étend sur 365 m².Cette maison possède 2 niveaux. Elle est neuve.Cette propriété se trouve dans un secteur prisé. L’École Primaire Publique les Acacias est implantée à moins de 10 minutes à pied. Côté transports, il y a deux gares (Dinan et Corseul-Languenan) à moins de 10 minutes en voiture. On trouve un accès à la nationale N176 à 4 km. On trouve une bibliothèque et une boulangerie dans les environs.Son prix de vente est de 305 850 €.Prenez contact avec Laetitia AMIRI (tél : (Numéro supprimé)) pour toute information sur la maison ou sur les démarches à suivre.
Bobital
TERRAIN ET MAISONVENTE d’une maison de 4 pièces (94 m²) à BobitalIDÉALEMENT SITUÉE – PROCHE DE DINANMAISON 4 PIÈCES NEUVEEn vente : située à 18 km de la Manche et à quelques kilomètres de Saint-Malo, idéalement située dans Bobital (22100), Maisons de l’Avenir Saint-Carné vous propose cette maison de 4 pièces de 94 m² et de 365 m² de terrain.Cette maison comporte 2 niveaux. Son intérieur compte trois chambres, une cuisine et deux salles de bains. Cette maison est neuve.La maison est située dans un quartier attractif. L’École Primaire Publique les Acacias se trouve à moins de 10 minutes à pied. Côté transports en commun, il y a deux gares (Dinan et Corseul-Languenan) à moins de 10 minutes en voiture. La nationale N176 est accessible à 4 km. On trouve une bibliothèque et une boulangerie à proximité.Son prix de vente est de 251 995 €.Prenez contact avec Laetitia AMIRI (tél : (Numéro supprimé)) pour toute information sur le bien. Maisons de l’Avenir Saint-Carné vous accompagne dans tous vos projets immobiliers et à toutes les étapes de l’achat.
Bobital
TERRAIN ET MAISONVENTE : maison de 4 pièces (83 m²) à BobitalIDÉALEMENT SITUÉE – PROCHE DE DINANMAISON BOIS QUALITATIVE, ECONOMIQUE ET DURABLE, 4 PIÈCES NEUVEÀ vendre : localisée à 18 km de la Manche et à deux pas de Saint-Malo, laissez vous charmer par cette maison de 4 pièces de plain-pied de 83 m², idéalement située dans Bobital (22100). Son intérieur inclut trois chambres, une cuisine et une salle de bains.Le terrain de la propriété s’étend sur 365 m².Cette maison est neuve.La maison est située dans un secteur recherché. L’École Primaire Publique les Acacias se trouve à moins de 10 minutes à pied. Côté transports en commun, il y a les gares Dinan et Corseul-Languenan à moins de 10 minutes en voiture. On trouve un accès à la nationale N176 à 4 km. On trouve une bibliothèque et une boulangerie à proximité.Son prix de vente est de 256 500 €.Prenez contact avec notre agence (AMIRI Laetitia : (Numéro supprimé)) pour toute question sur la maison, sur les modalités de vente ou sur les démarches à suivre.
Bobital
TERRAINVENTE d’un terrain de 261 m² à BobitalIDÉALEMENT SITUÉ – PROCHE DE DINANÀ Bobital (22100) à 18 km de la Manche et à quelques kilomètres de Saint-Malo, imaginez la maison de vos rêves sur ce terrain de 261 m². Dans un secteur recherché, ce terrain idéalement situé est proche des commerces et des écoles. On trouve l’École Primaire Publique les Acacias à moins de 10 minutes à pied. Niveau transports en commun, il y a deux gares (Dinan et Corseul-Languenan) à moins de 10 minutes en voiture. La nationale N176 est accessible à 4 km. On trouve une bibliothèque et une boulangerie dans les environs.Son prix de vente est de 41 300 €. N’hésitez pas à prendre contact avec Laetitia AMIRI ((Numéro supprimé)) pour plus de renseignements sur ce terrain, sur les modalités de vente ou sur les démarches à suivre. Maisons de l’Avenir Saint-Carné est là pour vous accompagner dans tous vos projets immobiliers.
Bobital
TERRAIN ET MAISONBobital : maison T3 (57 m²) à vendreIDÉALEMENT SITUÉE – PROCHE DE DINANMAISON 3 PIÈCES NEUVEÀ 18 km de la Manche et à quelques kilomètres de Saint-Malo, votre agence Maisons de l’Avenir Saint-Carné est heureuse de vous présenter à vendre, idéalement située dans Bobital (22100), cette maison de 3 pièces de plain-pied de 57 m². Son intérieur comporte deux chambres, une cuisine et une salle de bains.Le terrain du bien est de 261 m².Cette maison est neuve.Cette maison se situe dans un quartier recherché. Il y a l’École Primaire Publique les Acacias à moins de 10 minutes à pied. Niveau transports, on trouve deux gares (Dinan et Corseul-Languenan) à moins de 10 minutes en voiture. La nationale N176 est accessible à 4 km. Il y a une bibliothèque et une boulangerie dans les environs.Son prix de vente est de 173 350 €.Contactez Laetitia AMIRI ((Numéro supprimé)) pour tout renseignement sur la maison ou sur les modalités de vente. Maisons de l’Avenir Saint-Carné est là pour vous accompagner à toutes les étapes de votre projet.
L’actualité immobilière à Bobital
27/11/2023
02/11/2023
30/10/2023
20/10/2023
16/10/2023
16/10/2023