Maison à construire à Quintin (22800)
Images
Description
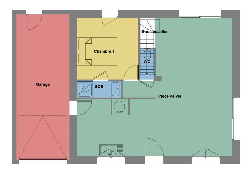
Quintin : maison F6 (119 m²) à vendre
PROCHE DE SAINT-BRIEUC - MAISON 6 PIÈCES NEUVE
À 26 km de la Manche et à quelques kilomètres de Saint-Brieuc, nous vous proposons cette maison de 6 pièces de 119 m² à Quintin (22800). Son intérieur propose cinq chambres, une cuisine et deux salles de bains.
Le terrain de la propriété est de 700 m².
Cette maison comporte 2 niveaux. Elle est neuve.
Il y a des écoles de tous niveaux à moins de 10 minutes à pied. La nationale N12 est accessible à 14 km. On trouve deux tennis, un bassin de natation, des commerces, deux boulangeries, deux supermarchés, une boucherie-charcuterie et un bureau de poste à quelques minutes du bien. Enfin, le marché Centre-Ville a lieu tous les mardis matin.
Son prix de vente est de 303 000 €.
N'hésitez pas à prendre contact avec notre agence (ROGER Samuel : (Numéro supprimé)) pour toute question sur la maison. Maisons de l'Avenir Saint-Brieuc est là pour vous accompagner dans tous vos projets immobiliers.
Logement susceptibles de vous intéresser
Nous vous proposons de découvrir aussi cette sélection de logements situés à moins de 10km de Quintin et qui seraient susceptibles de vous intéresser.
Saint-Brandan
TERRAINTerrain de 476 m² à vendre à Saint-BrandanPROCHE DE SAINT-BRIEUCÀ Saint-Brandan (22800) à vendre à 23 km de la Manche et à quelques kilomètres de Saint-Brieuc, imaginez la maison de vos rêves sur ce terrain de 476 m². Il y a l’École Primaire Privée Sainte Anne et l’École Primaire Publique les Chrysalides à moins de 10 minutes à pied. On trouve un accès à la nationale N12 à 15 km. On trouve une bibliothèque, un tennis, une boulangerie et un commerce à proximité.Il est à vendre pour la somme de 46 900 €. Contactez notre agence (ROGER Samuel : (Numéro supprimé)) pour plus d’informations sur le terrain, sur les modalités de vente ou sur les démarches à suivre. Maisons de l’Avenir Saint-Brieuc est là pour vous accompagner à toutes les étapes de l’achat.
Plaintel
TERRAIN ET MAISONMaison T5 (89 m²) en vente à PlaintelQUARTIER RECHERCHÉ – MAISON 5 PIÈCES NEUVEÀ vendre à 16 km de la Manche et à quelques kilomètres de Saint-Brieuc, nous vous présentons cette maison de 5 pièces de 89 m² et de 452 m² de terrain située dans un quartier recherché de Plaintel (22940). Elle inclut quatre chambres, une cuisine et deux salles de bains.C’est une maison de 2 niveaux. Elle est neuve.La maison est située dans un secteur attractif. L’École Primaire Privée Saint Joseph est implantée à moins de 10 minutes à pied. Côté transports, on trouve la gare La Méaugon à moins de 10 minutes en voiture. Il y a un accès à la nationale N12 à 11 km. Il y a une bibliothèque, deux boulangeries, un commerce, un supermarché, une boucherie-charcuterie et une épicerie à proximité du logement.Elle est à vendre pour la somme de 257 000 €.Contactez notre agence (Samuel ROGER : (Numéro supprimé)) pour toute question sur la maison ou sur les modalités de vente. Maisons de l’Avenir Saint-Brieuc est là pour vous accompagner à toutes les étapes de votre projet.
Plaintel
TERRAINVENTE d’un terrain de 452 m² à PlaintelQUARTIER RECHERCHÉ – PROCHE DE SAINT-BRIEUCTerrain de 452 m² à vendre à 16 km de la Manche et à 12 km de Saint-Brieuc. Ce terrain se situe situé dans un secteur prisé de Plaintel (22940). Il y a l’École Primaire Privée Saint Joseph à moins de 10 minutes à pied. Niveau transports en commun, on trouve la gare La Méaugon à moins de 10 minutes en voiture. La nationale N12 est accessible à 11 km. Il y a une bibliothèque, deux boulangeries, un commerce, un supermarché, une boucherie-charcuterie et une épicerie dans les environs.Son prix de vente est de 63 000 €. N’hésitez pas à prendre contact avec Samuel ROGER ((Numéro supprimé)) pour toute information sur ce terrain. Donnez vie à vos projets immobiliers avec Maisons de l’Avenir Saint-Brieuc.
Plaintel
TERRAIN ET MAISONVENTE d’une maison F5 (131 m²) à PlaintelQUARTIER RECHERCHÉ – MAISON 5 PIÈCES NEUVEEn vente à 16 km de la Manche et à 12 km de Saint-Brieuc, nous vous présentons cette maison de 5 pièces de plain-pied de 131 m² et de 452 m² de terrain, dans un secteur recherché de Plaintel (22940).Son intérieur propose quatre chambres, une cuisine et deux salles de bains. Cette maison est neuve.Cette maison se trouve dans un quartier prisé. L’École Primaire Privée Saint Joseph est implantée à moins de 10 minutes à pied. Niveau transports en commun, il y a la gare La Méaugon à moins de 10 minutes en voiture. Il y a un accès à la nationale N12 à 11 km. On trouve une bibliothèque, deux boulangeries, un commerce, un supermarché, une épicerie et une boucherie-charcuterie à proximité.Elle est proposée à l’achat pour 347 000 €.N’hésitez pas à prendre contact avec Samuel ROGER (tél : (Numéro supprimé)) pour tout renseignement sur la propriété ou sur les modalités de vente.
Plaintel
TERRAIN ET MAISONVENTE : maison F4 (85 m²) à PlaintelQUARTIER RECHERCHÉ – MAISON 4 PIÈCES NEUVEÀ vendre : située à 16 km de la Manche et à 12 km de Saint-Brieuc, nous sommes heureux de vous présenter cette maison de 4 pièces de 85 m² dans un secteur attractif de Plaintel (22940).Cette maison possède 2 niveaux. Elle offre trois chambres, une cuisine et une salle de bains. Cette maison est neuve.Le terrain de la propriété est de 452 m².Cette propriété se trouve dans un quartier recherché. Il y a l’École Primaire Privée Saint Joseph à moins de 10 minutes à pied. Côté transports, on trouve la gare La Méaugon à moins de 10 minutes en voiture. La nationale N12 est accessible à 11 km. Il y a une bibliothèque, deux boulangeries, un commerce, un supermarché, une boucherie-charcuterie et une épicerie à quelques minutes du logement.Elle est proposée à l’achat pour 223 000 €.Contactez Samuel ROGER ((Numéro supprimé)) pour toute information sur la maison ou sur les démarches à suivre.
Lanfains
TERRAINVotre conseiller immobilier Noovimo (Email supprimé) vous propose : Magnifique terrain non viabilisé de 1570 m2 situé à proximité immédiate du bourg de LANFAINS. La parcelle est entièrement constructible pour deux lots. Le terrain est au calme et facilement aménageable. Les réseaux se trouvent à proximité. Prix de vente 45 000 EUR + 3800 EUR d’honoraires. Soit 48 800 EUR honoraires inclus. Honoraires à la charge de l’acquéreur. Nos honoraires sont consultables sur : (Site supprimé). Votre agent commercial inscrit au RSAC de Saint brieuc No RSAC 818 058166. ‘Les informations sur les risques auxquels ce bien est exposé sont disponibles sur le site Géorisques (Lien supprimé)’ Pour voir toutes mes annonces : (Lien supprimé) />Cette annonce vous est proposée par OLIVIER Philippe – – NoRSAC: 818058166, Enregistré à Greffe du tribunal de commerce de SAINT BRIEUC – Annonce rédigée et publiée par un Agent Mandataire –
Quintin
TERRAIN ET MAISONVENTE d’une maison de 4 pièces (100 m²) à QuintinPROCHE DE SAINT-BRIEUC – MAISON 4 PIÈCES NEUVEÀ vendre à 26 km de la Manche et à 16 km de Saint-Brieuc, venez découvrir cette maison de 4 pièces de 100 m² et de 700 m² de terrain à Quintin (22800). Son intérieur se divise en quatre chambres, une cuisine et deux salles de bains.C’est une maison de 2 niveaux. Elle est neuve.On trouve des établissements scolaires (de la maternelle au lycée) à moins de 10 minutes à pied. La nationale N12 est accessible à 14 km. Il y a deux tennis, un bassin de natation, des commerces, deux boulangeries, deux supermarchés, une boucherie-charcuterie et une épicerie à proximité du bien. Ne manquez pas le marché Centre-Ville tous les mardis matin.Son prix de vente est de 265 000 €.N’hésitez pas à prendre contact avec Samuel ROGER (tél : (Numéro supprimé)) pour toute question sur cette maison, sur les modalités de vente ou sur les démarches à suivre. Concrétisez vos projets immobiliers avec Maisons de l’Avenir Saint-Brieuc.
Quintin
TERRAIN ET MAISONVENTE : maison de 3 pièces (85 m²) à QuintinPROCHE DE SAINT-BRIEUC – MAISON 3 PIÈCES NEUVEÀ 26 km de la Manche et à deux pas de Saint-Brieuc, en vente à Quintin (22800), notre agence Maisons de l’Avenir Saint-Brieuc est ravie de vous présenter cette maison de 3 pièces de plain-pied de 85 m².Elle offre deux chambres, une cuisine et une salle de bains. La maison est neuve.Le terrain de la propriété s’étend sur 700 m².On trouve tous les types d’écoles (de la maternelle au lycée) à moins de 10 minutes à pied. Il y a un accès à la nationale N12 à 14 km. Il y a deux tennis, un bassin de natation, des commerces, deux boulangeries, deux supermarchés, une épicerie et un bureau de poste dans les environs. Le marché Centre-Ville anime les environs chaque mardi matin.Son prix de vente est de 235 000 €.N’hésitez pas à prendre contact avec notre constructeur (Samuel ROGER : (Numéro supprimé)) pour plus d’informations sur la maison, sur les modalités de vente et sur les démarches à suivre. Maisons de l’Avenir Saint-Brieuc vous accompagne dans tous vos projets immobiliers et dans toutes vos démarches.
Quintin
TERRAINVENTE d’un terrain de 700 m² à QuintinPROCHE DE SAINT-BRIEUCEn vente à 26 km de la Manche et à quelques kilomètres de Saint-Brieuc à Quintin (22800), grand terrain. Il est prêt à accueillir la maison de vos rêves pour toute la famille. Il y a des écoles (de la maternelle au lycée) à moins de 10 minutes à pied. La nationale N12 est accessible à 14 km. On trouve deux tennis, un bassin de natation, des commerces, deux boulangeries, deux supermarchés, une épicerie et une boucherie-charcuterie à proximité de la propriété. Le marché Centre-Ville a lieu tous les mardis matin.Ce terrain est à vendre pour la somme de 65 000 €. Contactez notre agence (ROGER Samuel : (Numéro supprimé)) pour plus de renseignements sur ce terrain et sur les démarches à suivre. Maisons de l’Avenir Saint-Brieuc est là pour vous accompagner dans tous vos projets immobiliers.
L’actualité immobilière à Quintin
27/11/2023
02/11/2023
30/10/2023
20/10/2023
16/10/2023
16/10/2023