Maison à construire à La Douze (24330)
Images
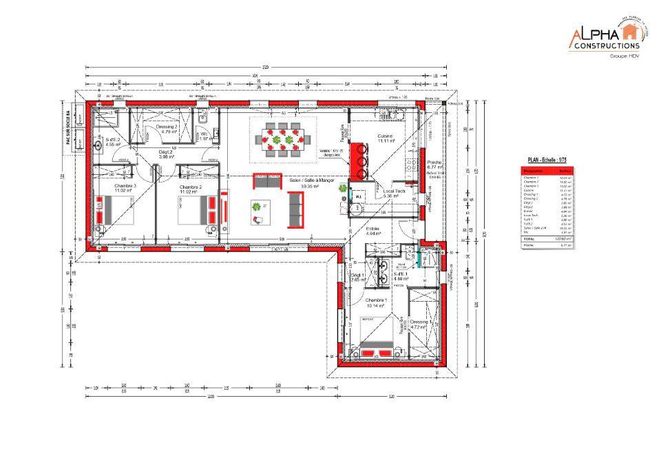
Description
À seulement quelques kilomètres de Périgueux, découvrez ce projet de construction proposé par Alpha Constructions Boulazac Isle Manoire : une maison de plain-pied de 120 m², sur un terrain de 926 m², idéalement située dans un secteur recherché et paisible à La Douze.
Cette maison moderne et fonctionnelle offre :
3 chambres spacieuses
1 cuisine ouverte sur un grand séjour
2 salles d'eau
Des prestations de qualité et une belle luminosité
Proximité immédiate des écoles
Autoroute A89 à seulement 11 km
Commodités à proximité : bibliothèque, boulangerie, commerces
Pour en savoir plus sur ce projet ou vous faire accompagner dans vos démarches, contactez Blandine LEYMARIE au (Numéro supprimé).
Alpha Constructions Boulazac Isle Manoire vous accompagne à chaque étape de votre projet de vie !
Logement susceptibles de vous intéresser
Nous vous proposons de découvrir aussi cette sélection de logements situés à moins de 10km de La Douze et qui seraient susceptibles de vous intéresser.
La Douze
TERRAINSitué à La Douze (24330), ce terrain plat de 1840m² sans vis-à-vis et sélectionné parmi notre large gamme d’une bonne centaine de terrains disponibles à la vente actuellement, offre un cadre paisible au cœur de la campagne à seulement 2mn du bourg. Cette charmante commune Périgordine, réputée pour son environnement préservé et sa douceur de vivre, bénéficie d’une proximité avec la nature, idéale pour les amoureux de tranquillité. De plus, La Douze se trouve à quelques kilomètres des commerces locaux et des écoles, offrant ainsi un équilibre entre sérénité rurale et commodités urbaines.Le terrain de 1840m², entièrement constructible, représente une opportunité exceptionnelle en Dordogne pour concrétiser un projet de construction selon ses propres aspirations. Sa surface offre une belle liberté de conception pour une maison sur mesure, entourée d’un vaste jardin ou d’aménagements extérieurs selon les envies de l’acquéreur. Doté d’un fort potentiel, ce terrain permet d’envisager la construction d’une résidence principale ou secondaire, en harmonie avec l’environnement verdoyant de La Douze.Les informations sur les risques auxquels ce bien est exposé sont disponibles sur le site Géorisques : www.georisques.gouv.frPrix de vente : 33 500 €Honoraires charge vendeurContactez votre consultant megAgence : Pascal SAUVALLE, Tél. : (Numéro supprimé), E-mail : (Email supprimé) – EI – Agent commercial immatriculé au RSAC de PERIGUEUX sous le numéro 390 877 660
Lacropte
TERRAINMagnifique terrain plat et entièrement constructible sur la commune de Lacropte proche de La Douze , idéal pour un projet de construction . N’hésitez pas à me contacter au (Numéro supprimé) Grenouillet Nicolas Construction Horizontale Périgueux
La Douze
TERRAINLa Douze : terrain de 2 000 m² en venteIDÉALEMENT SITUÉ – PROCHE DE PÉRIGUEUXÀ quelques kilomètres de Périgueux à La Douze (24330), grand terrain. Il est prêt à accueillir votre résidence principale ou secondaire pour toute la famille. Ce terrain, orienté au sud, donne sur un espace vert. Une école primaire est implantée dans le quartier. Niveau transports en commun, il y a quatre gares à moins de 10 minutes en voiture. Il y a un accès à l’autoroute A89 à 11 km. On trouve une bibliothèque et une boulangerie dans les environs.Son prix de vente est de 30 000 €. Contactez notre agence (Bruno VERGNAUD : (Numéro supprimé)) pour obtenir de plus amples informations sur le terrain, sur les démarches à suivre et sur les modalités de vente. Maisons de la Côte Atlantique Notre Dame de Sanilhac vous accompagne à toutes les étapes de votre projet et dans tous vos projets immobiliers.
La Douze
TERRAIN ET MAISONVENTE d’une maison T7 (111 m²) à La DouzeIDÉALEMENT SITUÉE – MAISON 7 PIÈCES NEUVEÀ vendre : localisée à quelques kilomètres de Périgueux, ayez le coup de coeur pour cette maison de 7 pièces de plain-pied de 111 m² et de 2 000 m² de terrain idéalement située dans La Douze (24330). Elle se divise en quatre chambres, une cuisine et deux salles de bains.Cette maison est neuve.La maison est située dans un secteur convoité. Une école primaire y est implantée. Niveau transports en commun, on trouve quatre gares à moins de 10 minutes en voiture. On trouve un accès à l’autoroute A89 à 11 km. Il y a une bibliothèque et une boulangerie à quelques minutes du bien.Elle est proposée à l’achat pour 249 770 €.Prenez contact avec Bruno VERGNAUD ((Numéro supprimé)) pour tout renseignement sur la maison.
La Douze
TERRAIN ET MAISONVENTE : maison F6 (69 m²) à La DouzeIDÉALEMENT SITUÉE – MAISON 6 PIÈCES NEUVEEn vente : située à deux pas de Périgueux, nous sommes ravis de vous présenter cette maison de 6 pièces de plain-pied de 69 m² idéalement située dans La Douze (24330). Son intérieur est composé de quatre chambres, d’une cuisine et de deux salles de bains.Le terrain du bien s’étend sur 2 000 m².Cette maison est neuve.Ce bien est situé dans un secteur recherché. On y trouve une école primaire. Côté transports, on trouve quatre gares à moins de 10 minutes en voiture. Il y a un accès à l’autoroute A89 à 11 km. Il y a une bibliothèque et une boulangerie à quelques minutes du logement.Il est à vendre pour la somme de 243 630 €.N’hésitez pas à prendre contact avec notre agence (VERGNAUD Bruno : (Numéro supprimé)) pour toute information sur la maison, sur les modalités de vente et sur les démarches à suivre.
La Douze
TERRAIN ET MAISONVENTE d’une maison de 4 pièces (90 m²) à La DouzeIDÉALEMENT SITUÉE – MAISON 4 PIÈCES NEUVEEn vente : à 18 km de Périgueux, idéalement située dans La Douze (24330), Maisons de la Côte Atlantique Notre Dame de Sanilhac vous propose cette maison de 4 pièces de plain-pied de 90 m².Son intérieur dispose de deux chambres, d’une cuisine et d’une salle de bains. Cette maison est neuve.Le terrain de la propriété est de 2 000 m².La maison se trouve dans un quartier prisé. Une école primaire y est implantée. Côté transports en commun, il y a quatre gares à moins de 10 minutes en voiture. On trouve un accès à l’autoroute A89 à 11 km. On trouve une bibliothèque et une boulangerie dans les environs.Elle est proposée à l’achat pour 197 730 €.Contactez Bruno VERGNAUD (tél : (Numéro supprimé)) pour toute information sur la propriété, sur les modalités de vente ou sur les démarches à suivre.
La Douze
TERRAINÀ seulement quelques kilomètres de Périgueux, découvrez ce projet de construction proposé par Alpha Constructions Boulazac Isle Manoire : une maison de plain-pied de 120 m², sur un terrain de 926 m², idéalement située dans un secteur recherché et paisible à La Douze.Cette maison moderne et fonctionnelle offre :3 chambres spacieuses1 cuisine ouverte sur un grand séjour2 salles d’eauDes prestations de qualité et une belle luminositéProximité immédiate des écolesAutoroute A89 à seulement 11 kmCommodités à proximité : bibliothèque, boulangerie, commercesPour en savoir plus sur ce projet ou vous faire accompagner dans vos démarches, contactez Blandine LEYMARIE au (Numéro supprimé).Alpha Constructions Boulazac Isle Manoire vous accompagne à chaque étape de votre projet de vie !
La Douze
TERRAIN ET MAISONÀ seulement quelques kilomètres de Périgueux, découvrez ce projet de construction proposé par Alpha Constructions Boulazac Isle Manoire : une maison de plain-pied de 120 m², sur un terrain de 926 m², idéalement située dans un secteur recherché et paisible à La Douze.Cette maison moderne et fonctionnelle offre :3 chambres spacieuses1 cuisine ouverte sur un grand séjour2 salles d’eauDes prestations de qualité et une belle luminositéProximité immédiate des écolesAutoroute A89 à seulement 11 kmCommodités à proximité : bibliothèque, boulangerie, commercesPour en savoir plus sur ce projet ou vous faire accompagner dans vos démarches, contactez Blandine LEYMARIE au (Numéro supprimé).Alpha Constructions Boulazac Isle Manoire vous accompagne à chaque étape de votre projet de vie !
La Douze
TERRAIN ET MAISONÀ seulement quelques kilomètres de Périgueux, découvrez ce projet de construction proposé par Alpha Constructions Boulazac Isle Manoire : une maison de plain-pied de 120 m², sur un terrain de 926 m², idéalement située dans un secteur recherché et paisible à La Douze.Cette maison moderne et fonctionnelle offre :3 chambres spacieuses1 cuisine ouverte sur un grand séjour2 salles d’eauDes prestations de qualité et une belle luminositéProximité immédiate des écolesAutoroute A89 à seulement 11 kmCommodités à proximité : bibliothèque, boulangerie, commercesPour en savoir plus sur ce projet ou vous faire accompagner dans vos démarches, contactez Blandine LEYMARIE au (Numéro supprimé).Alpha Constructions Boulazac Isle Manoire vous accompagne à chaque étape de votre projet de vie !
L’actualité immobilière à La Douze
27/11/2023
02/11/2023
30/10/2023
20/10/2023
16/10/2023
16/10/2023