Images
Description
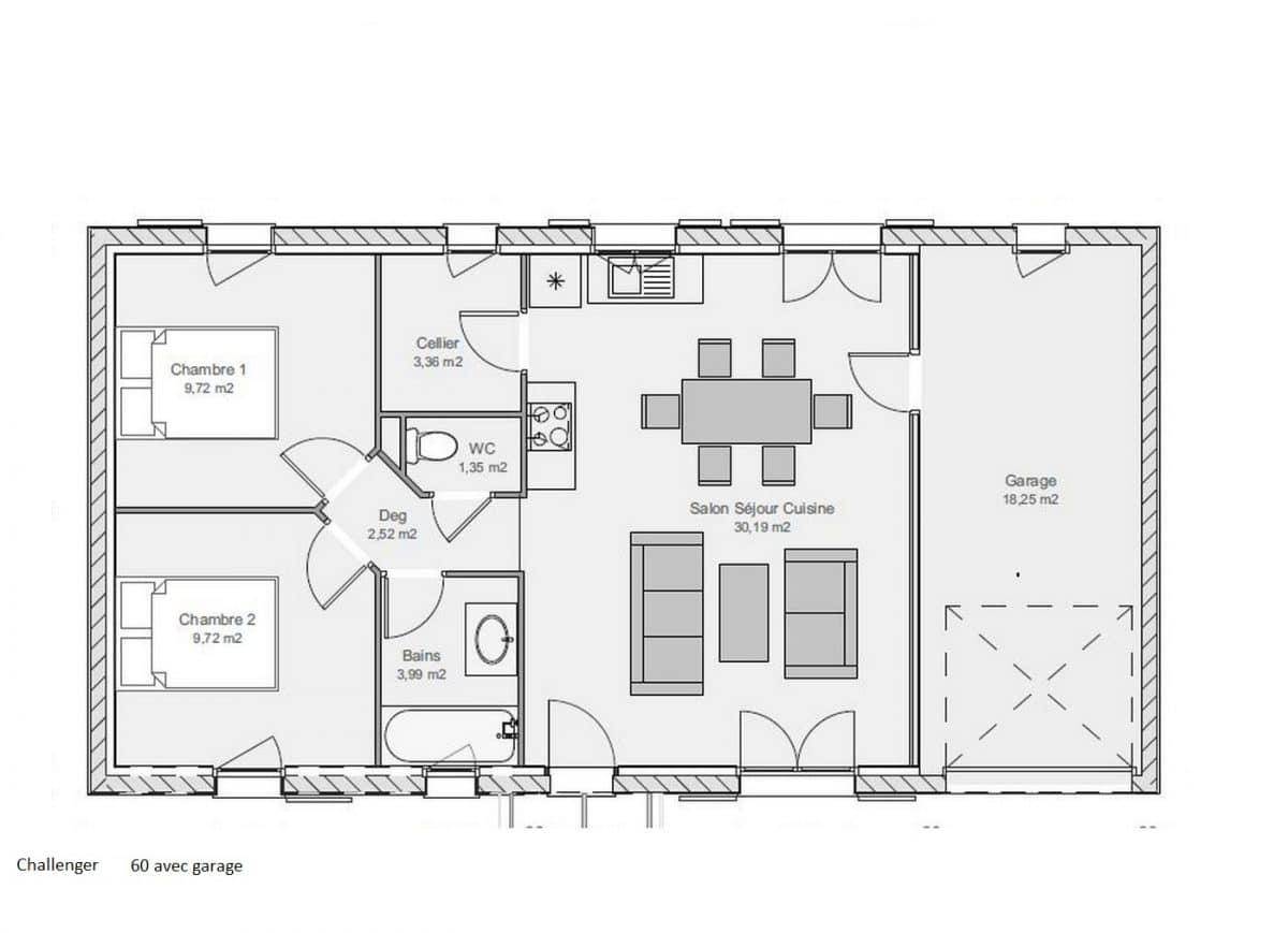
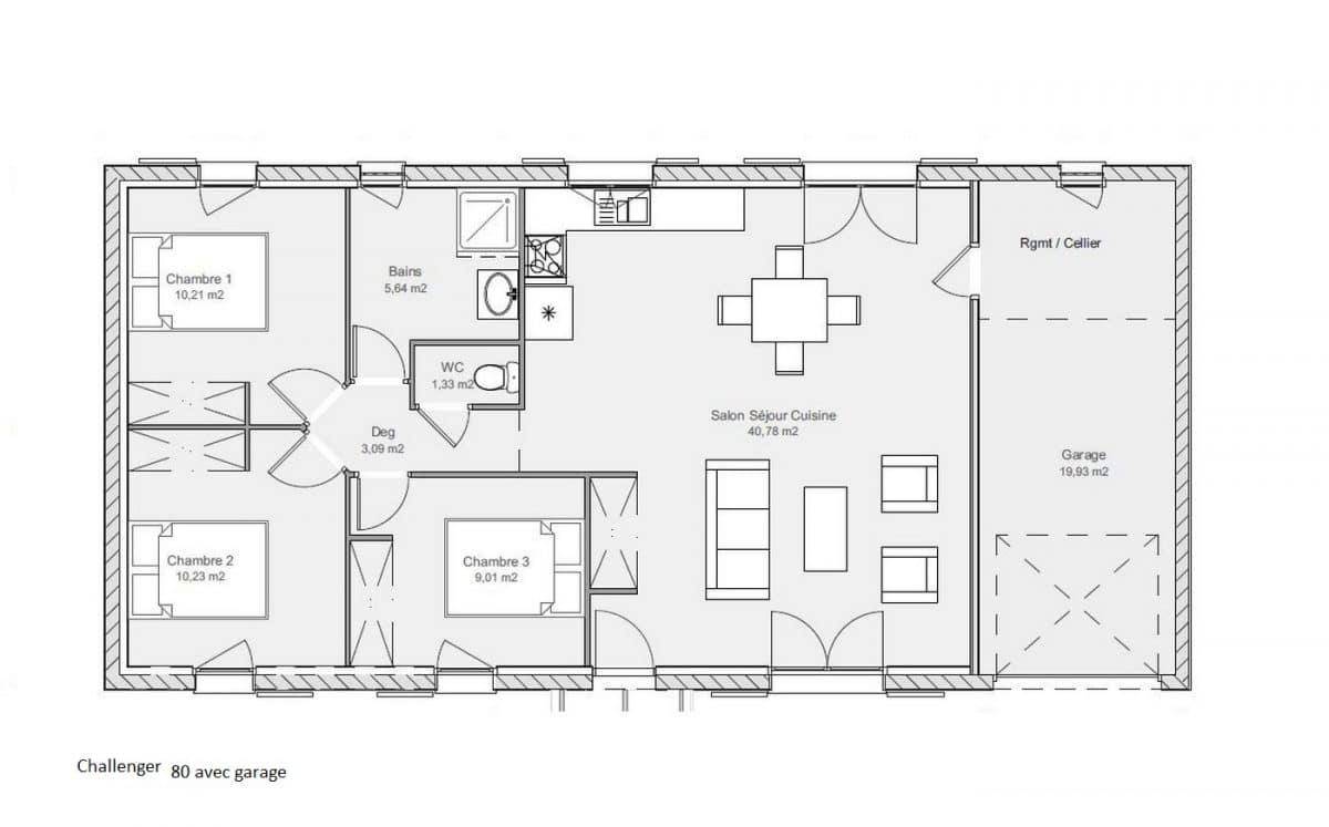
Sur ce terrain, nous vous proposons cette maison neuve : le modèle Challenger, spécialement conçu pour les primo-accédants ou les couples souhaitant bénéficier du meilleur rapport qualité/prix du marché. Avec une surface de 80 m², cette maison dispose de 3 chambres et de 4 pièces, offrant un intérieur confortable et séduisant. Un très pratique garage intégré est également inclus
Construite par Maisons Omega, détenteur du label Maisons de Qualité, cette demeure neuve est parfaite pour bien débuter dans la vie. La Challenger se distingue par ses formes simples et son intérieur accueillant. Vous y trouverez une cuisine ouverte sur un salon-séjour lumineux grâce à ses grandes portes-fenêtres, assurant une belle luminosité tout au long de la journée.
Cette maison neuve est également conforme à la RE2020, garantissant une basse consommation énergétique. Vous pourrez ainsi profiter d'un confort optimal tout en réalisant des économies sur vos factures d'énergie. De plus, son aspect extérieur moderne, avec des façades en enduit coloré et des volets roulants, ne manquera pas de vous séduire.
Les options les plus demandées par nos clients, telles que l'enduit coloré et les volets roulants, sont disponibles pour personnaliser votre maison selon vos envies et votre budget.
Vous êtes conquis par cette maison à petit prix et basse consommation ? Contactez-nous dès maintenant pour en savoir plus et discuter de votre projet avec nos experts.
Logement susceptibles de vous intéresser
Nous vous proposons de découvrir aussi cette sélection de logements situés à moins de 10km de Mensignac et qui seraient susceptibles de vous intéresser.
Chancelade
TERRAINÀ Chancelade, dans un quartier résidentiel calme et recherché, je vous propose ce beau terrain constructible d’environ 1800 m² au prix attractif de 80 000 €. Plat, bien exposé et parfaitement situé, il offre un cadre de vie idéal pour ceux qui souhaitent profiter de la tranquillité tout en restant à deux pas de Périgueux. Chancelade est une commune très appréciée pour sa qualité de vie : commerces, écoles, maison de santé, transports, infrastructures sportives, proximité immédiate de la zone commerciale de Marsac et d’Auchan… Tout se fait facilement, tout est accessible rapidement. C’est l’endroit parfait pour un premier achat, un jeune couple, une famille ou encore un projet de plain-pied pour une retraite sereine. Ce terrain vous permettra d’imaginer un projet harmonieux, adapté à vos envies. Comme toujours, je peux vous proposer gratuitement une étude complète maison + terrain : visuels, budget détaillé, implantation optimisée en fonction de la configuration de la parcelle et de votre mode de vie.
Chancelade
TERRAINÀ Chancelade, dans un quartier résidentiel calme et recherché, je vous propose ce beau terrain constructible d’environ 2500 m² au prix attractif de 50 000 €. Plat, bien exposé et parfaitement situé, il offre un cadre de vie idéal pour ceux qui souhaitent profiter de la tranquillité tout en restant à deux pas de Périgueux. Chancelade est une commune très appréciée pour sa qualité de vie : commerces, écoles, maison de santé, transports, infrastructures sportives, proximité immédiate de la zone commerciale de Marsac et d’Auchan… Tout se fait facilement, tout est accessible rapidement. C’est l’endroit parfait pour un premier achat, un jeune couple, une famille ou encore un projet de plain-pied pour une retraite sereine. Ce terrain vous permettra d’imaginer un projet harmonieux, adapté à vos envies. Comme toujours, je peux vous proposer gratuitement une étude complète maison + terrain : visuels, budget détaillé, implantation optimisée en fonction de la configuration de la parcelle et de votre mode de vie.
Chancelade
TERRAIN ET MAISONSur ce terrain, nous vous proposons cette maison neuve : le modèle traditionnel Lanquais, une maison qui va vous plaire.Le modèle Lanquais est une demeure de plain-pied tout en longueur, avec un joli toit à deux pans et des volets traditionnels. C’est une maison parfaite pour accueillir une petite famille confortablement.Cette habitation vous propose une surface habitable de 87 m² sur un niveau. Vous y disposerez de trois jolies chambres réunies autour d’un dégagement, avec la salle de bains et des w.c. séparés. Du côté de l’espace jour, un grand séjour-cuisine ouverte vous permettra de vous sentir totalement à l’aise.Cette maison vous séduira par son côté fonctionnel, mais également par sa belle terrasse couverte par un porche. Autre détail sympathique et surtout pratique, la porte d’entrée protégée par une avancée de toit.Maisons Omega, constructeur reconnu et détenteur du label Maisons de Qualité, vous propose cette maison neuve basse consommation, conforme à la RE2020. Profitez des options les plus demandées par nos clients : volets roulants et baies vitrées, pour un confort optimal et une luminosité exceptionnelle.Si c’est le modèle dont vous rêvez, contactez-nous pour avoir plus de détails sur cette habitation et en poser la première pierre au plus vite.
Saint-Astier
TERRAINSitué à l’écart de la charmante ville de Saint-Astier (24110), ce terrain plat de 2425m² offre une superbe vue sur la campagne environnante au coeur d’un cadre paisible et attractif pour envisager la construction de votre future résidence. Saint-Astier bénéficie d’un environnement préservé, propice à la détente et à la vie en plein air. La commune dispose de tous les services essentiels à proximité, favorisant un quotidien pratique et agréable. De plus, sa position géographique avantageuse permet un accès aisé en 3mn, aux commerces, écoles et transports en commun, offrant ainsi un cadre de vie idéal en Dordogne.D’une surface de 2425m², ce terrain entièrement constructible offre une belle opportunité d’aménagement selon vos besoins et préférences. Sa taille généreuse permet d’envisager la réalisation d’un projet résidentiel spacieux et personnalisé, dans un environnement calme et verdoyant. Bénéficiant d’une localisation stratégique, ce terrain représente un investissement attractif pour toute personne souhaitant concrétiser un projet de construction sur mesure, au sein d’une commune dynamique et accueillante.Les informations sur les risques auxquels ce bien est exposé sont disponibles sur le site Géorisques : www.georisques.gouv.frPrix de vente : 42 000 €Honoraires charge vendeurContactez votre consultant megAgence : Pascal SAUVALLE, Tél. : (Numéro supprimé), E-mail : (Email supprimé) – EI – Agent commercial immatriculé au RSAC de PERIGUEUX sous le numéro 390 877 660
Chancelade
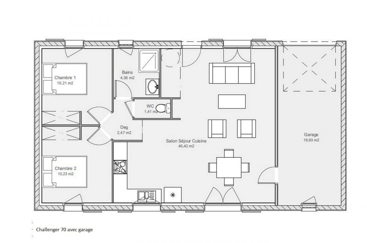
TERRAIN ET MAISONSur ce terrain, nous vous proposons cette maison neuve, modèle Langon, construite par Maisons Omega, détenteur du label Maisons de Qualité. Superbe maison à étages de caractère, le modèle Langon est un modèle familial par excellence, qui s’adaptera facilement à votre mode de vie. Avec une surface de 117 m², cette demeure offre 4 pièces, dont 3 chambres, et se distingue par ses lignes géométriques et son design pratique.La Langon est une demeure carrée imposante, aux façades bi-tons avec modénatures. Son garage accolé avec toiture séparée donne juste ce qu’il faut d’asymétrie. À l’intérieur, on est agréablement surpris ! Un rez-de-chaussée presque entièrement dédié à la grande pièce à vivre avec cuisine ouverte nous accueille. Ses larges ouvertures font entrer généreusement la lumière. Ce niveau comprend également un cellier et des w.c.L’étage, quant à lui, est totalement alloué à l’espace privé, chambres et sanitaires. Deux chambres, une salle de bains avec w.c. séparés d’une part et une belle suite parentale assortie d’un dressing et d’une salle d’eau privative d’autre part. C’est le confort parfait !Cette maison neuve est basse consommation et conforme à la RE2020, garantissant une performance énergétique optimale. De plus, les options les plus demandées par les clients, telles que les menuiseries en aluminium, sont disponibles pour ce modèle.N’attendez plus pour découvrir cette maison familiale et écoresponsable qui saura répondre à toutes vos attentes.
Chancelade
TERRAINÀ Chancelade, dans un quartier résidentiel calme et recherché, je vous propose ce beau terrain constructible d’environ 1 000 m² au prix attractif de 37 000 €. Plat, bien exposé et parfaitement situé, il offre un cadre de vie idéal pour ceux qui souhaitent profiter de la tranquillité tout en restant à deux pas de Périgueux. Chancelade est une commune très appréciée pour sa qualité de vie : commerces, écoles, maison de santé, transports, infrastructures sportives, proximité immédiate de la zone commerciale de Marsac et d’Auchan… Tout se fait facilement, tout est accessible rapidement. C’est l’endroit parfait pour un premier achat, un jeune couple, une famille ou encore un projet de plain-pied pour une retraite sereine. Ce terrain vous permettra d’imaginer un projet harmonieux, adapté à vos envies. Comme toujours, je peux vous proposer gratuitement une étude complète maison + terrain : visuels, budget détaillé, implantation optimisée en fonction de la configuration de la parcelle et de votre mode de vie.
Razac-sur-l'Isle
TERRAINA seulement 20 euros le m², découvrez ce superbe terrain constructible de 2 006 m² ? une opportunité exceptionnelle pour lancer votre projet de construction dès le printemps? ou même avant !Idéalement situé à deux pas du bourg, ce terrain offre un cadre pratique, agréable et parfaitement adapté à la réalisation d’une grande maison familiale, d’un projet avec dépendances ou d’un aménagement paysager de qualité.Légèrement pentu et orienté ouest, bien proportionné et bénéficiant d’une belle exposition, il constitue un environnement privilégié pour bâtir sereinement.Les atouts du terrain :Très grande superficie de 2 006 m², laissant place à de multiples aménagementsEnvironnement paisible, au coeur d’une nature préservéeA 8 minutes de l’autoroute et 10 minutes de Périgueux, un emplacement stratégiqueProche des commerces, écoles, boulangerie et servicesGare accessible, idéale pour vos déplacementsRaccordable au tout-à-l’égout, un confort moderne appréciableRéseaux proches, facilitant la viabilisationBien rare sur le secteur, difficile à trouver dans cette partie prisée de la vallée de l’Isle« Sur une superficie de 2 006 m², ce terrain offre la possibilité d’envisager un projet d’environ 200 à 280 m² de surface de construction (maison + annexes), sous réserve de validation par les services d’urbanisme.L’étude géotechnique G1 déjà réalisée confirme la constructibilité du terrain, permettant d’aborder votre projet sereinement.Son accès par une impasse, la présence immédiate des réseaux et l’absence d’obstacle particulier à la construction en font une parcelle idéale pour concevoir une habitation confortable et bien intégrée. »Pour tout renseignement ou pour organiser une visite, contactez-moi dès maintenant.Pour visiter et vous accompagner dans votre projet, contactez Eric CLAMENS, au (Numéro supprimé) ou, par courriel à (Email supprimé). Selon l’article L.561.5 du Code Monétaire et Financier, pour l’organisation de la visite, la présentation d’une pièce d’identité vous sera demandée. Cette annonce a été réalisée sous la responsabilité éditoriale de Eric CLAMENS agissant en qualité de conseiller immobilier indépendant sous portage salarial auprès de SAS PROPRIETES PRIVEES, au capital de 44 920 euros, ZAC LE CHÊNE FERRÉ – 44 ALLÉE DES CINQ CONTINENTS 44120 VERTOU; SIRET 487 624 777 00040, RCS Nantes. Carte Professionnelle Transactions sur immeubles et fonds de commerce (T) et Gestion immobilière (G) n°CPI 4401 2016 000 010 388 délivrée par la CCI Nantes – Saint Nazaire. Compte séquestre n(Numéro supprimé)67 BPA SAINT-SEBASTIEN-SUR-LOIRE (44230). Garantie GALIAN-SMABTP – 89 rue de la Boétie, 75008 Paris – n°28137 J pour 2 000 000 euros pour T et 120 000 euros pour G. Assurance responsabilité civile professionnelle par GALIAN-SMABTP n° de police 28137.J Mandat réf : 431654. – Le professionnel garantit et sécurise votre projet immobilier.Prix de vente : 44 000 Euros HAI (honoraires inclus de 4 000Euros TTC à charge de l’acquéreur soit 10 % soit 40 000 Euros hors honoraires). (10.00 % honoraires TTC à la charge de l’acquéreur.)Les informations sur les risques auxquels ce bien est exposé sont disponibles sur le site Géorisques : www. georisques. gouv. fr
Chancelade
TERRAIN ET MAISONSur ce terrain, nous vous proposons cette maison neuve : le modèle Challenger, spécialement conçu pour les primo-accédants ou les couples souhaitant bénéficier du meilleur rapport qualité/prix du marché. Avec une surface de 80 m², cette maison dispose de 3 chambres et de 4 pièces, offrant un intérieur confortable et séduisant.Construite par Maisons Omega, détenteur du label Maisons de Qualité, cette demeure neuve est parfaite pour bien débuter dans la vie. La Challenger se distingue par ses formes simples et son intérieur accueillant. Vous y trouverez une cuisine ouverte sur un salon-séjour lumineux grâce à ses grandes portes-fenêtres, assurant une belle luminosité tout au long de la journée.Cette maison neuve est également conforme à la RE2020, garantissant une basse consommation énergétique. Vous pourrez ainsi profiter d’un confort optimal tout en réalisant des économies sur vos factures d’énergie. De plus, son aspect extérieur moderne, avec des façades en enduit coloré et des volets roulants, ne manquera pas de vous séduire.Les options les plus demandées par nos clients, telles que l’enduit coloré et les volets roulants, sont disponibles pour personnaliser votre maison selon vos envies et votre budget. Vous êtes conquis par cette maison à petit prix et basse consommation ? Contactez-nous dès maintenant pour en savoir plus et discuter de votre projet avec nos experts.
Lisle
TERRAINÀ Lisle, charmant village dynamique de Dordogne, je vous propose un superbe terrain constructible de 2 450 m², au prix exceptionnel de 30 000 €, une véritable opportunité dans le secteur. Situé à moins de 500 mètres du bourg, vous profitez de toutes les commodités à pied : école, épicerie, boulangerie, boucherie, pharmacie, espace santé… tout en bénéficiant d’un environnement calme, agréable et non isolé, un équilibre que recherchent aujourd’hui la majorité des acquéreurs. Le terrain est plat, bien exposé, parfait pour une maison lumineuse et moderne. Il dispose d’un Certificat d’Urbanisme, du tout-à-l’égout déjà présent sur la parcelle, ainsi que d’une étude de sol G1, ce qui sécurise totalement votre projet et vous évite des frais supplémentaires. C’est un grand terrain, rare à ce prix, qui permet d’imaginer un projet confortable, fonctionnel et adapté à votre style de vie. Si vous souhaitez vous projeter plus facilement, je peux vous proposer gratuitement une étude complète maison + terrain, avec visualisation 3D, plan personnalisé, et budget global détaillé. Mon objectif est que vous puissiez avancer sereinement, avec une vision claire de votre futur projet. Pour toute question ou pour me transmettre le plan/cadastre, je suis disponible et réactif — c’est ma manière d’accompagner les clients avec bienveillance et professionnalisme, du premier contact jusqu’à la concrétisation de leur maison.
L’actualité immobilière à Mensignac
27/11/2023
02/11/2023
30/10/2023
20/10/2023
16/10/2023
16/10/2023