Images
Description
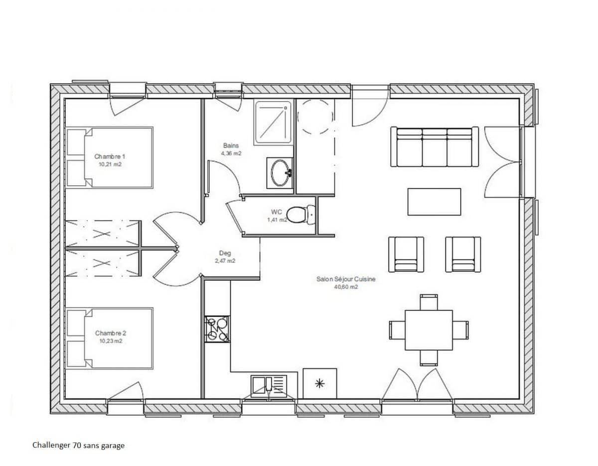
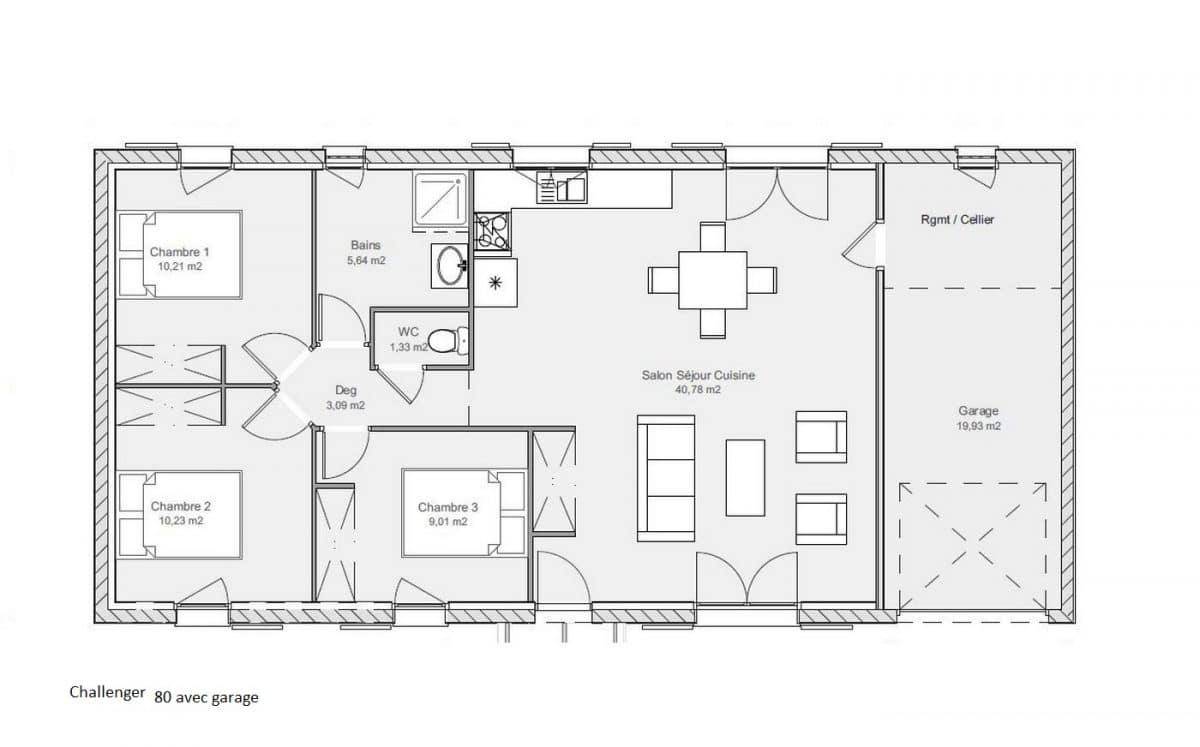
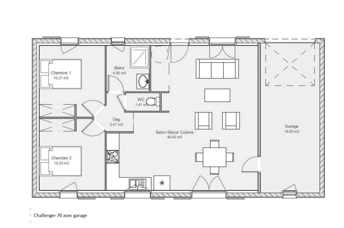
Sur ce terrain, nous vous proposons cette maison neuve : le modèle Challenger, spécialement conçu pour les primo-accédants ou les couples souhaitant bénéficier du meilleur rapport qualité/prix du marché. Avec une surface de 80 m², cette maison dispose de 3 chambres et de 4 pièces, offrant un intérieur confortable et séduisant. Un très pratique garage intégré est également inclus
Construite par Maisons Omega, détenteur du label Maisons de Qualité, cette demeure neuve est parfaite pour bien débuter dans la vie. La Challenger se distingue par ses formes simples et son intérieur accueillant. Vous y trouverez une cuisine ouverte sur un salon-séjour lumineux grâce à ses grandes portes-fenêtres, assurant une belle luminosité tout au long de la journée.
Cette maison neuve est également conforme à la RE2020, garantissant une basse consommation énergétique. Vous pourrez ainsi profiter d'un confort optimal tout en réalisant des économies sur vos factures d'énergie. De plus, son aspect extérieur moderne, avec des façades en enduit coloré et des volets roulants, ne manquera pas de vous séduire.
Les options les plus demandées par nos clients, telles que l'enduit coloré et les volets roulants, sont disponibles pour personnaliser votre maison selon vos envies et votre budget.
Vous êtes conquis par cette maison à petit prix et basse consommation ? Contactez-nous dès maintenant pour en savoir plus et discuter de votre projet avec nos experts.
Logement susceptibles de vous intéresser
Nous vous proposons de découvrir aussi cette sélection de logements situés à moins de 10km de Nontron et qui seraient susceptibles de vous intéresser.
Nontron
TERRAINÀ la sortie de Nontron, je vous propose un terrain plat de 2 100 m², bien exposé, idéal pour un projet de construction serein et accessible.Son prix exceptionnel de 15 000 € en fait une véritable opportunité sur le secteur. L’emplacement est calme, agréable, et permet d’imaginer une maison lumineuse, confortable et tournée vers la nature.Je peux vous aider à vous projeter avec un budget complet maison + terrain, un plan personnalisé, et des visuels 3D, pour que votre futur prenne forme immédiatement. Mon objectif est simple : que vous viviez votre projet en toute sérénité, avec confiance et plaisir.Si vous souhaitez en discuter tranquillement, obtenir une étude gratuite ou recevoir une proposition de maison adaptée à ce terrain, je suis là pour vous accompagner avec bienveillance et réactivité.
Nontron
TERRAINÀ la sortie de Nontron, je vous propose un terrain plat de 2 100 m², bien exposé, idéal pour un projet de construction serein et accessible.Son prix exceptionnel de 15 000 € en fait une véritable opportunité sur le secteur. L’emplacement est calme, agréable, et permet d’imaginer une maison lumineuse, confortable et tournée vers la nature.Je peux vous aider à vous projeter avec un budget complet maison + terrain, un plan personnalisé, et des visuels 3D, pour que votre futur prenne forme immédiatement. Mon objectif est simple : que vous viviez votre projet en toute sérénité, avec confiance et plaisir.Si vous souhaitez en discuter tranquillement, obtenir une étude gratuite ou recevoir une proposition de maison adaptée à ce terrain, je suis là pour vous accompagner avec bienveillance et réactivité.
Nontron
TERRAIN ET MAISONSur ce terrain, nous vous proposons cette maison neuve : la Floirac, une magnifique maison qui plaira à toute la famille. Vous avez un projet d’achat de maison neuve ? Si vous cherchez une magnifique demeure spacieuse et fonctionnelle où chacun se sentira à l’aise, la Floirac va vous plaire. Modèle familial par excellence, elle est faite pour vous !Cette superbe maison actuelle, d’une surface de 129 m², est composée de 4 chambres et de 4 pièces. Vous avez le choix entre une toiture à 2 pans ou à 4 pans, et son plan en H lui confère une allure moderne et élégante. Le garage intégré est un atout supplémentaire pour votre confort quotidien.La Floirac est une maison familiale idéale. Elle comprend un coin nuit avec 3 chambres et une salle de bains. En son centre, un beau séjour-salon avec cuisine ouverte vous accueille, parfait pour des moments conviviaux en famille. Vous apprécierez également la suite parentale avec dressing, bien indépendante de l’espace réservé aux enfants. Un cellier et un garage complètent cette maison, et vous avez même la possibilité d’ajouter un abri voiture.Ses formes originales lui donnent beaucoup de charme et vous apprécierez la grande terrasse à laquelle on accède par la porte-fenêtre de la pièce à vivre. De plus, cette maison neuve est basse consommation et conforme à la RE2020, garantissant ainsi des performances énergétiques optimales et un respect de l’environnement.Les options les plus demandées par nos clients, telles que la domotique et les menuiseries en aluminium, sont également disponibles pour personnaliser votre maison selon vos envies.Construite par Maisons Omega, qui détient le label Maisons de Qualité, la Floirac est une garantie de fiabilité et de satisfaction. Si vous souhaitez plus d’informations sur ce modèle, n’hésitez pas à contacter une de nos agences, un conseiller se fera un plaisir de vous répondre !Ne manquez pas cette opportunité unique de devenir propriétaire d’une maison qui allie confort, modernité
Nontron
TERRAIN ET MAISONSur ce terrain, nous vous proposons cette maison neuve : le modèle Challenger, spécialement conçu pour les primo-accédants ou les couples souhaitant bénéficier du meilleur rapport qualité/prix du marché. Avec une surface de 80 m², cette maison dispose de 3 chambres et de 4 pièces, offrant un intérieur confortable et séduisant. Un très pratique garage intégré est également inclusConstruite par Maisons Omega, détenteur du label Maisons de Qualité, cette demeure neuve est parfaite pour bien débuter dans la vie. La Challenger se distingue par ses formes simples et son intérieur accueillant. Vous y trouverez une cuisine ouverte sur un salon-séjour lumineux grâce à ses grandes portes-fenêtres, assurant une belle luminosité tout au long de la journée.Cette maison neuve est également conforme à la RE2020, garantissant une basse consommation énergétique. Vous pourrez ainsi profiter d’un confort optimal tout en réalisant des économies sur vos factures d’énergie. De plus, son aspect extérieur moderne, avec des façades en enduit coloré et des volets roulants, ne manquera pas de vous séduire.Les options les plus demandées par nos clients, telles que l’enduit coloré et les volets roulants, sont disponibles pour personnaliser votre maison selon vos envies et votre budget. Vous êtes conquis par cette maison à petit prix et basse consommation ? Contactez-nous dès maintenant pour en savoir plus et discuter de votre projet avec nos experts.
Saint-Front-la-Rivière
TERRAIN ET MAISONSur ce terrain, nous vous proposons cette maison neuve : le modèle Eysines. Réalisez votre projet de construction avec Maisons Omega, détenteur du label Maisons de Qualité, et faites de votre rêve une réalité.Cette maison de 92 m², conçue en plan en L, offre un cadre de vie idéal pour toute la famille. Avec ses trois chambres spacieuses et ses quatre pièces bien agencées, elle combine confort et fonctionnalité. Le modèle Eysines se distingue par son porche accueillant et son toit à deux pans ou quatre pans, selon vos préférences.L’intérieur de cette maison est pensé pour optimiser chaque mètre carré. Vous y trouverez une salle de bains moderne avec des WC séparés, un cellier pratique et un vaste salon séjour cuisine baigné de lumière. Les espaces de vie sont bien délimités, avec un coin nuit paisible et un coin jour convivial.En plus de ses atouts esthétiques et pratiques, cette maison neuve est basse consommation et conforme à la réglementation environnementale RE2020, garantissant ainsi des performances énergétiques optimales et un impact réduit sur l’environnement.Pour répondre aux attentes des clients, le modèle Eysines peut être équipé d’un Car Port, une option très demandée pour protéger vos véhicules.N’hésitez pas à nous contacter pour plus d’informations sur cette charmante maison de 92 m². Avec Maisons Omega, votre projet de construction est entre de bonnes mains.
Saint-Front-la-Rivière
TERRAINÀ découvrir, ce magnifique terrain de 3 000 m² situé à Saint-Front-la-Rivière, dans le département de la Dordogne. Idéal pour la réalisation d’un projet de construction de maison, ce terrain non viabilisé offre un cadre champêtre et paisible, sans vis-à-vis, permettant de concevoir votre havre de paix selon vos envies. À la fois ensoleillé et arboré, ce lieu privilégié vous promet une qualité de vie exceptionnelle, loin de l’agitation urbaine. Saint-Front-la-Rivière, charmante commune de la Nouvelle-Aquitaine, se distingue par son ambiance conviviale et ses nombreux atouts. À proximité, vous trouverez des commerces de première nécessité, des écoles et toutes les commodités pour faciliter votre quotidien. La région est également connue pour ses paysages pittoresques et ses activités de plein air, offrant un cadre de vie idéal pour les familles et les amoureux de la nature. Ne manquez pas cette opportunité d’investir dans un terrain au potentiel remarquable, au cœur d’un environnement chaleureux et accueillant. Ce terrain exceptionnel vous attend pour un projet de vie unique. À noter qu’en tant que constructeur, nous ne sommes pas mandatés pour réaliser la vente de ce terrain.
Nontron
TERRAIN ET MAISONSur ce terrain, nous vous proposons cette maison neuve Aubetière, un modèle traditionnel de la gamme Babeau-Seguin, constructeur reconnu pour offrir le meilleur rapport qualité/prix du marché. Avec une surface de 88 m², cette maison de plain-pied se compose de 4 pièces, dont 3 chambres spacieuses, idéales pour accueillir toute votre famille.L’Aubetière se distingue par son excellent rapport qualité/prix et sa conformité aux normes RE2020, garantissant une basse consommation énergétique. Vous avez la possibilité de personnaliser votre maison en choisissant entre un toit à 2 pans ou à 4 pans, ainsi qu’en ajoutant un garage ou un sous-sol selon vos besoins.Cette maison moderne et fonctionnelle est conçue pour s’adapter à vos envies et à votre mode de vie. Profitez de la flexibilité offerte par les nombreux plans et déclinaisons disponibles pour créer votre maison individuelle sur mesure.Ne manquez pas cette opportunité de donner vie à votre projet de construction avec le modèle Aubetière, une maison neuve qui allie confort, économie d’énergie et personnalisation. Contactez-nous dès maintenant pour plus d’informations et pour découvrir toutes les options disponibles pour votre future maison.
Nontron
TERRAINDécouvrez ce magnifique terrain à vendre, situé à Nontron, dans le département de la Dordogne. Avec une superficie généreuse de 3 545 m², ce terrain est non viabilisé et se situe en pente, offrant ainsi un potentiel unique pour la construction de votre maison idéale. Environnement arboré et ensoleillé, ce bien exceptionnel vous permet de profiter d’un cadre champêtre où la sécurité et le calme règnent en maître, le tout dans une situation idéale pour vos projets de vie. Nontron, charmante ville du Périgord vert, est réputée pour sa beauté naturelle et sa qualité de vie. Cette localité offre une multitude d’attractions locales, telles que ses marchés animés, ses artisans et ses promenades bucoliques. À proximité, vous trouverez toutes les commodités nécessaires : écoles, commerces, et infrastructures sportives, ce qui en fait un emplacement privilégié pour les familles. La Dordogne, riche de son patrimoine culturel, propose également des activités variées en pleine nature, garantissant ainsi un cadre de vie dynamique et serein. Ce terrain promet un potentiel remarquable pour réaliser votre projet de construction dans un environnement paisible. N’hésitez pas à saisir cette opportunité unique d’acquérir un bien rare sur le marché. Contactez-nous dès maintenant pour plus d’informations et pour envisager votre futur chez-vous à Nontron.
L’actualité immobilière à Nontron
27/11/2023
02/11/2023
30/10/2023
20/10/2023
16/10/2023
16/10/2023