Maison à construire à Barquet (27170)
Images
Description
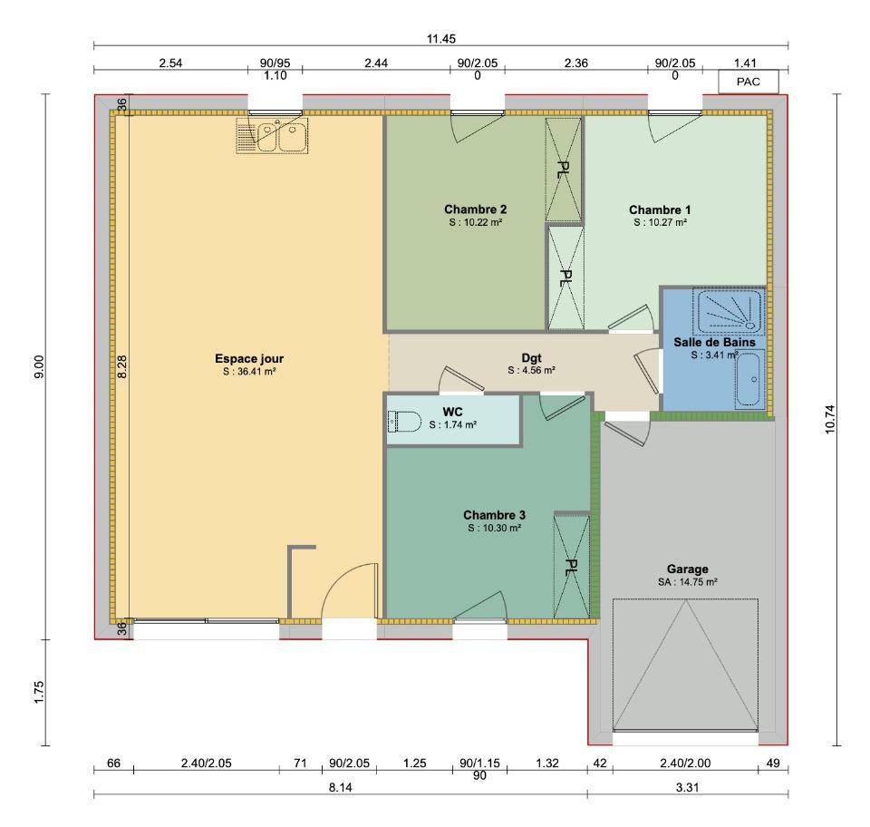
VENTE d'une maison F6 (76 m²) à Barquet
IDÉALEMENT SITUÉE - MAISON 6 PIÈCES NEUVE
À vendre : à deux pas d'Évreux, Maisons Balency Boos vous présente cette maison de 6 pièces de plain-pied de 76 m², idéalement située dans Barquet (27170).
Conçue de plain-pied, elle comporte trois chambres, une cuisine et une salle de bains. Cette maison est neuve.
Le terrain de la propriété s'étend sur 1 600 m².
La maison se situe dans un secteur attractif. Une école élémentaire y est implantée. Niveau transports en commun, il y a les gares Romilly-la-Puthenaye et Beaumont-le-Roger à moins de 10 minutes en voiture. La nationale N13 est accessible à 18 km.
Elle est à vendre pour la somme de 170 000 €.
N'hésitez pas à prendre contact avec Kamel BAZIZ (tél : (Numéro supprimé)) pour toute question sur le bien, sur les modalités de vente ou sur les démarches à suivre. Maisons Balency Boos est là pour vous accompagner à toutes les étapes de l'achat.
Annonce proposée par un Agent Commercial Partenaire.
Logement susceptibles de vous intéresser
Nous vous proposons de découvrir aussi cette sélection de logements situés à moins de 10km de Barquet et qui seraient susceptibles de vous intéresser.
Burey
TERRAIN ET MAISONMaison de 5 pièces (105 m²) en vente à BureyIDÉALEMENT SITUÉE – MAISON 5 PIÈCES NEUVEÀ 15 km d’Évreux, en vente idéalement située dans Burey (27190), nous sommes heureux de vous présenter cette maison de 5 pièces de 105 m² et de 900 m² de terrain. Son intérieur inclut quatre chambres, une cuisine et deux salles de bains.Cette maison comporte 2 niveaux. Elle est neuve.Cette maison est située dans un secteur prisé. On y trouve une école primaire. Côté transports en commun, il y a les gares Conches-en-Ouche, La Bonneville-sur-Iton et Romilly-la-Puthenaye à moins de 10 minutes en voiture. Les nationales N13 et N154 sont accessibles à moins de 18 km. On trouve un tennis dans les environs.Son prix de vente est de 200 300 €.Contactez notre agence (SONMEZ Oumayma : (Numéro supprimé)) pour toute question sur la maison. Les Maisons Extraco Gravigny est là pour vous accompagner dans toutes vos démarches.
Burey
TERRAIN ET MAISONBurey : maison T4 (93 m²) en venteIDÉALEMENT SITUÉE – MAISON 4 PIÈCES NEUVEÀ vendre : située à quelques kilomètres d’Évreux, idéalement située dans Burey (27190), Les Maisons Extraco Gravigny vous présente cette maison de 4 pièces de plain-pied de 93 m². Son intérieur compte trois chambres, une cuisine et une salle de bains.Le terrain du bien est de 900 m².Cette maison est neuve.La maison se trouve dans un quartier recherché. Une école primaire y est implantée. Niveau transports en commun, il y a les gares Conches-en-Ouche, La Bonneville-sur-Iton et Romilly-la-Puthenaye à moins de 10 minutes en voiture. Les nationales N13 et N154 sont accessibles à moins de 18 km. On trouve un tennis à proximité.Son prix de vente est de 175 200 €.Prenez contact avec Oumayma SONMEZ (tél : (Numéro supprimé)) pour toute question sur la maison, sur les modalités de vente ou sur les démarches à suivre. Les Maisons Extraco Gravigny est là pour vous accompagner à toutes les étapes de votre projet.
Burey
TERRAIN ET MAISONMaison F4 (98 m²) à vendre à BureyIDÉALEMENT SITUÉE – MAISON 4 PIÈCES NEUVEEn vente : localisée à quelques kilomètres d’Évreux, idéalement située dans Burey (27190), Les Maisons Extraco Gravigny vous présente cette maison de 4 pièces de plain-pied de 98 m² et de 900 m² de terrain. Son intérieur compte trois chambres, une cuisine et une salle de bains.Cette maison est neuve.Cette maison est située dans un secteur prisé. Une école primaire y est implantée. Niveau transports, il y a trois gares (Conches-en-Ouche, La Bonneville-sur-Iton et Romilly-la-Puthenaye) à moins de 10 minutes en voiture. Les nationales N13 et N154 sont accessibles à moins de 18 km. On trouve un tennis à quelques minutes.Elle est à vendre pour la somme de 198 600 €.N’hésitez pas à prendre contact avec notre agence (SONMEZ Oumayma : (Numéro supprimé)) pour obtenir de plus amples renseignements sur la maison, sur les modalités de vente ou sur les démarches à suivre. Les Maisons Extraco Gravigny est là pour vous accompagner dans tous vos projets immobiliers.
Burey
TERRAINTerrain de 900 m² à vendre à BureyIDÉALEMENT SITUÉ – VUE SUR PARCÀ quelques kilomètres d’Évreux à Burey (27190), grand terrain. Il donne sur un parc et est orienté au sud-ouest. Dans un secteur attractif, le terrain idéalement situé est proche des écoles et des commerces. On trouve une école primaire dans le quartier. Niveau transports en commun, il y a les gares Conches-en-Ouche, La Bonneville-sur-Iton et Romilly-la-Puthenaye à moins de 10 minutes en voiture. Les nationales N13 et N154 sont accessibles à moins de 18 km. On trouve un tennis à proximité.Son prix de vente est de 33 900 €. Contactez notre agence (Oumayma SONMEZ : (Numéro supprimé)) pour toute information sur le terrain. Concrétisez vos projets immobiliers avec Les Maisons Extraco Gravigny.
Burey
TERRAIN ET MAISONVENTE d’une maison de 5 pièces (86 m²) à BureyIDÉALEMENT SITUÉE – MAISON 5 PIÈCES NEUVEÀ vendre : à deux pas d’Évreux, découvrez cette maison de 5 pièces de 86 m² et de 900 m² de terrain idéalement située dans Burey (27190). Son intérieur comporte trois chambres, une cuisine et une salle de bains.C’est une maison de 2 niveaux. Elle est neuve.La maison se situe dans un secteur convoité. On y trouve une école primaire. Niveau transports en commun, on trouve les gares Conches-en-Ouche, La Bonneville-sur-Iton et Romilly-la-Puthenaye à moins de 10 minutes en voiture. Les nationales N13 et N154 sont accessibles à moins de 18 km. Il y a un tennis dans les environs.Elle est proposée à l’achat pour 170 500 €.Contactez notre agence (SONMEZ Oumayma : (Numéro supprimé)) pour obtenir de plus amples informations sur la maison ou sur les démarches à suivre.
Beaumont-le-Roger
TERRAINVENTE d’un terrain de 1 800 m² à Beaumont-le-RogerIDÉALEMENT SITUÉ – PROCHE D’ÉVREUXÀ Beaumont-le-Roger (27170) en vente à quelques kilomètres d’Évreux, donnez vie à votre résidence principale ou secondaire sur ce terrain de 1 800 m². Il donne sur un bois. Dans un secteur recherché, ce terrain idéalement situé est proche des écoles et des commerces. Il y a quatre établissements scolaires à moins de 10 minutes à pied. Côté transports, on trouve deux gares (Beaumont-le-Roger et Serquigny) à moins de 10 minutes en voiture. Il y a un accès à l’autoroute A28 à 16 km. Il y a un tennis, quatre commerces, trois boulangeries, deux supermarchés, quatre boucheries-charcuteries et deux épiceries dans les environs. Le marché Place de l’église anime le quartier.Ce terrain est proposé à l’achat pour 25 000 €. Contactez notre agence (Romain COURTONNE : (Numéro supprimé)) pour tout renseignement sur le terrain, sur les démarches à suivre ou sur les modalités de vente. Donnez vie à vos projets immobiliers avec Maisons France Confort Gravigny.CU positif délivré en Mars 2024.Non viabilisé.Annonce proposée par un Agent Commercial Partenaire.
Beaumont-le-Roger
TERRAIN ET MAISONMaison de 89m² habitableElle se compose d’une belle pièces de vie ouverte, avec un cellier et une chambre au rdc.A l’étage 3 chambres et une salle de bain.Prestations :Carrelage 45*45volets roulants encastrée à la maçonnerie + électrique SomfyParquet dans les chambresPour une étude de votre projet de construction merci de prendre rdv au (Numéro supprimé) Angélique Vaudry
Beaumont-le-Roger
TERRAIN ET MAISONMaisons France Confort Lisieux vous de construire cette maison sur mesure de 106m² habitable avec son grand garage.Le rez de chaussée se compose une entrée avec emplacement futur placard, une suite parentale pour une vie de plain pied, un séjour/salon lumineux avec cuisine ouverte.A l’étage vous disposerez de 3 belles chambres et d’une salle de bain.Belles prestations :- carrelage 45*45- menuiserie encastrer à la maçonnerie – volet roulant électrique somfy- système de chauffage très économiquePour étudier votre projet de construction, prenez rdv avec Angélique Vaudry au (Numéro supprimé)
Beaumont-le-Roger
TERRAIN ET MAISONMaisons France Confort Lisieux vous propose de construire cette maison de plain pied de 78m².Il se compose d’une entrée avec placard, une belle pièce de vie lumineuseDans l’espace nuit, 3 chambres et une salle de bain.Un accès au garage depuis la maison. Belles prestations :- carrelage 45*45- menuiserie encastrer à la maçonnerie – volet roulant électrique somfy- système de chauffage très économiquePour une étude de construction, merci de prendre rdv avec Mme Vaudry Angélique (Numéro supprimé)
L’actualité immobilière à Barquet
27/11/2023
02/11/2023
30/10/2023
20/10/2023
16/10/2023
16/10/2023