Maison à construire à Beaumont-le-Roger (27170)
Images
Description
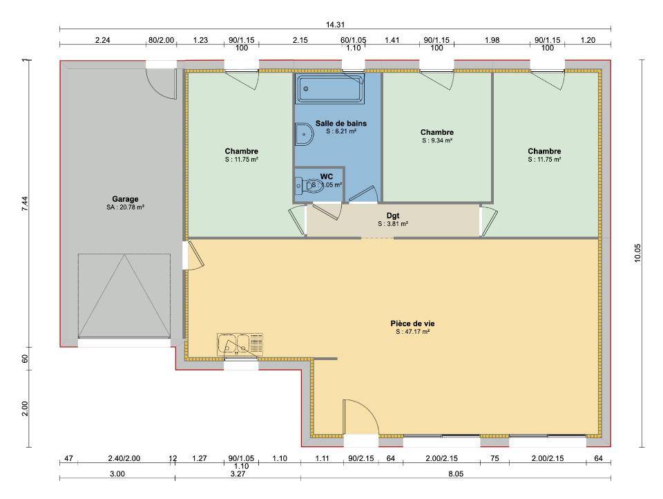
Maison de 5 pièces (90 m²) en vente à Beaumont-le-Roger
IDÉALEMENT SITUÉE - MAISON 5 PIÈCES NEUVE
À vendre : située à 29 km d'Évreux, nous sommes heureux de vous proposer, idéalement située dans Beaumont-le-Roger (27170), cette maison de 5 pièces de plain-pied de 90 m² et de 1 041 m² de terrain.
Elle est composée de trois chambres, d'une cuisine et d'une salle de bains. Cette maison est neuve.
La maison est située dans un secteur prisé. Il y a quatre établissements scolaires à moins de 10 minutes à pied. Niveau transports en commun, on trouve les gares Beaumont-le-Roger et Serquigny à moins de 10 minutes en voiture. L'autoroute A28 est accessible à 16 km. Il y a un tennis, quatre commerces, trois boulangeries, deux supermarchés, quatre boucheries-charcuteries et un bureau de poste dans les environs. Le marché Place de l'église anime le quartier.
Son prix de vente est de 197 800 €.
N'hésitez pas à prendre contact avec Aurélien LEOVANT ((Numéro supprimé)) pour toute question sur la maison. Maisons Balency Boos vous accompagne dans toutes vos démarches et dans tous vos projets immobiliers.
Annonce proposée par un Agent Commercial Partenaire.
Logement susceptibles de vous intéresser
Nous vous proposons de découvrir aussi cette sélection de logements situés à moins de 10km de Beaumont-le-Roger et qui seraient susceptibles de vous intéresser.
Beaumont-le-Roger
TERRAINVENTE d’un terrain de 1 800 m² à Beaumont-le-RogerIDÉALEMENT SITUÉ – PROCHE D’ÉVREUXÀ Beaumont-le-Roger (27170) en vente à quelques kilomètres d’Évreux, donnez vie à votre résidence principale ou secondaire sur ce terrain de 1 800 m². Il donne sur un bois. Dans un secteur recherché, ce terrain idéalement situé est proche des écoles et des commerces. Il y a quatre établissements scolaires à moins de 10 minutes à pied. Côté transports, on trouve deux gares (Beaumont-le-Roger et Serquigny) à moins de 10 minutes en voiture. Il y a un accès à l’autoroute A28 à 16 km. Il y a un tennis, quatre commerces, trois boulangeries, deux supermarchés, quatre boucheries-charcuteries et deux épiceries dans les environs. Le marché Place de l’église anime le quartier.Ce terrain est proposé à l’achat pour 25 000 €. Contactez notre agence (Romain COURTONNE : (Numéro supprimé)) pour tout renseignement sur le terrain, sur les démarches à suivre ou sur les modalités de vente. Donnez vie à vos projets immobiliers avec Maisons France Confort Gravigny.CU positif délivré en Mars 2024.Non viabilisé.Annonce proposée par un Agent Commercial Partenaire.
Beaumont-le-Roger
TERRAIN ET MAISONMaison de 89m² habitableElle se compose d’une belle pièces de vie ouverte, avec un cellier et une chambre au rdc.A l’étage 3 chambres et une salle de bain.Prestations :Carrelage 45*45volets roulants encastrée à la maçonnerie + électrique SomfyParquet dans les chambresPour une étude de votre projet de construction merci de prendre rdv au (Numéro supprimé) Angélique Vaudry
Beaumont-le-Roger
TERRAIN ET MAISONMaisons France Confort Lisieux vous de construire cette maison sur mesure de 106m² habitable avec son grand garage.Le rez de chaussée se compose une entrée avec emplacement futur placard, une suite parentale pour une vie de plain pied, un séjour/salon lumineux avec cuisine ouverte.A l’étage vous disposerez de 3 belles chambres et d’une salle de bain.Belles prestations :- carrelage 45*45- menuiserie encastrer à la maçonnerie – volet roulant électrique somfy- système de chauffage très économiquePour étudier votre projet de construction, prenez rdv avec Angélique Vaudry au (Numéro supprimé)
Beaumont-le-Roger
TERRAIN ET MAISONMaisons France Confort Lisieux vous propose de construire cette maison de plain pied de 78m².Il se compose d’une entrée avec placard, une belle pièce de vie lumineuseDans l’espace nuit, 3 chambres et une salle de bain.Un accès au garage depuis la maison. Belles prestations :- carrelage 45*45- menuiserie encastrer à la maçonnerie – volet roulant électrique somfy- système de chauffage très économiquePour une étude de construction, merci de prendre rdv avec Mme Vaudry Angélique (Numéro supprimé)
Beaumont-le-Roger
TERRAINMaisons France Confort vous propose de construire votre maison sur la commune de Beaumont le Roger.Commune à 20 min de Bernay et 13 min de Le NeubourgDernière opportunité parcelle de terrain de 796m² entièrement viabiliséePour une étude de votre projet de construction, merci de prendre rdv avec Mme Vaudry (Numéro supprimé)Prix hors frais de notaire. Terrain sélectionné et vu pour vous sous réserve de disponibilité et au prix indiqué par notre partenaire foncier.
Barquet
TERRAINVENTE : terrain de 1 600 m² à BarquetIDÉALEMENT SITUÉ – PROCHE D’ÉVREUXÀ Barquet (27170) en vente à 22 km d’Évreux, découvrez ce terrain de 1 600 m². Dans un secteur prisé, le terrain idéalement situé est proche des écoles et des commerces. Il y a une école élémentaire dans le quartier. Niveau transports en commun, on trouve deux gares (Romilly-la-Puthenaye et Beaumont-le-Roger) à moins de 10 minutes en voiture. La nationale N13 est accessible à 18 km.Il est à vendre pour la somme de 35 000 €. Contactez Kamel BAZIZ (tél : (Numéro supprimé)) pour plus d’informations sur ce terrain ou sur les démarches à suivre.Annonce proposée par un Agent Commercial Partenaire.
Barquet
TERRAIN ET MAISONVENTE d’une maison F6 (89 m²) à BarquetIDÉALEMENT SITUÉE – MAISON 6 PIÈCES NEUVEÀ quelques kilomètres d’Évreux, Maisons Balency Boos vous propose cette maison de 6 pièces de 89 m² et de 1 600 m² de terrain en vente idéalement située dans Barquet (27170).C’est une maison de 2 niveaux. Elle est composée de quatre chambres, d’une cuisine et d’une salle de bains. La maison est neuve.Cette maison est située dans un quartier prisé. Une école élémentaire y est implantée. Côté transports, il y a les gares Romilly-la-Puthenaye et Beaumont-le-Roger à moins de 10 minutes en voiture. On trouve un accès à la nationale N13 à 18 km.Elle est à vendre pour la somme de 190 000 €.N’hésitez pas à prendre contact avec Kamel BAZIZ ((Numéro supprimé)) pour obtenir de plus amples informations sur la maison, sur les démarches à suivre ou sur les modalités de vente.Annonce proposée par un Agent Commercial Partenaire.
Barquet
TERRAIN ET MAISONVENTE d’une maison F6 (76 m²) à BarquetIDÉALEMENT SITUÉE – MAISON 6 PIÈCES NEUVEÀ vendre : à deux pas d’Évreux, Maisons Balency Boos vous présente cette maison de 6 pièces de plain-pied de 76 m², idéalement située dans Barquet (27170).Conçue de plain-pied, elle comporte trois chambres, une cuisine et une salle de bains. Cette maison est neuve.Le terrain de la propriété s’étend sur 1 600 m².La maison se situe dans un secteur attractif. Une école élémentaire y est implantée. Niveau transports en commun, il y a les gares Romilly-la-Puthenaye et Beaumont-le-Roger à moins de 10 minutes en voiture. La nationale N13 est accessible à 18 km.Elle est à vendre pour la somme de 170 000 €.N’hésitez pas à prendre contact avec Kamel BAZIZ (tél : (Numéro supprimé)) pour toute question sur le bien, sur les modalités de vente ou sur les démarches à suivre. Maisons Balency Boos est là pour vous accompagner à toutes les étapes de l’achat.Annonce proposée par un Agent Commercial Partenaire.
Barquet
TERRAIN ET MAISONBarquet : maison T4 (50 m²) en venteIDÉALEMENT SITUÉE – MAISON 4 PIÈCES NEUVEÀ 22 km d’Évreux, nous vous proposons cette maison de 4 pièces de plain-pied de 50 m² et de 1 600 m² de terrain idéalement située dans Barquet (27170). Son intérieur est composé de deux chambres, d’une cuisine et d’une salle de bains.Cette maison est neuve.Ce bien se situe dans un quartier attractif. On y trouve une école élémentaire. Niveau transports, il y a les gares Romilly-la-Puthenaye et Beaumont-le-Roger à moins de 10 minutes en voiture. La nationale N13 est accessible à 18 km.Son prix de vente est de 140 000 €.Contactez notre agence (BAZIZ Kamel : (Numéro supprimé)) pour tout renseignement sur la maison ou sur les modalités de vente.Annonce proposée par un Agent Commercial Partenaire.
L’actualité immobilière à Beaumont-le-Roger
27/11/2023
02/11/2023
30/10/2023
20/10/2023
16/10/2023
16/10/2023