Maison à construire à Cierrey (27930)
Images
Description
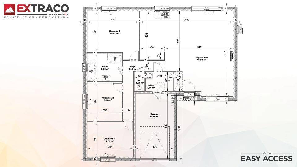
VENTE : maison F4 (98 m²) à Cierrey
PROCHE GARE - MAISON 4 PIÈCES NEUVE
À quelques kilomètres d'Évreux, nous vous proposons à vendre, proche de la gare de Cierrey (27930), cette maison de 4 pièces de plain-pied de 98 m² et de 1 425 m² de terrain. Son intérieur inclut trois chambres, une cuisine et une salle de bains.
La maison est neuve.
Il y a une école primaire dans le quartier. Niveau transports, on trouve la gare Évreux Normandie à moins de 10 minutes en voiture. Les nationales N13 et N154 sont accessibles à moins de 5 km.
Son prix de vente est de 241 700 €.
Contactez notre agence (SONMEZ Oumayma : (Numéro supprimé)) pour toute information sur la maison, sur les modalités de vente ou sur les démarches à suivre. Les Maisons Extraco Gravigny est là pour vous accompagner dans tous vos projets immobiliers.
Logement susceptibles de vous intéresser
Nous vous proposons de découvrir aussi cette sélection de logements situés à moins de 10km de Cierrey et qui seraient susceptibles de vous intéresser.
Grossœuvre
TERRAINVENTE : terrain de 1 025 m² à Bois-le-RoiEMPLACEMENT PRIVILÉGIÉ – VUE DÉGAGÉEGrand terrain à quelques kilomètres d’Évreux. De 1 025 m², ce terrain se situe bénéficiant d’un emplacement privilégié dans Bois-le-Roi (27220). Il profite d’une vue dégagée. Ce terrain se situe dans un quartier recherché. On y trouve une école primaire. Côté transports, il y a la gare Bueil à moins de 10 minutes en voiture. Les nationales N154, N12 et N13 sont accessibles à moins de 17 km. On trouve deux tennis, une boulangerie et un bureau de poste à proximité du terrain.Son prix de vente est de 50 000 €. Prenez contact avec notre agence (COURTONNE Romain : (Numéro supprimé)) pour tout renseignement sur ce terrain et sur les modalités de vente. Concrétisez vos projets immobiliers avec Maisons France Confort Gravigny.Annonce proposée par un Agent Commercial Partenaire.
Cierrey
TERRAINCierrey : terrain de 1 425 m² en ventePROCHE GARE – VUE PANORAMIQUEGrand terrain à quelques kilomètres d’Évreux. De 1 425 m², ce terrain se situe proche de la gare de Cierrey (27930). Il profite d’une vue panoramique et bénéficie d’une exposition sud-ouest. Ce terrain est proche des écoles et des commerces. Une école primaire est implantée dans le quartier. Niveau transports, il y a la gare Évreux Normandie à moins de 10 minutes en voiture. Les nationales N13 et N154 sont accessibles à moins de 5 km.Il est à vendre pour la somme de 77 000 €. Contactez notre agence (SONMEZ Oumayma : (Numéro supprimé)) pour tout renseignement sur ce terrain ou sur les modalités de vente. Faites de vos projets immobiliers une réalité avec Les Maisons Extraco Gravigny.
Cierrey
TERRAIN ET MAISONVENTE d’une maison F5 (95 m²) à CierreyPROCHE GARE – MAISON 5 PIÈCES NEUVEÀ vendre : située à deux pas d’Évreux, nous vous présentons cette maison de 5 pièces de plain-pied de 95 m² et de 1 425 m² de terrain, dans Cierrey (27930), proche de la gare. Elle compte quatre chambres, une cuisine et une salle de bains.La maison est neuve.Il y a une école primaire dans le quartier. Niveau transports, on trouve la gare Évreux Normandie à moins de 10 minutes en voiture. Les nationales N13 et N154 sont accessibles à moins de 5 km.Elle est proposée à l’achat pour 218 200 €.N’hésitez pas à prendre contact avec Oumayma SONMEZ (tél : (Numéro supprimé)) pour toute information sur la maison, sur les démarches à suivre ou sur les modalités de vente. Les Maisons Extraco Gravigny vous accompagne à toutes les étapes de votre projet et dans tous vos projets immobiliers.
Cierrey
TERRAIN ET MAISONMaison de 5 pièces (100 m²) à vendre à CierreyPROCHE GARE – MAISON 5 PIÈCES NEUVEÀ deux pas d’Évreux, nous sommes heureux de vous proposer cette maison de 5 pièces de 100 m² à vendre proche de la gare de Cierrey (27930).Cette maison possède 2 niveaux. Son intérieur comporte quatre chambres, une cuisine et une salle de bains. La maison est neuve.Le terrain de la propriété s’étend sur 1 425 m².Une école primaire est implantée dans le quartier. Niveau transports en commun, il y a la gare Évreux Normandie à moins de 10 minutes en voiture. Les nationales N13 et N154 sont accessibles à moins de 5 km.Elle est proposée à l’achat pour 243 400 €.Contactez Oumayma SONMEZ (tél : (Numéro supprimé)) pour tout renseignement sur la maison. Les Maisons Extraco Gravigny est là pour vous accompagner à toutes les étapes de votre projet.
Cierrey
TERRAIN ET MAISONVENTE : maison F4 (98 m²) à CierreyPROCHE GARE – MAISON 4 PIÈCES NEUVEÀ quelques kilomètres d’Évreux, nous vous proposons à vendre, proche de la gare de Cierrey (27930), cette maison de 4 pièces de plain-pied de 98 m² et de 1 425 m² de terrain. Son intérieur inclut trois chambres, une cuisine et une salle de bains.La maison est neuve.Il y a une école primaire dans le quartier. Niveau transports, on trouve la gare Évreux Normandie à moins de 10 minutes en voiture. Les nationales N13 et N154 sont accessibles à moins de 5 km.Son prix de vente est de 241 700 €.Contactez notre agence (SONMEZ Oumayma : (Numéro supprimé)) pour toute information sur la maison, sur les modalités de vente ou sur les démarches à suivre. Les Maisons Extraco Gravigny est là pour vous accompagner dans tous vos projets immobiliers.
Cierrey
TERRAIN ET MAISONCierrey : maison de 4 pièces (81 m²) en ventePROCHE GARE – MAISON 4 PIÈCES NEUVEEn vente : à quelques kilomètres d’Évreux, votre agence Les Maisons Extraco Gravigny est ravie de vous proposer cette maison de 4 pièces de 81 m² dans Cierrey (27930), proche de la gare.Il s’agit d’une maison de 2 niveaux. Son intérieur inclut deux chambres, une cuisine et une salle de bains. Cette maison est neuve.Le terrain de la propriété s’étend sur 1 425 m².Une école primaire est implantée dans le quartier. Niveau transports, on trouve la gare Évreux Normandie à moins de 10 minutes en voiture. Les nationales N13 et N154 sont accessibles à moins de 5 km.Il est à vendre pour la somme de 222 000 €.Contactez notre constructeur (SONMEZ Oumayma : (Numéro supprimé)) pour tout renseignement sur la maison.
Évreux
TERRAIN ET MAISONVENTE d’une maison de 4 pièces (71 m²) à GuichainvilleMAISON 4 PIÈCES NEUVE – PROCHE D’ÉVREUXEn vente : à deux pas d’Évreux, Les Maisons Extraco Gravigny vous présente à Guichainville (27930), cette maison de 4 pièces de plain-pied de 71 m² et de 404 m² de terrain.Son intérieur inclut deux chambres, une cuisine ouverte sur le séjour et une salle de bains. La maison est neuve.Des écoles primaires sont implantées dans le quartier. Niveau transports, il y a la gare Évreux Normandie à moins de 10 minutes en voiture. Les nationales N13 et N154 sont accessibles à moins de 3 km. On trouve un tennis, plusieurs commerces et une boulangerie à quelques minutes de la maison.Elle est proposée à l’achat pour 182 900 €.Contactez Aurélie KTARI (tél : (Numéro supprimé)) pour tout renseignement sur la propriété, sur les démarches à suivre ou sur les modalités de vente.
Évreux
TERRAIN ET MAISONVENTE d’une maison de 4 pièces (98 m²) à GuichainvilleMAISON 4 PIÈCES NEUVE – PROCHE D’ÉVREUXEn vente à 5 km d’Évreux, nous vous présentons cette maison de 4 pièces de plain-pied de 98 m² à Guichainville (27930).Elle est composée de trois chambres, d’une cuisine ouverte sur le séjour, une salle de bains, un cellier et un garage. La maison est neuve.Le terrain de la propriété s’étend sur 404 m².Des écoles primaires sont implantées dans le quartier. Niveau transports en commun, il y a la gare Évreux Normandie à moins de 10 minutes en voiture. Les nationales N13 et N154 sont accessibles à moins de 3 km. On trouve un tennis, cinq commerces et une boulangerie dans les environs.Elle est proposée à l’achat pour 229 900 €.Contactez notre agence (Aurélie KTARI : (Numéro supprimé)) pour toute information sur cette maison ou sur les modalités de vente. Faites de vos projets immobiliers une réalité avec Les Maisons Extraco Gravigny.
Évreux
TERRAIN ET MAISONVENTE : maison de 6 pièces (114 m²) à GuichainvilleMAISON 6 PIÈCES NEUVE – PROCHE D’ÉVREUXÀ quelques kilomètres d’Évreux, nous sommes heureux de vous présenter à vendre à Guichainville (27930), cette maison de 6 pièces de 114 m² et de 404 m² de terrain.Cette maison compte 2 niveaux. Son intérieur compte cinq chambres, une cuisine ouverte sur le séjour, deux salles de bains, un cellier et un garage. Cette maison est neuve.Des établissements scolaires primaires sont implantés dans le quartier. Niveau transports, il y a la gare Évreux Normandie à moins de 10 minutes en voiture. Les nationales N13 et N154 sont accessibles à moins de 3 km. On trouve un tennis, cinq commerces et une boulangerie à quelques minutes.Elle est à vendre pour la somme de 319 900 €.N’hésitez pas à prendre contact avec Aurélie KTARI ((Numéro supprimé)) pour tout renseignement sur cette maison ou sur les modalités de vente. Les Maisons Extraco Gravigny vous accompagne à toutes les étapes de l’achat et dans toutes vos démarches.
L’actualité immobilière à Cierrey
27/11/2023
02/11/2023
30/10/2023
20/10/2023
16/10/2023
16/10/2023