Maison à construire à La Couture-Boussey (27750)
Images
Description
VENTE d'une maison de 5 pièces (76 m²) à La Couture-Boussey
MAISON 5 PIÈCES NEUVE - PROCHE D'ÉVREUX
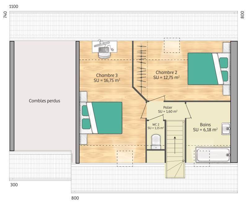
En vente : à 23 km d'Évreux, nous vous proposons cette maison de 5 pièces de 76 m² à La Couture-Boussey (27750). Elle se divise en trois chambres, une cuisine et une salle de bains.
Le terrain de la propriété est de 422 m².
C'est une maison de 2 niveaux. Elle est neuve.
L'École Élémentaire Aux Quatre Vents et l'École Maternelle Robert Poilvert sont implantées à moins de 10 minutes à pied. Côté transports, il y a la gare Bueil à moins de 10 minutes en voiture. L'autoroute A13 et les nationales N13, N154 et N12 sont accessibles à moins de 17 km. On trouve un tennis, une boulangerie, un bureau de poste, une boucherie-charcuterie et une supérette à quelques minutes du bien.
Elle est à vendre pour la somme de 174 409 €.
Contactez Karen DELELIS ((Numéro supprimé)) pour obtenir de plus amples informations sur cette maison, sur les démarches à suivre et sur les modalités de vente. Maisons Balency Gravigny vous accompagne dans tous vos projets immobiliers et à toutes les étapes de l'achat.
Annonce proposée par un Agent Commercial Partenaire.
Logement susceptibles de vous intéresser
Nous vous proposons de découvrir aussi cette sélection de logements situés à moins de 10km de La Couture-Boussey et qui seraient susceptibles de vous intéresser.
Saint-André-de-l'Eure
TERRAINTerrains viabilisés de 467 m² à 586 m², libres de constructeur sur la commune de Saint-André-de-l’Eure, dans l’Eure.Découvrez notre nouvelle opération » La Prairie » située Rue de Dreux.Découvrez notre lotissement « Le Point du Jour »à Saint-André-de-l’Eure. Située entre Évreux et Dreux, cette commune idéalement située offre une qualité de vie exceptionnelle. Avec ses 47 terrains constructibles à vendre, vous pourrez enfin construire la maison de vos rêves. Profitez des nombreux services et équipements à proximité tels que les écoles, commerces, terrains de sport et associations dynamiques.Retrouvez l’ensemble de nos lots disponibles sur notre site internet.
Ézy-sur-Eure
TERRAINTerrain de 630 m² en vente à Ézy-sur-EureIDÉALEMENT SITUÉ – À Ézy-sur-Eure (27530), donnez vie à la maison de vos rêves sur ce terrain de 630 m². Ce terrain, orienté au sud, donne sur un jardin. Dans un secteur recherché, le terrain idéalement situé est proche des écoles et des commerces. Il y a trois établissements scolaires dans la commune et dont l’École Élémentaire Jules Ferry et le Collège Claude Monet. Terrain viabilisé, assainissement individuel. Son prix de vente est de 55 000 €. N’hésitez pas à prendre contact avec notre agence (Fanny GATINAULT : (Numéro supprimé)) pour plus de renseignements sur le terrain.Annonce proposée par un Agent Commercial Partenaire.
Ézy-sur-Eure
TERRAIN ET MAISONÉzy-sur-Eure : maison T6 (117 m²) en venteIDÉALEMENT SITUÉE – Ayez le coup de coeur pour cette maison de 6 pièces de 117 m² et de 630 m² de terrain idéalement située dans Ézy-sur-Eure (27530). Son intérieur dispose de quatre chambres dont une suite parentale, d’une cuisine ouverte sur l’espace de vie, d’un cellier, de deux salles de bains et d’un garage .La maison est neuve.Cette maison se situe dans un quartier convoité. Trois établissements scolaires y sont implantés .Elle est proposée à l’achat pour 271 525 €.Contactez notre agence (Fanny GATINAULT : (Numéro supprimé)) pour tout renseignement sur la maison ou sur les modalités de vente. Donnez vie à vos projets immobiliers avec Maisons Balency Louviers.Annonce proposée par un Agent Commercial Partenaire.
Anet
TERRAIN28260 OULINS, Mathieu Conan vous propose en partenariat avec la SAEDEL, ce terrain de 420 m² clos et viabilisé avec place de parking goudronnée. Commerces à 1 km, D’autres lots disponible.Vous pensez avoir le profil pour acheter ce terrain. Contactez moi!Pour visiter et vous accompagner dans votre projet contacter Mathieu Conan au (Numéro supprimé) ou m.conan@proprietes-privées.com agissant sous le statut d’agent commercial RCS 487624777, RC Pro GALIAN N(Numéro supprimé). Au prix de 75 600 euros honoraires charge vendeur net vendeur Mandat N°427806MCN. Mathieu CONAN (EI) Agent Commercial – Numéro RSAC : CHARTRES 512108507 – .
Oulins
TERRAIN28260 OULINS, Mathieu Conan vous propose en partenariat avec la SAEDEL, ce terrain de 398 m² clos et viabilisé avec place de parking goudronnée. Commerces à 1 km, D’autres lots disponible.Vous pensez avoir le profil pour acheter ce terrain. Contactez moi!Pour visiter et vous accompagner dans votre projet contacter Mathieu Conan au (Numéro supprimé) ou m.conan@proprietes-privées.com agissant sous le statut d’agent commercial RCS 487624777, RC Pro GALIAN N(Numéro supprimé). Au prix de 71 640 euros honoraires charge vendeur net vendeur Mandat N°427807MCN. Mathieu CONAN (EI) Agent Commercial – Numéro RSAC : CHARTRES 512108507 – .
Anet
TERRAIN28260 OULINS, Mathieu Conan vous propose en partenariat avec la SAEDEL, ce terrain de 426 m² clos et viabilisé avec place de parking goudronnée. Commerces à 1 km, D’autres lots disponible.Vous pensez avoir le profil pour acheter ce terrain. Contactez moi!Pour visiter et vous accompagner dans votre projet contacter Mathieu Conan au (Numéro supprimé) ou m.conan@proprietes-privées.com agissant sous le statut d’agent commercial RCS 487624777, RC Pro GALIAN N(Numéro supprimé). Au prix de 76680 euros honoraires charge vendeur net vendeur Mandat N°427808MCN. Mathieu CONAN (EI) Agent Commercial – Numéro RSAC : CHARTRES 512108507 – .
Breuilpont
TERRAINBreuilpont : terrain de 1 200 m² en venteEMPLACEMENT PRIVILÉGIÉ – PROCHE D’ÉVREUXÀ Breuilpont (27640) à vendre à quelques kilomètres d’Évreux, venez découvrir ce terrain de 1 200 m². Il donne sur un espace vert et est exposé au sud-ouest. Dans un secteur convoité, ce terrain bénéficiant d’un emplacement d’exception est proche des écoles et des commerces. Il y a l’École Primaire Saint Exupéry à moins de 10 minutes à pied. Côté transports en commun, on trouve les gares Bueil et Bréval à moins de 10 minutes en voiture. L’autoroute A13 et la nationale N13 sont accessibles à moins de 9 km. Il y a une boucherie-charcuterie à quelques minutes.Son prix de vente est de 85 000 €. N’hésitez pas à prendre contact avec notre agence (Oumayma SONMEZ : (Numéro supprimé)) pour plus de renseignements sur le terrain ou sur les démarches à suivre. Les Maisons Extraco Gravigny vous accompagne à toutes les étapes de votre projet et dans tous vos projets immobiliers.
Breuilpont
TERRAIN ET MAISONVENTE : maison de 5 pièces (92 m²) à BreuilpontEMPLACEMENT PRIVILÉGIÉ – MAISON 5 PIÈCES NEUVEEn vente : à quelques kilomètres d’Évreux, bénéficiant d’un emplacement privilégié dans Breuilpont (27640), Les Maisons Extraco Gravigny vous présente cette maison de 5 pièces de plain-pied de 92 m² et de 1 200 m² de terrain. Son intérieur comporte quatre chambres, une cuisine et une salle de bains.Cette maison est neuve.Cette maison se trouve dans un quartier attractif. L’École Primaire Saint Exupéry est implantée à moins de 10 minutes à pied. Côté transports, on trouve les gares Bueil et Bréval à moins de 10 minutes en voiture. L’autoroute A13 et la nationale N13 sont accessibles à moins de 9 km. Il y a une boucherie-charcuterie dans les environs.Elle est à vendre pour la somme de 237 900 €.Contactez Oumayma SONMEZ (tél : (Numéro supprimé)) pour obtenir de plus amples informations sur la maison ou sur les démarches à suivre.
Breuilpont
TERRAIN ET MAISONBreuilpont : maison F5 (105 m²) à vendreEMPLACEMENT PRIVILÉGIÉ – MAISON 5 PIÈCES NEUVEEn vente à 22 km d’Évreux, bénéficiant d’un emplacement d’exception dans Breuilpont (27640), Les Maisons Extraco Gravigny vous propose cette maison de 5 pièces de plain-pied de 105 m² et de 1 200 m² de terrain.Son intérieur se divise en quatre chambres, une cuisine et une salle de bains. Cette maison est neuve.Cette maison est située dans un quartier prisé. L’École Primaire Saint Exupéry est implantée à moins de 10 minutes à pied. Niveau transports en commun, il y a deux gares (Bueil et Bréval) à moins de 10 minutes en voiture. L’autoroute A13 et la nationale N13 sont accessibles à moins de 9 km. On trouve une boucherie-charcuterie dans les environs.Elle est à vendre pour la somme de 236 800 €.Prenez contact avec notre agence (Oumayma SONMEZ : (Numéro supprimé)) pour toute question sur la maison.
L’actualité immobilière à La Couture-Boussey
27/11/2023
02/11/2023
30/10/2023
20/10/2023
16/10/2023
16/10/2023