Maison à construire à Le Plessis-Grohan (27180)
Images
Description
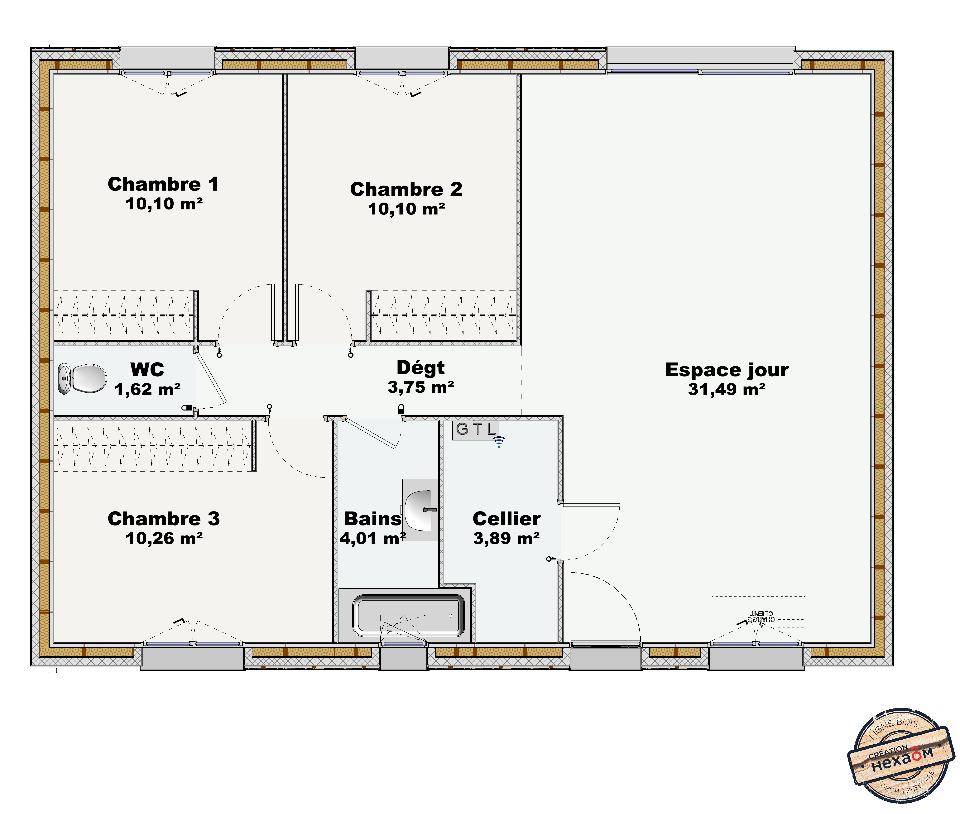
VENTE : maison T4 (75 m²) au Plessis-Grohan
IDÉALEMENT SITUÉE - MAISON 4 PIÈCES NEUVE
En vente : localisée à deux pas d'Évreux, idéalement située dans Le Plessis-Grohan (27180), découvrez cette maison de 4 pièces de plain-pied de 75 m². Son intérieur comporte trois chambres, une cuisine et une salle de bains.
Le terrain du bien s'étend sur 1 335 m².
La maison est neuve.
Ce bien est situé dans un quartier prisé. Une école élémentaire y est implantée. Niveau transports, il y a deux gares (Évreux Normandie et La Bonneville-sur-Iton) à moins de 10 minutes en voiture. Les nationales N154 et N13 sont accessibles à moins de 7 km.
Il est proposé à l'achat pour 196 000 €.
Contactez notre agence (GRZESKOWIAK Benjamin : (Numéro supprimé)) pour toute question sur la maison. Donnez vie à vos projets immobiliers avec Les Maisons Extraco Gravigny.
Logement susceptibles de vous intéresser
Nous vous proposons de découvrir aussi cette sélection de logements situés à moins de 10km de Le Plessis-Grohan et qui seraient susceptibles de vous intéresser.
Guichainville
TERRAIN ET MAISONVENTE d’une maison F6 (120 m²) à GuichainvilleMAISON 6 PIÈCES NEUVE – PROCHE D’ÉVREUXÀ vendre : à deux pas d’Évreux, nous sommes ravis de vous présenter cette maison de 6 pièces de 120 m² à Guichainville (27930). Elle propose quatre chambres, une cuisine ouverte sur le séjour, deux salles de bains, un cellier et un garage.Le terrain du bien s’étend sur 516 m².Cette maison comporte 2 niveaux. Elle est neuve.Des établissements scolaires primaires sont implantés dans le quartier. Côté transports, il y a la gare Évreux Normandie à moins de 10 minutes en voiture. Les nationales N13 et N154 sont accessibles à moins de 3 km. On trouve un tennis, plusieurs commerces et une boulangerie à quelques minutes du logement.Son prix de vente est de 289 000 €.Contactez Aurélie KTARI (tél : (Numéro supprimé)) pour plus de renseignements sur la maison ou sur les modalités de vente.
Les Ventes
TERRAIN ET MAISONVENTE : maison de 4 pièces (70 m²) aux VentesIDÉALEMENT SITUÉE – MAISON 4 PIÈCES NEUVEÀ vendre : à 9 km d’Évreux, nous vous proposons cette maison de 4 pièces de plain-pied de 70 m² et de 948 m² de terrain, idéalement située dans Les Ventes (27180). Son intérieur se divise en trois chambres, une cuisine et une salle de bains.La maison est neuve.La maison est située dans un secteur convoité. Une école primaire y est implantée. Niveau transports en commun, il y a deux gares (La Bonneville-sur-Iton et Évreux Normandie) à moins de 10 minutes en voiture. Les nationales N13 et N154 sont accessibles à moins de 9 km. On trouve une boulangerie à proximité.Elle est à vendre pour la somme de 180 800 €.Contactez notre agence (Benjamin GRZESKOWIAK : (Numéro supprimé)) pour tout renseignement sur la maison ou sur les démarches à suivre.
Angerville-la-Campagne
TERRAIN ET MAISONVENTE : maison F5 (100 m²) à Angerville-la-CampagnePROCHE D’ÉVREUX – MAISON 5 PIÈCES NEUVEÀ vendre : localisée à quelques kilomètres d’Évreux, à Angerville-la-Campagne (27930), venez découvrir cette maison de 5 pièces de 100 m² et de 445 m² de terrain. Son intérieur inclut quatre chambres, une cuisine ouverte sur le séjour, deux salles de bains, un cellier et un garage.C’est une maison de 2 niveaux. Elle est neuve.On trouve l’École Primaire Alphonse Cosme à moins de 10 minutes à pied. Niveau transports en commun, il y a les gares Évreux Normandie et La Bonneville-sur-Iton à moins de 10 minutes en voiture. Les nationales N13 et N154 sont accessibles à moins de 4 km. On trouve un commerce à quelques minutes.Elle est à vendre pour la somme de 235 000 €.N’hésitez pas à prendre contact avec notre agence (Aurélie KTARI : (Numéro supprimé)) pour tout renseignement sur cette maison ou sur les démarches à suivre. Les Maisons Extraco Gravigny vous accompagne dans tous vos projets immobiliers et à toutes les étapes de l’achat.
Les Ventes
TERRAIN ET MAISONLes Ventes : maison F4 (98 m²) en venteIDÉALEMENT SITUÉE – MAISON 4 PIÈCES NEUVEEn vente à 9 km d’Évreux, nous vous présentons cette maison de 4 pièces de plain-pied de 98 m² et de 948 m² de terrain, idéalement située dans Les Ventes (27180). Son intérieur se divise en trois chambres, une cuisine et une salle de bains.La maison est neuve.Cette maison se trouve dans un quartier prisé. Une école primaire y est implantée. Côté transports, il y a deux gares (La Bonneville-sur-Iton et Évreux Normandie) à moins de 10 minutes en voiture. Les nationales N13 et N154 sont accessibles à moins de 9 km. On trouve une boulangerie à quelques minutes à peine.Elle est proposée à l’achat pour 226 390 €.Contactez notre agence (GRZESKOWIAK Benjamin : (Numéro supprimé)) pour obtenir de plus amples renseignements sur la maison, sur les modalités de vente ou sur les démarches à suivre.
Le Vieil-Évreux
TERRAIN ET MAISONVENTE d’une maison de 4 pièces (120 m²) au Vieil-ÉvreuxIDÉALEMENT SITUÉE – MAISON 4 PIÈCES NEUVEEn vente : localisée à deux pas d’Évreux, nous sommes ravis de vous proposer cette maison de 4 pièces de plain-pied de 120 m² et de 848 m² de terrain idéalement située dans Le Vieil-Évreux (27930). Son intérieur propose trois chambres, une cuisine et deux salles de bains.Cette maison est neuve.Cette maison se trouve dans un secteur prisé. Une école maternelle y est implantée. Niveau transports, il y a la gare Évreux Normandie à moins de 10 minutes en voiture. Les nationales N13 et N154 sont accessibles à moins de 4 km. On trouve un commerce à quelques minutes du bien.Son prix de vente est de 289 500 €.N’hésitez pas à prendre contact avec notre agence (Benjamin GRZESKOWIAK : (Numéro supprimé)) pour tout renseignement sur la maison.
Angerville-la-Campagne
TERRAIN ET MAISONVENTE d’une maison F4 (93 m²) à Angerville-la-CampagnePROCHE D’ÉVREUX – MAISON 4 PIÈCES NEUVEÀ vendre à quelques kilomètres d’Évreux, nous vous présentons cette maison de 4 pièces de plain-pied de 93 m² à Angerville-la-Campagne (27930).Elle propose trois chambres, une cuisine ouverte sur un séjour et une salle de bains. La maison est neuve.Le terrain du bien est de 445 m².On trouve l’École Primaire Alphonse Cosme à moins de 10 minutes à pied. Niveau transports, il y a deux gares (Évreux Normandie et La Bonneville-sur-Iton) à moins de 10 minutes en voiture. Les nationales N13 et N154 sont accessibles à moins de 4 km. On trouve un commerce dans les environs.Elle est à vendre pour la somme de 209 000 €.Prenez contact avec notre agence (KTARI Aurélie : (Numéro supprimé)) pour obtenir de plus amples informations sur cette maison ou sur les modalités de vente. Les Maisons Extraco Gravigny vous accompagne à toutes les étapes de votre projet et dans toutes vos démarches.
Guichainville
TERRAIN ET MAISONMaison de 5 pièces (95 m²) en vente à GuichainvilleMAISON 5 PIÈCES NEUVE – PROCHE D’ÉVREUXÀ vendre : à 5 km d’Évreux, à Guichainville (27930), Les Maisons Extraco Gravigny vous propose cette maison de 5 pièces de plain-pied de 95 m².Conçue de plain-pied, elle offre quatre chambres, une cuisine ouverte sur le séjour et une salle de bains. Cette maison est neuve.Le terrain de la propriété est de 516 m².On trouve des écoles primaires dans le quartier. Niveau transports en commun, il y a la gare Évreux Normandie à moins de 10 minutes en voiture. Les nationales N13 et N154 sont accessibles à moins de 3 km. On trouve un tennis, cinq commerces et une boulangerie à quelques minutes.Elle est proposée à l’achat pour 209 000 €.Contactez notre agence (KTARI Aurélie : (Numéro supprimé)) pour toute information sur la maison ou sur les démarches à suivre. Les Maisons Extraco Gravigny vous accompagne à toutes les étapes de l’achat et dans tous vos projets immobiliers.
Jumelles
TERRAIN ET MAISONJumelles : maison T4 (84 m²) en ventePROCHE D’ÉVREUX – MAISON 4 PIÈCES NEUVEÀ deux pas d’Évreux, nous vous présentons cette maison de 4 pièces de plain-pied de 84 m² à Jumelles (27220).Son intérieur offre trois chambres, une cuisine ouverte sur le séjour et une salle de bains. La maison est neuve.Le terrain du bien s’étend sur 650 m².Plusieurs établissements scolaires (maternelle, élémentaire, primaire et collège) sont implantés à moins de 10 minutes en voiture. Les nationales N154 et N13 sont accessibles à moins de 10 km. Il y a des tennis, une bibliothèque, des commerces, trois supermarchés, des boulangeries, trois supérettes et trois boucheries-charcuteries dans les environs. Ne manquez pas le marché Place Gambetta chaque vendredi matin.Elle est à vendre pour la somme de 209 000 €.N’hésitez pas à prendre contact avec Aurélie KTARI (tél : (Numéro supprimé)) pour toute information sur cette maison. Les Maisons Extraco Gravigny est là pour vous accompagner dans tous vos projets immobiliers.
Le Vieil-Évreux
TERRAIN ET MAISONVENTE d’une maison T4 (75 m²) au Vieil-ÉvreuxIDÉALEMENT SITUÉE – MAISON 4 PIÈCES NEUVEEn vente à quelques kilomètres d’Évreux, nous vous proposons, idéalement située dans Le Vieil-Évreux (27930), cette maison de 4 pièces de plain-pied de 75 m² et de 848 m² de terrain.Son intérieur dispose de trois chambres, d’une cuisine et d’une salle de bains. La maison est neuve.La maison est située dans un secteur recherché. On y trouve une école maternelle. Côté transports, on trouve la gare Évreux Normandie à moins de 10 minutes en voiture. Les nationales N13 et N154 sont accessibles à moins de 4 km. Il y a un commerce dans les environs.Son prix de vente est de 198 500 €.Contactez notre agence (Benjamin GRZESKOWIAK : (Numéro supprimé)) pour toute question sur la maison ou sur les démarches à suivre. Les Maisons Extraco Gravigny vous accompagne à toutes les étapes de l’achat et dans tous vos projets immobiliers.
L’actualité immobilière à Le Plessis-Grohan
27/11/2023
02/11/2023
30/10/2023
20/10/2023
16/10/2023
16/10/2023