Maison à construire à Le Vaudreuil (27100)
Images
Description
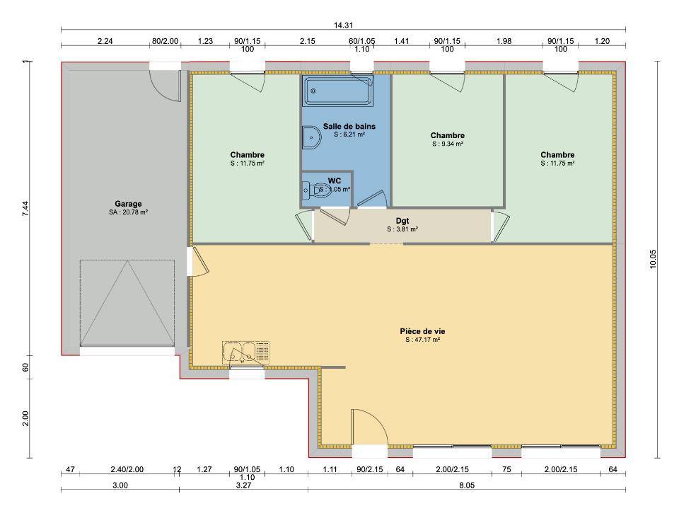
VENTE d'une maison de 5 pièces (90 m²) au Vaudreuil
MAISON 5 PIÈCES NEUVE - PROCHE DE ROUEN
En vente : à deux pas de Rouen, au Vaudreuil (27100), nous sommes ravis de vous présenter cette maison de 5 pièces de plain-pied de 90 m² et de 718 m² de terrain.
Conçue de plain-pied, elle propose trois chambres, une cuisine et une salle de bains. La maison est neuve.
Quatre établissements scolaires sont implantés à moins de 10 minutes à pied, tout comme, comme l'École Maternelle les Tilleuls, le Collège Michel de Montaigne ou l'École Primaire Privée Saint Henri. Côté transports en commun, on trouve les gares Val-de-Reuil, Saint-Pierre-du-Vauvray et Pont-de-l'Arche à moins de 10 minutes en voiture. Les autoroutes A13 et A154 et la nationale N154 sont accessibles à moins de 9 km. Il y a trois tennis, une bibliothèque, des commerces, une boulangerie, une épicerie, un bureau de poste et une boucherie-charcuterie à proximité.
Elle est proposée à l'achat pour 259 000 €.
Contactez Kévin XAVIER ALVES (tél : (Numéro supprimé)) pour tout renseignement sur la maison et sur les modalités de vente. Maisons Balency Boos vous accompagne dans tous vos projets immobiliers et à toutes les étapes de votre projet.
Annonce proposée par un Agent Commercial Partenaire.
Logement susceptibles de vous intéresser
Nous vous proposons de découvrir aussi cette sélection de logements situés à moins de 10km de Le Vaudreuil et qui seraient susceptibles de vous intéresser.
Heudebouville
TERRAINVENTE d’un terrain de 589 m² à HeudebouvillePROCHE DE ROUENEn vente à deux pas de Rouen à Heudebouville (27600), grand terrain. Réalisez-y votre résidence principale ou secondaire. L’École Primaire les Coteaux Fleuris se trouve à moins de 10 minutes à pied. Niveau transports en commun, il y a trois gares (Saint-Pierre-du-Vauvray, Gaillon-Aubevoye et Val-de-Reuil) à moins de 10 minutes en voiture. L’autoroute A13 est accessible à 1 km. On trouve un tennis, une boulangerie et une boucherie-charcuterie à proximité du bien.Il est à vendre pour la somme de 73 500 €. Prenez contact avec notre agence (Karen DELELIS : (Numéro supprimé)) pour tout renseignement sur ce terrain et sur les modalités de vente.Annonce proposée par un Agent Commercial Partenaire.
Le Vaudreuil
TERRAIN ET MAISONMaison de 5 pièces (148 m²) en vente accolée au VaudreuilMAISON 5 PIÈCES NEUVE – PROCHE DE ROUENÀ vendre : à 22 km de Rouen, accolée au Vaudreuil (27100), votre agence Les Maisons Extraco Pont-de-l’Arche est heureuse de vous proposer cette maison de 5 pièces de 148 m². Son intérieur comporte quatre chambres, une cuisine et deux salles de bains.Le terrain de cette maison s’étend sur 2 090 m².C’est une maison de 2 niveaux. Elle est neuve.Il y a quatre établissements scolaires à moins de 10 minutes à pied et, comme l’École Maternelle les Tilleuls, le Collège Michel de Montaigne ou l’École Primaire Privée Saint Henri. Niveau transports en commun, on trouve les gares Val-de-Reuil, Saint-Pierre-du-Vauvray et Pont-de-l’Arche à moins de 10 minutes en voiture. Les autoroutes A13 et A154 et la nationale N154 sont accessibles à moins de 9 km. Il y a trois tennis, une bibliothèque, des commerces, une boulangerie, une boucherie-charcuterie, un bureau de poste et une épicerie dans les environs.Elle est proposée à l’achat pour 426 560 €.Prenez contact avec Peter MORIN (tél : (Numéro supprimé)) pour obtenir de plus amples renseignements sur la maison ou sur les démarches à suivre. Les Maisons Extraco Pont-de-l’Arche est là pour vous accompagner à toutes les étapes de l’achat.
Le Vaudreuil
TERRAIN ET MAISONMaison de 7 pièces (158 m²) en vente accolée au VaudreuilPROCHE DE ROUEN – MAISON 7 PIÈCES NEUVEÀ vendre : localisée à deux pas de Rouen, nous vous proposons cette maison de 7 pièces de 158 m² accolée au Vaudreuil (27100).Cette maison compte 2 niveaux. Elle offre quatre chambres, une cuisine et trois salles de bains. Cette maison est neuve.Le terrain de la propriété est de 2 090 m².Quatre établissements scolaires sont implantés à moins de 10 minutes à pied, tout comme dont l’École Maternelle les Tilleuls, le Collège Michel de Montaigne et l’École Primaire Privée Saint Henri. Niveau transports en commun, il y a les gares Val-de-Reuil, Saint-Pierre-du-Vauvray et Pont-de-l’Arche à moins de 10 minutes en voiture. Les autoroutes A13 et A154 et la nationale N154 sont accessibles à moins de 9 km. On trouve trois tennis, une bibliothèque, des commerces, une boulangerie, un bureau de poste, une épicerie et une boucherie-charcuterie à proximité du logement.Elle est à vendre pour la somme de 448 680 €.Contactez notre agence (MORIN Peter : (Numéro supprimé)) pour plus d’informations sur cette maison, sur les démarches à suivre et sur les modalités de vente. Concrétisez vos projets immobiliers avec Les Maisons Extraco Pont-de-l’Arche.
Les Damps
TERRAIN ET MAISONAccolée Les Damps : maison T4 (82 m²) en venteMAISON 4 PIÈCES NEUVE – PROCHE DE ROUENEn vente à deux pas de Rouen, accolée aux Damps (27340), notre agence Les Maisons Extraco Pont-de-l’Arche est ravie de vous proposer cette maison de 4 pièces de plain-pied de 82 m².Conçue de plain-pied, elle dispose de trois chambres, d’une cuisine et d’une salle de bains. Cette maison est neuve.Le terrain de la propriété est de 607 m².Il y a l’École Primaire Jules Verne à moins de 10 minutes à pied. Niveau transports en commun, on trouve six gares à moins de 10 minutes en voiture. Les autoroutes A13 et A154 sont accessibles à moins de 7 km. Il y a un supermarché à quelques minutes à peine.Elle est proposée à l’achat pour 223 900 €.N’hésitez pas à prendre contact avec Peter MORIN ((Numéro supprimé)) pour toute question sur la maison, sur les démarches à suivre ou sur les modalités de vente. Faites de vos projets immobiliers une réalité avec Les Maisons Extraco Pont-de-l’Arche.
Igoville
TERRAINVENTE : terrain de 546 m² à IgovilleEMPLACEMENT PRIVILÉGIÉ – PROCHE DE ROUENGrand terrain en vente à 14 km de Rouen. De 546 m², ce terrain se situe bénéficiant d’un emplacement d’exception dans Igoville (27460). Dans un secteur recherché, le terrain est proche des écoles et des commerces. Il y a des établissements scolaires maternelles et élémentaires dans le quartier. Côté transports en commun, on trouve cinq gares à moins de 10 minutes en voiture. Les autoroutes A13 et A154 sont accessibles à moins de 9 km. Il y a un tennis, un commerce, une boulangerie, un bureau de poste et une boucherie-charcuterie à proximité.Ce terrain est proposé à l’achat pour 92 500 €. N’hésitez pas à prendre contact avec notre agence (Julien THOMAS : (Numéro supprimé)) pour tout renseignement sur le terrain. Donnez vie à vos projets immobiliers avec Les Maisons Extraco Pont-de-l’Arche.
Criquebeuf-sur-Seine
TERRAIN ET MAISONProche Criquebeuf-sur-Seine : maison F5 (105 m²) à vendreIdéalement située – À découvrir à quelques minutes de Criquebeuf-sur-Seine (27340) : maison neuve 5 pièces à vendre, 2 niveaux, 105 m² de surface et 505 m² de terrain. Son intérieur offre quatre chambres, une cuisine et deux salles de bains.À proximité : gares, École Primaire Simone Veil, boulangeries et boucherie-charcuterie. Autoroutes A13, A139 et A154 et nationale N138 à 10 km. Rouen à 17 km.Cette maison de 5 pièces est à vendre pour la somme de 260 322 €.Contactez Julien THOMAS (tél : (Numéro supprimé)) pour obtenir de plus amples informations sur la maison ou sur les démarches à suivre. Les Maisons Extraco Pont-de-l’Arche est là pour vous accompagner dans tous vos projets immobiliers.
Heudebouville
TERRAIN ET MAISONHeudebouville : maison T5 (120 m²) à vendreMAISON 5 PIÈCES NEUVE – PROCHE DE ROUENÀ vendre à deux pas de Rouen, nous vous proposons à Heudebouville (27600), cette maison de 5 pièces de plain-pied de 120 m². Conçue de plain-pied, elle compte trois chambres, une cuisine et deux salles de bains.Le terrain de la propriété s’étend sur 589 m².Cette maison est neuve.Il y a l’École Primaire les Coteaux Fleuris à moins de 10 minutes à pied. Niveau transports en commun, on trouve trois gares (Saint-Pierre-du-Vauvray, Gaillon-Aubevoye et Val-de-Reuil) à moins de 10 minutes en voiture. L’autoroute A13 est accessible à 1 km. Il y a un tennis, une boulangerie et une boucherie-charcuterie dans les environs.Elle est proposée à l’achat pour 344 910 €.Prenez contact avec Karen DELELIS ((Numéro supprimé)) pour tout renseignement sur la propriété ou sur les modalités de vente.Annonce proposée par un Agent Commercial Partenaire.
Heudebouville
TERRAIN ET MAISONVENTE : maison F6 (100 m²) à HeudebouvillePROCHE DE ROUEN – MAISON 6 PIÈCES NEUVEEn vente : à deux pas de Rouen, Maisons Balency Gravigny vous propose à Heudebouville (27600), cette maison de 6 pièces de 100 m² et de 573 m² de terrain.Cette maison comporte 2 niveaux. Son intérieur offre quatre chambres, une cuisine et deux salles de bains. La maison est neuve.On trouve l’École Primaire les Coteaux Fleuris à moins de 10 minutes à pied. Côté transports, il y a les gares Saint-Pierre-du-Vauvray, Gaillon-Aubevoye et Val-de-Reuil à moins de 10 minutes en voiture. On trouve un accès à l’autoroute A13 à 1 km. On trouve un tennis, une boulangerie et une boucherie-charcuterie dans les environs.Elle est proposée à l’achat pour 258 650 €.Prenez contact avec Karen DELELIS (tél : (Numéro supprimé)) pour plus de renseignements sur ce bien, sur les démarches à suivre ou sur les modalités de vente. Maisons Balency Gravigny vous accompagne à toutes les étapes de votre projet et dans tous vos projets immobiliers.Annonce proposée par un Agent Commercial Partenaire.
Igoville
TERRAINVENTE : terrain de 444 m² à IgovillePROCHE DE ROUENÀ Igoville (27460) en vente à quelques kilomètres de Rouen, projetez la maison de vos rêves sur ce terrain de 444 m². Des écoles maternelles et élémentaires sont implantées dans le quartier. Côté transports, il y a cinq gares à moins de 10 minutes en voiture. Les autoroutes A13 et A154 sont accessibles à moins de 9 km. On trouve un tennis, un commerce, une boulangerie, un bureau de poste et une boucherie-charcuterie à quelques minutes à peine.Il est à vendre pour la somme de 92 000 €. Prenez contact avec notre agence (Karen DELELIS : (Numéro supprimé)) pour plus d’informations sur le terrain. Maisons Balency Gravigny est là pour vous accompagner à toutes les étapes de votre projet.Annonce proposée par un Agent Commercial Partenaire.
L’actualité immobilière à Le Vaudreuil
27/11/2023
02/11/2023
30/10/2023
20/10/2023
16/10/2023
16/10/2023