Maison à construire à Terres De Bord (27400)
Images
Description
VENTE : maison de 6 pièces (117 m²) à Terres De Bord
MAISON 6 PIÈCES NEUVE - PROCHE DE ROUEN
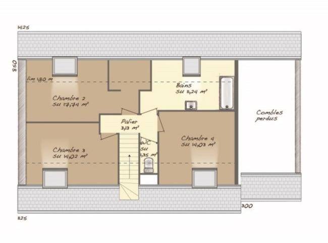
À deux pas de Rouen, à vendre à Terres De Bord (27400), nous vous proposons cette maison de 6 pièces de plain-pied de 117 m² et de 6 730 m² de terrain.
Son intérieur comporte quatre chambres, une cuisine et deux salles de bains. La maison est neuve.
Il y a l'École Primaire Montaure à moins de 10 minutes à pied et une structure d'accueil pour la petite enfance. Niveau transports en commun, on trouve la gare Elbeuf-Saint-Aubin à moins de 10 minutes en voiture. Les autoroutes A13 et A154 et la nationale N154 sont accessibles à moins de 9 km. Il y a un tennis et une boulangerie à quelques minutes à peine.
Elle est à vendre pour la somme de 353 000 €.
Contactez Kévin XAVIER ALVES ((Numéro supprimé)) pour plus d'informations sur cette maison ou sur les modalités de vente.
Annonce proposée par un Agent Commercial Partenaire.
Logement susceptibles de vous intéresser
Nous vous proposons de découvrir aussi cette sélection de logements situés à moins de 10km de Louviers et qui seraient susceptibles de vous intéresser.
Heudebouville
TERRAINVENTE d’un terrain de 589 m² à HeudebouvillePROCHE DE ROUENEn vente à deux pas de Rouen à Heudebouville (27600), grand terrain. Réalisez-y votre résidence principale ou secondaire. L’École Primaire les Coteaux Fleuris se trouve à moins de 10 minutes à pied. Niveau transports en commun, il y a trois gares (Saint-Pierre-du-Vauvray, Gaillon-Aubevoye et Val-de-Reuil) à moins de 10 minutes en voiture. L’autoroute A13 est accessible à 1 km. On trouve un tennis, une boulangerie et une boucherie-charcuterie à proximité du bien.Il est à vendre pour la somme de 73 500 €. Prenez contact avec notre agence (Karen DELELIS : (Numéro supprimé)) pour tout renseignement sur ce terrain et sur les modalités de vente.Annonce proposée par un Agent Commercial Partenaire.
Le Vaudreuil
TERRAIN ET MAISONMaison de 5 pièces (148 m²) en vente accolée au VaudreuilMAISON 5 PIÈCES NEUVE – PROCHE DE ROUENÀ vendre : à 22 km de Rouen, accolée au Vaudreuil (27100), votre agence Les Maisons Extraco Pont-de-l’Arche est heureuse de vous proposer cette maison de 5 pièces de 148 m². Son intérieur comporte quatre chambres, une cuisine et deux salles de bains.Le terrain de cette maison s’étend sur 2 090 m².C’est une maison de 2 niveaux. Elle est neuve.Il y a quatre établissements scolaires à moins de 10 minutes à pied et, comme l’École Maternelle les Tilleuls, le Collège Michel de Montaigne ou l’École Primaire Privée Saint Henri. Niveau transports en commun, on trouve les gares Val-de-Reuil, Saint-Pierre-du-Vauvray et Pont-de-l’Arche à moins de 10 minutes en voiture. Les autoroutes A13 et A154 et la nationale N154 sont accessibles à moins de 9 km. Il y a trois tennis, une bibliothèque, des commerces, une boulangerie, une boucherie-charcuterie, un bureau de poste et une épicerie dans les environs.Elle est proposée à l’achat pour 426 560 €.Prenez contact avec Peter MORIN (tél : (Numéro supprimé)) pour obtenir de plus amples renseignements sur la maison ou sur les démarches à suivre. Les Maisons Extraco Pont-de-l’Arche est là pour vous accompagner à toutes les étapes de l’achat.
Le Vaudreuil
TERRAIN ET MAISONMaison de 7 pièces (158 m²) en vente accolée au VaudreuilPROCHE DE ROUEN – MAISON 7 PIÈCES NEUVEÀ vendre : localisée à deux pas de Rouen, nous vous proposons cette maison de 7 pièces de 158 m² accolée au Vaudreuil (27100).Cette maison compte 2 niveaux. Elle offre quatre chambres, une cuisine et trois salles de bains. Cette maison est neuve.Le terrain de la propriété est de 2 090 m².Quatre établissements scolaires sont implantés à moins de 10 minutes à pied, tout comme dont l’École Maternelle les Tilleuls, le Collège Michel de Montaigne et l’École Primaire Privée Saint Henri. Niveau transports en commun, il y a les gares Val-de-Reuil, Saint-Pierre-du-Vauvray et Pont-de-l’Arche à moins de 10 minutes en voiture. Les autoroutes A13 et A154 et la nationale N154 sont accessibles à moins de 9 km. On trouve trois tennis, une bibliothèque, des commerces, une boulangerie, un bureau de poste, une épicerie et une boucherie-charcuterie à proximité du logement.Elle est à vendre pour la somme de 448 680 €.Contactez notre agence (MORIN Peter : (Numéro supprimé)) pour plus d’informations sur cette maison, sur les démarches à suivre et sur les modalités de vente. Concrétisez vos projets immobiliers avec Les Maisons Extraco Pont-de-l’Arche.
Les Damps
TERRAIN ET MAISONAccolée Les Damps : maison T4 (82 m²) en venteMAISON 4 PIÈCES NEUVE – PROCHE DE ROUENEn vente à deux pas de Rouen, accolée aux Damps (27340), notre agence Les Maisons Extraco Pont-de-l’Arche est ravie de vous proposer cette maison de 4 pièces de plain-pied de 82 m².Conçue de plain-pied, elle dispose de trois chambres, d’une cuisine et d’une salle de bains. Cette maison est neuve.Le terrain de la propriété est de 607 m².Il y a l’École Primaire Jules Verne à moins de 10 minutes à pied. Niveau transports en commun, on trouve six gares à moins de 10 minutes en voiture. Les autoroutes A13 et A154 sont accessibles à moins de 7 km. Il y a un supermarché à quelques minutes à peine.Elle est proposée à l’achat pour 223 900 €.N’hésitez pas à prendre contact avec Peter MORIN ((Numéro supprimé)) pour toute question sur la maison, sur les démarches à suivre ou sur les modalités de vente. Faites de vos projets immobiliers une réalité avec Les Maisons Extraco Pont-de-l’Arche.
Criquebeuf-sur-Seine
TERRAIN ET MAISONProche Criquebeuf-sur-Seine : maison F5 (105 m²) à vendreIdéalement située – À découvrir à quelques minutes de Criquebeuf-sur-Seine (27340) : maison neuve 5 pièces à vendre, 2 niveaux, 105 m² de surface et 505 m² de terrain. Son intérieur offre quatre chambres, une cuisine et deux salles de bains.À proximité : gares, École Primaire Simone Veil, boulangeries et boucherie-charcuterie. Autoroutes A13, A139 et A154 et nationale N138 à 10 km. Rouen à 17 km.Cette maison de 5 pièces est à vendre pour la somme de 260 322 €.Contactez Julien THOMAS (tél : (Numéro supprimé)) pour obtenir de plus amples informations sur la maison ou sur les démarches à suivre. Les Maisons Extraco Pont-de-l’Arche est là pour vous accompagner dans tous vos projets immobiliers.
Heudebouville
TERRAIN ET MAISONHeudebouville : maison T5 (120 m²) à vendreMAISON 5 PIÈCES NEUVE – PROCHE DE ROUENÀ vendre à deux pas de Rouen, nous vous proposons à Heudebouville (27600), cette maison de 5 pièces de plain-pied de 120 m². Conçue de plain-pied, elle compte trois chambres, une cuisine et deux salles de bains.Le terrain de la propriété s’étend sur 589 m².Cette maison est neuve.Il y a l’École Primaire les Coteaux Fleuris à moins de 10 minutes à pied. Niveau transports en commun, on trouve trois gares (Saint-Pierre-du-Vauvray, Gaillon-Aubevoye et Val-de-Reuil) à moins de 10 minutes en voiture. L’autoroute A13 est accessible à 1 km. Il y a un tennis, une boulangerie et une boucherie-charcuterie dans les environs.Elle est proposée à l’achat pour 344 910 €.Prenez contact avec Karen DELELIS ((Numéro supprimé)) pour tout renseignement sur la propriété ou sur les modalités de vente.Annonce proposée par un Agent Commercial Partenaire.
Heudebouville
TERRAIN ET MAISONVENTE : maison F6 (100 m²) à HeudebouvillePROCHE DE ROUEN – MAISON 6 PIÈCES NEUVEEn vente : à deux pas de Rouen, Maisons Balency Gravigny vous propose à Heudebouville (27600), cette maison de 6 pièces de 100 m² et de 573 m² de terrain.Cette maison comporte 2 niveaux. Son intérieur offre quatre chambres, une cuisine et deux salles de bains. La maison est neuve.On trouve l’École Primaire les Coteaux Fleuris à moins de 10 minutes à pied. Côté transports, il y a les gares Saint-Pierre-du-Vauvray, Gaillon-Aubevoye et Val-de-Reuil à moins de 10 minutes en voiture. On trouve un accès à l’autoroute A13 à 1 km. On trouve un tennis, une boulangerie et une boucherie-charcuterie dans les environs.Elle est proposée à l’achat pour 258 650 €.Prenez contact avec Karen DELELIS (tél : (Numéro supprimé)) pour plus de renseignements sur ce bien, sur les démarches à suivre ou sur les modalités de vente. Maisons Balency Gravigny vous accompagne à toutes les étapes de votre projet et dans tous vos projets immobiliers.Annonce proposée par un Agent Commercial Partenaire.
Les Damps
TERRAIN ET MAISONaccolée Les Damps : maison T4 (85 m²) à vendrePROCHE DE ROUEN – MAISON 4 PIÈCES NEUVEEn vente à quelques kilomètres de Rouen, nous sommes ravis de vous présenter accolée aux Damps (27340), cette maison de 4 pièces de plain-pied de 85 m². Son intérieur inclut trois chambres, une cuisine et une salle de bains.Le terrain du bien est de 607 m².La maison est neuve.Il y a l’École Primaire Jules Verne à moins de 10 minutes à pied. Niveau transports en commun, on trouve six gares à moins de 10 minutes en voiture. Les autoroutes A13 et A154 sont accessibles à moins de 7 km. Il y a un supermarché à quelques minutes de la maison.Son prix de vente est de 244 910 €.Prenez contact avec Peter MORIN ((Numéro supprimé)) pour plus d’informations sur le bien ou sur les modalités de vente. Les Maisons Extraco Pont-de-l’Arche est là pour vous accompagner dans tous vos projets immobiliers.
La Haye-Malherbe
TERRAIN ET MAISONLa Haye-Malherbe : maison de 5 pièces (92 m²) à vendreIDÉALEMENT SITUÉE – MAISON 5 PIÈCES NEUVEEn vente à 23 km de Rouen, venez découvrir, idéalement située dans La Haye-Malherbe (27400), cette maison de 5 pièces de plain-pied de 92 m² et de 485 m² de terrain.Elle compte quatre chambres, une cuisine et une salle de bains. Cette maison est neuve.Cette maison se trouve dans un quartier recherché. L’École Primaire le Village est implantée à moins de 10 minutes à pied. Niveau transports en commun, on trouve la gare Elbeuf-Saint-Aubin à moins de 10 minutes en voiture. Les autoroutes A13 et A154 et la nationale N154 sont accessibles à moins de 9 km. Il y a trois commerces, une boulangerie, un bureau de poste, une boucherie-charcuterie et une épicerie dans les environs.Son prix de vente est de 207 990 €.Prenez contact avec notre agence (Julien THOMAS : (Numéro supprimé)) pour plus de renseignements sur la maison, sur les modalités de vente ou sur les démarches à suivre. Faites de vos projets immobiliers une réalité avec Les Maisons Extraco Pont-de-l’Arche.
L’actualité immobilière à Louviers
27/11/2023
02/11/2023
30/10/2023
20/10/2023
16/10/2023
16/10/2023