Maison à construire à Marcilly-la-Campagne (27320)
Images
Description
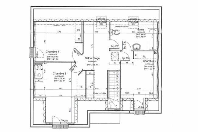
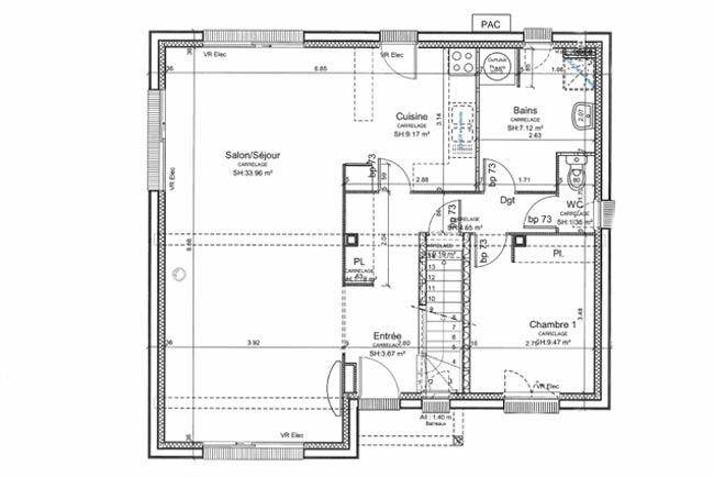
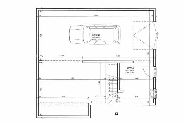
Maison de 5 pièces (125 m²) en vente à Marcilly-la-Campagne
PROCHE D'ÉVREUX - MAISON 5 PIÈCES NEUVE
À vendre : à deux pas d'Évreux, nous vous proposons cette maison de 5 pièces de 125 m² à Marcilly-la-Campagne (27320).
Cette maison possède 2 niveaux. Elle se divise en quatre chambres, une cuisine et deux salles de bains. La maison est neuve.
Le terrain du bien est de 800 m².
Il y a une école primaire dans le quartier. Côté transports, on trouve la gare Nonancourt à moins de 10 minutes en voiture. Les nationales N154 et N12 sont accessibles à moins de 8 km.
Son prix de vente est de 301 230 €.
N'hésitez pas à prendre contact avec Benjamin GRZESKOWIAK (tél : (Numéro supprimé)) pour toute question sur cette maison, sur les modalités de vente ou sur les démarches à suivre.
Logement susceptibles de vous intéresser
Nous vous proposons de découvrir aussi cette sélection de logements situés à moins de 10km de Marcilly-la-Campagne et qui seraient susceptibles de vous intéresser.
Marcilly-la-Campagne
TERRAIN ET MAISONMarcilly-la-Campagne : maison de 4 pièces (110 m²) en venteMAISON 4 PIÈCES NEUVE – PROCHE D’ÉVREUXEn vente à deux pas d’Évreux, nous sommes heureux de vous proposer cette maison de 4 pièces de 110 m² et de 800 m² de terrain à Marcilly-la-Campagne (27320). Elle offre trois chambres, une cuisine et une salle de bains.C’est une maison de 2 niveaux. Elle est neuve.Il y a une école primaire dans le quartier. Niveau transports, on trouve la gare Nonancourt à moins de 10 minutes en voiture. Les nationales N154 et N12 sont accessibles à moins de 8 km.Elle est proposée à l’achat pour 231 795 €.Contactez notre agence (GRZESKOWIAK Benjamin : (Numéro supprimé)) pour plus d’informations sur la maison, sur les démarches à suivre ou sur les modalités de vente. Les Maisons Extraco Gravigny vous accompagne à toutes les étapes de l’achat et dans tous vos projets immobiliers.
Marcilly-la-Campagne
TERRAIN ET MAISONMarcilly-la-Campagne : maison de 4 pièces (120 m²) en ventePROCHE D’ÉVREUX – MAISON 4 PIÈCES NEUVEÀ vendre : située à 21 km d’Évreux, nous vous présentons cette maison de 4 pièces de plain-pied de 120 m² à Marcilly-la-Campagne (27320).Conçue de plain-pied, elle se divise en trois chambres, une cuisine et deux salles de bains. La maison est neuve.Le terrain du bien est de 800 m².Une école primaire est implantée dans le quartier. Niveau transports en commun, il y a la gare Nonancourt à moins de 10 minutes en voiture. Les nationales N154 et N12 sont accessibles à moins de 8 km.Son prix de vente est de 295 000 €.N’hésitez pas à prendre contact avec Benjamin GRZESKOWIAK ((Numéro supprimé)) pour tout renseignement sur cette maison ou sur les modalités de vente. Faites de vos projets immobiliers une réalité avec Les Maisons Extraco Gravigny.
Marcilly-la-Campagne
TERRAIN ET MAISONVENTE : maison F3 (57 m²) à Marcilly-la-CampagneMAISON 3 PIÈCES NEUVE – PROCHE D’ÉVREUXEn vente : à quelques kilomètres d’Évreux, nous sommes heureux de vous proposer cette maison de 3 pièces de plain-pied de 57 m² et de 800 m² de terrain à Marcilly-la-Campagne (27320). Conçue de plain-pied, elle propose une chambre, une cuisine et une salle de bains.La maison est neuve.On trouve une école primaire dans le quartier. Niveau transports, il y a la gare Nonancourt à moins de 10 minutes en voiture. Les nationales N154 et N12 sont accessibles à moins de 8 km.Elle est à vendre pour la somme de 157 191 €.N’hésitez pas à prendre contact avec notre agence (GRZESKOWIAK Benjamin : (Numéro supprimé)) pour plus de renseignements sur cette maison.
Marcilly-la-Campagne
TERRAIN ET MAISONMaison de 5 pièces (125 m²) en vente à Marcilly-la-CampagnePROCHE D’ÉVREUX – MAISON 5 PIÈCES NEUVEÀ vendre : à deux pas d’Évreux, nous vous proposons cette maison de 5 pièces de 125 m² à Marcilly-la-Campagne (27320).Cette maison possède 2 niveaux. Elle se divise en quatre chambres, une cuisine et deux salles de bains. La maison est neuve.Le terrain du bien est de 800 m².Il y a une école primaire dans le quartier. Côté transports, on trouve la gare Nonancourt à moins de 10 minutes en voiture. Les nationales N154 et N12 sont accessibles à moins de 8 km.Son prix de vente est de 301 230 €.N’hésitez pas à prendre contact avec Benjamin GRZESKOWIAK (tél : (Numéro supprimé)) pour toute question sur cette maison, sur les modalités de vente ou sur les démarches à suivre.
Marcilly-la-Campagne
TERRAINMarcilly-la-Campagne : terrain de 800 m² en ventePROCHE D’ÉVREUXEn vente à deux pas d’Évreux à Marcilly-la-Campagne (27320), grand terrain. Il est prêt à accueillir votre projet de construction pour toute la famille. Il est exposé plein sud. Ce terrain est proche des commerces et des écoles. Une école primaire est implantée dans le quartier. Niveau transports en commun, on trouve la gare Nonancourt à moins de 10 minutes en voiture. Les nationales N154 et N12 sont accessibles à moins de 8 km.Son prix de vente est de 50 000 €. Prenez contact avec Benjamin GRZESKOWIAK (tél : (Numéro supprimé)) pour toute question sur ce terrain. Les Maisons Extraco Gravigny vous accompagne dans tous vos projets immobiliers et dans toutes vos démarches.
Marcilly-la-Campagne
TERRAIN ET MAISONVENTE : maison T6 (90 m²) à Marcilly-la-CampagneIDÉALEMENT SITUÉE – MAISON 6 PIÈCES NEUVEÀ 21 km d’Évreux, votre agence Maisons Balency Boos est ravie de vous présenter cette maison de 6 pièces de plain-pied de 90 m² et de 803 m² de terrain à vendre, idéalement située dans Marcilly-la-Campagne (27320). Son intérieur se divise en trois chambres, une cuisine et une salle de bains.La maison est neuve.Cette maison se situe dans un quartier prisé. On y trouve une école primaire. Niveau transports en commun, on trouve la gare Nonancourt à moins de 10 minutes en voiture. Les nationales N154 et N12 sont accessibles à moins de 8 km.Elle est à vendre pour la somme de 223 000 €.Contactez Aurélien LEOVANT ((Numéro supprimé)) pour toute information sur la maison, sur les modalités de vente ou sur les démarches à suivre. Concrétisez vos projets immobiliers avec Maisons Balency Boos.Annonce proposée par un Agent Commercial Partenaire.
Marcilly-la-Campagne
TERRAIN ET MAISONMarcilly-la-Campagne : maison de 6 pièces (76 m²) en venteIDÉALEMENT SITUÉE – MAISON 6 PIÈCES NEUVEÀ vendre : localisée à deux pas d’Évreux, idéalement située dans Marcilly-la-Campagne (27320), nous sommes heureux de vous présenter cette maison de 6 pièces de plain-pied de 76 m².Conçue de plain-pied, elle est composée de trois chambres, d’une cuisine et d’une salle de bains. Cette maison est neuve.Le terrain de la propriété s’étend sur 803 m².La maison se situe dans un quartier convoité. Une école primaire y est implantée. Côté transports en commun, il y a la gare Nonancourt à moins de 10 minutes en voiture. Les nationales N154 et N12 sont accessibles à moins de 8 km.Son prix de vente est de 178 000 €.Contactez notre agence (LEOVANT Aurélien : (Numéro supprimé)) pour toute information sur la maison ou sur les démarches à suivre. Maisons Balency Boos est là pour vous accompagner à toutes les étapes de votre projet.Annonce proposée par un Agent Commercial Partenaire.
Marcilly-la-Campagne
TERRAIN ET MAISONMarcilly-la-Campagne : maison de 4 pièces (50 m²) à vendreIDÉALEMENT SITUÉE – MAISON 4 PIÈCES NEUVEÀ quelques kilomètres d’Évreux, nous sommes heureux de vous proposer cette maison de 4 pièces de plain-pied de 50 m² et de 803 m² de terrain en vente, idéalement située dans Marcilly-la-Campagne (27320). Conçue de plain-pied, elle offre deux chambres, une cuisine et une salle de bains.Cette maison est neuve.Cette maison se trouve dans un quartier convoité. Une école primaire y est implantée. Côté transports, il y a la gare Nonancourt à moins de 10 minutes en voiture. Les nationales N154 et N12 sont accessibles à moins de 8 km.Elle est à vendre pour la somme de 155 000 €.Contactez notre agence (Aurélien LEOVANT : (Numéro supprimé)) pour plus de renseignements sur la propriété ou sur les démarches à suivre.Annonce proposée par un Agent Commercial Partenaire.
Marcilly-la-Campagne
TERRAIN ET MAISONVENTE : maison de 6 pièces (115 m²) à Marcilly-la-CampagneIDÉALEMENT SITUÉE – MAISON 6 PIÈCES NEUVEÀ vendre à deux pas d’Évreux, nous sommes ravis de vous proposer cette maison de 6 pièces de 115 m² idéalement située dans Marcilly-la-Campagne (27320).Il s’agit d’une maison de 2 niveaux. Elle comporte quatre chambres, une cuisine et deux salles de bains. La maison est neuve.Le terrain du bien est de 803 m².Cette maison se trouve dans un quartier recherché. Une école primaire y est implantée. Niveau transports en commun, il y a la gare Nonancourt à moins de 10 minutes en voiture. Les nationales N154 et N12 sont accessibles à moins de 8 km.Elle est proposée à l’achat pour 241 700 €.Prenez contact avec notre agence (LEOVANT Aurélien : (Numéro supprimé)) pour tout renseignement sur la maison.Annonce proposée par un Agent Commercial Partenaire.
L’actualité immobilière à Marcilly-la-Campagne
27/11/2023
02/11/2023
30/10/2023
20/10/2023
16/10/2023
16/10/2023