Maison à construire à Pont-Authou (27290)
Images
Description
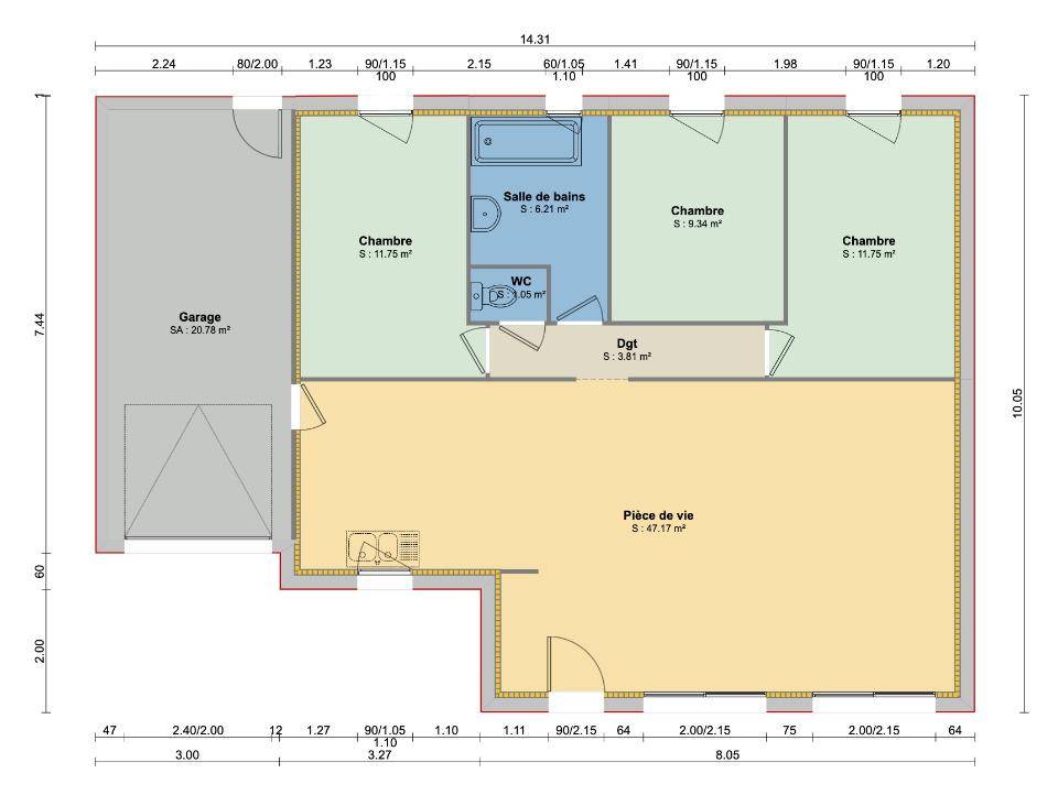
VENTE d'une maison F5 (90 m²) à Pont-Authou
IDÉALEMENT SITUÉE - MAISON 5 PIÈCES NEUVE
À vendre : à 36 km de la Manche, idéalement située dans Pont-Authou (27290), nous sommes heureux de vous présenter cette maison de 5 pièces de plain-pied de 90 m². Conçue de plain-pied, elle est composée de trois chambres, d'une cuisine et d'une salle de bains.
Le terrain du bien est de 600 m².
La maison est neuve.
Cette maison est située dans un secteur prisé. On y trouve une école primaire. Niveau transports, il y a deux gares (Glos-Montfort et Brionne) à moins de 10 minutes en voiture. Il y a un accès à l'autoroute A28 à 6 km. On trouve une boulangerie, une épicerie et une boucherie-charcuterie dans les environs.
Elle est proposée à l'achat pour 218 600 €.
Contactez notre agence (Aurélien LEOVANT : (Numéro supprimé)) pour obtenir de plus amples renseignements sur la maison.
Annonce proposée par un Agent Commercial Partenaire.
Logement susceptibles de vous intéresser
Nous vous proposons de découvrir aussi cette sélection de logements situés à moins de 10km de Pont-Authou et qui seraient susceptibles de vous intéresser.
Saint-Georges-du-Vièvre
TERRAIN ET MAISONMaison F5 (104 m²) à vendre à Saint-Georges-du-VièvreEMPLACEMENT PRIVILÉGIÉ – MAISON 5 PIÈCES NEUVEÀ vendre : à 28 km de la Manche, bénéficiant d’un emplacement d’exception dans Saint-Georges-du-Vièvre (27450), nous vous proposons cette maison de 5 pièces de plain-pied de 104 m² et de 758 m² de terrain. Conçue de plain-pied, elle est composée de quatre chambres, d’une cuisine et de deux salles de bains.Cette maison est neuve.La maison se trouve dans un secteur prisé. On y trouve une école primaire. Côté transports en commun, il y a la gare Glos-Montfort à moins de 10 minutes en voiture. Les autoroutes A28, A13 et A131 sont accessibles à moins de 17 km. On trouve un tennis, un bassin de natation, une boulangerie, deux commerces, une épicerie et une boucherie-charcuterie à proximité du bien.Elle est proposée à l’achat pour 243 000 €.N’hésitez pas à prendre contact avec Juliette PETIT ((Numéro supprimé)) pour obtenir de plus amples renseignements sur la maison ou sur les démarches à suivre. Les Maisons Extraco Pont-Audemer vous accompagne à toutes les étapes de l’achat et dans tous vos projets immobiliers.
Saint-Georges-du-Vièvre
TERRAIN ET MAISONVENTE : maison de 4 pièces (85 m²) à Saint-Georges-du-VièvreEMPLACEMENT PRIVILÉGIÉ – MAISON 4 PIÈCES NEUVEEn vente à 28 km de la Manche, nous sommes ravis de vous présenter cette maison de 4 pièces de plain-pied de 85 m² et de 559 m² de terrain bénéficiant d’un emplacement privilégié dans Saint-Georges-du-Vièvre (27450).Elle dispose de trois chambres, d’une cuisine et d’une salle de bains. La maison est neuve.Cette propriété se situe dans un quartier prisé. On y trouve une école primaire. Niveau transports, il y a la gare Glos-Montfort à moins de 10 minutes en voiture. Les autoroutes A28, A13 et A131 sont accessibles à moins de 17 km. On trouve un tennis, un bassin de natation, une boulangerie, deux commerces, une épicerie et une boucherie-charcuterie à proximité de la maison.Son prix de vente est de 183 000 €.Prenez contact avec notre agence (Juliette PETIT : (Numéro supprimé)) pour tout renseignement sur la maison, sur les modalités de vente ou sur les démarches à suivre. Faites de vos projets immobiliers une réalité avec Les Maisons Extraco Pont-Audemer.
Saint-Georges-du-Vièvre
TERRAINTerrain de 559 m² en vente à Saint-Georges-du-VièvreEMPLACEMENT PRIVILÉGIÉÀ Saint-Georges-du-Vièvre (27450) à 28 km de la Manche, imaginez la maison de vos rêves sur ce terrain de 559 m². Dans un quartier attractif, ce terrain bénéficiant d’un emplacement d’exception est proche des commerces et des écoles. Il y a une école primaire dans le quartier. Niveau transports, on trouve la gare Glos-Montfort à moins de 10 minutes en voiture. Les autoroutes A28, A13 et A131 sont accessibles à moins de 17 km. Il y a un tennis, un bassin de natation, une boulangerie, deux commerces, une épicerie et une boucherie-charcuterie à quelques minutes à peine.Il est à vendre pour la somme de 33 540 €. Contactez Juliette PETIT ((Numéro supprimé)) pour obtenir de plus amples renseignements sur ce terrain, sur les démarches à suivre ou sur les modalités de vente. Les Maisons Extraco Pont-Audemer est là pour vous accompagner à toutes les étapes de votre projet.
Saint-Georges-du-Vièvre
TERRAIN ET MAISONSaint-Georges-du-Vièvre : maison F5 (114 m²) en venteEMPLACEMENT PRIVILÉGIÉ – MAISON 5 PIÈCES NEUVEÀ 28 km de la Manche, en vente bénéficiant d’un emplacement privilégié dans Saint-Georges-du-Vièvre (27450), nous sommes ravis de vous proposer cette maison de 5 pièces de plain-pied de 114 m² et de 758 m² de terrain. Son intérieur se divise en quatre chambres, une cuisine et une salle de bains.Cette maison est neuve.La maison est située dans un secteur prisé. Une école primaire y est implantée. Côté transports en commun, on trouve la gare Glos-Montfort à moins de 10 minutes en voiture. Les autoroutes A28, A13 et A131 sont accessibles à moins de 17 km. Il y a un tennis, un bassin de natation, une boulangerie, deux commerces, une épicerie et une boucherie-charcuterie dans les environs.Son prix de vente est de 207 000 €.Prenez contact avec notre agence (Juliette PETIT : (Numéro supprimé)) pour plus de renseignements sur la maison, sur les modalités de vente ou sur les démarches à suivre.
Saint-Georges-du-Vièvre
TERRAIN ET MAISONVENTE : maison de 4 pièces (81 m²) à Saint-Georges-du-VièvreEMPLACEMENT PRIVILÉGIÉ – MAISON 4 PIÈCES NEUVEÀ vendre : à 28 km de la Manche, bénéficiant d’un emplacement d’exception dans Saint-Georges-du-Vièvre (27450), nous sommes heureux de vous proposer cette maison de 4 pièces de 81 m² et de 559 m² de terrain. Elle dispose de deux chambres, d’une cuisine et d’une salle de bains.Cette maison comporte 2 niveaux. Elle est neuve.Cette maison est située dans un secteur prisé. Une école primaire y est implantée. Côté transports, on trouve la gare Glos-Montfort à moins de 10 minutes en voiture. Les autoroutes A28, A13 et A131 sont accessibles à moins de 17 km. Il y a un tennis, un bassin de natation, une boulangerie, deux commerces, une boucherie-charcuterie et une épicerie dans les environs.Elle est à vendre pour la somme de 182 000 €.Contactez notre agence (PETIT Juliette : (Numéro supprimé)) pour toute question sur la maison ou sur les modalités de vente.
Saint-Georges-du-Vièvre
TERRAIN ET MAISONVENTE d’une maison T3 (99 m²) à Saint-Georges-du-VièvreEMPLACEMENT PRIVILÉGIÉ – MAISON 3 PIÈCES NEUVEÀ vendre : à 28 km de la Manche, bénéficiant d’un emplacement d’exception dans Saint-Georges-du-Vièvre (27450), notre agence Les Maisons Extraco Pont-Audemer est ravie de vous proposer cette maison de 3 pièces de plain-pied de 99 m². Conçue de plain-pied, elle se divise en trois chambres, une cuisine et deux salles de bains.Le terrain du bien est de 758 m².La maison est neuve.La maison est située dans un quartier attractif. On y trouve une école primaire. Niveau transports, on trouve la gare Glos-Montfort à moins de 10 minutes en voiture. Les autoroutes A28, A13 et A131 sont accessibles à moins de 17 km. Il y a un tennis, un bassin de natation, une boulangerie, deux commerces, une boucherie-charcuterie et une épicerie à proximité de la maison.Elle est proposée à l’achat pour 234 000 €.Contactez Juliette PETIT (tél : (Numéro supprimé)) pour toute question sur la maison et sur les démarches à suivre.
Saint-Georges-du-Vièvre
TERRAINTerrain de 758 m² à vendre à Saint-Georges-du-VièvreEMPLACEMENT PRIVILÉGIÉÀ Saint-Georges-du-Vièvre (27450) en vente à 28 km de la Manche, imaginez la maison de vos rêves sur ce terrain de 758 m². Dans un quartier recherché, ce terrain bénéficiant d’un emplacement privilégié est proche des commerces et des écoles. On trouve une école primaire dans le quartier. Niveau transports en commun, il y a la gare Glos-Montfort à moins de 10 minutes en voiture. Les autoroutes A28, A13 et A131 sont accessibles à moins de 17 km. On trouve un tennis, un bassin de natation, une boulangerie, deux commerces, une boucherie-charcuterie et une épicerie à quelques minutes de la propriété.Il est à vendre pour la somme de 45 480 €. N’hésitez pas à prendre contact avec notre agence (PETIT Juliette : (Numéro supprimé)) pour toute information sur ce terrain, sur les démarches à suivre ou sur les modalités de vente. Les Maisons Extraco Pont-Audemer est là pour vous accompagner à toutes les étapes de l’achat.
Saint-Georges-du-Vièvre
TERRAIN ET MAISONMaison T4 (71 m²) en vente à Saint-Georges-du-VièvreEMPLACEMENT PRIVILÉGIÉ – MAISON 4 PIÈCES NEUVEEn vente : située à 28 km de la Manche, nous sommes heureux de vous présenter, bénéficiant d’un emplacement d’exception dans Saint-Georges-du-Vièvre (27450), cette maison de 4 pièces de plain-pied de 71 m² et de 559 m² de terrain.Conçue de plain-pied, elle offre deux chambres, une cuisine et une salle de bains. Cette maison est neuve.La maison se trouve dans un secteur attractif. Une école primaire y est implantée. Côté transports, il y a la gare Glos-Montfort à moins de 10 minutes en voiture. Les autoroutes A28, A13 et A131 sont accessibles à moins de 17 km. On trouve un tennis, un bassin de natation, une boulangerie, deux commerces, une boucherie-charcuterie et une épicerie dans les environs.Elle est proposée à l’achat pour 158 000 €.Contactez notre agence (PETIT Juliette : (Numéro supprimé)) pour toute information sur la maison ou sur les modalités de vente. Faites de vos projets immobiliers une réalité avec Les Maisons Extraco Pont-Audemer.
Brionne
TERRAIN ET MAISONMaison de 89m² habitableElle se compose d’une belle pièces de vie ouverte, avec un cellier et une chambre au rdc.A l’étage 3 chambres et une salle de bain.Prestations :Carrelage 45*45volets roulants encastrée à la maçonnerie + électrique SomfyParquet dans les chambresPour une étude de votre projet de construction merci de prendre rdv au (Numéro supprimé) Angélique Vaudry
L’actualité immobilière à Pont-Authou
27/11/2023
02/11/2023
30/10/2023
20/10/2023
16/10/2023
16/10/2023