Maison à construire à Surville (27400)
Images
Description
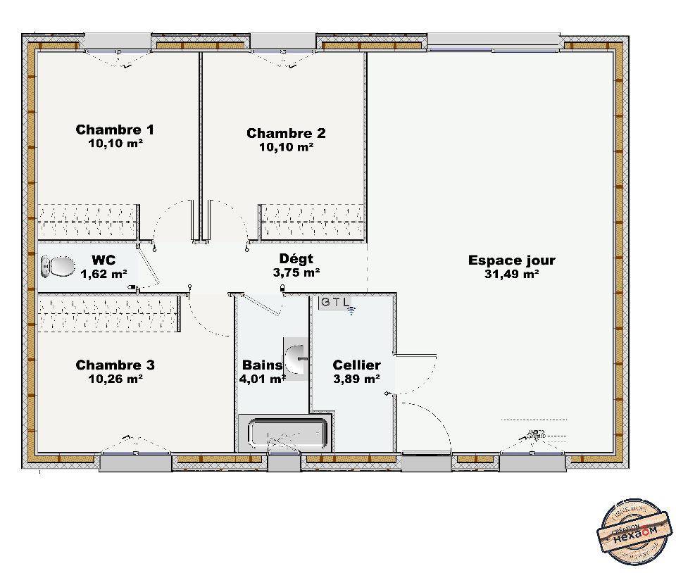
VENTE : maison de 4 pièces (75 m²) à Surville
PROCHE DE ROUEN - MAISON 4 PIÈCES NEUVE
À vendre à deux pas de Rouen, Les Maisons Extraco Pont-de-l'Arche vous propose cette maison de 4 pièces de plain-pied de 75 m² et de 823 m² de terrain à Surville (27400). Conçue de plain-pied, elle est composée de trois chambres, d'une cuisine et d'une salle de bains.
Cette maison est neuve.
L'École Primaire Aulnette est implantée à moins de 10 minutes à pied. Niveau transports, on trouve la gare Saint-Pierre-du-Vauvray à moins de 10 minutes en voiture. Les autoroutes A154 et A13 et la nationale N154 sont accessibles à moins de 8 km. Il y a une boulangerie, un commerce et une épicerie à proximité.
Elle est à vendre pour la somme de 201 200 €.
Contactez Julien THOMAS ((Numéro supprimé)) pour obtenir de plus amples renseignements sur cette maison. Les Maisons Extraco Pont-de-l'Arche est là pour vous accompagner dans tous vos projets immobiliers.
Logement susceptibles de vous intéresser
Nous vous proposons de découvrir aussi cette sélection de logements situés à moins de 10km de Surville et qui seraient susceptibles de vous intéresser.
Heudebouville
TERRAINVENTE d’un terrain de 589 m² à HeudebouvillePROCHE DE ROUENEn vente à deux pas de Rouen à Heudebouville (27600), grand terrain. Réalisez-y votre résidence principale ou secondaire. L’École Primaire les Coteaux Fleuris se trouve à moins de 10 minutes à pied. Niveau transports en commun, il y a trois gares (Saint-Pierre-du-Vauvray, Gaillon-Aubevoye et Val-de-Reuil) à moins de 10 minutes en voiture. L’autoroute A13 est accessible à 1 km. On trouve un tennis, une boulangerie et une boucherie-charcuterie à proximité du bien.Il est à vendre pour la somme de 73 500 €. Prenez contact avec notre agence (Karen DELELIS : (Numéro supprimé)) pour tout renseignement sur ce terrain et sur les modalités de vente.Annonce proposée par un Agent Commercial Partenaire.
Le Vaudreuil
TERRAIN ET MAISONMaison de 5 pièces (148 m²) en vente accolée au VaudreuilMAISON 5 PIÈCES NEUVE – PROCHE DE ROUENÀ vendre : à 22 km de Rouen, accolée au Vaudreuil (27100), votre agence Les Maisons Extraco Pont-de-l’Arche est heureuse de vous proposer cette maison de 5 pièces de 148 m². Son intérieur comporte quatre chambres, une cuisine et deux salles de bains.Le terrain de cette maison s’étend sur 2 090 m².C’est une maison de 2 niveaux. Elle est neuve.Il y a quatre établissements scolaires à moins de 10 minutes à pied et, comme l’École Maternelle les Tilleuls, le Collège Michel de Montaigne ou l’École Primaire Privée Saint Henri. Niveau transports en commun, on trouve les gares Val-de-Reuil, Saint-Pierre-du-Vauvray et Pont-de-l’Arche à moins de 10 minutes en voiture. Les autoroutes A13 et A154 et la nationale N154 sont accessibles à moins de 9 km. Il y a trois tennis, une bibliothèque, des commerces, une boulangerie, une boucherie-charcuterie, un bureau de poste et une épicerie dans les environs.Elle est proposée à l’achat pour 426 560 €.Prenez contact avec Peter MORIN (tél : (Numéro supprimé)) pour obtenir de plus amples renseignements sur la maison ou sur les démarches à suivre. Les Maisons Extraco Pont-de-l’Arche est là pour vous accompagner à toutes les étapes de l’achat.
Le Vaudreuil
TERRAIN ET MAISONMaison de 7 pièces (158 m²) en vente accolée au VaudreuilPROCHE DE ROUEN – MAISON 7 PIÈCES NEUVEÀ vendre : localisée à deux pas de Rouen, nous vous proposons cette maison de 7 pièces de 158 m² accolée au Vaudreuil (27100).Cette maison compte 2 niveaux. Elle offre quatre chambres, une cuisine et trois salles de bains. Cette maison est neuve.Le terrain de la propriété est de 2 090 m².Quatre établissements scolaires sont implantés à moins de 10 minutes à pied, tout comme dont l’École Maternelle les Tilleuls, le Collège Michel de Montaigne et l’École Primaire Privée Saint Henri. Niveau transports en commun, il y a les gares Val-de-Reuil, Saint-Pierre-du-Vauvray et Pont-de-l’Arche à moins de 10 minutes en voiture. Les autoroutes A13 et A154 et la nationale N154 sont accessibles à moins de 9 km. On trouve trois tennis, une bibliothèque, des commerces, une boulangerie, un bureau de poste, une épicerie et une boucherie-charcuterie à proximité du logement.Elle est à vendre pour la somme de 448 680 €.Contactez notre agence (MORIN Peter : (Numéro supprimé)) pour plus d’informations sur cette maison, sur les démarches à suivre et sur les modalités de vente. Concrétisez vos projets immobiliers avec Les Maisons Extraco Pont-de-l’Arche.
Heudebouville
TERRAIN ET MAISONHeudebouville : maison T5 (120 m²) à vendreMAISON 5 PIÈCES NEUVE – PROCHE DE ROUENÀ vendre à deux pas de Rouen, nous vous proposons à Heudebouville (27600), cette maison de 5 pièces de plain-pied de 120 m². Conçue de plain-pied, elle compte trois chambres, une cuisine et deux salles de bains.Le terrain de la propriété s’étend sur 589 m².Cette maison est neuve.Il y a l’École Primaire les Coteaux Fleuris à moins de 10 minutes à pied. Niveau transports en commun, on trouve trois gares (Saint-Pierre-du-Vauvray, Gaillon-Aubevoye et Val-de-Reuil) à moins de 10 minutes en voiture. L’autoroute A13 est accessible à 1 km. Il y a un tennis, une boulangerie et une boucherie-charcuterie dans les environs.Elle est proposée à l’achat pour 344 910 €.Prenez contact avec Karen DELELIS ((Numéro supprimé)) pour tout renseignement sur la propriété ou sur les modalités de vente.Annonce proposée par un Agent Commercial Partenaire.
Heudebouville
TERRAIN ET MAISONVENTE : maison F6 (100 m²) à HeudebouvillePROCHE DE ROUEN – MAISON 6 PIÈCES NEUVEEn vente : à deux pas de Rouen, Maisons Balency Gravigny vous propose à Heudebouville (27600), cette maison de 6 pièces de 100 m² et de 573 m² de terrain.Cette maison comporte 2 niveaux. Son intérieur offre quatre chambres, une cuisine et deux salles de bains. La maison est neuve.On trouve l’École Primaire les Coteaux Fleuris à moins de 10 minutes à pied. Côté transports, il y a les gares Saint-Pierre-du-Vauvray, Gaillon-Aubevoye et Val-de-Reuil à moins de 10 minutes en voiture. On trouve un accès à l’autoroute A13 à 1 km. On trouve un tennis, une boulangerie et une boucherie-charcuterie dans les environs.Elle est proposée à l’achat pour 258 650 €.Prenez contact avec Karen DELELIS (tél : (Numéro supprimé)) pour plus de renseignements sur ce bien, sur les démarches à suivre ou sur les modalités de vente. Maisons Balency Gravigny vous accompagne à toutes les étapes de votre projet et dans tous vos projets immobiliers.Annonce proposée par un Agent Commercial Partenaire.
La Haye-Malherbe
TERRAIN ET MAISONLa Haye-Malherbe : maison de 5 pièces (92 m²) à vendreIDÉALEMENT SITUÉE – MAISON 5 PIÈCES NEUVEEn vente à 23 km de Rouen, venez découvrir, idéalement située dans La Haye-Malherbe (27400), cette maison de 5 pièces de plain-pied de 92 m² et de 485 m² de terrain.Elle compte quatre chambres, une cuisine et une salle de bains. Cette maison est neuve.Cette maison se trouve dans un quartier recherché. L’École Primaire le Village est implantée à moins de 10 minutes à pied. Niveau transports en commun, on trouve la gare Elbeuf-Saint-Aubin à moins de 10 minutes en voiture. Les autoroutes A13 et A154 et la nationale N154 sont accessibles à moins de 9 km. Il y a trois commerces, une boulangerie, un bureau de poste, une boucherie-charcuterie et une épicerie dans les environs.Son prix de vente est de 207 990 €.Prenez contact avec notre agence (Julien THOMAS : (Numéro supprimé)) pour plus de renseignements sur la maison, sur les modalités de vente ou sur les démarches à suivre. Faites de vos projets immobiliers une réalité avec Les Maisons Extraco Pont-de-l’Arche.
Le Vaudreuil
TERRAINAccolé à la commune du VAUDREUIL et ses nombreux commerces, terrain à bâtir prêt à accueillir votre future maison individuelle
Heudebouville
TERRAIN ET MAISONVENTE : maison de 6 pièces (100 m²) à HeudebouvillePROCHE DE ROUEN – MAISON 6 PIÈCES NEUVEÀ vendre : à 30 km de Rouen, votre agence Maisons Balency Gravigny est ravie de vous présenter cette maison de 6 pièces de 100 m² et de 589 m² de terrain à Heudebouville (27600). Elle dispose de quatre chambres, d’une cuisine et de deux salles de bains.Cette maison compte 2 niveaux. Elle est neuve.Il y a l’École Primaire les Coteaux Fleuris à moins de 10 minutes à pied. Côté transports, on trouve les gares Saint-Pierre-du-Vauvray, Gaillon-Aubevoye et Val-de-Reuil à moins de 10 minutes en voiture. L’autoroute A13 est accessible à 1 km. Il y a un tennis, une boulangerie et une boucherie-charcuterie à proximité.Son prix de vente est de 275 150 €.Contactez notre constructeur (DELELIS Karen : (Numéro supprimé)) pour toute information sur cette maison.Annonce proposée par un Agent Commercial Partenaire.
Le Vaudreuil
TERRAIN ET MAISONMaison de 6 pièces (174 m²) en vente accolée au VaudreuilMAISON 6 PIÈCES NEUVE – PROCHE DE ROUENÀ vendre à quelques kilomètres de Rouen, laissez vous charmer par cette maison de 6 pièces de 174 m² et de 2 090 m² de terrain accolée au Vaudreuil (27100). Elle comporte quatre chambres, une cuisine et deux salles de bains.Il s’agit d’une maison de 2 niveaux. Elle est neuve.Il y a quatre établissements scolaires à moins de 10 minutes à pied et dont l’École Maternelle les Tilleuls, le Collège Michel de Montaigne et l’École Primaire Privée Saint Henri. Niveau transports en commun, on trouve les gares Val-de-Reuil, Saint-Pierre-du-Vauvray et Pont-de-l’Arche à moins de 10 minutes en voiture. Les autoroutes A13 et A154 et la nationale N154 sont accessibles à moins de 9 km. Il y a trois tennis, une bibliothèque, des commerces, une boulangerie, une épicerie, une boucherie-charcuterie et un bureau de poste à proximité de la maison.Elle est à vendre pour la somme de 405 280 €.Prenez contact avec notre agence (Peter MORIN : (Numéro supprimé)) pour toute question sur cette maison ou sur les démarches à suivre. Les Maisons Extraco Pont-de-l’Arche vous accompagne dans tous vos projets immobiliers et à toutes les étapes de l’achat.
L’actualité immobilière à Surville
27/11/2023
02/11/2023
30/10/2023
20/10/2023
16/10/2023
16/10/2023