Maison à construire à Bénodet (29950)
Images
Description
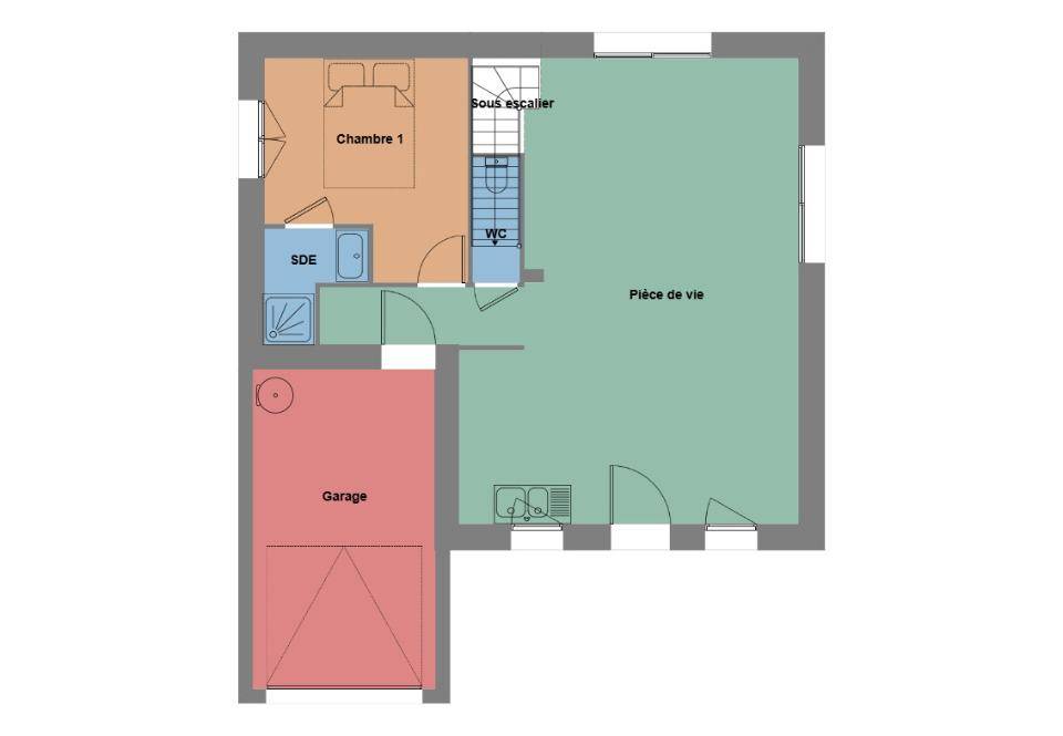
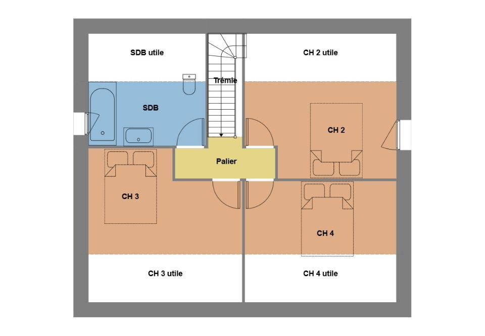
Bénodet : maison de 5 pièces (100 m²) en vente
PROCHE DE QUIMPER - MAISON 5 PIÈCES NEUVE
À 555 m de la côte atlantique et à deux pas de Quimper, notre agence Maisons de l'Avenir Quimper est heureuse de vous présenter cette maison de 5 pièces de 100 m² à Bénodet (29950). Son intérieur est composé de quatre chambres, d'une cuisine et de deux salles de bains.
Le terrain du bien est de 465 m².
C'est une maison de 2 niveaux.
Elle est proposée à l'achat pour 335 000 €.
Prenez contact avec Mathieu DEROUET (tél : (Numéro supprimé)) pour plus d'informations sur la maison. Maisons de l'Avenir Quimper est là pour vous accompagner à toutes les étapes de votre projet.
Logement susceptibles de vous intéresser
Nous vous proposons de découvrir aussi cette sélection de logements situés à moins de 10km de Bénodet et qui seraient susceptibles de vous intéresser.
Plomelin
TERRAIN ET MAISONVENTE : maison de 4 pièces (120 m²) à PlomelinPROCHE CENTRE-VILLE – MAISON 4 PIÈCES NEUVEÀ vendre à 9 km de l’océan Atlantique et à 8 km de Quimper, proche du centre-ville de Plomelin (29700), nous vous présentons cette maison de 4 pièces de plain-pied de 120 m². Elle se divise en trois chambres, une cuisine et deux salles de bains.Le terrain de cette maison est de 452 m².La maison est neuve.L’École Primaire Privée Notre-Dame de l’Assomption et l’École Primaire Publique Lucie Aubrac sont implantées à moins de 10 minutes à pied. Côté transports en commun, on trouve la gare Quimper à moins de 10 minutes en voiture. Il y a un accès à la nationale N165 à 11 km. Il y a un tennis, deux boulangeries, trois commerces, deux supermarchés, une boucherie-charcuterie et une épicerie dans les environs.Son prix de vente est de 377 843 €.N’hésitez pas à prendre contact avec notre agence (ALKIS Sami) pour toute information sur la maison, sur les modalités de vente et sur les démarches à suivre. Concrétisez vos projets immobiliers avec Maisons de l’Avenir Guipavas.
Pleuven
TERRAIN ET MAISONMaison de 4 pièces (75 m²) à vendre à PleuvenPROCHE CENTRE-VILLE – MAISON 4 PIÈCES NEUVEEn vente à 7 km de l’océan Atlantique et à 10 km de Quimper, notre agence Maisons de l’Avenir Pont-l’Abbé est ravie de vous proposer cette maison de 4 pièces de 75 m² et de 379 m² de terrain proche du centre-ville de Pleuven (29170).Cette maison comporte 2 niveaux. Son intérieur compte trois chambres, une cuisine et une salle de bains.Elle est proposée à l’achat pour 282 500 €.N’hésitez pas à prendre contact avec notre agence (DEROUET Mathieu : (Numéro supprimé)) pour toute information sur le bien, sur les démarches à suivre ou sur les modalités de vente. Maisons de l’Avenir Pont-l’Abbé est là pour vous accompagner à toutes les étapes de l’achat.
Pleuven
TERRAINPleuven : terrain de 450 m² en ventePROCHE CENTRE-VILLE – PROCHE DE QUIMPERÀ Pleuven (29170) à 7 km de l’océan Atlantique et à 10 km de Quimper, imaginez la maison de vos rêves sur ce terrain de 450 m². Il se trouve non loin du centre-ville. Il est proposé à l’achat pour 113 000 €. N’hésitez pas à prendre contact avec notre agence (DEROUET Mathieu : (Numéro supprimé)) pour plus de renseignements sur ce terrain ou sur les démarches à suivre. Faites de vos projets immobiliers une réalité avec Maisons de l’Avenir Pont-l’Abbé.
Pleuven
TERRAIN ET MAISONMaison de 4 pièces (95 m²) à vendre à PleuvenPROCHE CENTRE-VILLE – MAISON 4 PIÈCES NEUVEEn vente : à 7 km de l’océan Atlantique et à 10 km de Quimper, découvrez cette maison de 4 pièces de 95 m² et de 450 m² de terrain proche du centre-ville de Pleuven (29170). Son intérieur comporte trois chambres, une cuisine et deux salles de bains.Cette maison possède 2 niveaux. Elle est à vendre pour la somme de 352 000 €.N’hésitez pas à prendre contact avec Mathieu DEROUET ((Numéro supprimé)) pour toute information sur la maison, sur les modalités de vente ou sur les démarches à suivre.
Plomelin
TERRAIN ET MAISONVENTE : maison T4 (100 m²) à PlomelinPROCHE CENTRE-VILLE – MAISON 4 PIÈCES NEUVEEn vente : localisée à 9 km de la côte atlantique et à quelques kilomètres de Quimper, venez découvrir, proche du centre-ville de Plomelin (29700), cette maison de 4 pièces de 100 m². Son intérieur propose quatre chambres, une cuisine et deux salles de bains.Le terrain de cette maison est de 830 m².C’est une maison de 2 niveaux. Elle est neuve.L’École Primaire Privée Notre-Dame de l’Assomption et l’École Primaire Publique Lucie Aubrac sont implantées à moins de 10 minutes à pied. Niveau transports, on trouve la gare Quimper à moins de 10 minutes en voiture. Il y a un accès à la nationale N165 à 11 km. Il y a un tennis, deux boulangeries, trois commerces, deux supermarchés, une épicerie et une boucherie-charcuterie à proximité du bien.Elle est proposée à l’achat pour 397 221 €.Prenez contact avec Sami ALKIS pour toute information sur la maison. Maisons de l’Avenir Guipavas vous accompagne dans tous vos projets immobiliers et dans toutes vos démarches.
Pleuven
TERRAIN ET MAISONMaison de 4 pièces (85 m²) à vendre à PleuvenPROCHE CENTRE-VILLE – MAISON 4 PIÈCES NEUVEEn vente à 7 km de la côte atlantique et à quelques kilomètres de Quimper, découvrez cette maison de 4 pièces de plain-pied de 85 m² proche du centre-ville de Pleuven (29170).Elle compte trois chambres, une cuisine et une salle de bains. Elle est proposée à l’achat pour 330 000 €.N’hésitez pas à prendre contact avec notre agence (Mathieu DEROUET : (Numéro supprimé)) pour tout renseignement sur la maison, sur les démarches à suivre et sur les modalités de vente.
Plomelin
TERRAIN ET MAISONMaison F5 (114 m²) à vendre à PlomelinPROCHE CENTRE-VILLE – MAISON 5 PIÈCES NEUVEEn vente : sur le littoral atlantique et à 8 km de Quimper, Maisons de l’Avenir Guipavas vous propose, proche du centre-ville de Plomelin (29700), cette maison de 5 pièces de 114 m² et de 830 m² de terrain. Son intérieur comporte quatre chambres, une cuisine et une salle de bains.C’est une maison de 2 niveaux. Elle est neuve.Il y a l’École Primaire Privée Notre-Dame de l’Assomption et l’École Primaire Publique Lucie Aubrac à moins de 10 minutes à pied. Côté transports en commun, on trouve la gare Quimper à moins de 10 minutes en voiture. On trouve un accès à la nationale N165 à 11 km. Il y a un tennis, deux boulangeries, trois commerces, deux supermarchés, une épicerie et une boucherie-charcuterie dans les environs.Son prix de vente est de 443 622 €.Contactez notre agence (ALKIS Sami) pour toute question sur la maison. Faites de vos projets immobiliers une réalité avec Maisons de l’Avenir Guipavas.
Plomelin
TERRAINVENTE : terrain de 830 m² à PlomelinPROCHE CENTRE-VILLE – PROCHE DE QUIMPERÀ Plomelin (29700) à 9 km de l’océan Atlantique et à quelques kilomètres de Quimper, donnez vie à votre projet immobilier sur ce terrain de 830 m². Il est orienté au sud-ouest. Il est situé non loin du centre-ville. L’École Primaire Privée Notre-Dame de l’Assomption et l’École Primaire Publique Lucie Aubrac sont implantées à moins de 10 minutes à pied. Côté transports, il y a la gare Quimper à moins de 10 minutes en voiture. La nationale N165 est accessible à 11 km. On trouve un tennis, deux boulangeries, trois commerces, deux supermarchés, une épicerie et une boucherie-charcuterie à proximité du bien.Ce terrain est proposé à l’achat pour 129 000 €. Contactez notre agence (ALKIS Sami) pour toute question sur ce terrain, sur les modalités de vente et sur les démarches à suivre. Donnez vie à vos projets immobiliers avec Maisons de l’Avenir Guipavas.
Plomelin
TERRAIN ET MAISONVENTE d’une maison F4 (117 m²) à PlomelinPROCHE CENTRE-VILLE – MAISON 4 PIÈCES NEUVEEn vente : située sur le littoral atlantique et à 8 km de Quimper, votre agence Maisons de l’Avenir Guipavas est heureuse de vous présenter, proche du centre-ville de Plomelin (29700), cette maison de 4 pièces de 117 m² et de 452 m² de terrain. Elle propose trois chambres, une cuisine et deux salles de bains.C’est une maison de 2 niveaux. Elle est neuve.On trouve l’École Primaire Privée Notre-Dame de l’Assomption et l’École Primaire Publique Lucie Aubrac à moins de 10 minutes à pied. Niveau transports en commun, il y a la gare Quimper à moins de 10 minutes en voiture. La nationale N165 est accessible à 11 km. On trouve un tennis, deux boulangeries, trois commerces, deux supermarchés, une épicerie et une boucherie-charcuterie à quelques minutes à peine.Elle est à vendre pour la somme de 352 217 €.N’hésitez pas à prendre contact avec Sami ALKIS pour obtenir de plus amples renseignements sur la maison ou sur les modalités de vente.
L’actualité immobilière à Bénodet
27/11/2023
02/11/2023
30/10/2023
20/10/2023
16/10/2023
16/10/2023